Travailler – accueillir, Réhabiliter un équipementTravailler – accueillir, Réhabiliter un équipement
Travailler – accueillir, Réhabiliter un équipement

Extension et restructuration de l'EHPAD « Au Bon Accueil »

79430 La Chapelle-Saint-Laurent - Deux Sèvres - Nouvelle-Aquitaine

BÂTIMENT / LOGEMENT

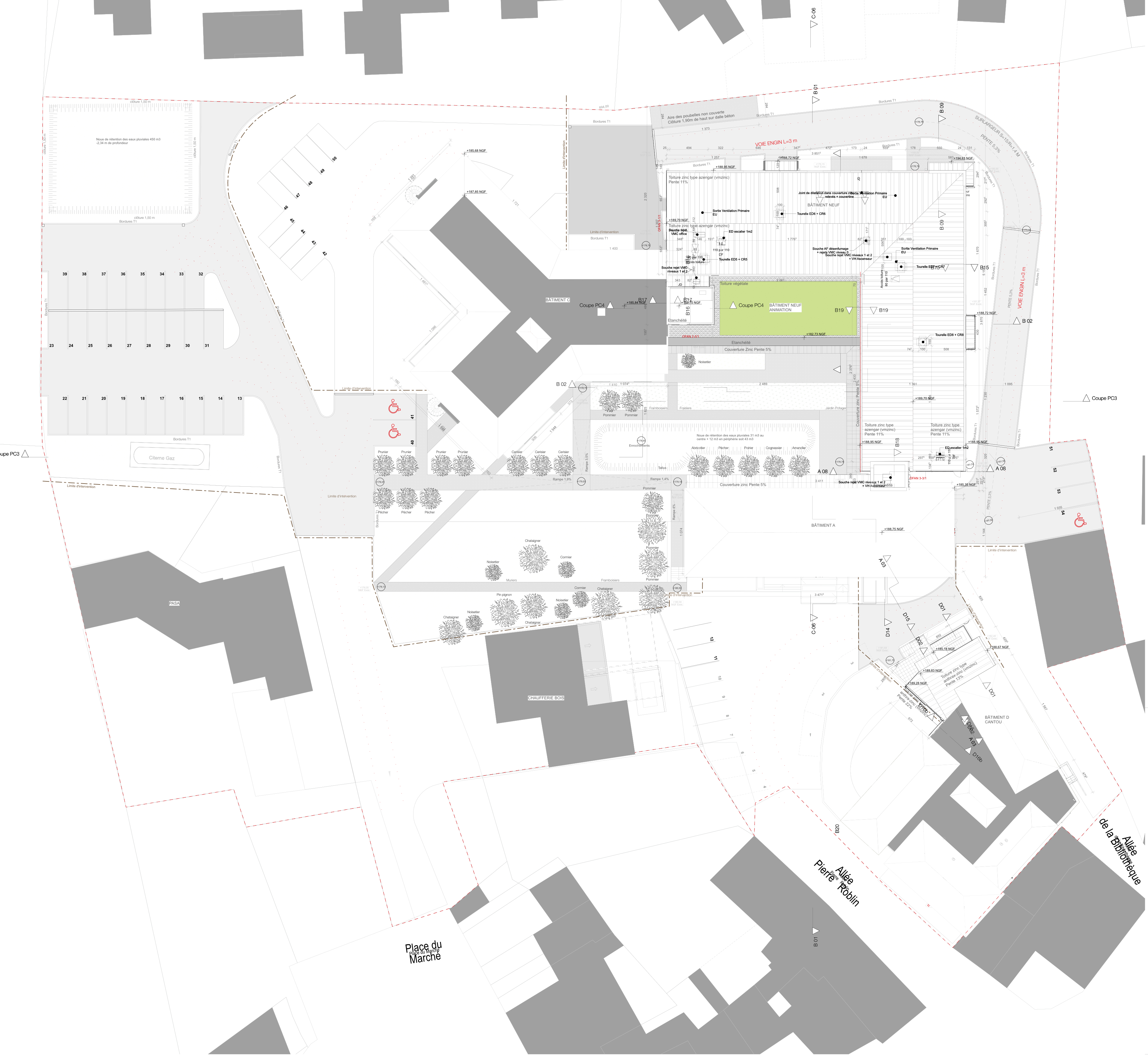
Restructuration de l’EHPAD et extension de 40 chambres, d’un restaurant, de locaux communs et techniques, dont une blanchisserie. Une nouvelle cohérence a été apportée à l’ensemble existant, en termes de fonctionnement et de répartition des services ; mais également en termes de volumétrie et de cheminements. Le projet recentre les espaces de vie communautaire au centre de l’établissement. Ils s’organisent autour d’un espace vert protégé permettant ainsi une séparation nette des espaces d’agrément au centre, et des flux logistiques en périphérie du site.

Catégorie Bâtiment / logement
Numéro de projet6803
Adresse du projet 5 Allée Pierre Roblin
79430 La Chapelle-Saint-Laurent
Date de candidature18/02/2022

Bâtiment / logement

Détail projet

Typologie de bâtiment : Neuf,Rénovation / Réhabilitation
Type de bâtiment : Santé
Année de livraison : Décembre 2020
Surface totale du bâtiment en m² : 5781
Dont extension / surélévation en m² : 2586
Coût total en € HT (hors foncier, hors VRD, hors honoraires) : 4767000
Lot bois n°1 concerné : Charpente bois,Bardage bois,Menuiserie extérieure bois,ossature bois
Volume lot bois n°1 - m³ : 421
Coût du lot bois n°1 - € HT : 927000
Lot bois n°2 concerné : Menuiserie intérieure bois
Coût du lot bois n°2 - € HT : 43252.65
Bois Français : oui
Isolations biosourcées (préciser dans le descriptif technique) : non
Matériaux géosourcés (préciser dans le descriptif technique) : oui
Finitions intéreures biosourcées ou géosourcées (préciser dans le descriptif technique) : oui

Structure bois du bâtiment

Structure verticale :

ProduitEssenceProvenances (lieu de croissance du bois)Traitements de préservationMarque et certification produit
Panneau ossature boisÉpicéa communEuropeTraitement Classe 2 (trempage)
Panneau de bois massif (CLT collé ou CLT cloué)Épicéa communEuropeJe n'ai pas l'information

Structure horizontale :

ProduitEssenceProvenances (lieu de croissance du bois)Traitements de préservationMarque et certification produit
Panneau de bois massif (CLT collé ou CLT cloué)Épicéa communEuropeJe n'ai pas l'information

Charpente :

ProduitEssenceProvenances (lieu de croissance du bois)Traitements de préservationMarque et certification produit
Caisson de toitureÉpicéa communEuropeTraitement Classe 2 (trempage)

Revêtement bois extérieur

Revêtement bois ou dérivés :

ProduitEssenceProvenances (lieu de croissance du bois)Marque et certification produitFinitionTraitements de préservation
Lame bois massifDouglasFranceTropicalSaturateurAucun traitement

Autre revêtement métallique :

Produit
Zinc

Menuiserie intérieure et extérieure

Menuiserie extérieure :

ProduitEssenceProvenances (lieu de croissance du bois)Marque et certification produitFinition
Brise soleil bois, Menuiserie mixte, Mur rideau boisPin maritimeJe n'ai pas l'information

Isolation des murs

Isolation intérieure des murs :

Produit
Laine de verre
Epaisseur (mm) Isolation intérieure des murs : 50

Isolation entre-montant des murs :

Produit
Laine de verre
Epaisseur (mm) Isolation entre-montant des murs : 220

Isolation de la toiture

Epaisseur (mm) Isolation intérieure de la toiture : 50
Epaisseur (mm) Isolation entre-montant de la toiture : 300

Approche environnementale : Le projet fait le pari de l’avenir en privilégiant une construction performante et respectueuse de l’environnement. Nous avons cherché à réduire l’emprunte carbone du projet en faisant le choix d‘un bâtiment bois. Celui-ci atteint un niveau de performance important grâce à la sur-isolation du bâtiment obtenant ainsi un Bbio de -5%. En comparaison, la même composition de paroi permet de répondre à une RT 2012 et Bbio -75% sur l’un de nos projets de logements collectif à Nantes (la différence de résultat s’expliquant principalement par des calculs qui dépendent du temps d’occupation).

Descriptif technique : Un sous-bassement semi-enterré en béton contribue à l'inertie du bâti. Viennent s’ajouter en élévation des murs ossature bois de 22 cm et un plancher supérieur en bois massif (CLT). La toiture est composée de caissons bois préfabriqués de 36 cm et d'une couverture zinc. Les façades sont quant à elles bardées de zinc sur la face extérieure du bâti et en bois massif sur la face intérieure. En complément de ce dispositif, les parois verticales des circulations sont en bois massif (CLT) laissé apparent et procurant une ambiance chaleureuse et paisible. PEFC (Gestion forestière durable) FSC (Gestion forestière responsable)

Performance du bâtiment (Cep en kWhep/m²/an) : 161.2
Chauffage au Bois : non
Certifications, labels et marques bâtiment : Bois de France
Données déclaratives

Acteurs du projet

Maître d'ouvrage (1)

Autres

EHPAD Au Bon Accueil (79)

Etudes et ingénieries (7)

Maître d'œuvre - Architecte mandataire

Ad Hoc Architecture (44)

Bureau d'études structure bois

Serba Novam Ingénierie (85)

Bureau d'études environnement

Oce Environnement Novam Ingénierie (85)

Bureau d'études thermique

Isocrate (44)

Economiste

Cabinet Denis Rousseau - Challans (85)

Autre intervenant de la construction - bureau de contrôle, AMO, BIM...

ACOBA (79)
QUALICONSULT (86)

Entreprises des lots bois (2)

Charpentier

COPPET (79)

Menuisier

AUDIS (79)

Fournisseurs du bois (2)

Scierie

Galli Scierie (49)

Industriel

SIVALBP (74)




* : L'entreprise n'est plus active
Retour à la liste