Habiter une maison, Réhabiliter un logement

Reconstruction de la Maison Rey

43190 Tence - Haute Loire - Auvergne-Rhône-Alpes

BÂTIMENT / LOGEMENT

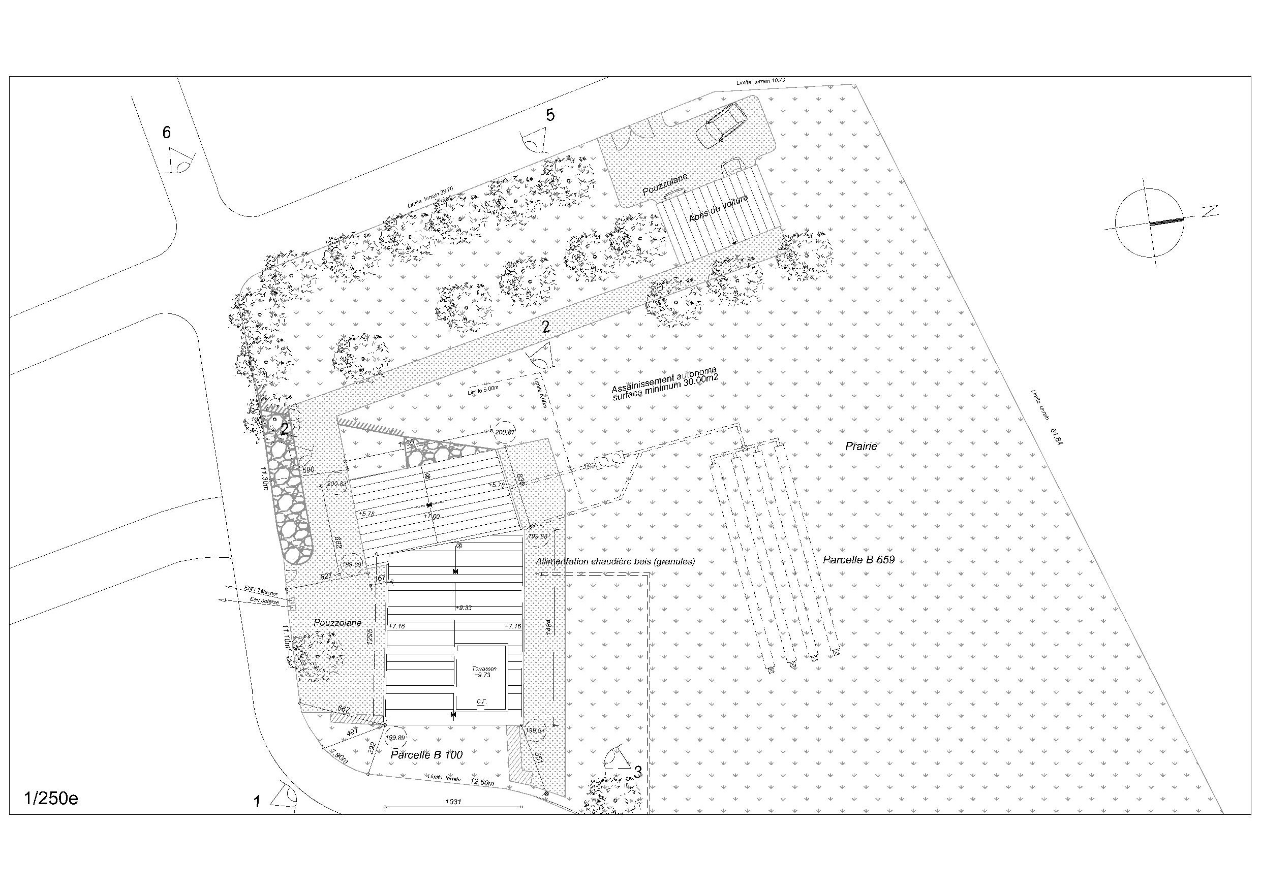
Il était important de conserver dans le paysage la forme et l’échelle des constructions anciennes et de concevoir une création originale à partir d’éléments existants. La maison reprend les plans de l'édifice existant, effondré durant les Etudes. Le RDC est constitué d’un double-mur Béton-Pierres existantes d'où émerge l'étage en ossature bois, paré de zinc. Ouvertures et frontons ont été conservés. Une cheminée apporte chaleur et confort et les larges ouvertures, lumière et ventilation. La «cabane des enfants», au-dessus du salon, recouvert de lattis bois donne une atmosphère conviviale.

Catégorie Bâtiment / logement
Numéro de projet6071
Date de candidature03/03/2021

Bâtiment / logement

Détail projet

Typologie de bâtiment : Neuf,Rénovation / Réhabilitation
Type de bâtiment : Logement individuel supérieur à 120 m²
Année de livraison : 2018
Surface totale du bâtiment en m² : 288
Coût total en € HT (hors foncier, hors VRD, hors honoraires) : 550000
Lot bois n°1 concerné : Charpente bois
Coût du lot bois n°1 - € HT : 30000
Lot bois n°2 concerné : ossature bois
Coût du lot bois n°2 - € HT : 16000
Bois Français : oui
Isolations biosourcées (préciser dans le descriptif technique) : oui
Finitions intéreures biosourcées ou géosourcées (préciser dans le descriptif technique) : non

Structure bois du bâtiment

Structure verticale :

ProduitEssenceProvenances (lieu de croissance du bois)Traitements de préservationMarque et certification produit
Panneau ossature boisDouglasAuvergne-Rhône-Alpes

Structure horizontale :

ProduitEssenceProvenances (lieu de croissance du bois)Traitements de préservationMarque et certification produit
Plancher béton

Charpente :

ProduitEssenceProvenances (lieu de croissance du bois)Traitements de préservationMarque et certification produit
Charpente traditionnelleDouglasAuvergne-Rhône-Alpes

Revêtement bois extérieur

Autre revêtement métallique :

Produit
Zinc

Menuiserie intérieure et extérieure

Isolation des murs

Isolation intérieure des murs :

Produit
Laine de roche
Epaisseur (mm) Isolation intérieure des murs : 60

Isolation entre-montant des murs :

Produit
Laine de roche
Epaisseur (mm) Isolation entre-montant des murs : 160

Isolation de la toiture

Epaisseur (mm) Isolation entre-montant de la toiture : 260

Approche environnementale : Les pierres de l'ancienne bâtisse de 1870 ont été repérées et déposées. Le RDC est composé d'un double mur Béton, isolant, pierres de 70cm. Les pierres ont été appareillé par une entreprise et selon un savoir-faire local à l'identique. L'ensemble du bois de Douglas est issu de la filière auvergnate réglementée. Il a été privilégié des matériaux biosourcés et géo-sourcés (pierres, bois, laine de roche, parquet bois massif, menuiseries intérieures bois). Chauffage au biogaz et Chauffage d'appoint Bois (salon et chambres).

Descriptif technique : Panneaux extérieur et refends composés par un panneau OSB de 12mm, une ossature bois de section 46/160 avec un entraxe de 600 mm. Traverses basses et hautes, montants, entretoises, chainages, poteaux d'angles et de renforts traitées classe 3. Charpente Bois lamellé-collé sur poteaux ronds fraisés (200mm). Charpente en bois massif, poutre porteuse BLC 115/315 et murallière 75/225 avec entraxe 500mm. Panneau de plancher en OSB4 (22mm), panneau de toiture en OSB4 RL2 rives (22mm). Caissons de toiture comprenant chevrons 60/260, panneaux OSB4 RL (18mm), isolation laine de roche entre chevrons. PEFC (Gestion forestière durable) FSC (Gestion forestière responsable)

Chauffage au Bois : oui
Appareil de chauffage au bois : Poële/insert
Certifications, labels et marques bâtiment : Origine France Garantie (OFG)
Données déclaratives

Acteurs du projet

Maître d'ouvrage (1)

Maître d'ouvrage - Particuliers

particulier (x)

Etudes et ingénieries (6)

Maître d'œuvre - Architecte mandataire

BEHC ARCHITECTES RHONE-ALPES (42) *

Maître d’œuvre - Architecte associé

MIRAMAND (43) *

Bureau d'études structure bois

SYLVA CONSEIL (63)

Bureau d'études thermique

BETALM (63) *

Economiste

BMV ECONOMIE - PIERRE PONTVIANNE (43) *

Autre intervenant de la construction - bureau de contrôle, AMO, BIM...

SECOBA - ALTAÏS INGENIERIE (63)

Entreprises des lots bois (3)

Charpentier

GUILHOT CONSTRUCTION BOIS (43)

Menuisier

SARL FAURE ET FILS (05)

Autre lot de la construction (en lien avec le bois)

CREPIN CHRISTIAN (43) *




* : L'entreprise n'est plus active
Retour à la liste