Apprendre – se divertir
Apprendre – se divertir

Groupe Scolaire Albert Vinçon

44550 Montoir-de-Bretagne - Loire Atlantique - Pays de la Loire

BÂTIMENT / LOGEMENT

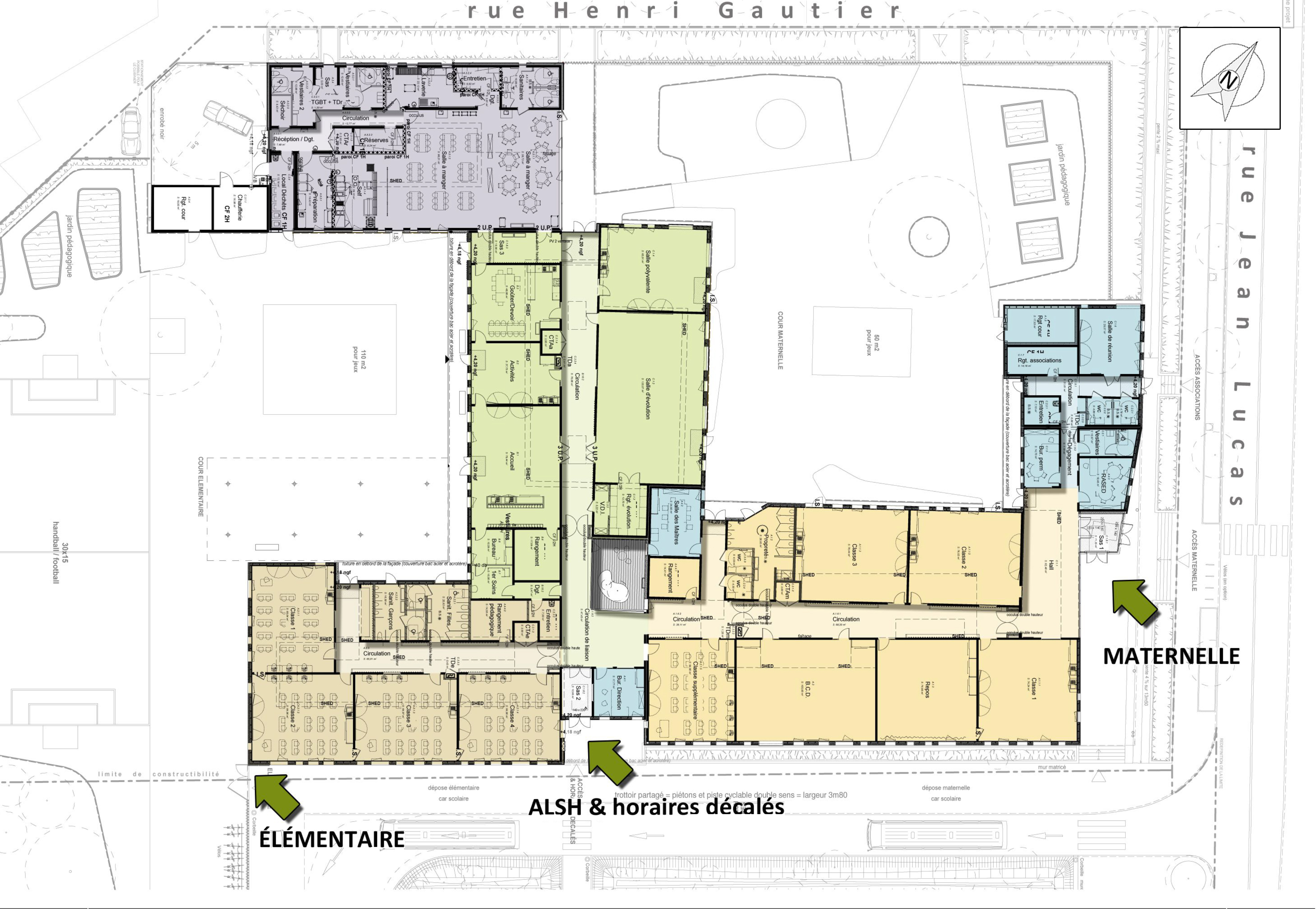
La forme du plan est dictée par la volonté de protéger les locaux occupés par les enfants du bruit du trafic des poids lourds : les classes maternelles et élémentaires s’adossent à la limite la plus éloignée de la rue. Conçue en angle majeur, sur un parvis surélevé, l’entrée des maternels se singularise par son ouverture en creux. Références à l’enfance, des couleurs dessinent quelques creux sur les façades en murs ossature bois, revêtues d’enduit blanc et de bardage bois. Des sheds sculptent les toitures et apportent de la lumière au fond des salles et des circulations.

Catégorie Bâtiment / logement
Numéro de projet206
Adresse du projet 2 rue jean Lucas
44550 Montoir-de-Bretagne
Date de candidature08/03/2018

Bâtiment / logement

Détail projet

Typologie de bâtiment : Neuf
Type de bâtiment : Enseignement ou éducation
Année de livraison : 2016
Surface totale du bâtiment en m² : 2321
Coût total en € HT (hors foncier, hors VRD, hors honoraires) : 3825000
Lot bois n°1 concerné : Bardage bois
Volume lot bois n°1 - m³ : 42.20
Coût du lot bois n°1 - € HT : 149673
Lot bois n°2 concerné : Menuiserie intérieure bois
Volume lot bois n°2 - m³ : 14.00
Coût du lot bois n°2 - € HT : 90000

Structure bois du bâtiment

Structure verticale :

ProduitEssenceProvenances (lieu de croissance du bois)Traitements de préservationMarque et certification produit
Panneau ossature boisNouvelle-AquitaineTraitement Classe 2 (trempage)

Structure horizontale :

ProduitEssenceProvenances (lieu de croissance du bois)Traitements de préservationMarque et certification produit
Plancher béton

Charpente :

ProduitEssenceProvenances (lieu de croissance du bois)Traitements de préservationMarque et certification produit
Charpente bois lamellé-colléÉpicéa communNouvelle-AquitaineTraitement Classe 2 (trempage)
Caisson de toitureÉpicéa communNouvelle-AquitaineTraitement Classe 2 (trempage)
Charpente traditionnelleÉpicéa communNouvelle-AquitaineTraitement Classe 2 (trempage)

Revêtement bois extérieur

Revêtement bois ou dérivés :

ProduitEssenceProvenances (lieu de croissance du bois)Marque et certification produitFinitionTraitements de préservation
Bardeau boisDouglasAuvergne-Rhône-AlpesAucune finitionAucun traitement
Lame bois massifAuvergne-Rhône-AlpesAucune finitionAucun traitement

Revêtement minéral :

Produit
Enduit ciment

Menuiserie intérieure et extérieure

Isolation des murs

Isolation intérieure des murs :

Produit
Laine de verre
Epaisseur (mm) Isolation intérieure des murs : 60

Isolation entre-montant des murs :

Produit
Laine de verre
Epaisseur (mm) Isolation entre-montant des murs : 145

Isolation extérieure des murs :

Produit
Laine de verre
Epaisseur (mm) Isolation extérieure des murs : 60

Isolation de la toiture

Epaisseur (mm) Isolation entre-montant de la toiture : 400

Approche environnementale : La compacité du groupe scolaire permet de limiter les surfaces déperditives. Les murs de refend intérieurs en béton favorisent l’inertie thermique et l’acoustique. En élévation, l’usage de murs à ossature bois permet d’éviter tout pont thermique. Les peintures intérieures sont labélisées « Ecolabel ». Afin d’améliorer la qualité écologique du site, le projet est caractérisé par une végétation en sol et en toiture. Les revêtements de sols (stabilisé, pavés à joints drainants) ont été choisis pour leur perméabilité.

Descriptif technique : La charpente se compose en 2 zones. La 1ère, en toiture végétalisée, est constituée d’éléments en bois massif ou lamellé-collé. La 2nde, en toiture shed, est constituée de caissons bois. Les 2 types de charpentes s'appuient sur des poutres échelles. Les murs de refend sont en béton et les murs périphériques en MOB (sauf restaurant). Le projet est doté de fondations spéciales. // Coût lot charp. bois : 328 649,86 € HT / Vol. bois charp. trad. : 91,75 m3 / Surf. caissons de toiture : 732 m2 / Coût lot MOB : 61 675,72 € HT / Surf. MOB : 855 m2 / BET Rest. Collective : Conceptic Art PEFC (Gestion forestière durable) FSC (Gestion forestière responsable) CTB A Traitement des bois en oeuvre CTB P (Produits de traitement) NF Contreplaqués (CTBX - CTBC) Marquage CE

Chauffage au Bois : non
Certifications, labels et marques bâtiment : Bois de France
Données déclaratives

Acteurs du projet

Maître d'ouvrage (1)

Maître d'ouvrage - État ou collectivité (locale et territ)

Mairie de Montoir de Bretagne (44)

Etudes et ingénieries (7)

Maître d'œuvre - Architecte mandataire

Faun Architecte (44)

Bureau d'études acoustique

Gamba Accoustique (44)

Bureau d'études structure bois

Arest Nantes (44)

Bureau d'études thermique

SETHEL (44)

Economiste

Carré D'Aire - Bouttier & Associés (72)

Designer / architecte d'intérieur

Camille Guitton et Cécilia Génard / Graphistes (75)

Paysagiste

SETUR (35)

Entreprises des lots bois (3)

Charpentier

André Btp (44)
Leduc Structures Bois (44)

Menuisier

Rortais le Pavec (44) *

Fournisseurs du bois (3)

Scierie

Piveteau Bois (85)
SWISS KRONO SAS (45)
COSYLVA (23)




* : L'entreprise n'est plus active
Retour à la liste