Réhabiliter un équipement, Réhabiliter un logementRéhabiliter un équipement, Réhabiliter un logement
Réhabiliter un équipement, Réhabiliter un logement

Extension de l'Institut national supérieur du professorat et de l'éducation de Strasbourg

67100 STRASBOURG - Bas Rhin - Grand Est

BÂTIMENT / LOGEMENT

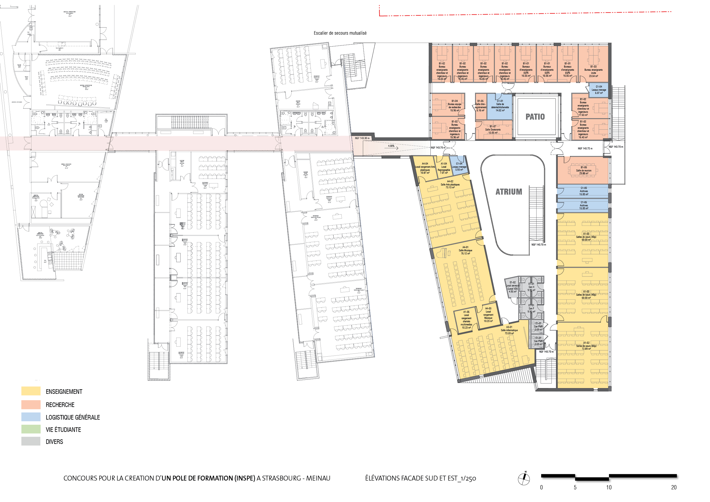
L'extension de l'INSPE Strasbourg est un bâtiment bioclimatique compact à ossature et façades bois. Il répond aux nouveaux besoins d'accueil (étudiants /enseignants chercheurs) et respecte les logiques de distribution et d'organisation du bâtiment existant. L'ensemble des nouvelles salles donne sur un espace de distribution central, adapté aux effectifs. Eclairé par des sheds et habillé de bois, cet atrium fédérateur est issu de l'écartement des salles (typologie en "V") et du déplacement de certaines d'entre elles à l'étage. Coeur chaleureux, il offre une qualité de vie grandement appréciée.

Catégorie Bâtiment / logement
Numéro de projet9429
Date de candidature03/03/2025

Bâtiment / logement

Détail projet

Typologie de bâtiment : Extension / surélévation
Type de bâtiment : Enseignement ou éducation,Logement individuel inférieur 120 m²
Année de livraison : 2024
Surface totale du bâtiment en m² : 9586
Dont extension / surélévation en m² : 2586
Coût total en € HT (hors foncier, hors VRD, hors honoraires) : 6500000
Lot bois n°1 concerné : Charpente bois,ossature bois
Volume lot bois n°1 - m³ : 471
Coût du lot bois n°1 - € HT : 934584
Lot bois n°2 concerné : Menuiserie intérieure bois
Volume lot bois n°2 - m³ : 20
Coût du lot bois n°2 - € HT : 297000
Bois Français : oui
Matériaux issus du ré-emploi (préciser dans le descriptif technique) : non
Isolations biosourcées (préciser dans le descriptif technique) : non
Matériaux géosourcés (préciser dans le descriptif technique) : non
Finitions intéreures biosourcées ou géosourcées (préciser dans le descriptif technique) : non

Structure bois du bâtiment

Structure verticale :

ProduitEssenceProvenances (lieu de croissance du bois)Traitements de préservationMarque et certification produit
Panneau de bois massif (CLT collé ou CLT cloué), Panneau ossature boisFrance

Structure horizontale :

ProduitEssenceProvenances (lieu de croissance du bois)Traitements de préservationMarque et certification produit
Dalle bois, Panneau de bois massif (CLT collé ou CLT cloué)EuropeTraitement Classe 3a (trempage)PEFC

Charpente :

ProduitEssenceProvenances (lieu de croissance du bois)Traitements de préservationMarque et certification produit
Charpente bois lamellé-collé, Charpente non bois, Charpente traditionnelleEuropeTraitement Classe 2 (trempage)PEFC

Revêtement bois extérieur

Revêtement bois ou dérivés :

ProduitEssenceProvenances (lieu de croissance du bois)Marque et certification produitFinitionTraitements de préservation
Lame bois massifDouglasGrand-EstOrigine France GarantieSaturateurTraitement Classe 3b (autoclave)

Revêtement minéral :

Produit
Enduit ciment

Autre revêtement métallique :

Produit
Alu

Menuiserie intérieure et extérieure

Menuiserie intérieure :

ProduitEssenceProvenances (lieu de croissance du bois)FinitionMarque et certification produit
Escalier, Mobilier, Panneau acoustique, Panneau massif d'agencement, PlinthesÉpicéa communFranceVernisPEFC

Isolation des murs

Isolation intérieure des murs :

Produit
Fibre de bois (Panneaux)
Laine de roche

Isolation entre-montant des murs :

Produit
Laine de roche
Epaisseur (mm) Isolation entre-montant des murs : 160

Isolation extérieure des murs :

Produit
Laine de roche
Epaisseur (mm) Isolation extérieure des murs : 200

Isolation de la toiture

Epaisseur (mm) Isolation extérieure de la toiture : 200

Approche environnementale : Projet de conception bioclimatique, sobre, permettant d'atteindre le niveau E3C1 (sans certification) Ossature bois et bardage bois en façade Eclairage naturel maximisé et apports solaires passifs en hiver/mi-saison (surfaces vitrées à l'Est et à l'Ouest, sheds orientés Sud en toiture au niveau de l'atrium) Enveloppe performante et pérenne (isolation permettant d'atteindre le niveau E3, limitation des ponts thermiques du fait de l'ossature bois et des prémurs isolés) Acoustique très performante Energie solaire en toiture Biodiversité préservée et enrichie, récupération EP et toiture végétalisée

Descriptif technique : Bâtiment bioclimatique (structure mixte bois/béton/métal) avec une large dominante bois (coulages béton limités aux éléments qui le nécessitent : dalle basse sur terre-plein, planchers intermédiaires de grande portée, gradins de l'amphithéâtre...) Eléments de superstructure préfabriqués (limitation des nuisances sur place) Grande majorité des façades et refends porteurs + dalles intermédiaires et toiture réalisées en bois (MOB pour les façades / voiles CLT intérieurs visibles de chaque côté / panneaux CLT nervurés pour les planchers visibles en sous-face). Bois écolabellisés PEFC et respectant l'étiquetage CTB Air+ Acoustique intérieure traitée par panneaux de fibres de bois très performants Ventilation double-flux Menuiseries extérieures en aluminium à rupture de pont thermique

Performance du bâtiment (Cep en kWhep/m²/an) : 29.4
Ic construction - Impact Environnemental de la Construction (kg éq CO2/m² de SHAB ou SU) : 1007
Chauffage au Bois : non
Certifications, labels et marques bâtiment : PEFC
Données déclaratives

Acteurs du projet

Maître d'ouvrage (2)

Maître d'ouvrage - État ou collectivité (locale et territ)

REGION GRAND EST (67)

Autres

SERS (67)

Etudes et ingénieries (7)

Maître d'œuvre - Architecte mandataire

CELNIKIER & GRABLI ARCHITECTES (75)

Bureau d'études acoustique

OTE INGENIERIE (67)

Bureau d'études structure bois

OTE INGENIERIE (67)

Bureau d'études environnement

OTELIO (68)

Bureau d'études thermique

OTE INGENIERIE (67)

Economiste

OTE INGENIERIE (67)

Architecte / paysagiste concepteur

EURL MCPaysages (75)

Entreprises des lots bois (2)

Charpentier

GIROLD Constructions Bois (67)

Menuisier

HUNSINGER SAS (67)

Fournisseurs du bois (1)

Industriel

SWISS KRONO SAS (45)

Autres (1)

Photographe

Julien KAM (67)




* : L'entreprise n'est plus active
Retour à la liste