Réhabiliter un équipement
Réhabiliter un équipement

Extension de l'Ecole Regina Coeli

06300 NICE - Alpes maritimes - Provence Alpes Côte d'Azur

BÂTIMENT / LOGEMENT

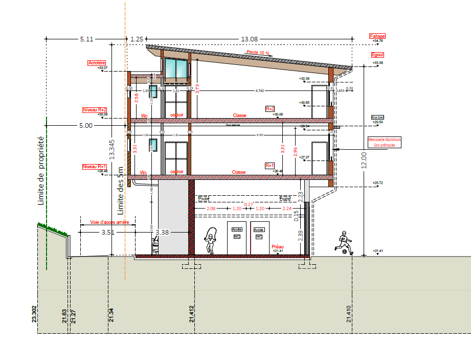
Le projet consiste en l’extension de l’école : construction de nouvelles classes et réalisation d’un gymnase. Les deux niveaux de classes sont entièrement édifiés en bois : planchers et murs de structure en CLT épicéa, charpente en lamellé collé épicéa. Un socle béton édifié sous les nouvelles classes fait office de préau. Les ouvertures de la façade reprennent les mêmes proportions que celles du bâtiment existant pour une parfaite intégration. Le bâtiment simple et épuré, laisse généreusement entrer la lumière naturelle. Le gymnase est aussi réalisé en murs à ossature bois.

Catégorie Bâtiment / logement
Numéro de projet7879
Adresse du projet 5 Avenue George V
06300 NICE
Date de candidature06/03/2023

Bâtiment / logement

Détail projet

Typologie de bâtiment : Extension / surélévation
Type de bâtiment : Enseignement ou éducation
Année de livraison : 2022
Surface totale du bâtiment en m² : 3355
Dont extension / surélévation en m² : 956.12
Coût total en € HT (hors foncier, hors VRD, hors honoraires) : 1984182
Lot bois n°1 concerné : Charpente bois,ossature bois
Volume lot bois n°1 - m³ : 1701.63
Coût du lot bois n°1 - € HT : 728257
Lot bois n°2 concerné : Bardage bois
Volume lot bois n°2 - m³ : 20
Coût du lot bois n°2 - € HT : 51975
Bois Français : non
Matériaux issus du ré-emploi (préciser dans le descriptif technique) : non
Isolations biosourcées (préciser dans le descriptif technique) : oui
Matériaux géosourcés (préciser dans le descriptif technique) : non
Finitions intéreures biosourcées ou géosourcées (préciser dans le descriptif technique) : non

Structure bois du bâtiment

Structure verticale :

ProduitEssenceProvenances (lieu de croissance du bois)Traitements de préservationMarque et certification produit
Panneau de bois massif (CLT collé ou CLT cloué)EuropeTraitement Classe 2 (trempage)PEFC

Structure horizontale :

ProduitEssenceProvenances (lieu de croissance du bois)Traitements de préservationMarque et certification produit
Panneau de bois massif (CLT collé ou CLT cloué)EuropeTraitement Classe 2 (trempage)PEFC

Charpente :

ProduitEssenceProvenances (lieu de croissance du bois)Traitements de préservationMarque et certification produit
Charpente bois lamellé-colléEuropeTraitement Classe 2 (trempage)PEFC

Revêtement bois extérieur

Revêtement bois ou dérivés :

ProduitEssenceProvenances (lieu de croissance du bois)Marque et certification produitFinitionTraitements de préservation
Bardeau boisAuvergne-Rhône-AlpesPEFCAutres Traitement Classe 2 (trempage)

Menuiserie intérieure et extérieure

Isolation des murs

Isolation extérieure des murs :

Produit
Laine de bois souple
Epaisseur (mm) Isolation extérieure des murs : 200

Isolation de la toiture

Epaisseur (mm) Isolation intérieure de la toiture : 200

Approche environnementale : Le Maitre d'Ouvrage a exprimé dès l'origine sa volonté de travailler avec des entreprises locales afin de réduire les déplacements et de l'imiter l'impact carbone du projet. Volonté également de servir d'exemple aux élèves de l'école et de les sensibiliser a ce que pourrait être leur environnement de demain. L'aspect pédagogique a été un facteur primordial au même titre que l'aspect constructif. L'utilisation du bois déjà livré en panneaux préfabriqués a permis d'obtenir une rapidité d'exécution et de réaliser un chantier propre.

Descriptif technique : Pour le bâtiment principal "Classes", planchers et murs de structure en CLT épicéa, ainsi que la charpente en lamellé collé épicéa. Isolation extérieurs en laine de bois de 200mm, bardage en épicéa avec nacre de coquilles en protection. Menuiseries aluminium pour les ouvertures. Toiture en bac aluminum, isolation en panneaux trilatte de 200mm d'épaisseur. Pour le bâtiment secondaire "gymnase", murs a ossature bois et finition intérieure en panneaux triply. Menuiseries aluminium pour les ouvertures. Toiture en bac aluminum, isolation en panneau trilatte de 200mm d'épaisseur.

Performance du bâtiment (Cep en kWhep/m²/an) : 71.40
Chauffage au Bois : non
Certifications, labels et marques bâtiment : Aucun
Données déclaratives

Acteurs du projet

Maître d'ouvrage (1)

Autres

Association OGEC REGINA COELI (06)

Etudes et ingénieries (4)

Maître d'œuvre - Architecte mandataire

MAUCLET Alexandre (06)

Bureau d'études acoustique

ENERBAT CORNELI (98)

Bureau d'études structure bois

TECKICEA (25)

Bureau d'études thermique

ENERBAT CORNELI (98)

Entreprises des lots bois (3)

Charpentier

INNOVATION TOIT ET BOIS (ITB) (ITB) (83)

Menuisier

CLIBAT AMENAGEMENT (06)

Constructeur bois

INNOVATION TOIT ET BOIS (ITB) (ITB) (83)

Fournisseurs du bois (2)

Scierie

KLH - Lignatec (88)

Industriel

SIVALBP (74)




* : L'entreprise n'est plus active
Retour à la liste