Habiter ensemble
Habiter ensemble

14 logements passifs - Chavagne

35310 CHAVAGNE - Ille et Vilaine - Bretagne
Lauréat régional

BÂTIMENT / LOGEMENT

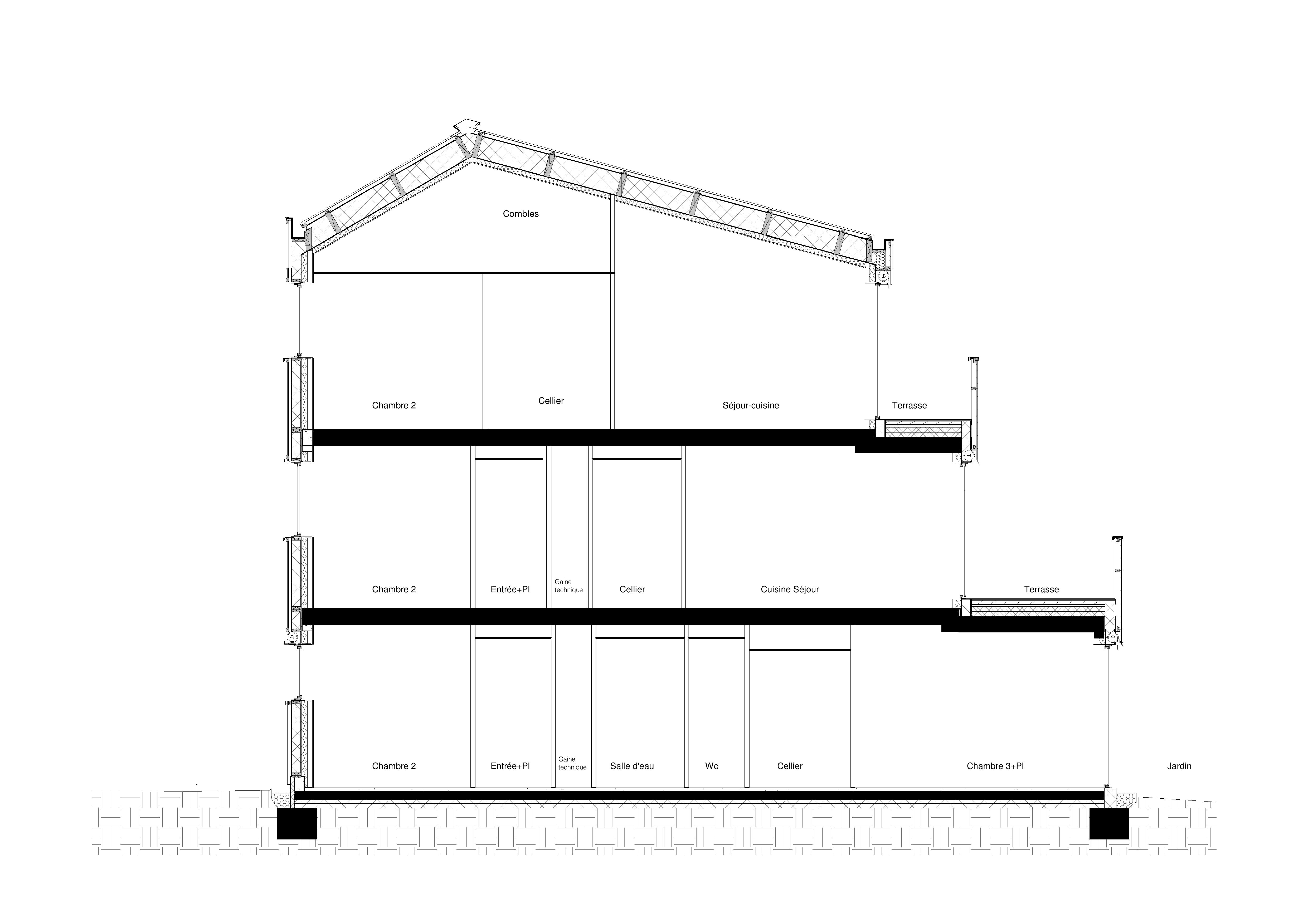
Le projet de 14 logements à Chavagne se compose de deux bâtiments passifs de 6 et 8 logements. Une attention particulière a été apportée à l’insertion du projet dans le paysage boisé et dans le nouveau quartier de la ZAC de la Touche composé en partie de maisons individuelles. Composé d'un jeu de pli, de balcons et de terrasses en étages, la volumétrie de ces petits collectifs s'insert délicatement dans ce contexte pavillonnaire. Les recherches volumétriques menées ont permis d’offrir à chaque logement une orientation optimale, de l’intimité et des vues sur le paysage.

Catégorie Bâtiment / logement
Numéro de projet7748
Adresse du projet Rue Simone Weil
Secteur du haut Colombier
35310 CHAVAGNE
Date de candidature28/02/2023

Bâtiment / logement

Détail projet

Typologie de bâtiment : Neuf
Type de bâtiment : Logement collectif
Année de livraison : 2023
Surface totale du bâtiment en m² : 940
Coût total en € HT (hors foncier, hors VRD, hors honoraires) : 1444410
Lot bois n°1 concerné : Charpente bois,Bardage bois,ossature bois,Autre lot bois
Bois Français : oui
Matériaux issus du ré-emploi (préciser dans le descriptif technique) : non
Isolations biosourcées (préciser dans le descriptif technique) : non
Matériaux géosourcés (préciser dans le descriptif technique) : non
Finitions intéreures biosourcées ou géosourcées (préciser dans le descriptif technique) : non

Structure bois du bâtiment

Structure verticale :

ProduitEssenceProvenances (lieu de croissance du bois)Traitements de préservationMarque et certification produit
Panneau ossature boisÉpicéa communTraitement Classe 2 (trempage)Je n'ai pas l'information

Structure horizontale :

ProduitEssenceProvenances (lieu de croissance du bois)Traitements de préservationMarque et certification produit
Plancher béton

Charpente :

ProduitEssenceProvenances (lieu de croissance du bois)Traitements de préservationMarque et certification produit
Charpente traditionnelleÉpicéa communTraitement Classe 2 (trempage)Je n'ai pas l'information

Revêtement bois extérieur

Revêtement bois ou dérivés :

ProduitEssenceProvenances (lieu de croissance du bois)Marque et certification produitFinitionTraitements de préservation
Lame bois massifChâtaignierBretagnePEFCAucune finitionAucun traitement

Revêtement minéral :

Produit
Autres

Menuiserie intérieure et extérieure

Isolation des murs

Isolation intérieure des murs :

Produit
Laine de verre
Epaisseur (mm) Isolation intérieure des murs : 100

Isolation entre-montant des murs :

Produit
Laine de verre
Epaisseur (mm) Isolation entre-montant des murs : 150

Isolation de la toiture

Epaisseur (mm) Isolation intérieure de la toiture : 80
Epaisseur (mm) Isolation entre-montant de la toiture : 320

Approche environnementale : Les choix de composition et d'implantation dans le site participent à l'approche environnementale globale. La plupart des logements profitent ainsi d’une double ou d’une triple exposition avec un espace extérieur généreux exposé au Sud. Les larges ouvertures permettent à la fois d'offrir un confort visuel et lumineux mais participent également à la conception environnementale du projet en profitant des apports solaires gratuits. Du point de vue énergétique, le projet atteint un niveau passif (sans recherche de label). La plupart des logements sont traversants.

Descriptif technique : Du point de vue de la structure, il se compose d'une structure béton optimisée (plancher et poteaux) et d'une enveloppe "mur manteau" constituée de façades à ossature bois et d'une charpente. Le projet est revêtu d'une essence feuillu locale, le châtaignier. Les terrasses sont revêtues de lames bois en pin. Du point de vue énergétique, les logements profitent d'une ventilation double-flux, l'eau chaude est produite par capteurs solaires.

Performance du bâtiment (Cep en kWhep/m²/an) : 31
Chauffage au Bois : non
Certifications, labels et marques bâtiment : Aucun
Données déclaratives

Acteurs du projet

Maître d'ouvrage (1)

Maître d'ouvrage - Bailleur social privé

SECIB PROMOTION (SECIB) (35)

Etudes et ingénieries (4)

Maître d'œuvre - Architecte mandataire

ARCHITECTURE PLURIELLE (35)

Bureau d'études structure bois

OUEST STRUCTURES (35)

Bureau d'études thermique

Thalem Ingénierie (35)

Economiste

ARCHITECTURE PLURIELLE (35)

Fournisseurs du bois (1)

Scierie

RAHUELBOIS (35)




* : L'entreprise n'est plus active
Retour à la liste