Apprendre – se divertir

Gymnase de Beauregard

35000 RENNES - Ille et Vilaine - Bretagne

BÂTIMENT / LOGEMENT

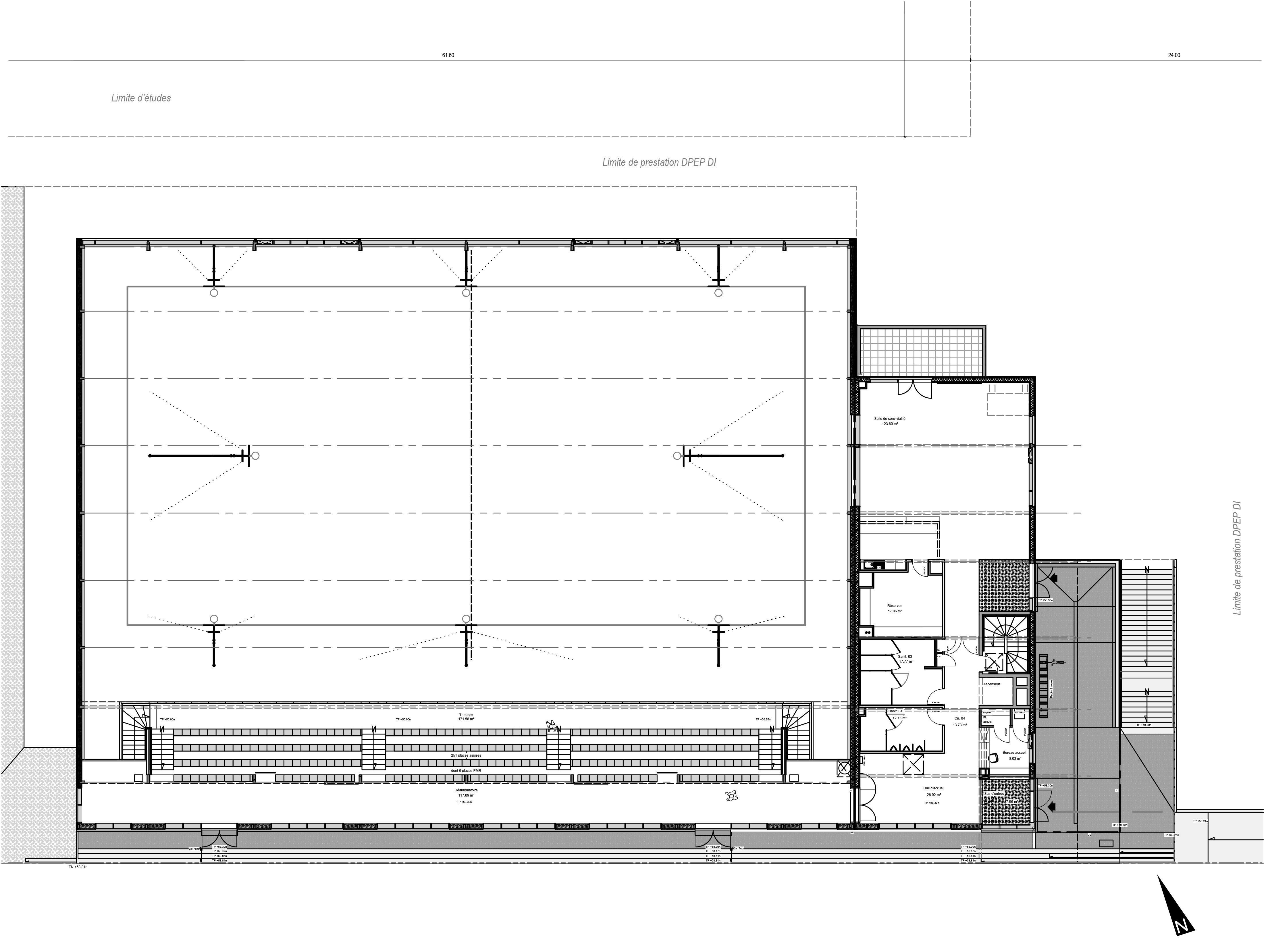
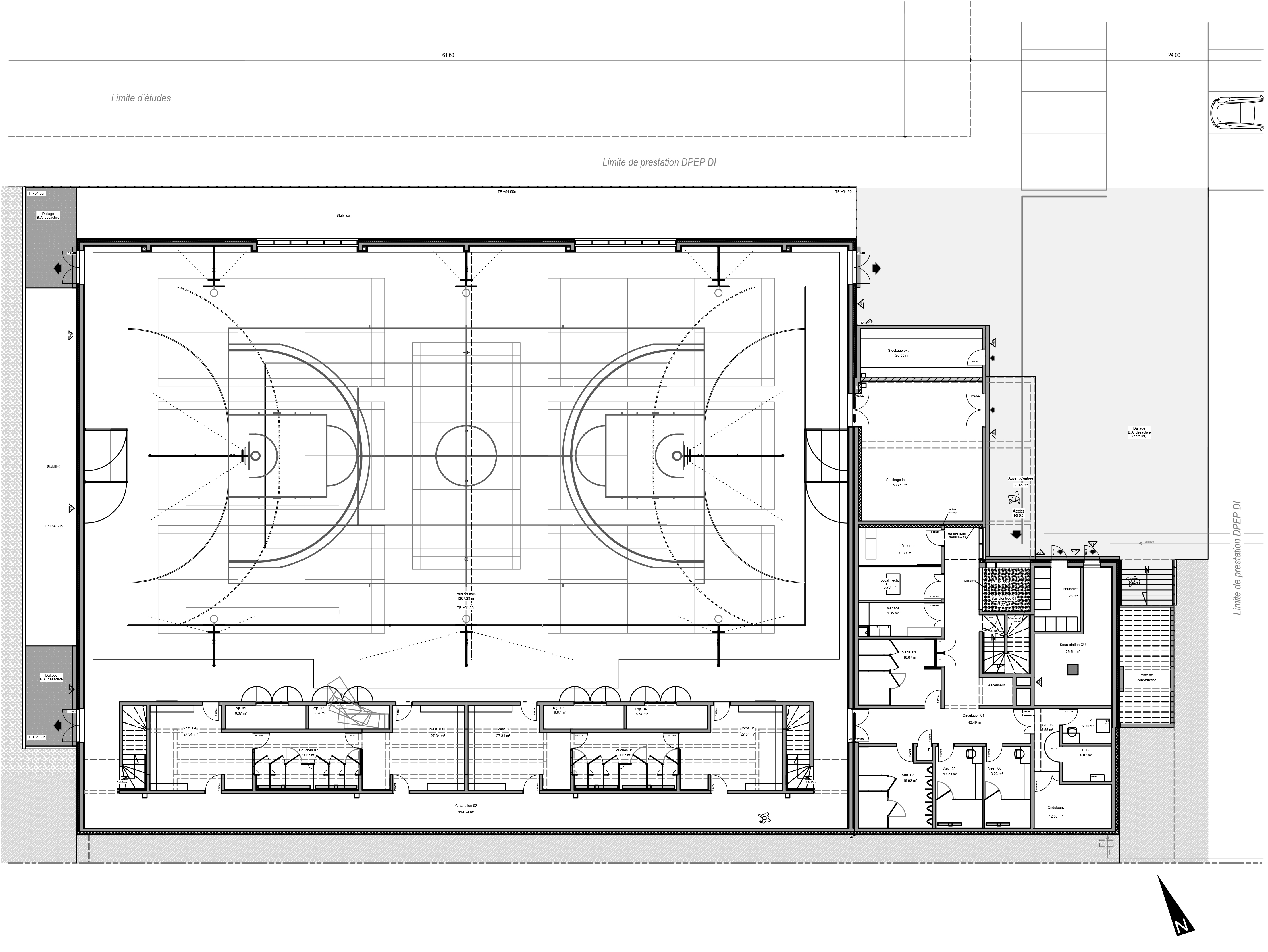
Le gymnase de Beauregard se présente sous la forme d'un assemblage de différents volumes distincts en termes de traitement et en fonction de leur usage venant s'additionner les uns aux autres dans un tout pour accompagner la progression dans les différents niveaux du site. Une architecture faite de la juxtaposition et de l'imbrication de différents volumes, créant des espaces couverts, ouverts, des redans et des saillies. Ainsi, le gymnase possède plusieurs niveaux de lecture et sa composition globale se veut la plus harmonieuse possible afin d'affirmer son identité publique dans le quartier.

Catégorie Bâtiment / logement
Numéro de projet7670
Adresse du projet Avenue André Malraux
35000 RENNES
Date de candidature21/02/2023

Bâtiment / logement

Détail projet

Typologie de bâtiment : Neuf
Type de bâtiment : Sport
Année de livraison : 2022
Surface totale du bâtiment en m² : 2350
Dont extension / surélévation en m² : -1
Coût total en € HT (hors foncier, hors VRD, hors honoraires) : 3612457
Volume lot bois n°1 - m³ : 240
Coût du lot bois n°1 - € HT : 677424
Bois Français : non
Matériaux issus du ré-emploi (préciser dans le descriptif technique) : non
Isolations biosourcées (préciser dans le descriptif technique) : oui
Matériaux géosourcés (préciser dans le descriptif technique) : oui
Finitions intéreures biosourcées ou géosourcées (préciser dans le descriptif technique) : oui

Structure bois du bâtiment

Structure verticale :

ProduitEssenceProvenances (lieu de croissance du bois)Traitements de préservationMarque et certification produit
Panneau ossature boisTempéréEuropeTraitement Classe 2 (trempage)Je n'ai pas l'information

Structure horizontale :

ProduitEssenceProvenances (lieu de croissance du bois)Traitements de préservationMarque et certification produit
Plancher béton

Charpente :

ProduitEssenceProvenances (lieu de croissance du bois)Traitements de préservationMarque et certification produit
Charpente bois lamellé-colléTempéréEuropeTraitement Classe 2 (trempage)Je n'ai pas l'information

Revêtement bois extérieur

Revêtement bois ou dérivés :

ProduitEssenceProvenances (lieu de croissance du bois)Marque et certification produitFinitionTraitements de préservation
Lame bois massifTempéréEuropeJe n'ai pas l'informationAucune finitionAucun traitement

Revêtement minéral :

Produit
Enduit terre
Autres

Autre revêtement métallique :

Produit
Zinc

Menuiserie intérieure et extérieure

Isolation des murs

Isolation intérieure des murs :

Produit
Laine de verre
Epaisseur (mm) Isolation intérieure des murs : 50

Isolation entre-montant des murs :

Produit
Epaisseur (mm) Isolation entre-montant des murs : 110

Isolation extérieure des murs :

Produit
Fibre de bois (Panneaux)
Epaisseur (mm) Isolation extérieure des murs : 100

Isolation de la toiture

Epaisseur (mm) Isolation intérieure de la toiture : 100
Epaisseur (mm) Isolation extérieure de la toiture : 200

Approche environnementale : La Ville de Rennes avait le souhait de réaliser un bâtiment simple, pérenne, fonctionnel, intégrant pleinement l’exemplarité énergétique et la réduction de ses impacts environnementaux. En cela, la collectivité avait fixé l'objectif de répondre à un niveau E3 C1. Ainsi, l'équipe de maîtrise d'œuvre a privilégié une conception bioclimatique, l'usage important de matériaux biosourcés et la réduction des déchets issus de la construction, dans un souci de Haute Performance Énergétique (HPE). Tout cela a permis d’atteindre l’objectif fixé au programme, voire même d’être proche d’un niveau E3 C2.

Descriptif technique : Bâtiment composé d'un terrain de sport couvert par une charpente en bois lamellé collé de type pendulaire et de locaux accueil composés de murs à ossature bois et d'une charpente en bois lamellé collé. les façades sont isolées en ouate de cellulose insufflée dans les cavités. un complément d'isolant de type ITE en panneau de fibre de bois a été mis en œuvre sur les façades de l'aire de jeu. La façade sud du bâtiment a quant à elle été réalisé en terre issu du terrain construit. La finition intérieure et extérieure de cette façade est également traité en terre. La vêture extérieure du bâtiment est composé de bardage en lame de bois douglas posé à la verticale, de bardage en zinc ainsi que d'une enseigne en verre issu de bouteilles de verre recyclées.

Performance du bâtiment (Cep en kWhep/m²/an) : 48.20
Ic construction - Impact Environnemental de la Construction (kg éq CO2/m² de SHAB ou SU) : 1087.19
Chauffage au Bois : non
Données déclaratives

Acteurs du projet

Maître d'ouvrage (1)

Maître d'ouvrage - État ou collectivité (locale et territ)

VILLE DE RENNES (35)

Etudes et ingénieries (3)

Maître d'œuvre - Architecte mandataire

VILLE DE RENNES (35)

Bureau d'études structure bois

QSB – Lannion (22)

Bureau d'études thermique

BEE + MESURES (35) *

Entreprises des lots bois (1)

Charpentier

Sas Belliard - Groupe LB (53)




* : L'entreprise n'est plus active
Retour à la liste