Habiter ensemble
Habiter ensemble

Embellies

44220 COUERON - Loire Atlantique - Pays de la Loire

BÂTIMENT / LOGEMENT

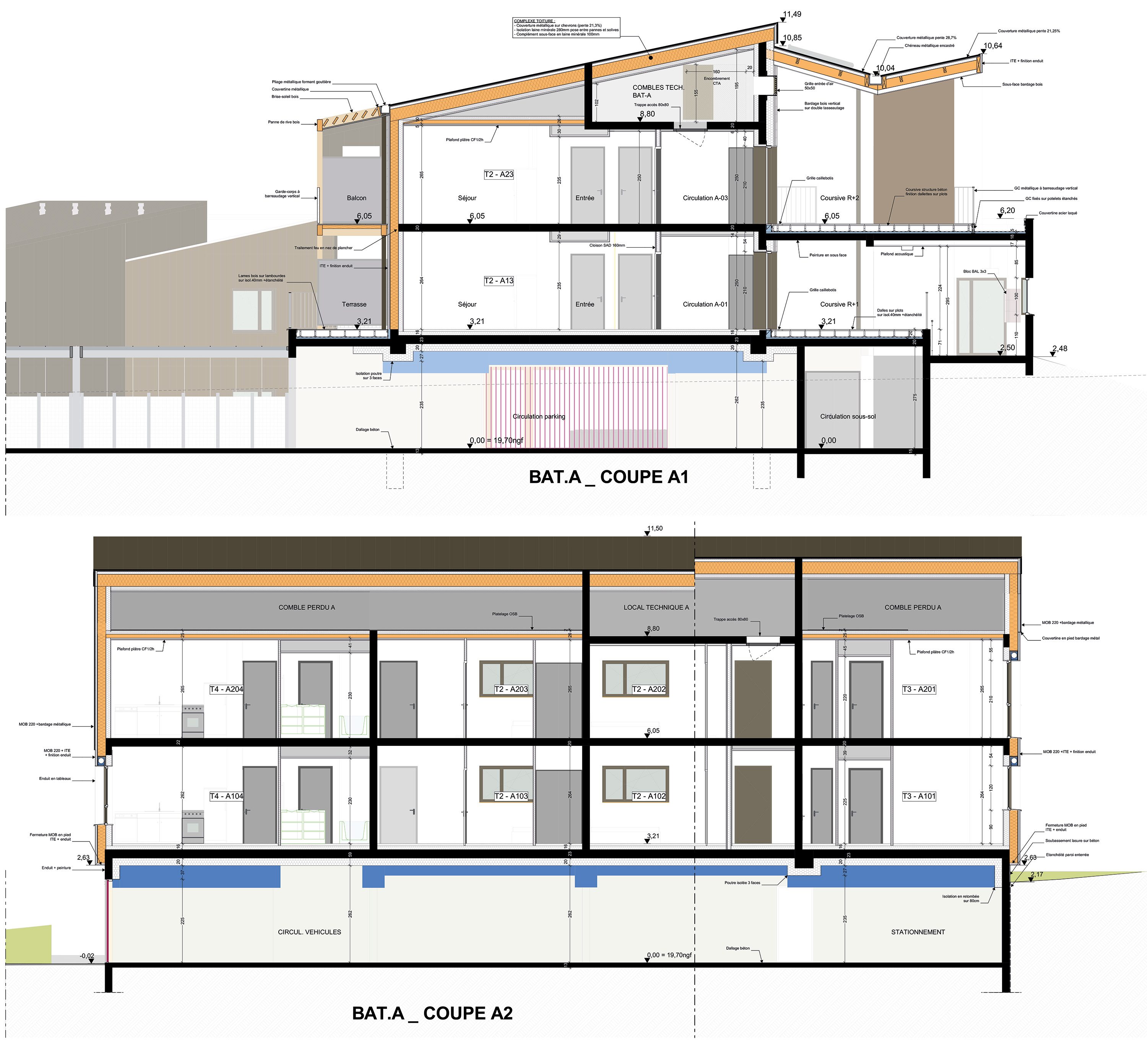
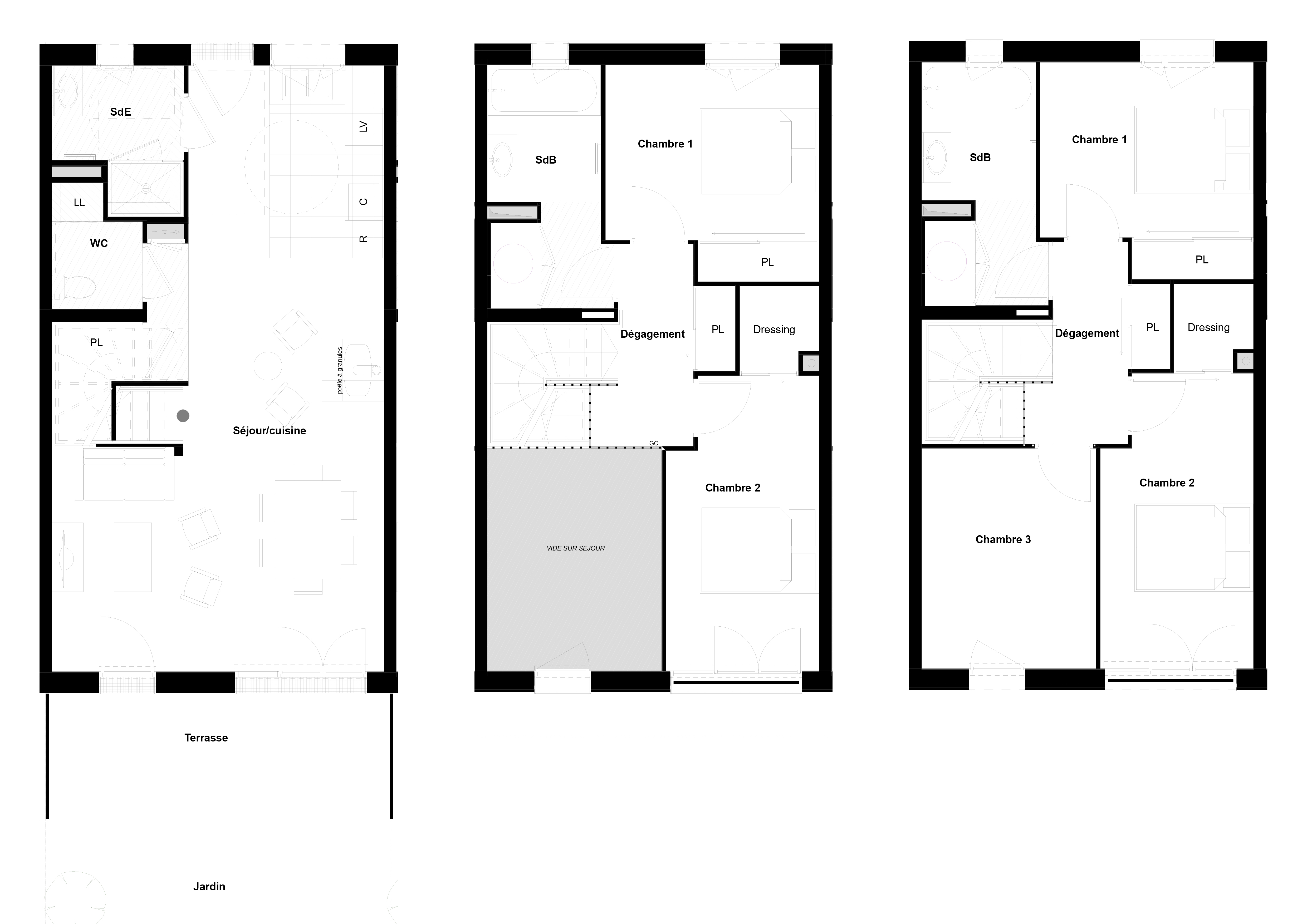
Embellie, ZAC Maisonneuve, Couëron (44) Construction de 30 logements collectifs Passivhaus et 8 maisons individuelles groupées bois (E2C2 pour les maisons individuelles évolutives). Aménagement du cœur d’îlot avec jardins partagés et serre commune Les logements collectifs se développent perpendiculairement au boulevard de l’océan, suspendus au-dessus d’une nappe de stationnement en trois volumes distincts orientés vers le sud. Les maisons se développent en R+1 afin d’optimiser leur compacité, permettre une évolutivité et répondre aux objectifs thermiques.

Catégorie Bâtiment / logement
Numéro de projet7592
Adresse du projet 44220 COUERON
Date de candidature16/02/2023

Bâtiment / logement

Détail projet

Typologie de bâtiment : Neuf
Type de bâtiment : Logement collectif
Année de livraison : 2022
Surface totale du bâtiment en m² : 2623
Coût total en € HT (hors foncier, hors VRD, hors honoraires) : 4979000
Lot bois n°1 concerné : Charpente bois,Bardage bois,ossature bois
Bois Français : oui
Matériaux issus du ré-emploi (préciser dans le descriptif technique) : non
Isolations biosourcées (préciser dans le descriptif technique) : oui
Matériaux géosourcés (préciser dans le descriptif technique) : non
Finitions intéreures biosourcées ou géosourcées (préciser dans le descriptif technique) : non

Structure bois du bâtiment

Structure verticale :

ProduitEssenceProvenances (lieu de croissance du bois)Traitements de préservationMarque et certification produit
Panneau ossature boisÉpicéa communEurope

Structure horizontale :

ProduitEssenceProvenances (lieu de croissance du bois)Traitements de préservationMarque et certification produit
Plancher béton

Charpente :

ProduitEssenceProvenances (lieu de croissance du bois)Traitements de préservationMarque et certification produit
Charpente bois lamellé-collé, Charpente traditionnelleÉpicéa communEurope

Revêtement bois extérieur

Revêtement bois ou dérivés :

ProduitEssenceProvenances (lieu de croissance du bois)Marque et certification produitFinitionTraitements de préservation
Bardeau boisDouglasFrance

Revêtement minéral :

Produit
Enduit ciment

Autre revêtement métallique :

Produit
Acier

Menuiserie intérieure et extérieure

Isolation des murs

Isolation intérieure des murs :

Produit
Laine de roche
Laine de verre

Isolation entre-montant des murs :

Produit
Laine de verre

Isolation extérieure des murs :

Produit
Laine de verre

Isolation de la toiture

Epaisseur (mm) Isolation intérieure de la toiture : 100
Epaisseur (mm) Isolation entre-montant de la toiture : 280

Approche environnementale : Conception dans la visée d'un E2C2 et labelisation Passivhaus. Construction mixte bois/béton avec mise en oeuvre de façades ossature bois préfabriquées. Energies : 3 Chaufferies collectives pour les collectifs et ventilation double flux, Pour les maisons individuelles : poêle granulé + chauffage électrique + ballon thermodynamique et VMC simple flux. Démarche paysagère avec protection de la zone humide, continuité du corridor écologique et création coeur d'ilot partagé avec potagers, serres et jardins privatifs.

Descriptif technique : - Composition mur manteau > MOB Pour les maisons individuelles : Ossature bois massif 145mm + 145 mm laine de verre incorporé 80 mm laine de verre + plaque de plâtre en intérieur Revêtement bardage bois ORLO Pour les logements collectifs : Ossature bois massif 220mm + 220mm laine de verre incorporé 120 mm laine de verre + plaque de plâtre intérieur 40 mm de laine de bois + RPE ou Revêtement bardage bois ORLO - Balcons : lame bois, platelages bois sur lambourdes sur plots ou directement sur ossature des balcons en bois - Plancher intermédiaire maisons individuelles et combles perdus logements collectifs : solivage bois OSB + résilient phaltex + OSB 18mm + Chape et rvt (pour les maisons) ou en béton pour les collectifs - Menuiseries intérieures : menuiseries intérieures bois

Chauffage au Bois : oui
Appareil de chauffage au bois : Poële/insert
Certifications, labels et marques bâtiment : Neuf
Données déclaratives

Acteurs du projet

Maître d'ouvrage (1)

Maître d'ouvrage - Promoteurs immobiliers privés

Réalités Maitrise D'Ouvrage (44)

Etudes et ingénieries (4)

Maître d'œuvre - Architecte mandataire

PADW (44)

Bureau d'études structure bois

Iba Ingénierie Du Bâtiment (44)

Bureau d'études environnement

Pouget Consultants (44)

Paysagiste

Zéphyr paysage (44)

Entreprises des lots bois (2)

Menuisier

Agasse Thierry (44)

Constructeur bois

Boisboréal (85)




* : L'entreprise n'est plus active
Retour à la liste