Habiter ensemble
Habiter ensemble

miscanthus

44640 Saint-Jean-de Boiseau - Loire Atlantique - Pays de la Loire
Lauréat régional

BÂTIMENT / LOGEMENT

L'architecture, l'organisation des espaces, la qualité des ambiances, les limites entre espace partagé et espace privé, la diversité des cheminements pour accéder à chaque logement, l'hybridation entre l'intériorité et l'extériorité, l'inscription dans une forme forte face à la prolifération pavillonnaire environnante, la mise en œuvre dans un registre épuré et réglé des matériaux, définissent les conditions pour habiter le lieu avec subjectivité, mesure et attention. Le projet instaure une forme architecturale qui appelle l'extraordinaire dans l'ordinaire, une nature humanisée et sensible.

Catégorie Bâtiment / logement
Numéro de projet705
Adresse du projet les pierres blanches
44640 Saint-Jean-de Boiseau
Date de candidature30/03/2018

Bâtiment / logement

Détail projet

Typologie de bâtiment : Neuf
Type de bâtiment : Logement collectif
Année de livraison : 2017
Surface totale du bâtiment en m² : 2805
Coût total en € HT (hors foncier, hors VRD, hors honoraires) : 3359067
Lot bois n°1 concerné : Charpente bois
Coût du lot bois n°1 - € HT : 139675
Lot bois n°2 concerné : Bardage bois
Coût du lot bois n°2 - € HT : 172871
Bois Français : non

Structure bois du bâtiment

Structure verticale :

ProduitEssenceProvenances (lieu de croissance du bois)Traitements de préservationMarque et certification produit
Panneau ossature boisSapin pectinéEuropeTraitement Classe 2 (trempage)

Structure horizontale :

ProduitEssenceProvenances (lieu de croissance du bois)Traitements de préservationMarque et certification produit
Plancher béton

Charpente :

ProduitEssenceProvenances (lieu de croissance du bois)Traitements de préservationMarque et certification produit
Charpente bois lamellé-colléSapin pectinéEuropeTraitement Classe 2 (trempage)

Revêtement bois extérieur

Revêtement bois ou dérivés :

ProduitEssenceProvenances (lieu de croissance du bois)Marque et certification produitFinitionTraitements de préservation
Lame bois lamellé-collé ou aboutéHêtreBourgogne-Franche-ComtéAucune finitionTraitement par haute température (THT, rétification)

Revêtement minéral :

Produit
Autres

Menuiserie intérieure et extérieure

Isolation des murs

Isolation intérieure des murs :

Produit
Laine de roche
Epaisseur (mm) Isolation intérieure des murs : 210

Isolation entre-montant des murs :

Produit
Laine de roche
Epaisseur (mm) Isolation entre-montant des murs : 150

Isolation extérieure des murs :

Produit
Laine de roche

Isolation de la toiture

Epaisseur (mm) Isolation intérieure de la toiture : 80
Epaisseur (mm) Isolation extérieure de la toiture : 300

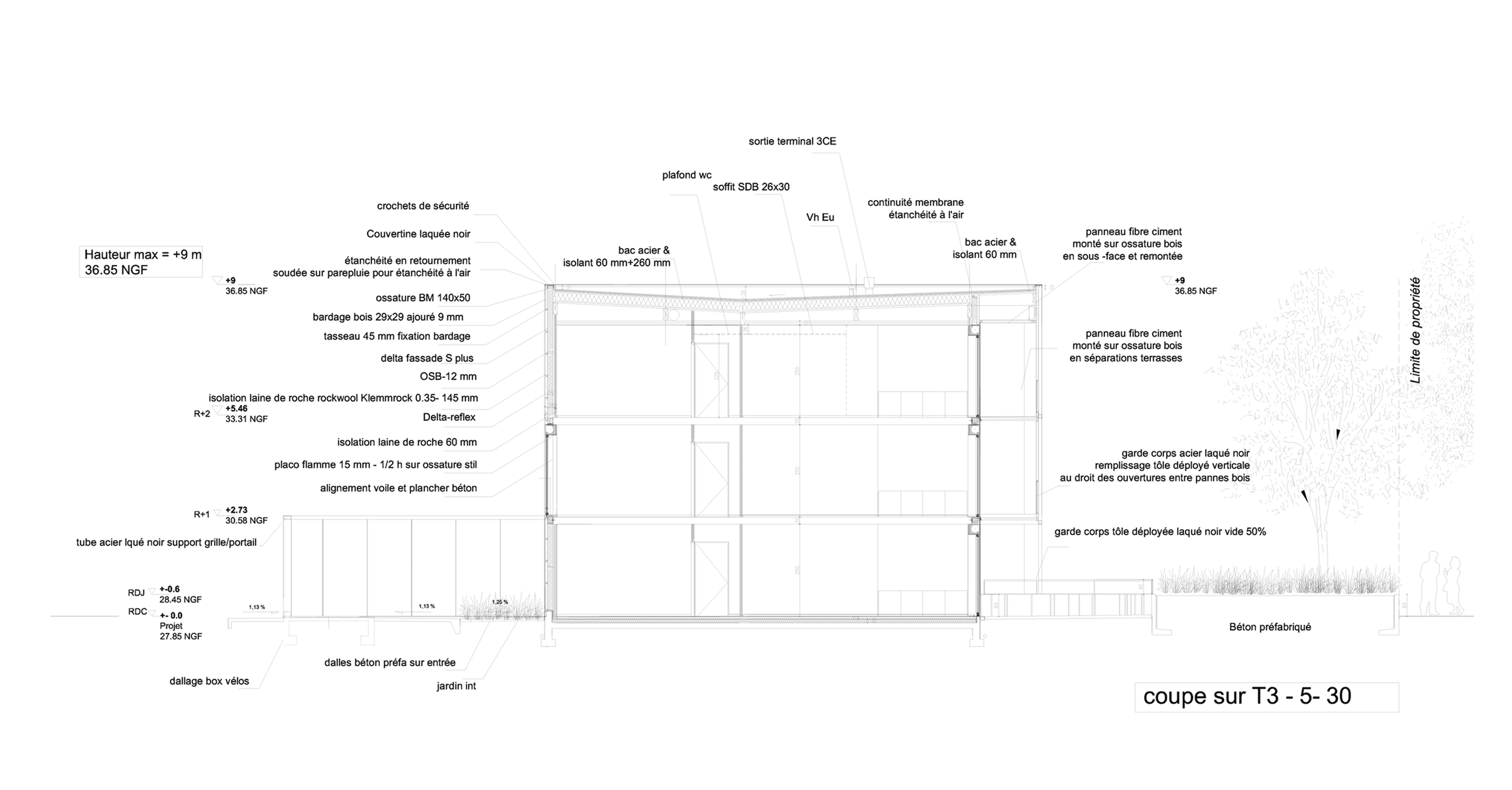
Approche environnementale : La terre végétale a été conservée pour créer des jardins surélevés accueillant une biodiversité augmentée. Les logements traversant et le système structurel offrent un confort hygrothermique important. Les bâtiments en R+2 sans ascenseur, favorisent l’inscription dans l’environnement, limitent les masques solaires et réduisent les charges. Les toitures végétalisées contribuent à l’hydraulique douce. Pour minimiser la maintenance, aucun équipement technique n’est en toiture. La peau extérieure du bâtiment en lattis de hêtre thermo-chauffé contribue à inscrire le projet en classe bas carbone.

Descriptif technique : Le système structurel est constitué de voile béton en refends et planchers, de murs à ossature bois en façades, d'une charpente bois, d'un bac acier, d'une isolation rapportée et d'une membrane d'étanchéité avec sédum sur RDC. Trois matériaux extérieurs caractérisent le projet dans son rapport au sol. Le béton brut en sous bassement, les plaques minérales teintées dans la masse sur les RDC, le lattis bois vertical en R+1 & R+2. Le bardage en Hêtre abouté de petite section 29x29 est thermo-chauffé à haute température. Constitué de panneaux assemblés sur chantier, aucune fixation n’est visible. NF Logement Démarche HQE

Chauffage au Bois : non
Certifications, labels et marques bâtiment : Aucun,Bois de France
Données déclaratives

Acteurs du projet

Maître d'ouvrage (1)

Autres

La Nantaise d'Habitations (Lnh) (44)

Etudes et ingénieries (3)

Maître d'œuvre - Architecte mandataire

ARCATURE (17)

Bureau d'études structure bois

Ects - Novam Ingenierie (44)

Bureau d'études thermique

Isocrate (44)

Entreprises des lots bois (1)

Charpentier

CMBS - CHARPENTE MENUISERIE BRETAGNE SUD (56)




* : L'entreprise n'est plus active
Retour à la liste