Apprendre – se divertir
Apprendre – se divertir

IME La Flèche

72200 La Flèche - Sarthe - Pays de la Loire

BÂTIMENT / LOGEMENT

Le projet s’appuie sur le principe de prise en charge holistique (accompagnement global) des enfants. Cet IME pour 70 jeunes, a été pensé comme un tout, réparti en 6 bâtiments. Ils sont organisés autour d’une place piétonne, aménagée en jardin intérieur, qui fédère tous les flux piétons et offre un cadre sécurisant et joyeux : couleur, végétation, lumière. Les façades périphériques forment une carapace protectrice en acier, animée par des touches de couleurs. Au cœur, les façades en bardage bois donnent à l’espace central une ambiance accueillante et chaleureuse.

Catégorie Bâtiment / logement
Numéro de projet6867
Adresse du projet Rue de l'Angebaudière
72200 La Flèche
Date de candidature25/02/2022

Bâtiment / logement

Détail projet

Typologie de bâtiment : Neuf
Type de bâtiment : Enseignement ou éducation
Année de livraison : 2019
Surface totale du bâtiment en m² : 2581
Coût total en € HT (hors foncier, hors VRD, hors honoraires) : 4422007
Lot bois n°1 concerné : Charpente bois,Bardage bois,ossature bois
Volume lot bois n°1 - m³ : 235
Coût du lot bois n°1 - € HT : 603865
Bois Français : non
Isolations biosourcées (préciser dans le descriptif technique) : non
Matériaux géosourcés (préciser dans le descriptif technique) : non
Finitions intéreures biosourcées ou géosourcées (préciser dans le descriptif technique) : non

Structure bois du bâtiment

Structure verticale :

ProduitEssenceProvenances (lieu de croissance du bois)Traitements de préservationMarque et certification produit
Panneau ossature bois

Structure horizontale :

ProduitEssenceProvenances (lieu de croissance du bois)Traitements de préservationMarque et certification produit
Non précisé

Charpente :

ProduitEssenceProvenances (lieu de croissance du bois)Traitements de préservationMarque et certification produit
Charpente traditionnelle

Revêtement bois extérieur

Revêtement bois ou dérivés :

ProduitEssenceProvenances (lieu de croissance du bois)Marque et certification produitFinitionTraitements de préservation
Lame bois massif, Panneau de synthèse ou composite

Autre revêtement métallique :

Produit
Acier

Menuiserie intérieure et extérieure

Isolation des murs

Isolation intérieure des murs :

Produit
Laine de verre
Epaisseur (mm) Isolation intérieure des murs : 60
Epaisseur (mm) Isolation entre-montant des murs : 145
Epaisseur (mm) Isolation extérieure des murs : 60

Isolation de la toiture

Epaisseur (mm) Isolation intérieure de la toiture : 300

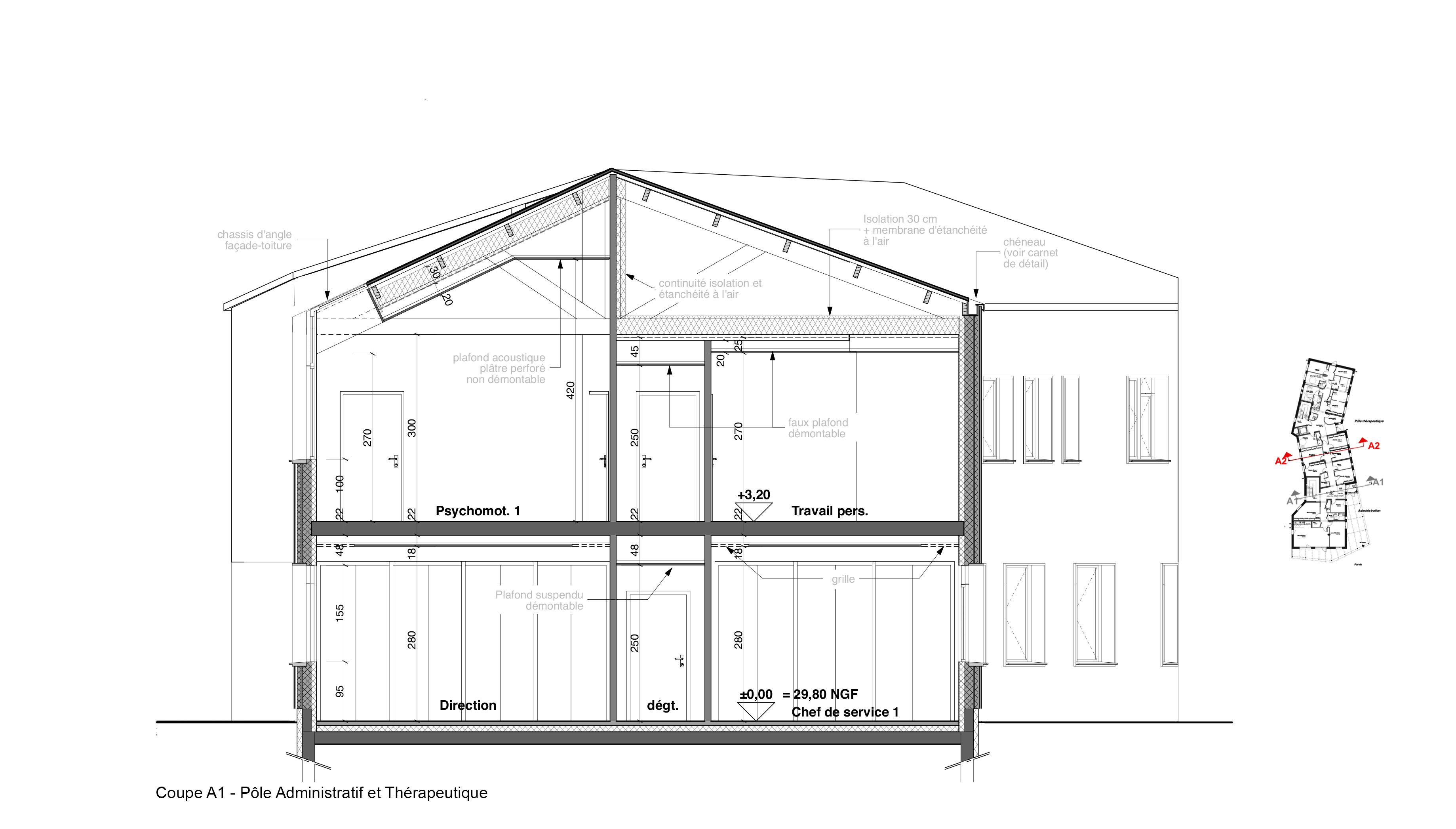
Approche environnementale : Conformes à la RT2012, ces bâtiments compacts bénéficient d’une isolation et étanchéité à l'air performante. La charpente et les façades ossature bois sont conjuguées à l’inertie d’une structure béton (poteaux poutres et refends). L’attention a été portée sur la lumière naturelle, pour une qualité d’ambiance en toute saison. Le bardage bois a été lasuré par l’entreprise adaptée « Les Ateliers du verger » située toute proche, au Bailleul. La chaufferie a été conçue sur un système géothermie eau-eau sur nappe phréatique.

Descriptif technique : Charpente bois traditionnelle. Façades ossature bois. Structure béton : poteau-poutre, refends et plancher intermédiaire. Couverture acier à joint debout. Isolation extérieure + bardage bois faux-claire-voir lasuré gris clair. / composite / acier à joint debout. Menuiseries extérieures aluminium. Isolation intérieure laine de verre et cloisonnement traditionnel. Menuiseries intérieures bois.

Chauffage au Bois : non
Données déclaratives

Acteurs du projet

Maître d'ouvrage (1)

Autres

ADAPEI DE LA SARTHE (72)

Etudes et ingénieries (4)

Maître d'œuvre - Architecte mandataire

Pharo (72)

Bureau d'études thermique

Blin Ingénierie (72)

Economiste

Carré D'Aire - Bouttier & Associés (72)

Paysagiste

ATELIER HORIZONS (49)

Entreprises des lots bois (2)

Charpentier

Charpente Cénomane Sarl (72)

Menuisier

SOCIETE NOUVELLE SARTOR (72)




* : L'entreprise n'est plus active
Retour à la liste