Habiter ensemble
Habiter ensemble

Logements Jaurès Petit

75019 Paris - Paris - Ile de France

BÂTIMENT / LOGEMENT

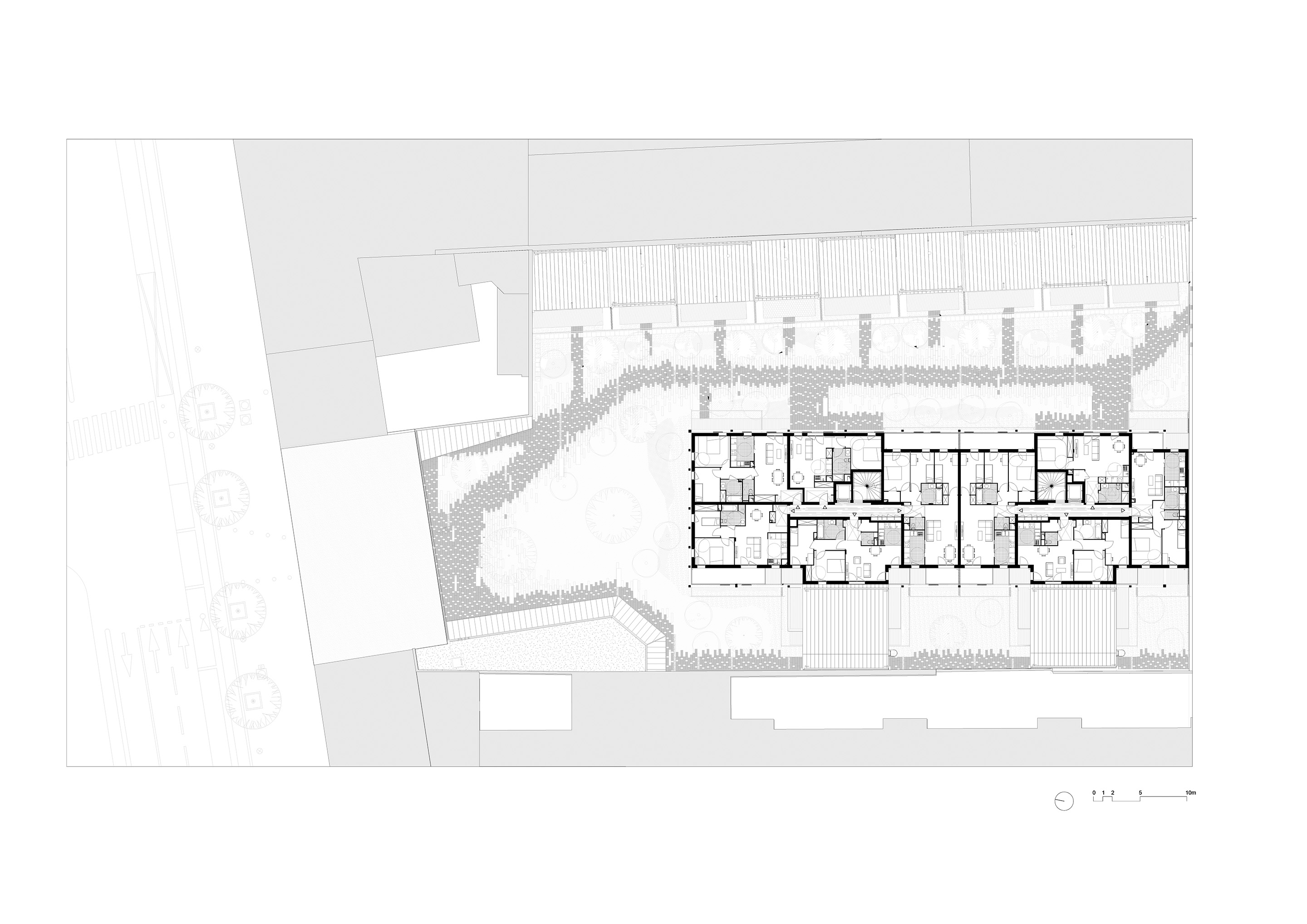
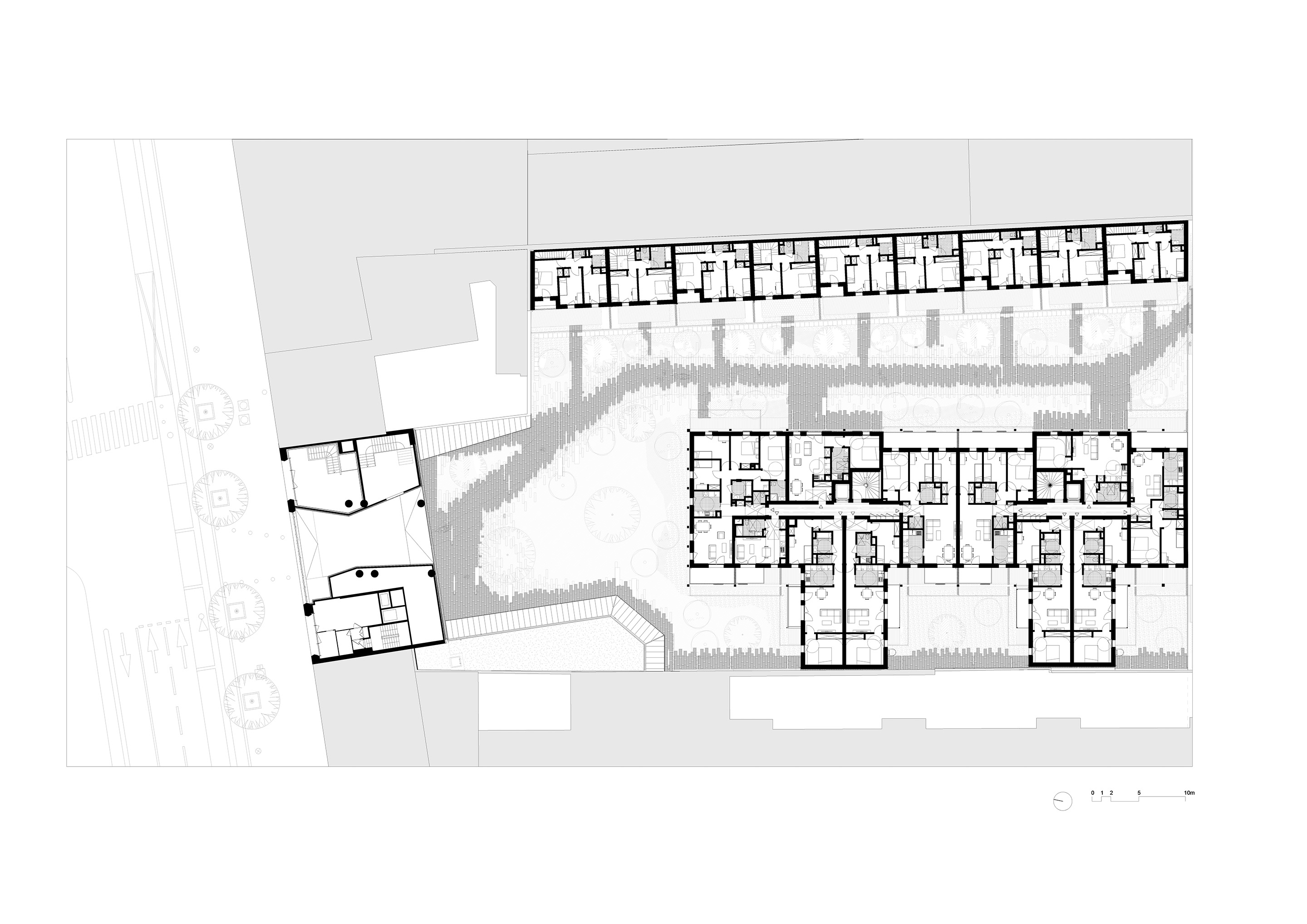
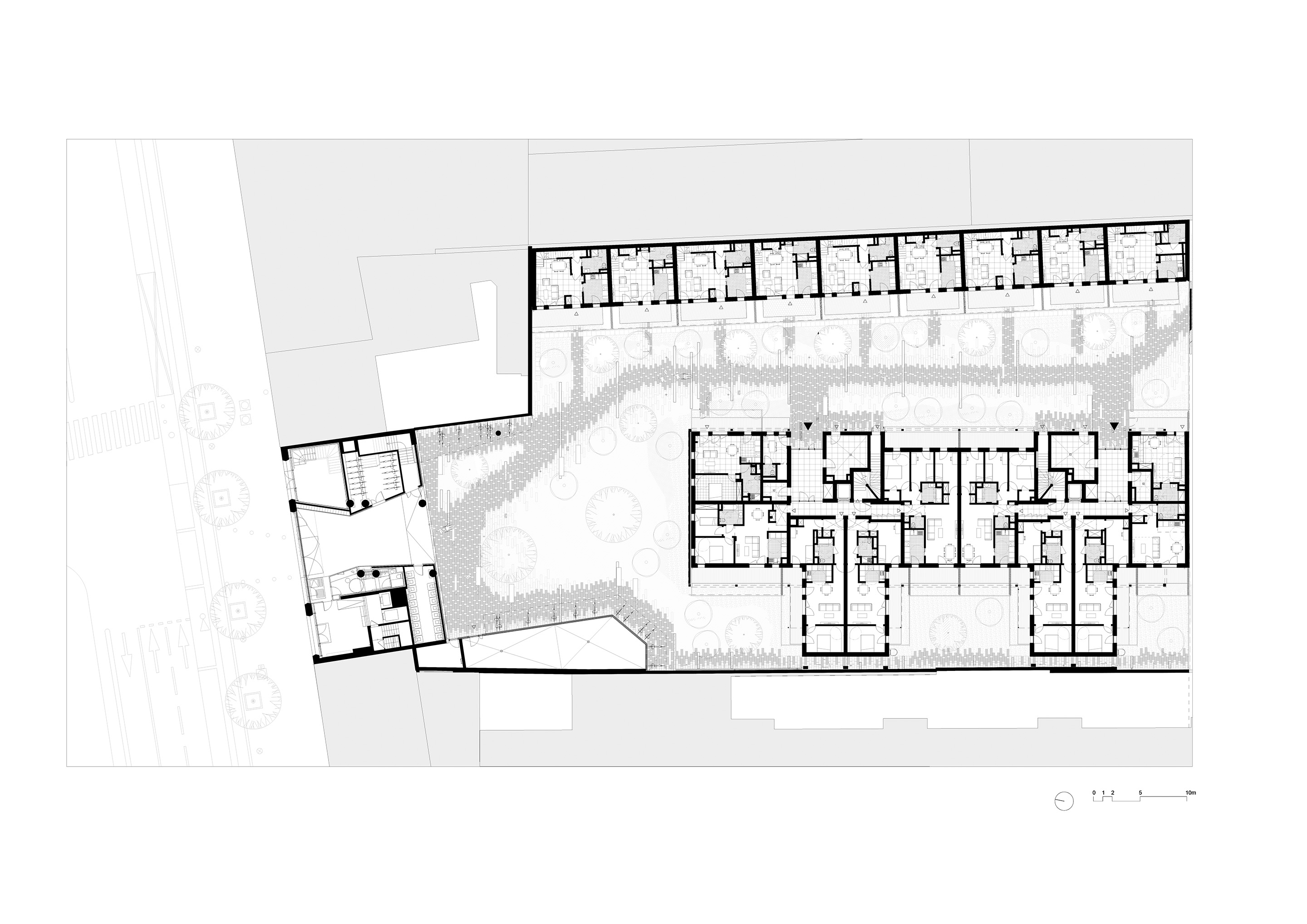
Situé sur une parcelle de cœur d’îlot occupé auparavant par un parking béton à R+8, le projet de logements sociaux se déploie entre 74 logements collectifs et des maisons de ville en structure bois. Le projet est guidé par l’amélioration du bâti préexistant. L’implantation des bâtiments, perpendiculaires aux bâtiments de tête offre le maximum de percées visuelles. En conservant les traces du bâtiment existant, le projet lie le quartier à l’essence de sa constitution. Le bâtiment reprend les codes du bâti ancien avec une trame visible en bois qui fait office de support des balcons.

Catégorie Bâtiment / logement
Numéro de projet6866
Adresse du projet 186 avenue Jean Jaurès
75019 Paris
Date de candidature25/02/2022

Bâtiment / logement

Détail projet

Typologie de bâtiment : Neuf
Type de bâtiment : Logement collectif
Année de livraison : 2021
Surface totale du bâtiment en m² : 4874
Coût total en € HT (hors foncier, hors VRD, hors honoraires) : 10731416
Volume lot bois n°1 - m³ : 1636
Bois Français : non
Isolations biosourcées (préciser dans le descriptif technique) : non
Matériaux géosourcés (préciser dans le descriptif technique) : non
Finitions intéreures biosourcées ou géosourcées (préciser dans le descriptif technique) : non

Structure bois du bâtiment

Structure verticale :

ProduitEssenceProvenances (lieu de croissance du bois)Traitements de préservationMarque et certification produit
Poteau poutreÉpicéa communEurope
Panneau ossature boisÉpicéa communFrance

Structure horizontale :

ProduitEssenceProvenances (lieu de croissance du bois)Traitements de préservationMarque et certification produit
Panneau de bois massif (CLT collé ou CLT cloué)Épicéa communEurope

Charpente :

ProduitEssenceProvenances (lieu de croissance du bois)Traitements de préservationMarque et certification produit
Charpente bois lamellé-colléÉpicéa communEurope

Revêtement bois extérieur

Revêtement bois ou dérivés :

ProduitEssenceProvenances (lieu de croissance du bois)Marque et certification produitFinitionTraitements de préservation
Bardeau boisMélèzeEuropepré-grisé

Menuiserie intérieure et extérieure

Menuiserie extérieure :

ProduitEssenceProvenances (lieu de croissance du bois)Marque et certification produitFinition
Menuiserie mixteEurope

Isolation des murs

Isolation de la toiture

Approche environnementale : Avec un parti pris fort et engagé de préservation et de construction écologique à haute qualité environnementale, le projet apporte au site l’ambition d’une architecture de qualité, éthique et durable. Les matériaux utilisés, le bardage bois, et les couvertures revêtues de zinc sont naturels et pérennes. La construction bois permet de diminuer l'empreinte carbone et favorise l’utilisation d’énergies renouvelables, permet de réduire les consommations énergétiques et les nuisances de chantier. Le bois confère une identité chaleureuse et valorisante.

Descriptif technique : Avec une épaisseur de 13m et des trames de 6m, le bâtiment est conçu pour une construction en bois avec des noyaux béton pour les circulations verticales. Nous évitons au maximum les relevés d’étanchéité ou tout autre ouvrage susceptible de fuites. Les terrasses étanchées sont évitées au profit de balcons rapportés. Les toitures sont couvertes de zinc et les débords de bâti se superposent. La volonté de mettre en avant le matériau bois se retrouve également au cœur des logements dans lesquels nous avons fait le choix de laisser le CLT visible dans les pièces sèches, comme un manifeste. PEFC (Gestion forestière durable) NF Logement Démarche HQE

Performance du bâtiment (Cep en kWhep/m²/an) : 50
Chauffage au Bois : non
Certifications, labels et marques bâtiment : Effinergie
Données déclaratives

Acteurs du projet

Maître d'ouvrage (1)

Maître d'ouvrage - Bailleur social public

PARIS HABITAT (75)

Etudes et ingénieries (8)

Maître d’œuvre - Architecte collaborateur

Archi5 (93)

Bureau d'études acoustique

CAP HORN (75)

Bureau d'études structure bois

EVP INGÉNIERIE (75)

Bureau d'études environnement

ALBERT & CO (93)

Economiste

ATEEC SARL (95)

Autre intervenant de la construction - bureau de contrôle, AMO, BIM...

B52 (06)
ATEVE (75)

Paysagiste

ATELIER ROBERTA (75)

Entreprises des lots bois (3)

Charpentier

ARBONIS (92)

Constructeur bois

ARBONIS (92)

Autre lot de la construction (en lien avec le bois)

GTM Bâtiment (92)

Fournisseurs du bois (3)

Industriel

ARBONIS (92)
Binderholz (DE)
SIVALBP (74)




* : L'entreprise n'est plus active
Retour à la liste