Travailler – accueillir, Habiter ensembleTravailler – accueillir, Habiter ensemble
Travailler – accueillir, Habiter ensemble

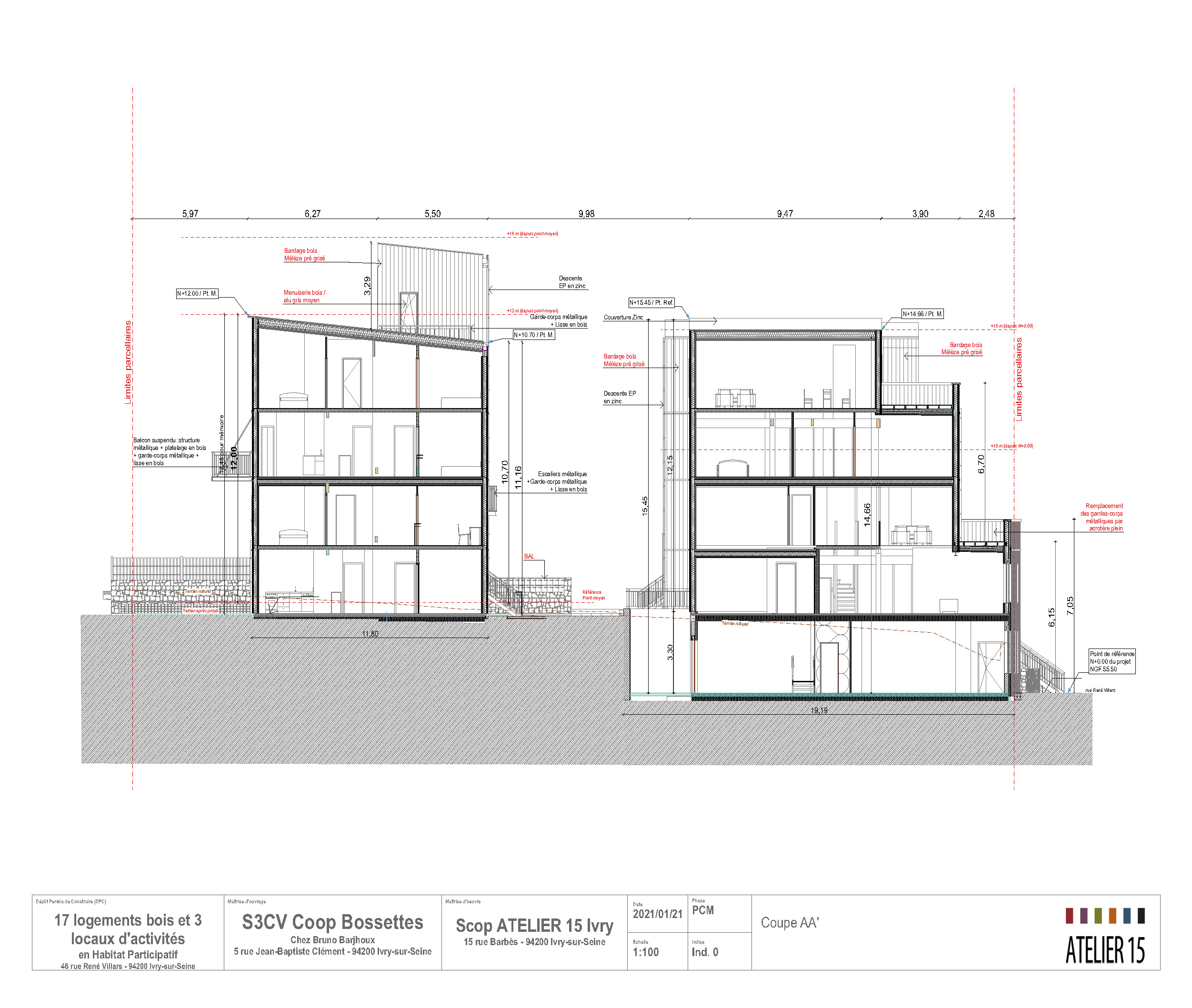
Coop Bossettes - une coopérative en construction bois à Ivry sur Seine

94200 Ivry sur Seine - Val de Marne - Ile de France

BÂTIMENT / LOGEMENT

Dans le futur parc habité Villars, l’association Coop Bossettes a mené un programme mixte habitat-activité, favorisant les mixités programmatique et sociale Le programme, la construction, le chantier comme autant d’espaces, propices à mettre en œuvre une véritable démarche décarbonée autour du bois La mixité programmatique, habiter, travailler, échanger, réduisant les impacts carbones L’hybridation constructive, concilier système préfabriqué bois industrialisé et singularité de la co-conception des logements Le chantier, un moment d’intelligence collective et de négociations ouvertes

Catégorie Bâtiment / logement
Numéro de projet6844
Adresse du projet 42-46 rue René Villars
94200 Ivry sur Seine
Date de candidature23/02/2022

Bâtiment / logement

Détail projet

Typologie de bâtiment : Neuf
Type de bâtiment : Lieu d'entreprise,Logement collectif
Année de livraison : 2021
Surface totale du bâtiment en m² : 2207
Coût total en € HT (hors foncier, hors VRD, hors honoraires) : 3443086
Lot bois n°1 concerné : Charpente bois,Bardage bois,Menuiserie intérieure bois,Menuiserie extérieure bois,ossature bois,Autre lot bois
Volume lot bois n°1 - m³ : 292
Coût du lot bois n°1 - € HT : 2101902
Bois Français : oui
Isolations biosourcées (préciser dans le descriptif technique) : oui
Matériaux géosourcés (préciser dans le descriptif technique) : non
Finitions intéreures biosourcées ou géosourcées (préciser dans le descriptif technique) : oui

Structure bois du bâtiment

Structure verticale :

ProduitEssenceProvenances (lieu de croissance du bois)Traitements de préservationMarque et certification produit
Panneau de bois massif (CLT collé ou CLT cloué), Panneau ossature bois, Poteau poutreÉpicéa communFranceTraitement Classe 2 (trempage)

Structure horizontale :

ProduitEssenceProvenances (lieu de croissance du bois)Traitements de préservationMarque et certification produit
Dalle boisPin maritimeEuropeTraitement Classe 3a (trempage)

Charpente :

ProduitEssenceProvenances (lieu de croissance du bois)Traitements de préservationMarque et certification produit
Caisson de toiture, Panneau massifÉpicéa communFranceTraitement Classe 2 (trempage)

Revêtement bois extérieur

Revêtement bois ou dérivés :

ProduitEssenceProvenances (lieu de croissance du bois)Marque et certification produitFinitionTraitements de préservation
Lame bois massifDouglasFrancepré-griséTraitement Classe 3a (trempage)

Revêtement minéral :

Produit
Brique

Menuiserie intérieure et extérieure

Menuiserie extérieure :

ProduitEssenceProvenances (lieu de croissance du bois)Marque et certification produitFinition
Menuiserie boisMélèzeEuropeSaturateur

Isolation des murs

Isolation intérieure des murs :

Produit
Laine de verre
Epaisseur (mm) Isolation intérieure des murs : 50
Epaisseur (mm) Isolation entre-montant des murs : 170
Epaisseur (mm) Isolation extérieure des murs : 22

Isolation de la toiture

Epaisseur (mm) Isolation intérieure de la toiture : 80
Epaisseur (mm) Isolation entre-montant de la toiture : 240

Approche environnementale : L’ensemble porte une attention à la consommation d’un foncier en zone tendue, et une morphologie bâtie d’immeuble gradin, assurant la compacité de bâtiment passif avec la qualité d’usage des espaces ext. Une densité décarbonée qui renvoie les signes de la maison Un système constructif hybride, visant un niveau Passif Haus et uniquement certifié BBC de par le choix de parois très performantes sous avis technique – Sybois – et d’un chauffage inertique électrique, solution qui est apparue la plus intéressante en termes d’usage et de bâtiment décarbonée mais la moins opérante au calcul RT.

Descriptif technique : Le programme vise le passif sans labellisation Tout bois, la complexité a été de répondre avec un immeuble gradin à la singularité d'un programme en participatif, laquelle nous a amené à entremêler les systèmes constructifs issus des filières sèches : bois et acier. • En filière sèche bois : parois périphériques bois Sybois sous avis technique visant une intégration maximale - menuiserie, PV et PP ainsi que la vêture brique et le bardage bois, refend bois en CLT et portique bois LVL et massif • En filière sèche acier : portique et escalier ext. acier • EN CVC : VMC Double Flux Zenhder

Performance du bâtiment (Cep en kWhep/m²/an) : 65.3
Chauffage au Bois : non
Données déclaratives

Acteurs du projet

Maître d'ouvrage (1)

Maître d'ouvrage - Promoteurs immobiliers privés

S3CV Coop Bossettes (94)

Etudes et ingénieries (3)

Maître d'œuvre - Architecte mandataire

ATELIER 15 IVRY (94)

Bureau d'études structure bois

Ecsb (49)

Autre intervenant de la construction - bureau de contrôle, AMO, BIM...

ATELIER 15 IVRY (94)

Entreprises des lots bois (1)

Charpentier

CONSTRUCTION MILLET BOIS (CMB CHARPENTE) (79)

Fournisseurs du bois (1)

Industriel

SARL SYBOIS (SYBOIS) (79)




* : L'entreprise n'est plus active
Retour à la liste