Apprendre – se divertir, Travailler – accueillir, Réhabiliter un équipementApprendre – se divertir, Travailler – accueillir, Réhabiliter un équipementApprendre – se divertir, Travailler – accueillir, Réhabiliter un équipement
Apprendre – se divertir, Travailler – accueillir, Réhabiliter un équipement

Sainte-Philomène

59000 Lille - Nord - Hauts-de-France
Lauréat régional
Finaliste national

BÂTIMENT / LOGEMENT

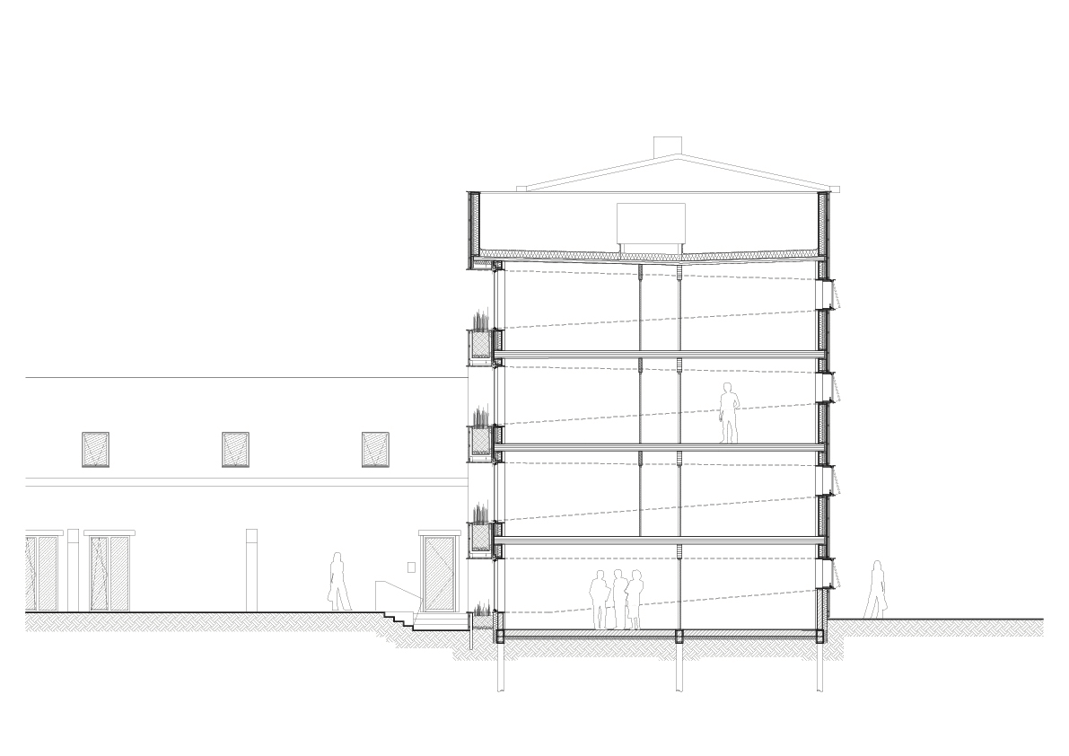
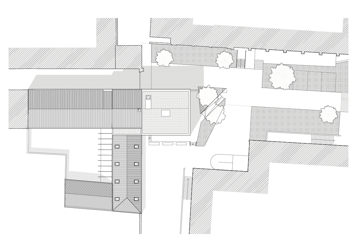
L’immeuble Sainte-Philomène se situe au cœur du campus de l’Université Catholique de Lille, au croisement de flux qui mènent vers différents pôles d'enseignement. Dans un contexte dense, l'extension de l'immeuble administratif revêt une posture délibérément urbaine en se positionnant à la proue du complexe bâti et dans la perspective d'un axe de circulation. Les quatre niveaux du projets marquent des strates par l'alternance de bandeaux de bois et de vitrages dont la géométrie et le positionnement dans l'épaisseur de la façade évoluent en fonction des contextes et de la course du soleil.

Catégorie Bâtiment / logement
Numéro de projet6690
Adresse du projet 3 rue Panckoucke
59000 Lille
Date de candidature03/02/2022
Récompense2ème prix

Bâtiment / logement

Détail projet

Typologie de bâtiment : Neuf,Extension / surélévation
Type de bâtiment : Enseignement ou éducation,Lieu d'entreprise
Année de livraison : 2021
Surface totale du bâtiment en m² : 350
Dont extension / surélévation en m² : 350
Coût total en € HT (hors foncier, hors VRD, hors honoraires) : 992182
Volume lot bois n°1 - m³ : 148
Coût du lot bois n°1 - € HT : 242338.69
Bois Français : non
Isolations biosourcées (préciser dans le descriptif technique) : non
Matériaux géosourcés (préciser dans le descriptif technique) : oui
Finitions intéreures biosourcées ou géosourcées (préciser dans le descriptif technique) : oui

Structure bois du bâtiment

Structure verticale :

ProduitEssenceProvenances (lieu de croissance du bois)Traitements de préservationMarque et certification produit
Panneau de bois massif (CLT collé ou CLT cloué)Épicéa communEuropeTraitement Classe 4 (autoclave)
Panneau ossature boisÉpicéa communFranceTraitement Classe 4 (autoclave)

Structure horizontale :

ProduitEssenceProvenances (lieu de croissance du bois)Traitements de préservationMarque et certification produit
Panneau de bois massif (CLT collé ou CLT cloué)Épicéa communEuropeTraitement Classe 3b (autoclave)
Panneau de bois massif (CLT collé ou CLT cloué)Épicéa communEuropeTraitement Classe 4 (autoclave)

Charpente :

ProduitEssenceProvenances (lieu de croissance du bois)Traitements de préservationMarque et certification produit
Non précisé

Revêtement bois extérieur

Revêtement bois ou dérivés :

ProduitEssenceProvenances (lieu de croissance du bois)Marque et certification produitFinitionTraitements de préservation
Lame bois massifDouglasBretagnepré-griséTraitement Classe 3b (autoclave)

Autre revêtement métallique :

Produit
Alu

Menuiserie intérieure et extérieure

Isolation des murs

Isolation intérieure des murs :

Produit
Laine de verre
Epaisseur (mm) Isolation entre-montant des murs : 220

Isolation de la toiture

Epaisseur (mm) Isolation intérieure de la toiture : 200

Approche environnementale : L’extension est entièrement réalisée en bois. L'approche bioclimatique du projet est retranscrite dans le dessin des façades dont les lignes évoluent en fonction de l'orientation du soleil : - minimiser les surfaces vitrées au Nord-Ouest, en limitant la hauteur des menuiseries à 90 cm de haut. - augmenter progressivement les surfaces vitrées au fur et mesure que les façades se tournent vers le sud pour favoriser les apports solaires. - maximiser les surfaces vitrées sur les façades ensoleillées tout en contrôlant les apports par l'adjonction de jardinières suspendues formant brise soleil.

Descriptif technique : Projet principalement réalisée en bois : structure bois apparent, parement extérieur, isolation, menuiseries intérieures. Confort géothermique du RDC semi-enterrés (inertie du sol). Menuiseries extérieures en aluminium anodisé recyclé. Ventilation double-flux. Chauffage urbain (échangeur à plaques en sou-sol). Eaux de pluie récupérées pour alimenter les sanitaires. Gestion Technique du Bâtiment : - Détection des locaux inoccupés (coupure automatique des luminaires), - Détection des fenêtres laissées ouvertes (coupure de la ventilation et du chauffage) - Stores ext. automatisation .

Performance du bâtiment (Cep en kWhep/m²/an) : 39.4
Chauffage au Bois : non
Certifications, labels et marques bâtiment : E + C -,Bâtiment Biosourcé,Bâtiment Bas Carbone (BBCA)
Données déclaratives

Acteurs du projet

Maître d'ouvrage (1)

Maître d'ouvrage - Promoteurs immobiliers privés

SCI DU 58 RUE DU PORT (59)

Etudes et ingénieries (4)

Maître d'œuvre - Architecte mandataire

ZITA ARCHITECTES (59)

Bureau d'études structure bois

INGEBOIS STRUCTURES (59)

Bureau d'études thermique

Cabinet Becquart économistes et associés (59)

Economiste

Cabinet Becquart économistes et associés (59)

Entreprises des lots bois (3)

Charpentier

GOUDALLE CHARPENTE (62)

Menuisier

AA AMENAGEMENT (62)

Constructeur bois

GOUDALLE CHARPENTE (62)

Fournisseurs du bois (2)

Scierie

SCIERIE CHAUVIN (39)

Industriel

KLH Massivholtz GmbH (DE)




* : L'entreprise n'est plus active
Retour à la liste