Réhabiliter un équipement
Réhabiliter un équipement

Caféteria Universitaire à Cergy-Pontoise

95000 CERGY - Val d'Oise - Ile de France

BÂTIMENT / LOGEMENT

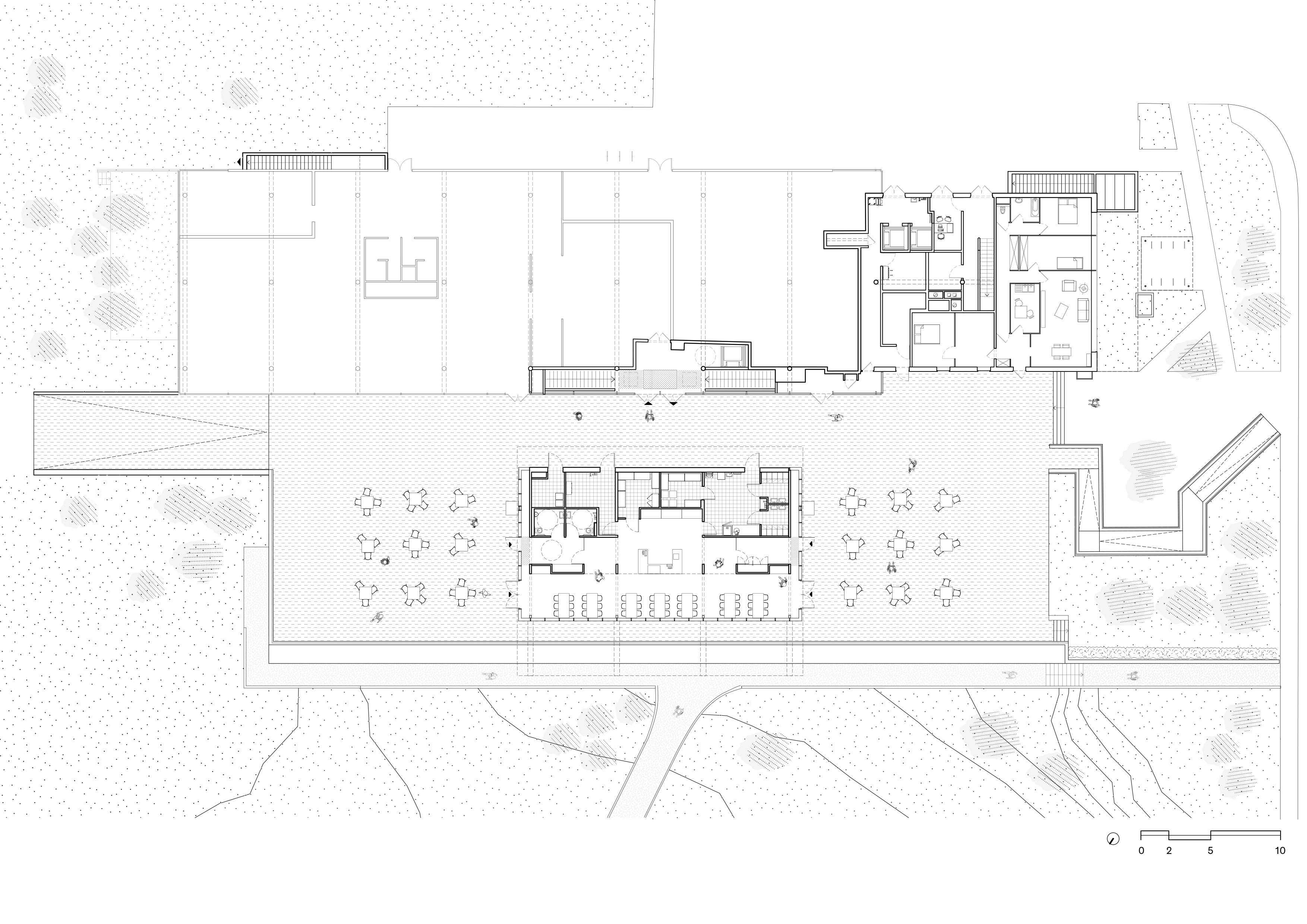
La restructuration totale du restaurant universitaire est l’occasion de rétablir un lien avec le parc urbain tout en l’adaptant aux exigences programmatiques actuelles. Un kiosque en structure mixte bois et acier se pose habilement sur la toiture du restaurant initial créant un élément dialoguant avec la dimension urbaine et paysagère. Conçu comme un pavillon léger posé sur un socle minéral topographique, le kiosque devient un élément d’unification entre les différentes parties du restaurant, lui permettant d’affirmer sa présence tout en assurant la cohérence architecturale de l’ensemble.

Catégorie Bâtiment / logement
Numéro de projet6672
Adresse du projet 5 Avenue du Parc
95000 CERGY
Date de candidature01/02/2022

Bâtiment / logement

Détail projet

Typologie de bâtiment : Extension / surélévation
Type de bâtiment : Enseignement ou éducation,Restauration
Année de livraison : 2021
Surface totale du bâtiment en m² : 2310
Dont extension / surélévation en m² : 310
Coût total en € HT (hors foncier, hors VRD, hors honoraires) : 4577000
Volume lot bois n°1 - m³ : 74
Coût du lot bois n°1 - € HT : 82379
Bois Français : non
Isolations biosourcées (préciser dans le descriptif technique) : non
Matériaux géosourcés (préciser dans le descriptif technique) : oui
Finitions intéreures biosourcées ou géosourcées (préciser dans le descriptif technique) : non

Structure bois du bâtiment

Structure verticale :

ProduitEssenceProvenances (lieu de croissance du bois)Traitements de préservationMarque et certification produit
Panneau de bois massif (CLT collé ou CLT cloué)Épicéa communTraitement Classe 2 (trempage)

Structure horizontale :

ProduitEssenceProvenances (lieu de croissance du bois)Traitements de préservationMarque et certification produit
Panneau de bois massif (CLT collé ou CLT cloué)Épicéa communTraitement Classe 2 (trempage)

Charpente :

ProduitEssenceProvenances (lieu de croissance du bois)Traitements de préservationMarque et certification produit
Charpente non bois

Revêtement bois extérieur

Autre revêtement métallique :

Produit
Acier

Menuiserie intérieure et extérieure

Isolation des murs

Isolation de la toiture

Approche environnementale : Ce projet considère l’existant comme la matière première du projet : les choix découlent de l’intention de conserver et de maximiser les potentialités de l’existant en intervenant le moins possible sur celui-ci. En curant le second œuvre dégradé et en ajoutant le strict nécessaire pour augmenter le confort des espaces le projet s’inscrit dans une conception sobre et frugale. Le réemploi complète cette démarche. L’extension en portique en bois massif biosourcé associé à des matériaux léger (bardage, mur rideau, toiture acier) ont permis de réduire les charges sur la structure existante et donc de minimiser les travaux de reprise et l’emploi de matière grise.

Descriptif technique : Cet espace de restauration rapide se compose de voiles en bois massif multi-plis permettant de se positionner habilement sur l’existant fragile. Ses quatre portiques en bois s’élancent vers le parc pour prolonger la couverture constituée d’une tôle ondulée en acier inoxydable supportée par une charpente en acier galvanisé. Côté existant, le kiosque déploie une bande technique opaque revêtue d’un bardage réfléchissant en tôle ondulée. Côté parc, la partie restauration s’ouvre sur le paysage à travers une enveloppe transparente et rythmée constituée d’un mur-rideau d’épines vertes. NF Contreplaqués (CTBX - CTBC)

Chauffage au Bois : non
Données déclaratives

Acteurs du projet

Maître d'ouvrage (1)

Maître d'ouvrage - Bailleur social public

CROUS de Versailles (78)

Etudes et ingénieries (5)

Maître d'œuvre - Architecte mandataire

Graal Architecture (75)

Bureau d'études structure bois

I+A Laboratoire des Structures (75)

Bureau d'études environnement

CHOULET LOUIS (63) *

Bureau d'études thermique

CHOULET LOUIS (63) *

Economiste

ECO+CONSTRUIRE (69)

Entreprises des lots bois (1)

Charpentier

POULINGUE (27)




* : L'entreprise n'est plus active
Retour à la liste