Habiter une maison

MAISON LSB

56000 VANNES - Morbihan - Bretagne

BÂTIMENT / LOGEMENT

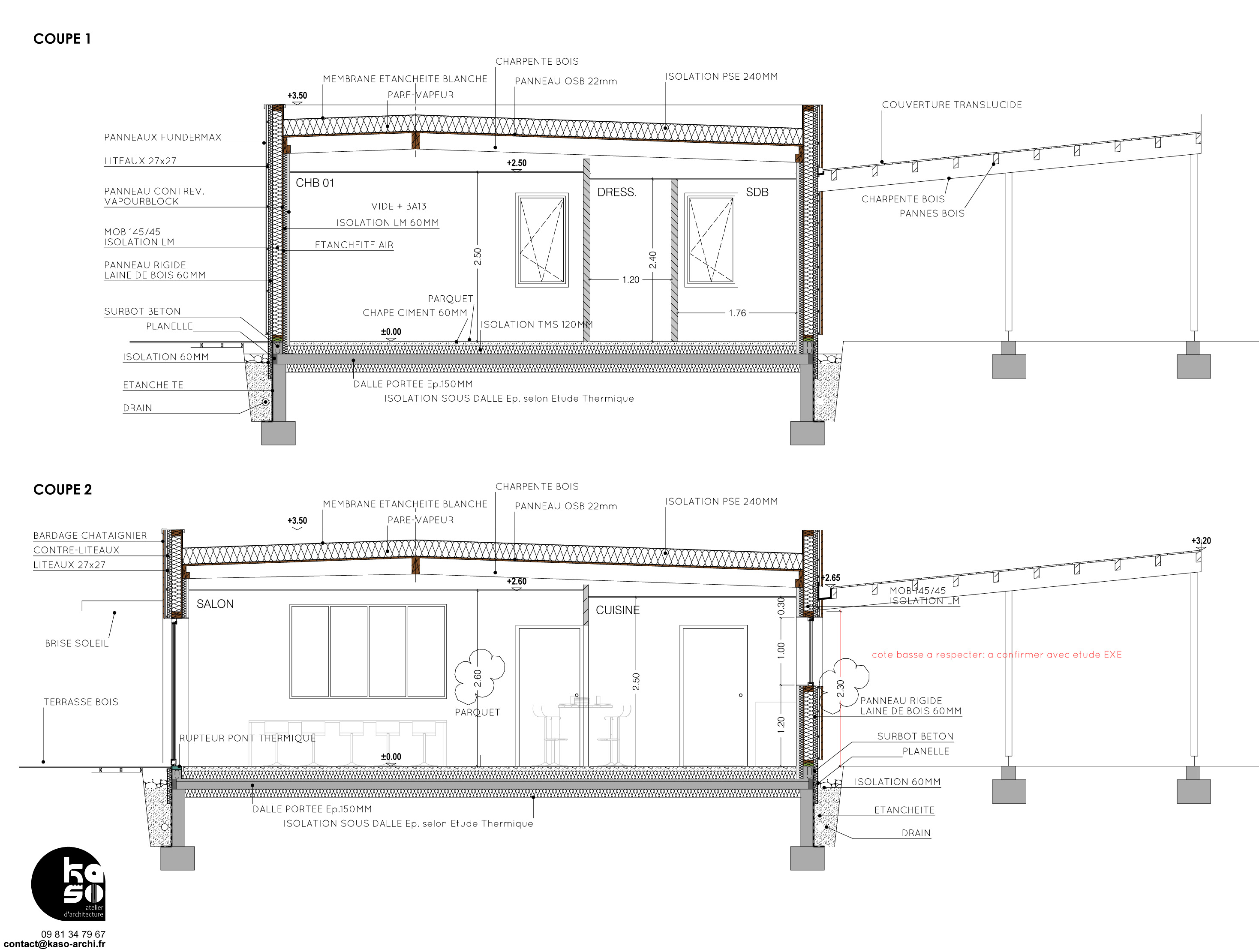
Situé en fond de parcelle, la nouvelle construction se tourne entièrement vers le sud, afin de profiter de l'ensoleillement et du réchauffage "passif", la maison répondant à la norme des bâtiments passifs. La construction est de plain-pied, et les matériaux volontairement écologiques et environnementaux. Le volume est volontairement sobre, avec de grandes ouvertures et un jeu de bardage bois et de panneaux composites permettant d'animer les volumes.

Catégorie Bâtiment / logement
Numéro de projet6576
Date de candidature12/01/2022

Bâtiment / logement

Détail projet

Typologie de bâtiment : Neuf
Type de bâtiment : Logement individuel supérieur à 120 m²
Année de livraison : 2019
Surface totale du bâtiment en m² : 140
Dont extension / surélévation en m² : 275000
Coût total en € HT (hors foncier, hors VRD, hors honoraires) : 80600
Lot bois n°1 concerné : Charpente bois,Bardage bois,Menuiserie extérieure bois,ossature bois
Bois Français : oui
Isolations biosourcées (préciser dans le descriptif technique) : non
Finitions intéreures biosourcées ou géosourcées (préciser dans le descriptif technique) : oui

Structure bois du bâtiment

Structure verticale :

ProduitEssenceProvenances (lieu de croissance du bois)Traitements de préservationMarque et certification produit
Panneau ossature boisDouglas

Structure horizontale :

ProduitEssenceProvenances (lieu de croissance du bois)Traitements de préservationMarque et certification produit
Plancher béton

Charpente :

ProduitEssenceProvenances (lieu de croissance du bois)Traitements de préservationMarque et certification produit
Charpente bois lamellé-collé

Revêtement bois extérieur

Revêtement bois ou dérivés :

ProduitEssenceProvenances (lieu de croissance du bois)Marque et certification produitFinitionTraitements de préservation
Lame bois lamellé-collé ou aboutéChâtaignierBretagne

Revêtement minéral :

Produit
Autres

Menuiserie intérieure et extérieure

Menuiserie extérieure :

ProduitEssenceProvenances (lieu de croissance du bois)Marque et certification produitFinition
Menuiserie mixte

Isolation des murs

Isolation intérieure des murs :

Produit
Laine de verre
Epaisseur (mm) Isolation intérieure des murs : 60

Isolation entre-montant des murs :

Produit
Laine de verre
Epaisseur (mm) Isolation entre-montant des murs : 145

Isolation extérieure des murs :

Produit
Fibre de bois (Panneaux)
Epaisseur (mm) Isolation extérieure des murs : 60

Isolation de la toiture

Epaisseur (mm) Isolation extérieure de la toiture : 240

Approche environnementale : Le projet est conçu sur les base de l'architecture bioclimatique, avec des espaces de vie au Sud et les espaces servants au Nord. Réalisée en ossature et charpente bois, le projet répond aux objectifs des bâtiments passifs, sans labellisation. Le bardage bois en Châtaignier brut de sciage provient de Bretagne., le parquet bois intérieur de France et l'isolation en laine minérale comporte une partie de biosourcée avec un liant à base végétale

Descriptif technique : Afin de répondre aux objectifs passifs, la maison reste relativement compacte et l'enveloppe est très bien isolée pour minimiser les besoins de chauffage et la technique du batiment. La ventilation double flux, combinée à des bouches chauffantes permettent d'apporter les besoins de chauffage complémentaire, l'ECS est produite via un ballon thermodynamique.

Performance du bâtiment (Cep en kWhep/m²/an) : 89
Chauffage au Bois : non
Certifications, labels et marques bâtiment : Passivhaus
Données déclaratives

Acteurs du projet

Etudes et ingénieries (2)

Maître d'œuvre - Architecte mandataire

KASO ATELIER D'ARCHITECTURE (56)

Bureau d'études thermique

TY ECO2 (35)

Entreprises des lots bois (1)

Charpentier

MENUISERIE CHARPENTE GUYOT (56)

Fournisseurs du bois (1)

Scierie

RAHUELBOIS (35)




* : L'entreprise n'est plus active
Retour à la liste