Travailler – accueillir
Travailler – accueillir

ATELIER + STUDIO

22300 Lannion - Côtes d'Armor - Bretagne
Lauréat régional

BÂTIMENT / LOGEMENT

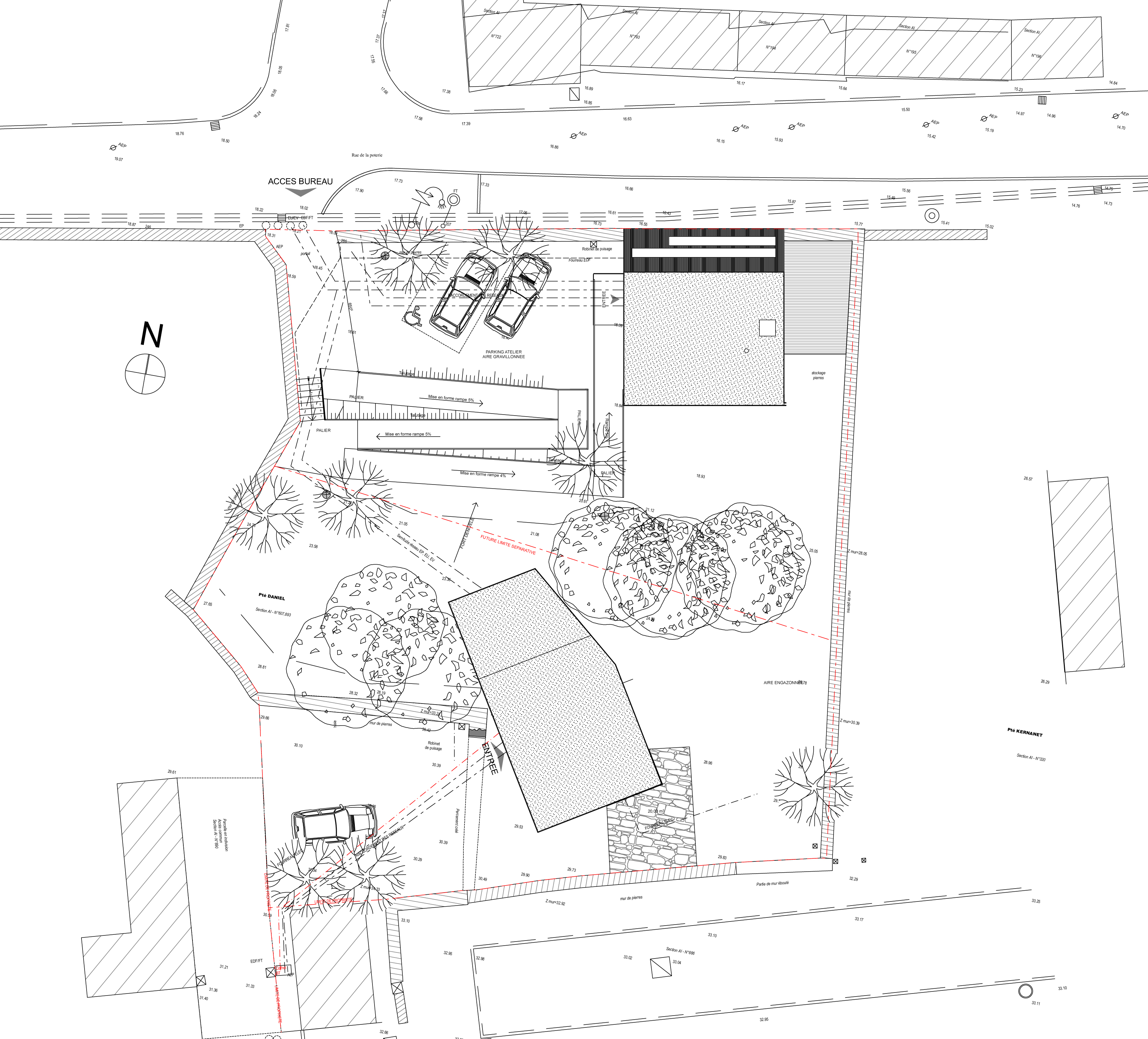
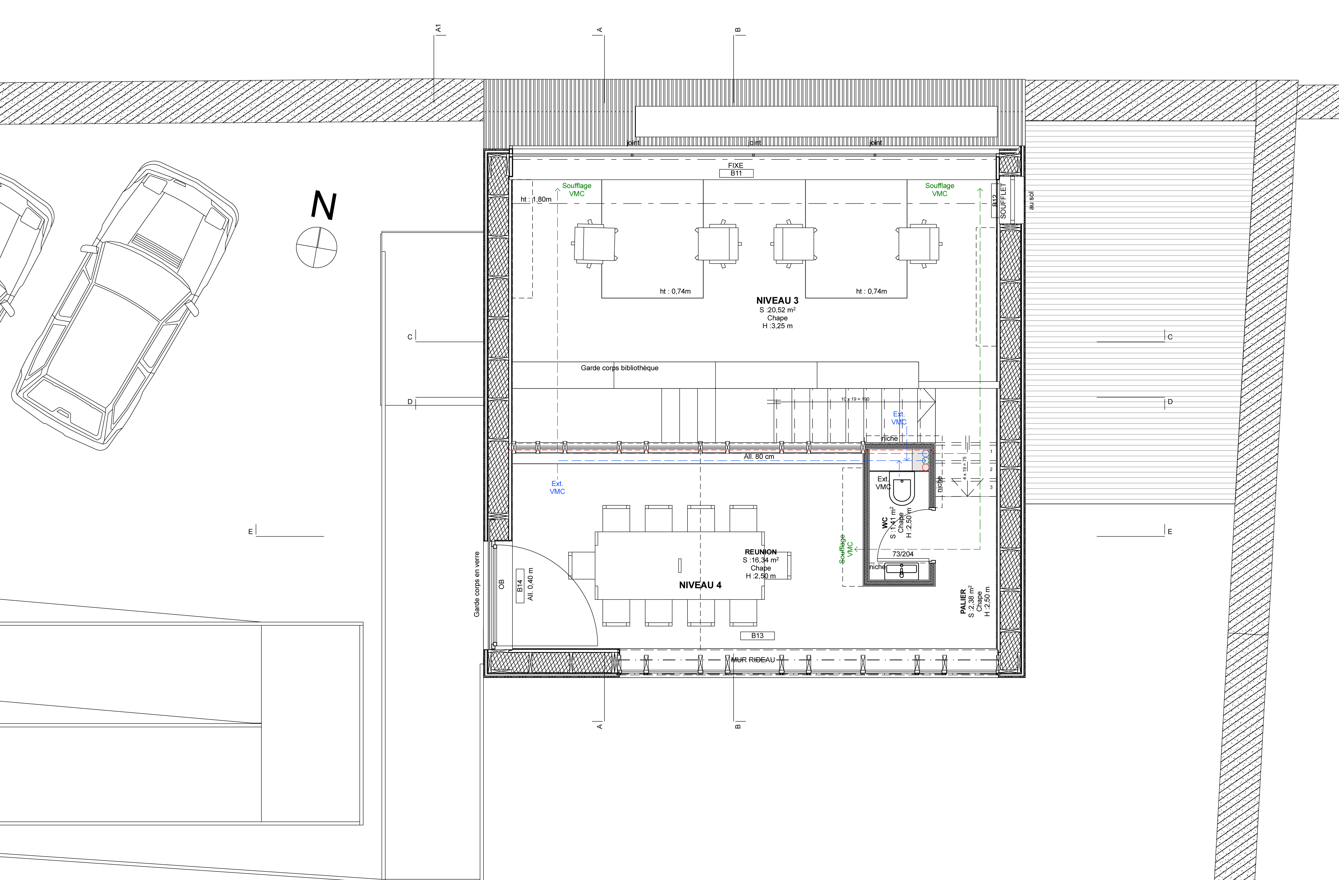
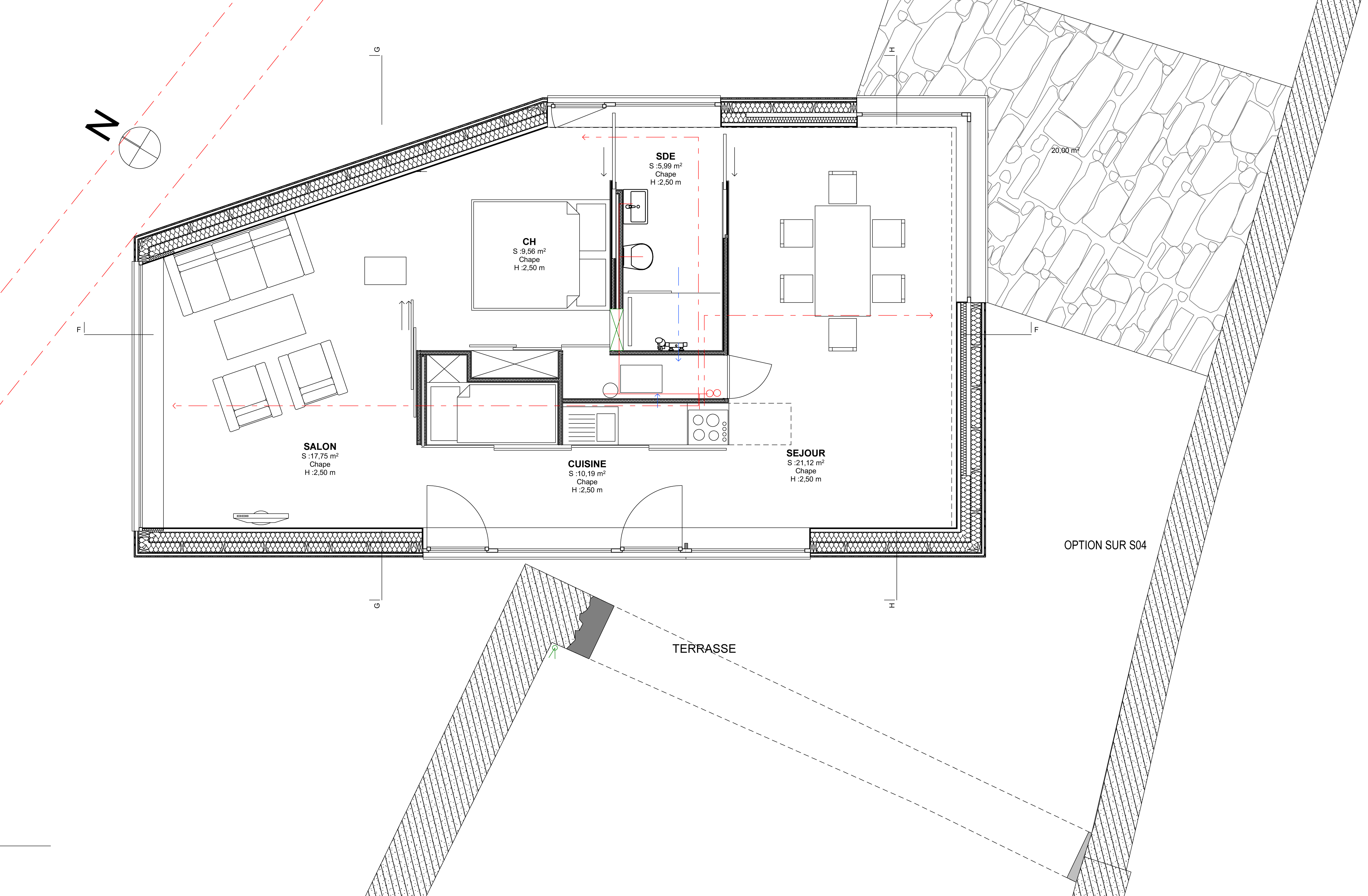
Notre atelier d’architecture et un studio de location-exposition s’installent dans un espace boisé en cœur de ville. Le terrain cerné de murs présente une déclivité de 15 m. Il s’ouvre sur la vallée, avec en ligne d’horizon les escaliers et l’église de Brélévenez. Dans ce site parfait pour une composition, nous avons recherché un équilibre entre l’atelier compact, qui s’élève comme une tour pour la lumière, et un studio effilé axé sur le panorama. Les volumes coupés s’insèrent dans le site, aidés par le bardage pigmenté noir. Des cadrages simples organisent les espaces intérieurs selon l’ensoleillement. Le studio plat dialogue avec l’atelier sur cinq niveaux décalés et ouverts.

Catégorie Bâtiment / logement
Numéro de projet636
Adresse du projet 22, Rue de la Poterie
22300 Lannion
Date de candidature28/03/2018

Bâtiment / logement

Détail projet

Typologie de bâtiment : Neuf
Type de bâtiment : Lieu d'entreprise
Année de livraison : 2017
Surface totale du bâtiment en m² : 190
Coût total en € HT (hors foncier, hors VRD, hors honoraires) : 380000
Lot bois n°1 concerné : Charpente bois
Coût du lot bois n°1 - € HT : 117000
Lot bois n°2 concerné : Bardage bois
Coût du lot bois n°2 - € HT : 19001
Bois Français : oui

Structure bois du bâtiment

Structure verticale :

ProduitEssenceProvenances (lieu de croissance du bois)Traitements de préservationMarque et certification produit
Panneau ossature boisDouglasBretagne

Structure horizontale :

ProduitEssenceProvenances (lieu de croissance du bois)Traitements de préservationMarque et certification produit
Dalle boisSapin pectinéEuropeTraitement Classe 2 (trempage)

Charpente :

ProduitEssenceProvenances (lieu de croissance du bois)Traitements de préservationMarque et certification produit
Caisson de toitureDouglasBretagneAucun traitement
Caisson de toitureSapin pectinéEuropeTraitement Classe 2 (trempage)

Revêtement bois extérieur

Revêtement bois ou dérivés :

ProduitEssenceProvenances (lieu de croissance du bois)Marque et certification produitFinitionTraitements de préservation
Bardeau boisDouglasBretagneHuile pigmentée

Autre revêtement métallique :

Produit
Acier

Menuiserie intérieure et extérieure

Menuiserie extérieure :

ProduitEssenceProvenances (lieu de croissance du bois)Marque et certification produitFinition
Menuiserie mixtePin maritimeAuvergne-Rhône-AlpesHuile pigmentée
Menuiserie mixteÉpicéa communEuropeLasure

Isolation des murs

Epaisseur (mm) Isolation entre-montant des murs : 300

Isolation de la toiture

Epaisseur (mm) Isolation entre-montant de la toiture : 400

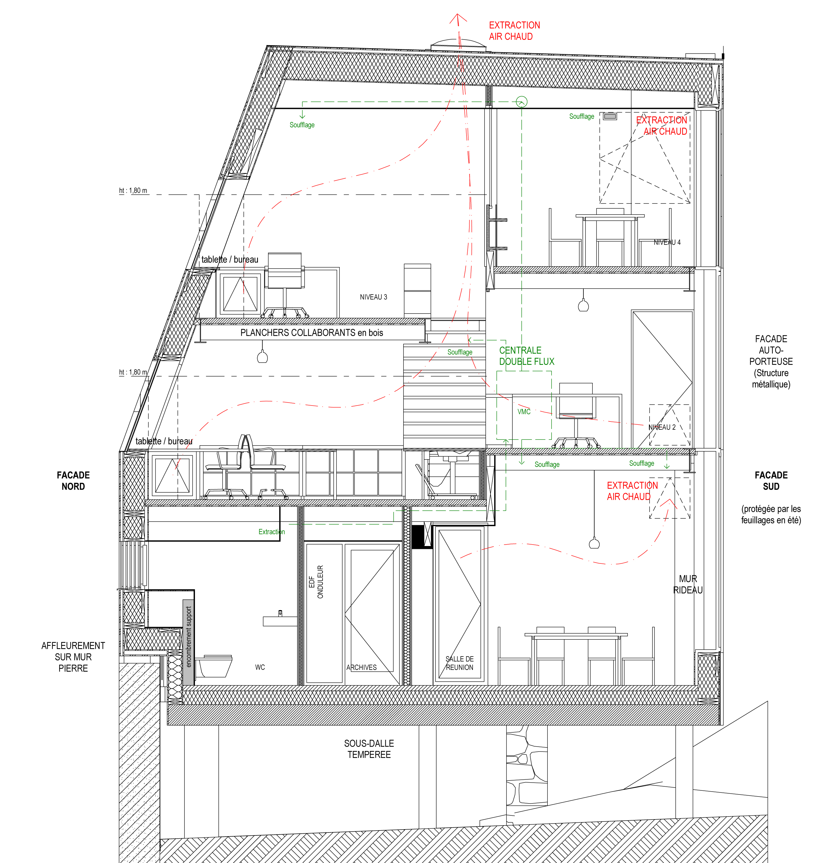
Approche environnementale : L’approche environnementale est basée sur la compacité des bâtiments, l’orientation des vitrages en s’appuyant sur le masque des arbres, l’inertie recherchée à travers les planchers intermédiaires en béton quartzé, les menuiseries mixtes et murs rideaux en triple vitrage, la centrale double flux haut rendement, et les trois radiateurs électriques (2+1) nécessaires au chauffage. Le bâtiment est très proche du standard Passivhaus. La ventilation naturelle est traitée par des petites ventelles carrées dissimulées derrière le bardage, et dont l’exutoire se fait par un châssis de toit sur l’étanchéité en membrane caoutchouc. Les matériaux sont pour la plupart biosourcés. Test d'étanchéité à l'air Atelier : 0,08 (Q4) Test d'étanchéité à l'air Studio : 0,21 (Q4)

Descriptif technique : L’ensemble sur pilotis et dalle béton pour l’effet promontoire et la hauteur se décolle du terrain naturel non modifié. L’atelier vient effleurer le mur d’enceinte en pierre en créant un contraste de masse entre le bloc en ossature et bardage bois et l’enceinte en pierre. Une structure en acier permet de stabiliser la façade sud composée d’un mur rideau et porte les planchers en solivage bois et chape béton. Le propos du projet consiste à s’insérer dans le grand paysage comme dans la rue, en transformant les contraintes d’orientation en atouts contextuels.

Chauffage au Bois : non
Données déclaratives

Acteurs du projet

Maître d'ouvrage (1)

Maître d'ouvrage - Industriels - commerçants - entreprise

Atelier Rubin Associés (22)

Etudes et ingénieries (5)

Maître d'œuvre - Architecte mandataire

Atelier Rubin Associés (22)

Bureau d'études structure bois

QSB – Lannion (22)

Bureau d'études thermique

Passiflore-conseil (22) *
B3E - EURL CPYM (22)

Economiste

Atelier Rubin Associés (22)

Entreprises des lots bois (2)

Charpentier

CHARPENTE ET CREATION BOIS (22)

Menuisier

JACQUES LACHIVER (EKKÔ) (22)




* : L'entreprise n'est plus active
Retour à la liste