Habiter ensemble

BELTAINE

44400 Rezé - Loire Atlantique - Pays de la Loire
Finaliste national
Lauréat régional

BÂTIMENT / LOGEMENT

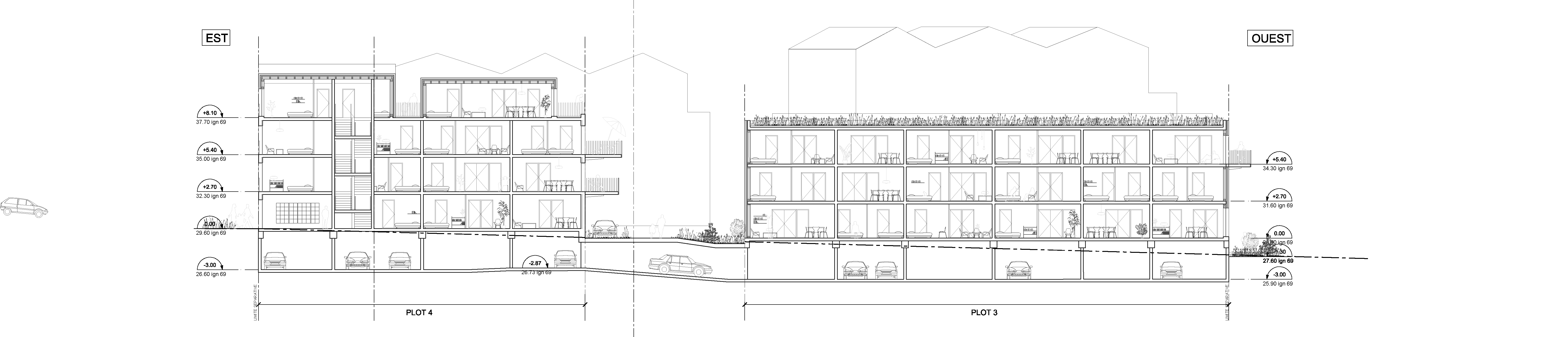
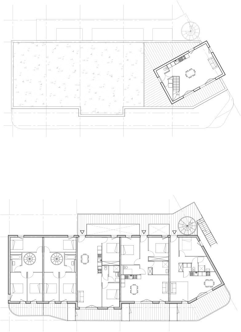
Concilier « densité » et « parc en infiltration » : Une parcelle hameau. L’îlot 5 est un espace de transition, tant dans sa géographie, la topographie du lieu que dans son rôle dans le paysage. Sa localisation dans le paysage rural rezéen et les nouvelles zones urbanisées lui offre un rôle majeur dans l’insertion du projet urbain dans le grand paysage. C’est une parcelle-hameau à travers laquelle on passe de l’urbain au grand paysage par les notions de vie de quartier, de jardins privatifs, de sentes piétonnes, d’espaces communs.

Catégorie Bâtiment / logement
Numéro de projet6335
Adresse du projet ZAC de la Jaguère
44400 Rezé
Date de candidature12/03/2021

Bâtiment / logement

Détail projet

Typologie de bâtiment : Neuf
Type de bâtiment : Logement collectif
Année de livraison : 2019
Surface totale du bâtiment en m² : 6900
Coût total en € HT (hors foncier, hors VRD, hors honoraires) : 8800000
Lot bois n°1 concerné : Charpente bois
Coût du lot bois n°1 - € HT : 550000
Lot bois n°2 concerné : Bardage bois
Coût du lot bois n°2 - € HT : 220000
Bois Français : oui
Isolations biosourcées (préciser dans le descriptif technique) : non
Finitions intéreures biosourcées ou géosourcées (préciser dans le descriptif technique) : non

Structure bois du bâtiment

Structure verticale :

ProduitEssenceProvenances (lieu de croissance du bois)Traitements de préservationMarque et certification produit
Panneau ossature boisNouvelle-AquitaineAucun traitement

Structure horizontale :

ProduitEssenceProvenances (lieu de croissance du bois)Traitements de préservationMarque et certification produit
Plancher mixte bois-bétonÉpicéa communNouvelle-AquitaineAucun traitement

Charpente :

ProduitEssenceProvenances (lieu de croissance du bois)Traitements de préservationMarque et certification produit
Charpente industrielleTempéréJe n'ai pas l'information

Revêtement bois extérieur

Revêtement bois ou dérivés :

ProduitEssenceProvenances (lieu de croissance du bois)Marque et certification produitFinitionTraitements de préservation
Lame bois massifDouglasPays-de-la-LoireAucune finitionAucun traitement

Menuiserie intérieure et extérieure

Isolation des murs

Isolation entre-montant des murs :

Produit
Laine de verre
Epaisseur (mm) Isolation entre-montant des murs : 200

Isolation de la toiture

Epaisseur (mm) Isolation entre-montant de la toiture : 198

Approche environnementale : Insertion du projet dans l’Ecoquartier de la Jaguère, Rezé. Projet HPE (RT2012 -20%) Construction mixte béton-bois pour 40 logements Bardage douglas naturel purgé d'aubier Jardins en pleine terre pour 40% de la parcelle

Descriptif technique : Construction mixte bois béton : dalles et refends béton, FOB filant bois en mur manteaux Isolation dans l'ossature Attique en charpente bois et "maisons sur le toit" en bardage douglas naturel purgé d'aubier Bardage douglas naturel classe 3 Coursives mixte bois/béton par procédé AIA (plancher collaborant sur poutres bois) PEFC (Gestion forestière durable) FSC (Gestion forestière responsable) CTB A Traitement des bois en oeuvre NF Vantaux de portes planes NF Ameublement NF Logement Habitat et Environnement

Chauffage au Bois : non
Données déclaratives

Acteurs du projet

Maître d'ouvrage (3)

Maître d'ouvrage - Bailleur social privé

Maison Familiale de Loire Atlantique / GHT Coopérative (44)

Maître d'ouvrage - Bailleur social public

Atlantique Habitations (44)

Maître d'ouvrage - Promoteurs immobiliers privés

Ataraxia Promotion (44)

Etudes et ingénieries (4)

Maître d'œuvre - Architecte mandataire

Guinée Potin Architectes (44)

Bureau d'études structure bois

Iba Ingénierie Du Bâtiment (44)

Bureau d'études thermique

Patrick Tual Sarl (44)

Architecte / paysagiste concepteur

Phytolab (44)

Entreprises des lots bois (2)

Charpentier

CMBS - CHARPENTE MENUISERIE BRETAGNE SUD (56)

Menuisier

RIDORET MENUISERIE (44)




* : L'entreprise n'est plus active
Retour à la liste