Habiter une maison
Habiter une maison

Maison B à Erquy

22430 Erquy - Côtes d'Armor - Bretagne

BÂTIMENT / LOGEMENT

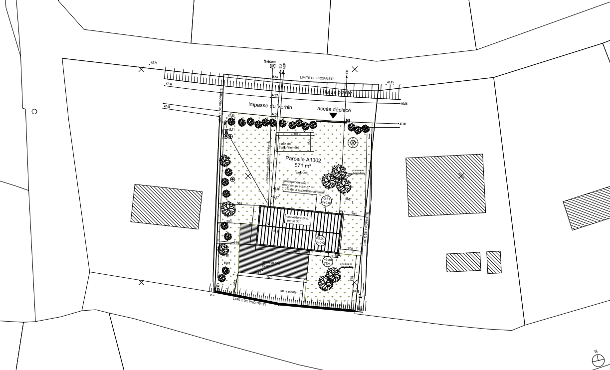
Ce projet est une habitation légère de loisir, remplaçant un mobile-home. L'enjeu est de proposer une petite construction s'insérant avec harmonie vis à vis du paysage, des constructions voisines et du camping existant. Le dessin de lignes sobres et contemporaines révèle ainsi l'aspect d'une cabane en bois. Le projet adopte un volume simple avec une toiture à deux pentes un volume bas et des lignes horizontales dans le sens de la topographie du site.

Catégorie Bâtiment / logement
Numéro de projet6142
Date de candidature08/03/2021

Bâtiment / logement

Détail projet

Typologie de bâtiment : Neuf
Type de bâtiment : Logement individuel inférieur 120 m²
Année de livraison : 2021
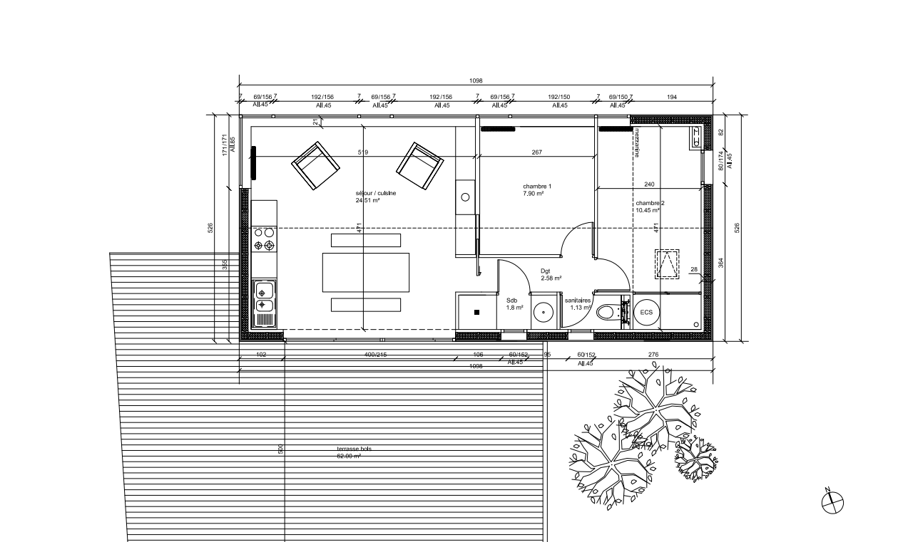
Surface totale du bâtiment en m² : 57
Coût total en € HT (hors foncier, hors VRD, hors honoraires) : 136263
Lot bois n°1 concerné : Charpente bois
Coût du lot bois n°1 - € HT : 17603
Lot bois n°2 concerné : Bardage bois
Coût du lot bois n°2 - € HT : 6560
Bois Français : oui
Isolations biosourcées (préciser dans le descriptif technique) : non
Finitions intéreures biosourcées ou géosourcées (préciser dans le descriptif technique) : non

Structure bois du bâtiment

Structure verticale :

ProduitEssenceProvenances (lieu de croissance du bois)Traitements de préservationMarque et certification produit
Panneau ossature boisFranceAucun traitement

Structure horizontale :

ProduitEssenceProvenances (lieu de croissance du bois)Traitements de préservationMarque et certification produit
Dalle boisDouglasFranceAucun traitement

Charpente :

ProduitEssenceProvenances (lieu de croissance du bois)Traitements de préservationMarque et certification produit
Charpente traditionnelleÉpicéa communFranceAucun traitement

Revêtement bois extérieur

Revêtement bois ou dérivés :

ProduitEssenceProvenances (lieu de croissance du bois)Marque et certification produitFinitionTraitements de préservation
Lame bois massifDouglasFranceAucune finitionAucun traitement

Menuiserie intérieure et extérieure

Isolation des murs

Isolation intérieure des murs :

Produit
Epaisseur (mm) Isolation intérieure des murs : 450

Isolation entre-montant des murs :

Produit
Laine de verre
Epaisseur (mm) Isolation entre-montant des murs : 150

Isolation de la toiture

Epaisseur (mm) Isolation intérieure de la toiture : 300

Approche environnementale : Le but du projet est d'avoir le moins d'impact possible sur le site. Ainsi le projet s'assoit sur le terrain naturel, laissé à l'identique. La grande majorité des plantations existantes est conservée (haies, arbres, fleurs...). Un bois local est utilisé comme matériau principal : le Douglas. Les principes bioclimatiques sont respectés : apports solaires, compacité, bonne orientation.

Descriptif technique : La maison s'organise sur deux niveaux dont l'un semi-enterré. Le niveau supérieur est en ossature bois et bardage bois horizontal à claire voie de teinte naturelle, type Douglas. Sous ce claire voie l'étanchéité est réalisée par un revêtement bac acier. Dans l'esprit d'une cabane et pour réduire l'emploi de matériaux différents, le bardage bois qui recouvre les murs habille aussi la toiture. L'ensemble se pose sur un soubassement en béton peint en teinte sombre, un peu en retrait par rapport au volume en bois. Les menuiseries sont en aluminium de teinte sombre et positionnées au nu extérieur.

Chauffage au Bois : non
Données déclaratives

Acteurs du projet

Maître d'ouvrage (1)

Maître d'ouvrage - Particuliers

particulier (x)

Etudes et ingénieries (3)

Maître d'œuvre - Architecte mandataire

COLAS DURAND ARCHITECTES (CDA) (22)

Bureau d'études structure bois

BSO (BÂTI STRUCTURE OUEST) (22)

Bureau d'études thermique

B3E - EURL CPYM (22)

Entreprises des lots bois (3)

Charpentier

BESNARD STÉPHANE (22)

Menuisier

BESNARD STÉPHANE (22)

Constructeur bois

BESNARD STÉPHANE (22)




* : L'entreprise n'est plus active
Retour à la liste