Apprendre – se divertir
Apprendre – se divertir

Opéra Confluence - Lieu de spectacle éphémère et durable

84000 Avignon - Vaucluse - Provence Alpes Côte d'Azur

BÂTIMENT / LOGEMENT

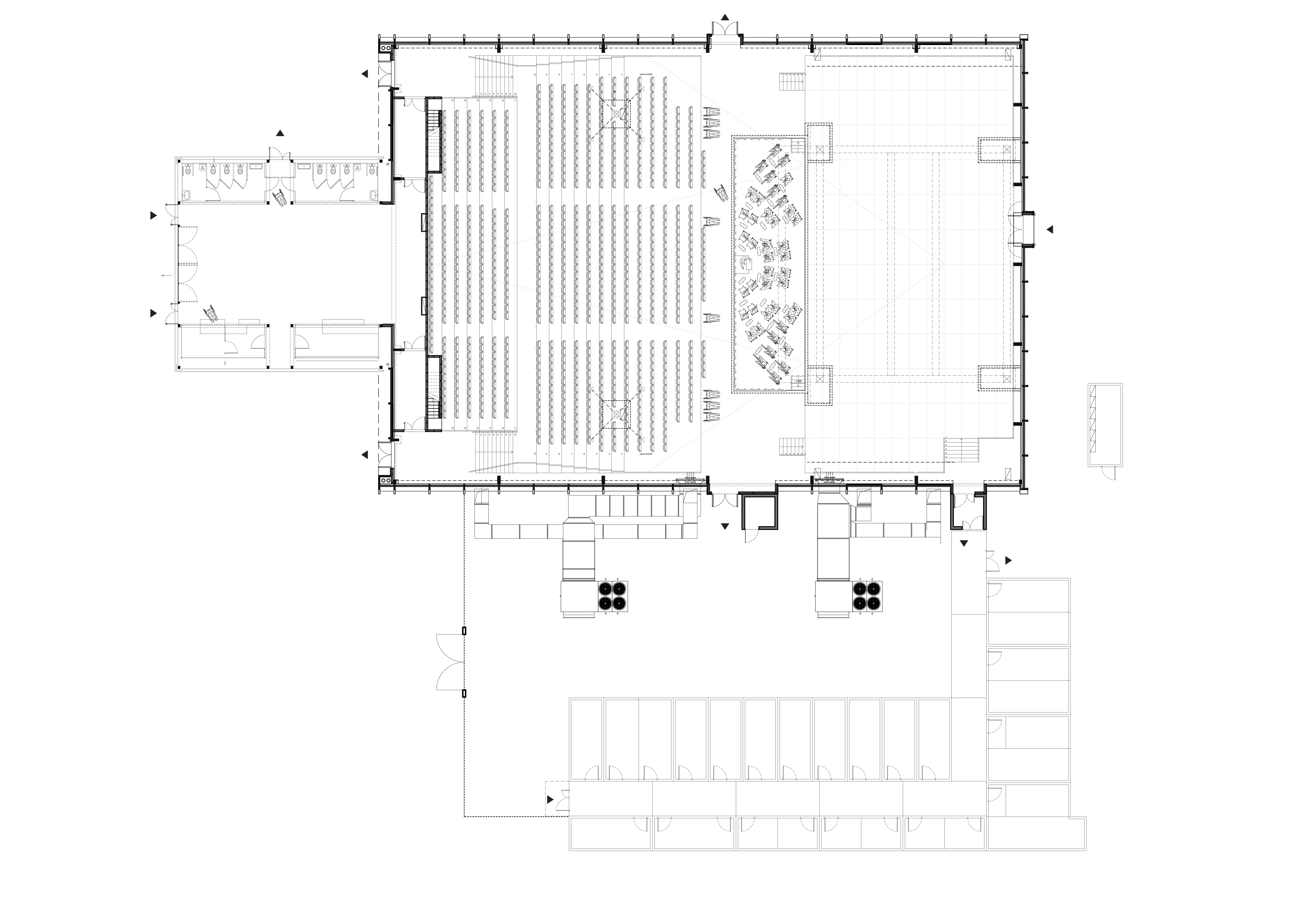
L’Opéra Confluence répond au défi lancé par le Grand Avignon pour concevoir en moins d’un an et pour moins de 1200 €/m², une salle spectacle éphémère pour 950 spectateurs. Cette salle répond au double objectif d’intégrer des équipements scénographiques récupérés sur d’autres équipements et d’être démontable/remontable. Le choix du bois porté par notre équipe s’est révélé concurrentiel et performant par une étude optimisée de la géométrie de l’enveloppe préfabriquée. Les matériaux et les équipements techniques utilisés dans leur plus simple expression offrent au lieu un caractère unique.

Catégorie Bâtiment / logement
Numéro de projet548
Adresse du projet Place de l’Europe
Quartier Courtine TGV
84000 Avignon
Date de candidature26/03/2018

Bâtiment / logement

Détail projet

Typologie de bâtiment : Neuf
Type de bâtiment : Culture
Année de livraison : 2017
Surface totale du bâtiment en m² : 1591
Coût total en € HT (hors foncier, hors VRD, hors honoraires) : 1800000
Lot bois n°1 concerné : Charpente bois
Volume lot bois n°1 - m³ : 99
Coût du lot bois n°1 - € HT : 230000
Lot bois n°2 concerné : Autre lot bois
Volume lot bois n°2 - m³ : 181
Coût du lot bois n°2 - € HT : 516670

Structure bois du bâtiment

Structure verticale :

ProduitEssenceProvenances (lieu de croissance du bois)Traitements de préservationMarque et certification produit
Poteau poutreTraitement Classe 2 (trempage)

Structure horizontale :

ProduitEssenceProvenances (lieu de croissance du bois)Traitements de préservationMarque et certification produit
Non précisé

Charpente :

ProduitEssenceProvenances (lieu de croissance du bois)Traitements de préservationMarque et certification produit
Charpente bois lamellé-colléÉpicéa communTraitement Classe 2 (trempage)

Revêtement bois extérieur

Autre revêtement métallique :

Produit
Acier

Menuiserie intérieure et extérieure

Isolation des murs

Isolation entre-montant des murs :

Produit
Laine de roche
Epaisseur (mm) Isolation entre-montant des murs : 100

Isolation de la toiture

Epaisseur (mm) Isolation entre-montant de la toiture : 100

Approche environnementale : Le concept même du bâtiment répond à une logique responsable et circulaire. Nécessaire pour une durée d’environ 2 ans, le temps des travaux de l’opéra historique, l’Opéra Confluence associe des éléments récupérés à des éléments réutilisables. La salle éphémère devient donc durable. Les espaces traités sont limités aux besoins essentiels, évitant toute dépréciation ou surenchère L’usage de bois, directement visible et tactile, renforce l’identité et le confort intérieur. L’implantation du bâtiment et les aménagements extérieurs exploitent au mieux le site présent, le climat et le sens du Mistral

Descriptif technique : La structure et l’enveloppe ont été dissociées. Chaque élément a été optimisé pour la rapidité du chantier et le démontage/remontage. La structure en lamellé-collée répond à la définition volumétrique du projet : minimiser l’emprise visuelle et la surface de l’enveloppe, associer la géométrie à la diffusion sonore intérieure. Le volume franchissant 30x45 m est stabilisé dans les plans des façades. L’enveloppe, rationnalisée par des panneaux-caissons de 2,5 m de large, a été totalement préfabriquée. Les traitements d’étanchéité et ses fixations ont été conçus pour une réutilisation efficace. PEFC (Gestion forestière durable) NF Portes résistant au feu en bois NF Contreplaqués (CTBX - CTBC) Marquage CE

Chauffage au Bois : non
Données déclaratives

Acteurs du projet

Maître d'ouvrage (1)

Maître d'ouvrage - État ou collectivité (locale et territ)

Communauté d'agglomération du Grand Avignon (84)

Etudes et ingénieries (6)

Maître d'œuvre - Architecte mandataire

DE-SO architectes (75)

Bureau d'études acoustique

ALTIA (75)

Bureau d'études structure bois

GAUJARD TECHNOLOGIES SCOP (84)

Bureau d'études thermique

MOUNIER PEYRIN (26) *

Economiste

BETREC IG (26)

Architecte / paysagiste concepteur

DE-SO architectes (75)

Entreprises des lots bois (2)

Charpentier

MARGUERON (01)

Constructeur bois

SOCIETE DAUPHINOISE DE CHARPENTE COUVERTURE (SDCC) (38)




* : L'entreprise n'est plus active
Retour à la liste