Réhabiliter un équipement
Réhabiliter un équipement

DDT de Mende

48000 MENDE - Lozère - Occitanie

BÂTIMENT / LOGEMENT

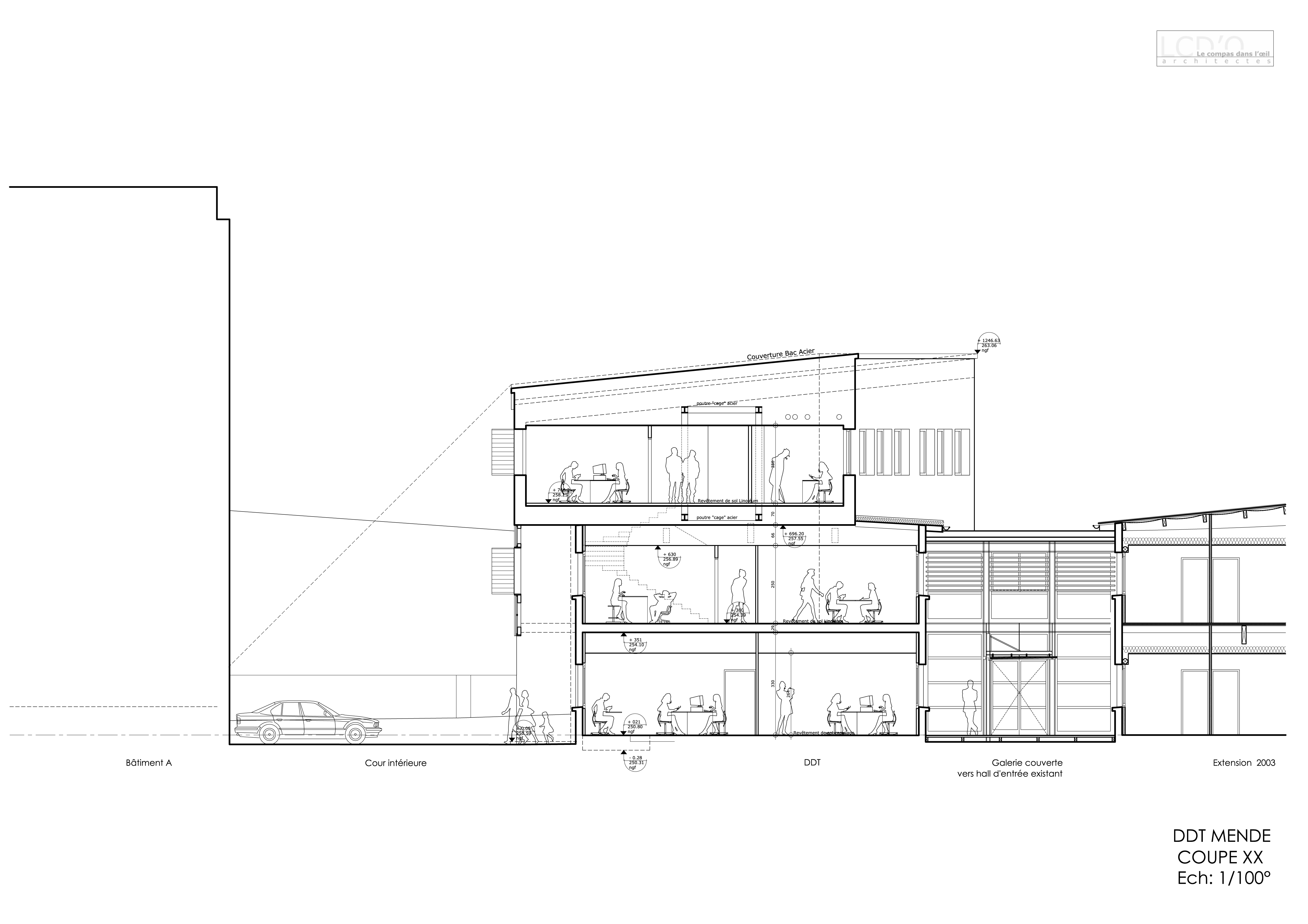
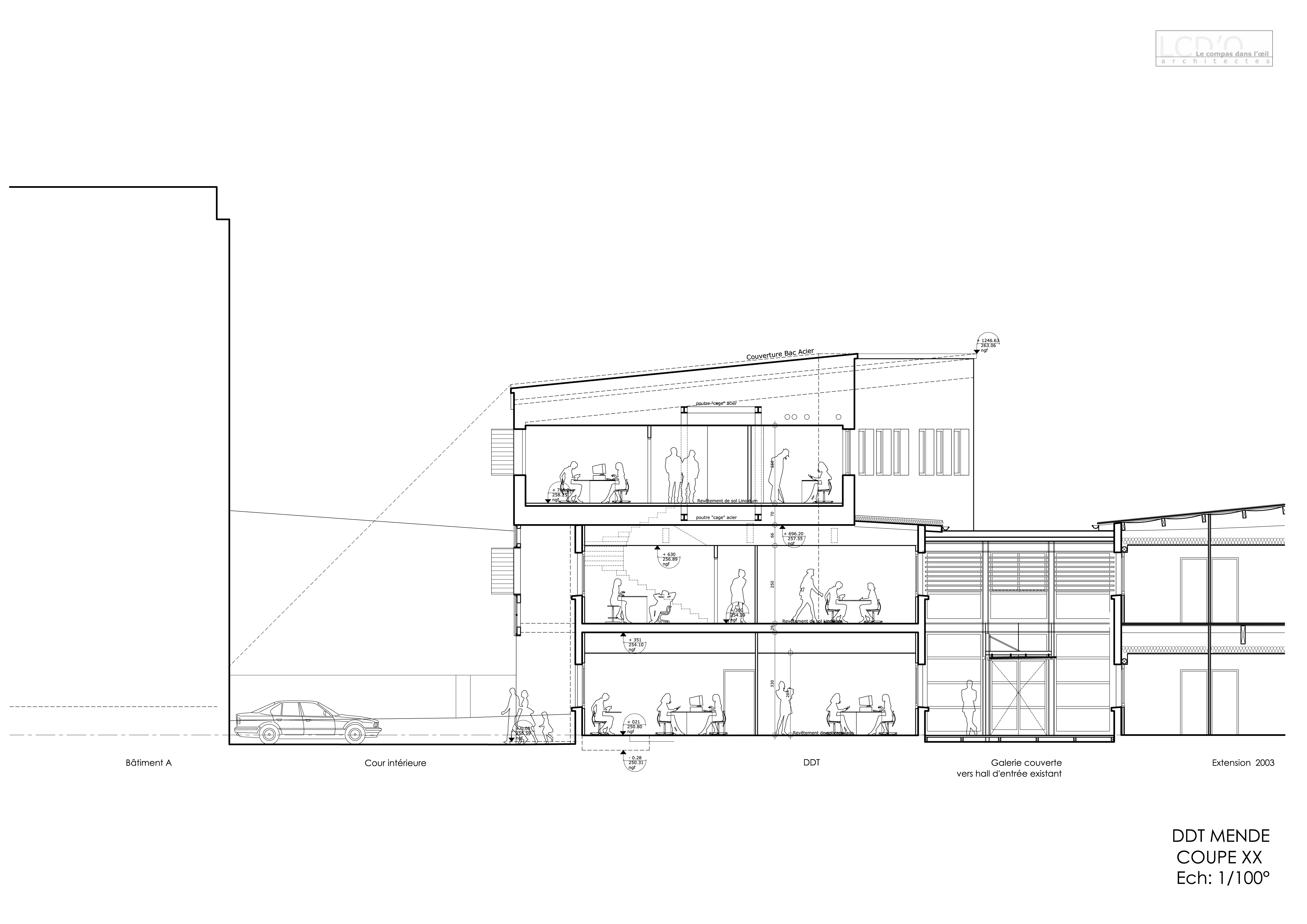
Extension des locaux administratifs de la DDE pour la DDT de la Lozère. Conçu comme un pont en bois enjambant l'ancien bâtiment du SIR, la lecture du volume ancien, permet de comprendre l'évolution du site, sans en effacer les étapes. Contrairement au bâtiment A et au bâtiment bois de 2002, tous deux fortement ancrés dans le sol, constitués de murs pleins percés de portes fenêtres ou de baies vitrées, le nouveau bâtiment sous lequel, le public et le personnel de la DDE peuvent passer, est enveloppé; d'une résille constituée de fines lames de bois suggérant la légèreté de l'édifice (lames 36*72 en douglas thermo huilé pose à plat ou sur chant). Les baies viennent se composer derrière la façade tramée (persiennes bois et cadre métal), pour protéger du soleil et de l'échauffement sans priver les occupants de la lumière nécessaire. A la tombée de la nuit, le bâtiment prend un tout autre aspect en fonction de l'éclairement artificiel des locaux, de l'ouverture ou de la fermeture des persiennes ajourées, ce qui vient renforcer son aspect léger et "volatile". Aussi important que les volumes construits et habités, les vides laissés entre les bâtiments et le relief du talus ont un sens précis, une identité claire et vivante pour ne pas finir en "délaissé". Nous définissons deux grands espaces extérieurs significatifs. Le premier vient renforcer le lien entre les bâtiments, pour donner vie à une grande cour minérale ponctuellement plantée de pieds de bambou. Celle ci se déploie depuis le bâtiment A jusqu'au bâtiment en bois, sous la galerie couverte et sous le passage couvert également, comme si les bâtiments avaient été posés dessus. La limite entre ce grand "tapis" minéral et le talus planté le long de l'avenue G. Clémenceau est conçue davantage comme un lieu où il est possible de se tenir, de se poser sur un revêtement plutôt du registre végétal (platelage bois) en référence aux espaces déjà existants dans les courettes de l'actuel SIR. Ces terrasses peuvent à l'occasion devenir l'extension extérieure de la salle de réunion pour d'éventuelles manifestations ou pour créer des terrasses extérieures aux bureaux situés au rez de chaussée. Plus que des liens urbains, ces espaces permettent d'enrichir le lien social et convivial nécessaire à la qualité du travail et du service.

Catégorie Bâtiment / logement
Numéro de projet4715
Adresse du projet avenue de la Gare
48000 MENDE
Date de candidature31/12/2012

Bâtiment / logement

Détail projet

Typologie de bâtiment : Extension / surélévation
Type de bâtiment : Lieu d'entreprise
Année de livraison : 2011
Surface totale du bâtiment en m² : 980
Coût total en € HT (hors foncier, hors VRD, hors honoraires) : 1137616
Volume lot bois n°1 - m³ : 116
Coût du lot bois n°1 - € HT : 358345
Bois Français : non
Isolations biosourcées (préciser dans le descriptif technique) : non
Finitions intéreures biosourcées ou géosourcées (préciser dans le descriptif technique) : non

Structure bois du bâtiment

Structure verticale :

ProduitEssenceProvenances (lieu de croissance du bois)Traitements de préservationMarque et certification produit
Panneau ossature bois

Structure horizontale :

ProduitEssenceProvenances (lieu de croissance du bois)Traitements de préservationMarque et certification produit
Solivage traditionnel

Charpente :

ProduitEssenceProvenances (lieu de croissance du bois)Traitements de préservationMarque et certification produit
Charpente traditionnelle
Charpente bois lamellé-collé

Revêtement bois extérieur

Revêtement bois ou dérivés :

ProduitEssenceProvenances (lieu de croissance du bois)Marque et certification produitFinitionTraitements de préservation
Lame bois massif

Menuiserie intérieure et extérieure

Menuiserie extérieure :

ProduitEssenceProvenances (lieu de croissance du bois)Marque et certification produitFinition
Menuiserie bois
Brise soleil bois

Isolation des murs

Isolation de la toiture

Approche environnementale : N;

Chauffage au Bois : non
Appareil de chauffage au bois : Autres,Poële/insert,Poêle bouilleur,Chaudière
Données déclaratives

Acteurs du projet

Maître d'ouvrage (1)

Autres

DIRECTION DEPARTEMENTALE TERRITOIRES LOZERE (DDT 48) (48)

Etudes et ingénieries (6)

Maître d'œuvre - Architecte mandataire

LCD'O (Le Compas dans l'œil) JM Priam (48) *
Vanel-architecture (48)

Bureau d'études structure bois

IB2M (12)
SYLVA CONSEIL (63)

Bureau d'études thermique

EODD INGENIEURS CONSEILS (69)

Economiste

Jean Philibert (48) *

Entreprises des lots bois (1)

Charpentier

ORLHAC SARL (48)




* : L'entreprise n'est plus active
Retour à la liste