Réhabiliter un logement
Réhabiliter un logement

MAISON PERCHEE

79000 NIORT - Deux Sèvres - Nouvelle-Aquitaine

BÂTIMENT / LOGEMENT

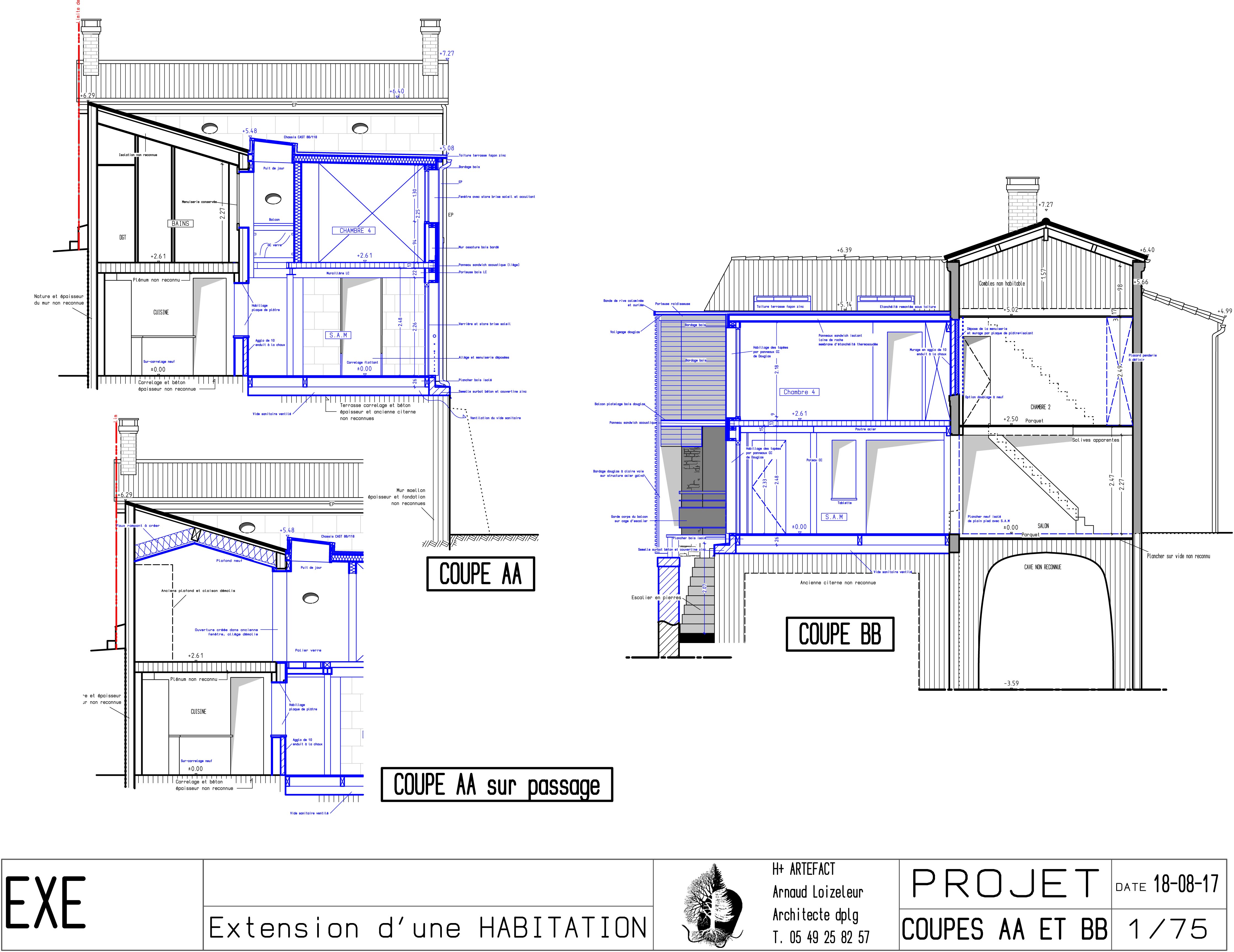
L'habitation existante est traditionnelle. La propriété s'étale le long du coteau en une succession de terrasses du haut du vieux bourg de Ste Pezenne jusqu'au bas du jardin non loin des berges de la rivière. L'extension de 2 niveaux a été créée sur une terrasse au creux des ailes existantes. La construction a engendré un réaménagement partiel (plus fonctionnel) de l'habitation et une modification des façades. Elle créée une grande pièce de vie lumineuse, avec un point de vue sur la vallée, depuis les balcons comme suspendus au-dessus des jardins en terrasse à hauteur des frondaisons.

Catégorie Bâtiment / logement
Numéro de projet4604
Date de candidature27/02/2020

Bâtiment / logement

Détail projet

Typologie de bâtiment : Extension / surélévation
Type de bâtiment : Logement individuel inférieur 120 m²
Année de livraison : 2018
Surface totale du bâtiment en m² : 36
Coût total en € HT (hors foncier, hors VRD, hors honoraires) : 149744
Lot bois n°1 concerné : Charpente bois
Coût du lot bois n°1 - € HT : 13882
Lot bois n°2 concerné : Bardage bois
Volume lot bois n°2 - m³ : 32
Coût du lot bois n°2 - € HT : 6000
Bois Français : non
Isolations biosourcées (préciser dans le descriptif technique) : non
Finitions intéreures biosourcées ou géosourcées (préciser dans le descriptif technique) : non

Structure bois du bâtiment

Structure verticale :

ProduitEssenceProvenances (lieu de croissance du bois)Traitements de préservationMarque et certification produit
Panneau ossature boisEuropeTraitement Classe 2 (trempage)

Structure horizontale :

ProduitEssenceProvenances (lieu de croissance du bois)Traitements de préservationMarque et certification produit
Dalle boisÉpicéa communEuropeTraitement Classe 2 (trempage)

Charpente :

ProduitEssenceProvenances (lieu de croissance du bois)Traitements de préservationMarque et certification produit
Caisson de toitureÉpicéa communEuropeTraitement Classe 2 (trempage)

Revêtement bois extérieur

Revêtement bois ou dérivés :

ProduitEssenceProvenances (lieu de croissance du bois)Marque et certification produitFinitionTraitements de préservation
Lame bois massifDouglasFranceAucune finitionAucun traitement

Autre revêtement métallique :

Produit
Alu

Menuiserie intérieure et extérieure

Isolation des murs

Isolation intérieure des murs :

Produit
Laine de verre
Epaisseur (mm) Isolation intérieure des murs : 80

Isolation entre-montant des murs :

Produit
Laine de verre
Epaisseur (mm) Isolation entre-montant des murs : 140

Isolation extérieure des murs :

Produit
Fibre de bois (Panneaux)
Epaisseur (mm) Isolation extérieure des murs : 60

Isolation de la toiture

Epaisseur (mm) Isolation intérieure de la toiture : 120
Epaisseur (mm) Isolation extérieure de la toiture : 60

Approche environnementale : La construction bois a permis de conserver les existants en limitant les démolitions et l'usage du béton et de l'acier difficiles à manier, du fait que tout le chantier devait se faire 'à la main' en passant par le salon existant. Le choix du douglas en bardage s'est fait par soucis d'utiliser un bois sans traitement et d'obtenir un grisonnement se fondant dans l'environnement de pierre et de végétation du coteau. Le volume final compact de l'habitation (donc plus facile à chauffer sans avoir besoin d'isoler les anciennes façades de pierre (pièces étroites)) capte mieux les apport solaires.

Descriptif technique : Les murs vêtus de bardage en douglas sont en ossature bois. Les menuiseries extérieures et les brises soleil sont en aluminium Un plancher bas en bois a été réalisé sur vide sanitaire et sur l'ancienne terrasse. Le plancher intermédiaire a été fait en panneaux sandwich bois+liège (panneau Simonin "Sapilège"). Le plancher toit terrasse est en panneaux sandwich bois + PSE graphité (panneau Simonin "Sapiphone"). En couverture, on trouve une membrane d'étanchéité soudée à chaud. Réalisation d'un puits de jour entre l'ancienne façade et l'extension : verrière en toiture et vide + passerelle de verre + acier entre l'existant et la nouvelle chambre.

Chauffage au Bois : oui
Appareil de chauffage au bois : Poële/insert
Données déclaratives

Acteurs du projet

Maître d'ouvrage (1)

Maître d'ouvrage - Particuliers

particulier (x)

Etudes et ingénieries (2)

Maître d'œuvre - Architecte mandataire

H+ ARTEFACT (79)

Bureau d'études structure bois

Synergie Bois B.E.T (49)

Entreprises des lots bois (3)

Charpentier

SARL RENAULT (79)

Menuisier

SARL RENAULT (79)

Constructeur bois

SARL RENAULT (79)

Fournisseurs du bois (2)

Industriel

SIMONIN SAS (25)
Pavatex France (88)




* : L'entreprise n'est plus active
Retour à la liste