Réhabiliter un équipement
Réhabiliter un équipement

Construction d'un équipement de quartier avec réhabilitation du bâtiment historique du Jeu de Paume

35000 RENNES - Ille et Vilaine - Bretagne
Lauréat régional

BÂTIMENT / LOGEMENT

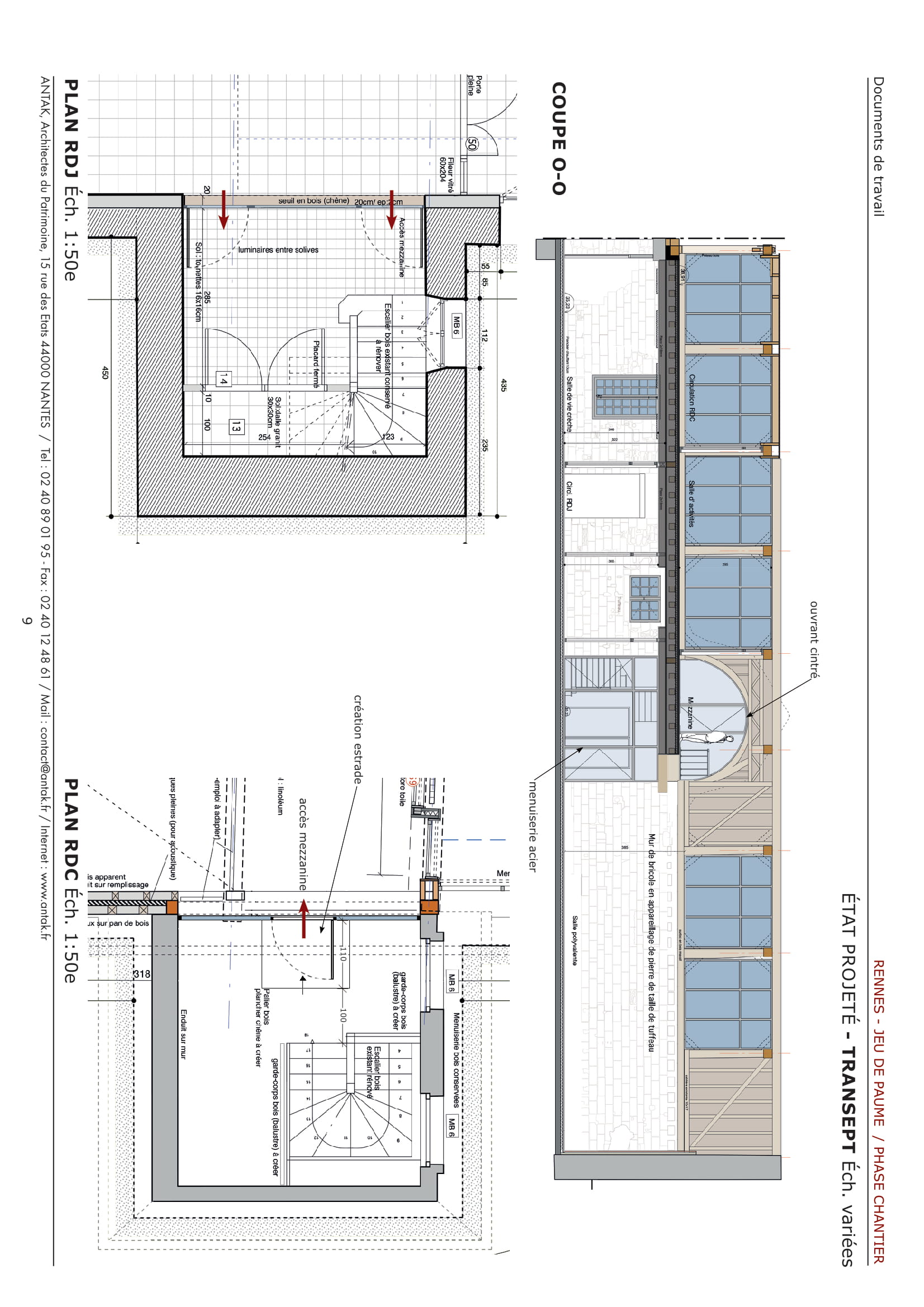
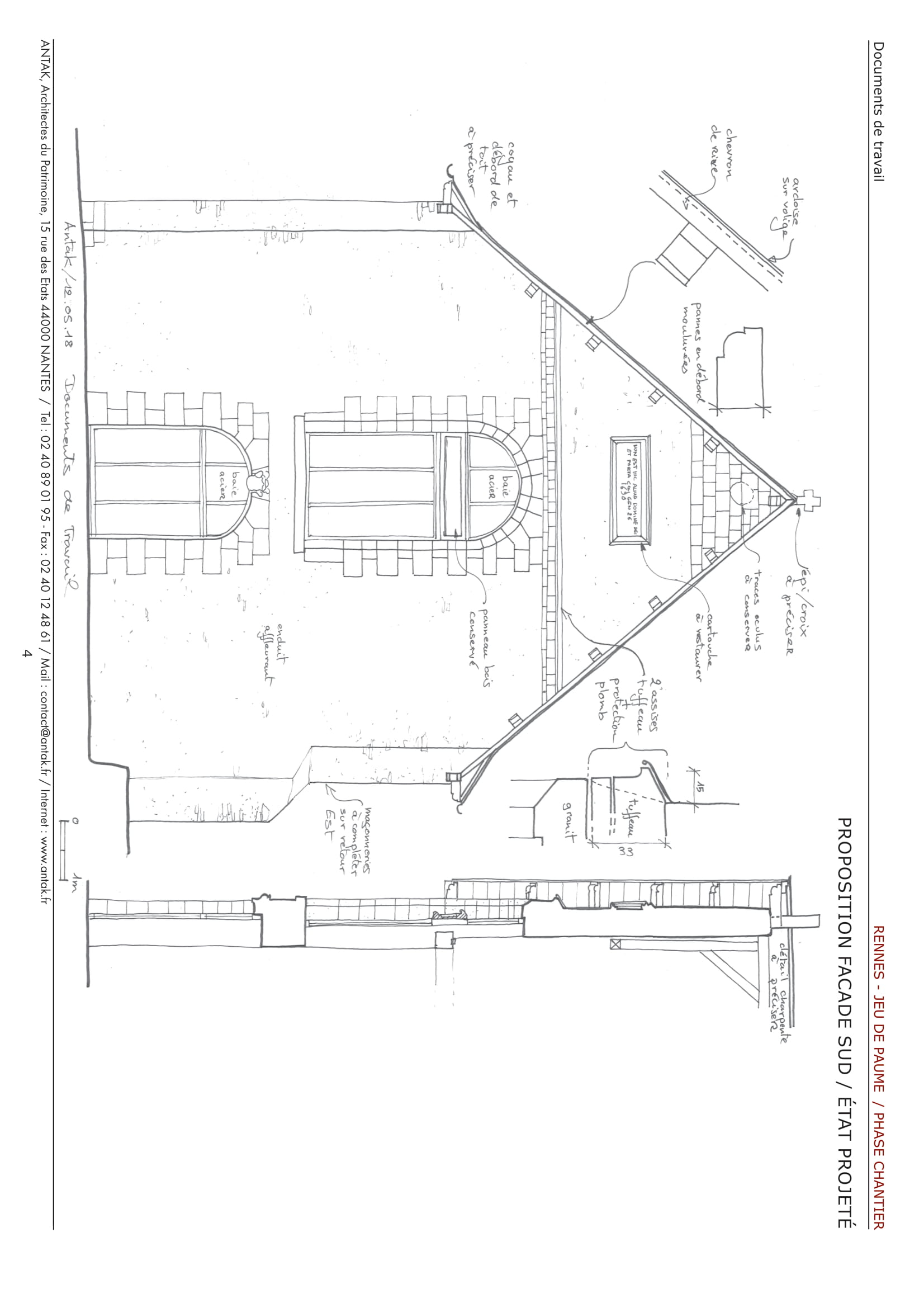
Le projet consiste à insérer un équipement public de quartier dans un tissu ancien, composé du bâtiment du Jeu de Paume réhabilité et étendu. Cet équipement se situe à proximité et en lien avec le bâtiment de la Salle de la Cité existante. Le projet architectural dans son ensemble tire son essence de la simplicité constructive et affirmée du bâtiment historique en bois, construit au XVII ème siècle. La complexité du projet a résidé dans la mise en adéquation du programme (crèche et salles associatives) avec la volonté impérieuse de mettre en valeur les volumes historiques.

Catégorie Bâtiment / logement
Numéro de projet4333
Adresse du projet 12 Rue Saint-Louis
35000 RENNES
Date de candidature19/02/2020

Bâtiment / logement

Détail projet

Typologie de bâtiment : Rénovation / Réhabilitation
Type de bâtiment : Loisirs,Enseignement ou éducation
Année de livraison : 2019
Surface totale du bâtiment en m² : 1173
Coût total en € HT (hors foncier, hors VRD, hors honoraires) : 4500000
Volume lot bois n°1 - m³ : 182
Coût du lot bois n°1 - € HT : 396950
Bois Français : oui
Isolations biosourcées (préciser dans le descriptif technique) : non
Finitions intéreures biosourcées ou géosourcées (préciser dans le descriptif technique) : non

Structure bois du bâtiment

Structure verticale :

ProduitEssenceProvenances (lieu de croissance du bois)Traitements de préservationMarque et certification produit
Poteau poutreChêneFrance

Structure horizontale :

ProduitEssenceProvenances (lieu de croissance du bois)Traitements de préservationMarque et certification produit
Plancher mixte bois-bétonChêneFrance

Charpente :

ProduitEssenceProvenances (lieu de croissance du bois)Traitements de préservationMarque et certification produit
Charpente historiqueChêne

Revêtement bois extérieur

Revêtement bois ou dérivés :

ProduitEssenceProvenances (lieu de croissance du bois)Marque et certification produitFinitionTraitements de préservation
Lame bois massifChâtaignierFrance

Menuiserie intérieure et extérieure

Isolation des murs

Isolation de la toiture

Descriptif technique : La charpente du bâtiment restructuré est composée de fermes et de pannes en chêne restaurées. Un diaphragme lamibois en toiture joue le rôle de poutre au vent et ramène les efforts sur les points durs. La stabilité longitudinale et transversale des structures bois est assurée par des palées de stabilités, des croix de Saint-André et des murs à ossature bois sur les façades. Le plancher haut du rez-de-chaussée est un plancher collaborant mixte bois-béton.

Chauffage au Bois : non
Données déclaratives

Acteurs du projet

Maître d'ouvrage (1)

Maître d'ouvrage - État ou collectivité (locale et territ)

VILLE DE RENNES (35)

Etudes et ingénieries (7)

Maître d'œuvre - Architecte mandataire

Topos Architecture (44)

Maître d’œuvre - Architecte collaborateur

ANTAK - Architectes du Patrimoine (44)

Bureau d'études acoustique

Impact Acoustic (44)

Bureau d'études structure bois

Ecsb (49)

Bureau d'études thermique

NOX INGÉNIERIE (35)
BETOM INGÉNIERIE LOIRE-BRETAGNE (35)

Economiste

NOX INGÉNIERIE (35)

Entreprises des lots bois (1)

Charpentier

Cruard Charpente Et Construction Bois (53)

Fournisseurs du bois (1)

Scierie

RAHUELBOIS (35)




* : L'entreprise n'est plus active
Retour à la liste