Apprendre – se divertir
Apprendre – se divertir

Groupe scolaire avec équipement sportif à Saint-Cyr-sur-Loire

37540 Saint-Cyr-sur-Loire - Indre et Loire - Centre-Val de Loire

BÂTIMENT / LOGEMENT

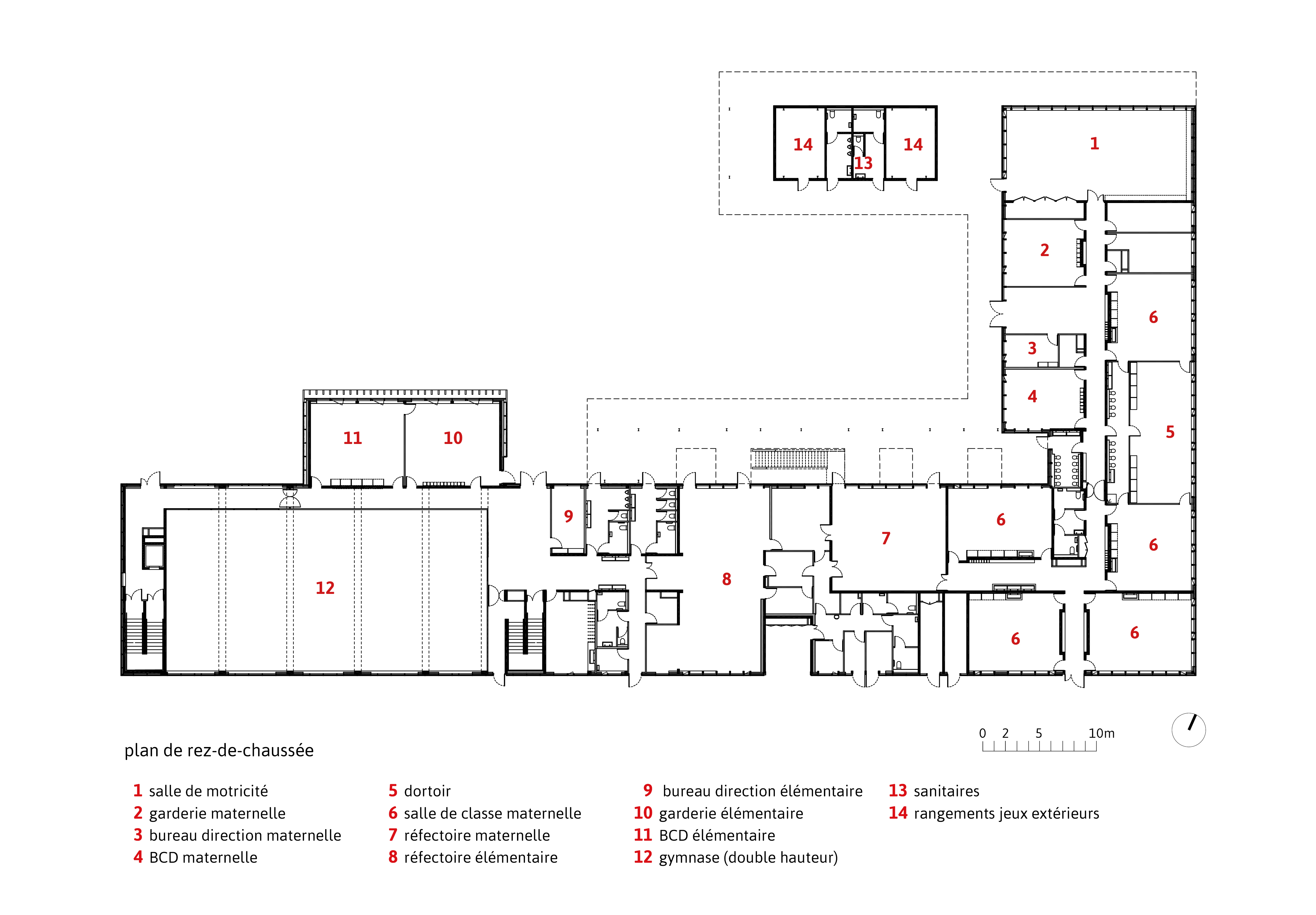
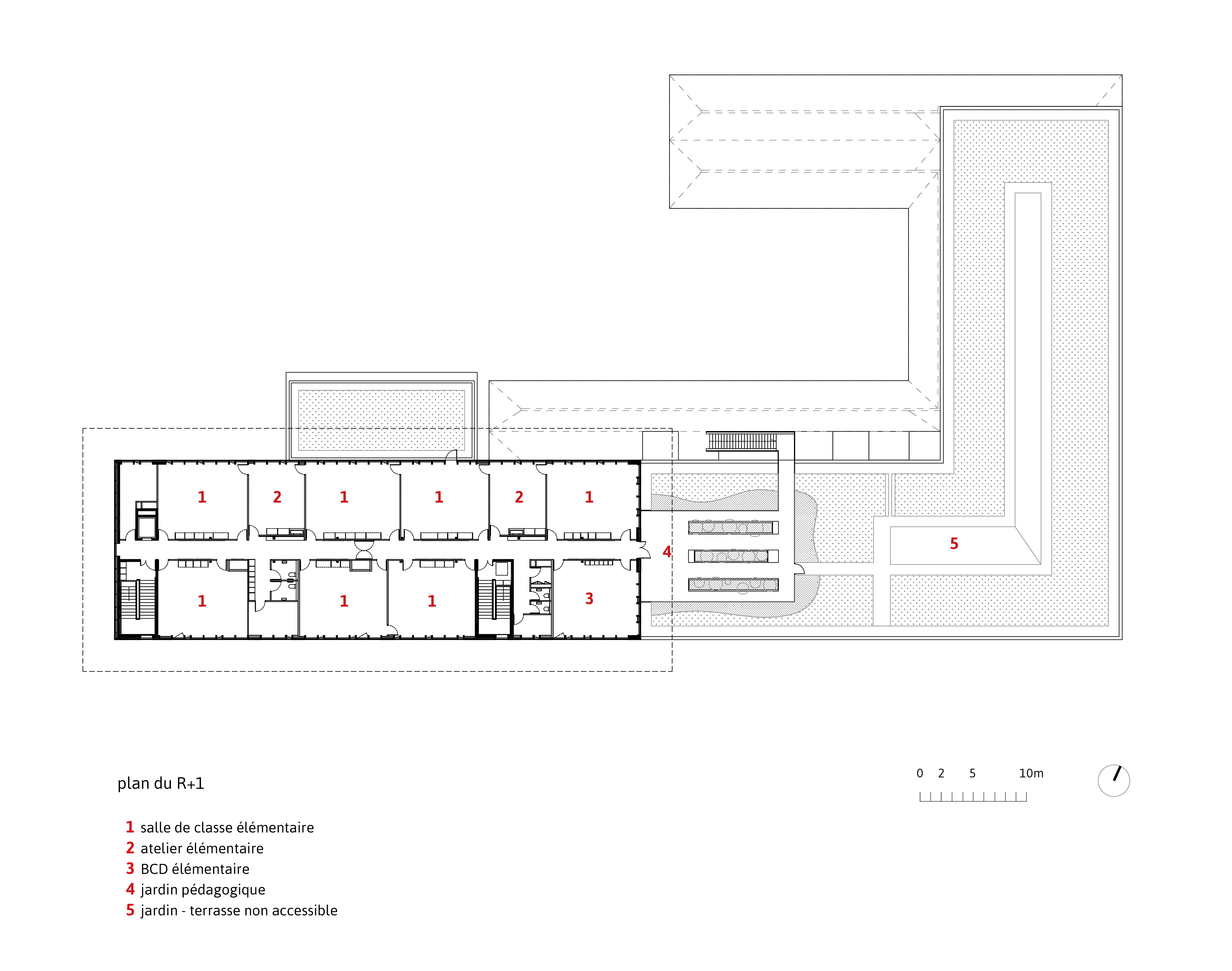
Pour cet équipement, nous avons conçu un bâtiment-paysage qui se caractérise par son horizontalité et son insertion discrète dans le Parc de Montjoie. La végétation y joue un rôle essentiel avec ses talus enherbés entourant le bâtiment jusqu’au niveau des allèges et son jardin pédagogique en toiture de l’école maternelle. L’esprit du projet s’exprime également au travers des matériaux utilisés : le bois, le béton et le métal. Les façades filantes, qui alternent le verre et le métal noir, mettent en avant la charpente en bois et ses larges avancées de toitures.

Catégorie Bâtiment / logement
Numéro de projet4107
Adresse du projet 29 à 33 avenue de la République
37540 Saint-Cyr-sur-Loire
Date de candidature03/02/2020

Bâtiment / logement

Détail projet

Typologie de bâtiment : Neuf
Type de bâtiment : Enseignement ou éducation
Année de livraison : 2019
Surface totale du bâtiment en m² : 3244
Coût total en € HT (hors foncier, hors VRD, hors honoraires) : 6176740
Lot bois n°1 concerné : Charpente bois
Volume lot bois n°1 - m³ : 397.7
Coût du lot bois n°1 - € HT : 752819
Lot bois n°2 concerné : ossature bois
Volume lot bois n°2 - m³ : 51.8
Coût du lot bois n°2 - € HT : 101999
Bois Français : non
Isolations biosourcées (préciser dans le descriptif technique) : non
Finitions intéreures biosourcées ou géosourcées (préciser dans le descriptif technique) : non

Structure bois du bâtiment

Structure verticale :

ProduitEssenceProvenances (lieu de croissance du bois)Traitements de préservationMarque et certification produit
Poteau poutreÉpicéa communEuropeJe n'ai pas l'information

Structure horizontale :

ProduitEssenceProvenances (lieu de croissance du bois)Traitements de préservationMarque et certification produit
Plancher mixte bois-bétonÉpicéa communEuropeJe n'ai pas l'information

Charpente :

ProduitEssenceProvenances (lieu de croissance du bois)Traitements de préservationMarque et certification produit
Charpente bois lamellé-colléÉpicéa communEuropeJe n'ai pas l'information

Revêtement bois extérieur

Autre revêtement métallique :

Produit
Alu

Menuiserie intérieure et extérieure

Isolation des murs

Isolation entre-montant des murs :

Produit
Laine de verre
Epaisseur (mm) Isolation entre-montant des murs : 200

Isolation de la toiture

Epaisseur (mm) Isolation extérieure de la toiture : 250

Approche environnementale : Projet mené selon une démarche HQE sans objectif de certification. Avec un total de 467,5 m³, le bois a été largement employé. Son utilisation permet de faire écho à l’environnement paysagé, tout en offrant un faible impact environnemental et de nombreux avantages techniques. L’isolation performante des parois, la perméabilité à l’air des façades et de la toiture, et les éléments techniques mis en œuvre (luminaires basse consommation programmables, sondes CO2 …) ont permis d’atteindre une performance thermique équivalente à la RT2012 – 50% et une performance énergétique de niveau effinergie+.

Descriptif technique : Les poteaux et poutres en épicéa de la structure du RDC s’appuient sur des murs de refend et allèges en béton, et sur des poteaux métalliques supportant les poutres bois se prolongeant en extérieur pour former des préaux. Un plancher mixte bois/béton accueille la toiture jardin. L’étage de l’élémentaire se développe sur une structure poteaux-poutres en épicéa formant portiques. La trame structurelle composée de poutres bois tous les 60 cm a permis des fondations superficielles et l’intégration des éléments techniques. La charpente (poteaux, poutres, plafond) a été modélisée en 3D et fabriquée en usine.

Chauffage au Bois : non
Données déclaratives

Acteurs du projet

Maître d'ouvrage (1)

Maître d'ouvrage - État ou collectivité (locale et territ)

commune de Saint Cyr sur Loire (37)

Etudes et ingénieries (7)

Maître d'œuvre - Architecte mandataire

MARJAN HESSAMFAR & JOE VERONS ARCHITECTES ASSOCIES (33)

Bureau d'études structure bois

TERRELL (92)
TERRELL (31)

Bureau d'études environnement

CABINET CHOULET (63)

Bureau d'études thermique

CABINET CHOULET (63)

Economiste

Techniques et Chantiers (49)

Architecte / paysagiste concepteur

BERTRAND MASSÉ (17)

Entreprises des lots bois (4)

Charpentier

BOUSSIQUET (37)

Menuisier

LAFOREST (37)
PARTEN'R AGENCEMENTS (37)

Autre lot de la construction (en lien avec le bois)

CILC - Siège sociale (86)

Fournisseurs du bois (1)

Industriel

AGROP NOVA A.S. (Novatop) (CZ)




* : L'entreprise n'est plus active
Retour à la liste