Habiter ensemble
Habiter ensemble

Logements Collège Simone Veil

72300 Sablé sur Sarthe - Sarthe - Pays de la Loire

BÂTIMENT / LOGEMENT

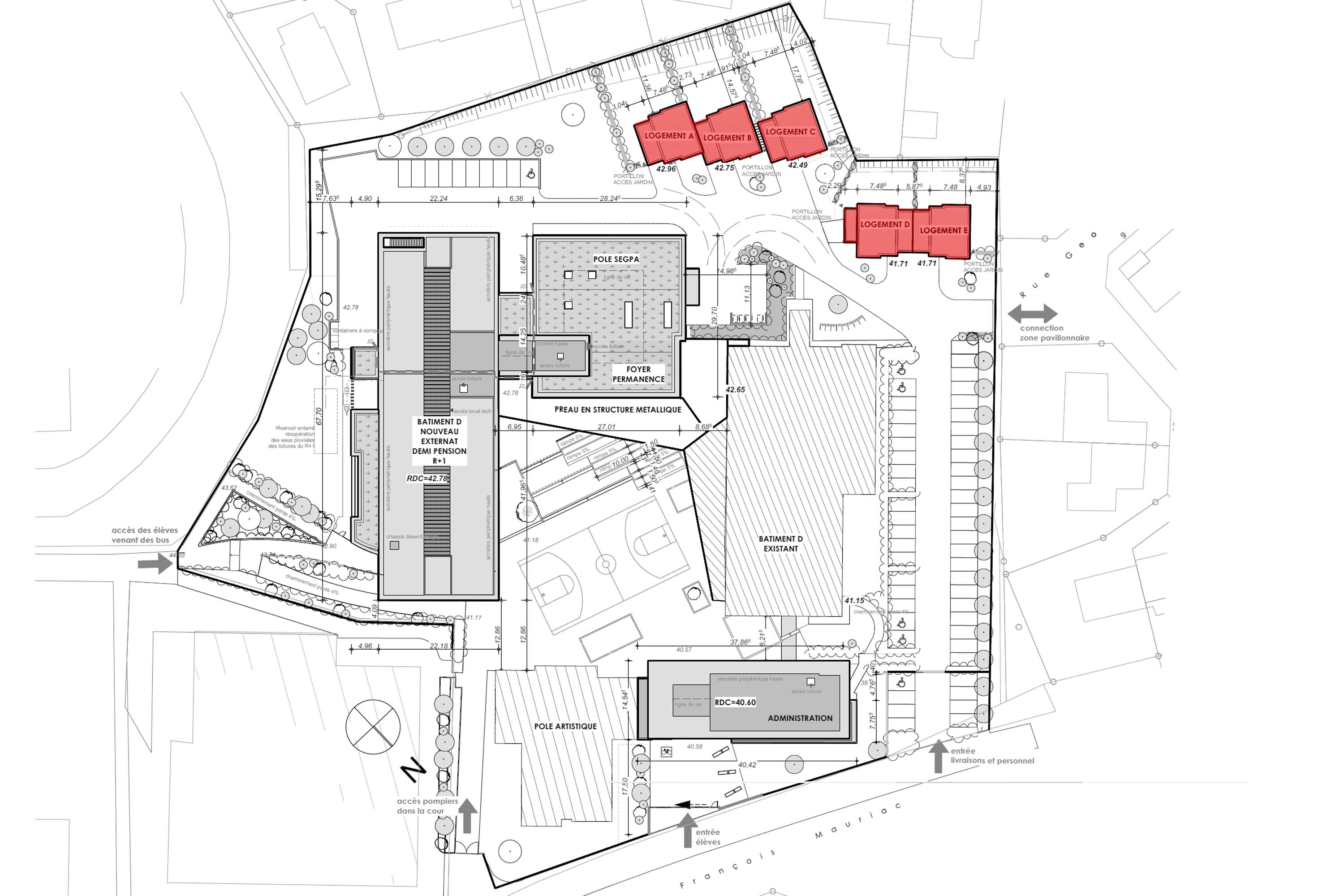
5 logements de fonction neufs pour le collège ANJOU récemment rebaptisé en Collège Simone VEIL. L'emploi de bois pour la création du nouvel externat a servi de prétexte pour utiliser le bois également pour les logements.

Catégorie Bâtiment / logement
Numéro de projet1748
Adresse du projet Rue François Mauriac
72300 Sablé sur Sarthe
Date de candidature27/02/2019

Bâtiment / logement

Détail projet

Typologie de bâtiment : Neuf
Type de bâtiment : Logement groupé
Année de livraison : 2018
Surface totale du bâtiment en m² : 485
Lot bois n°1 concerné : Aucun
Lot bois n°2 concerné : Aucun
Bois Français : non

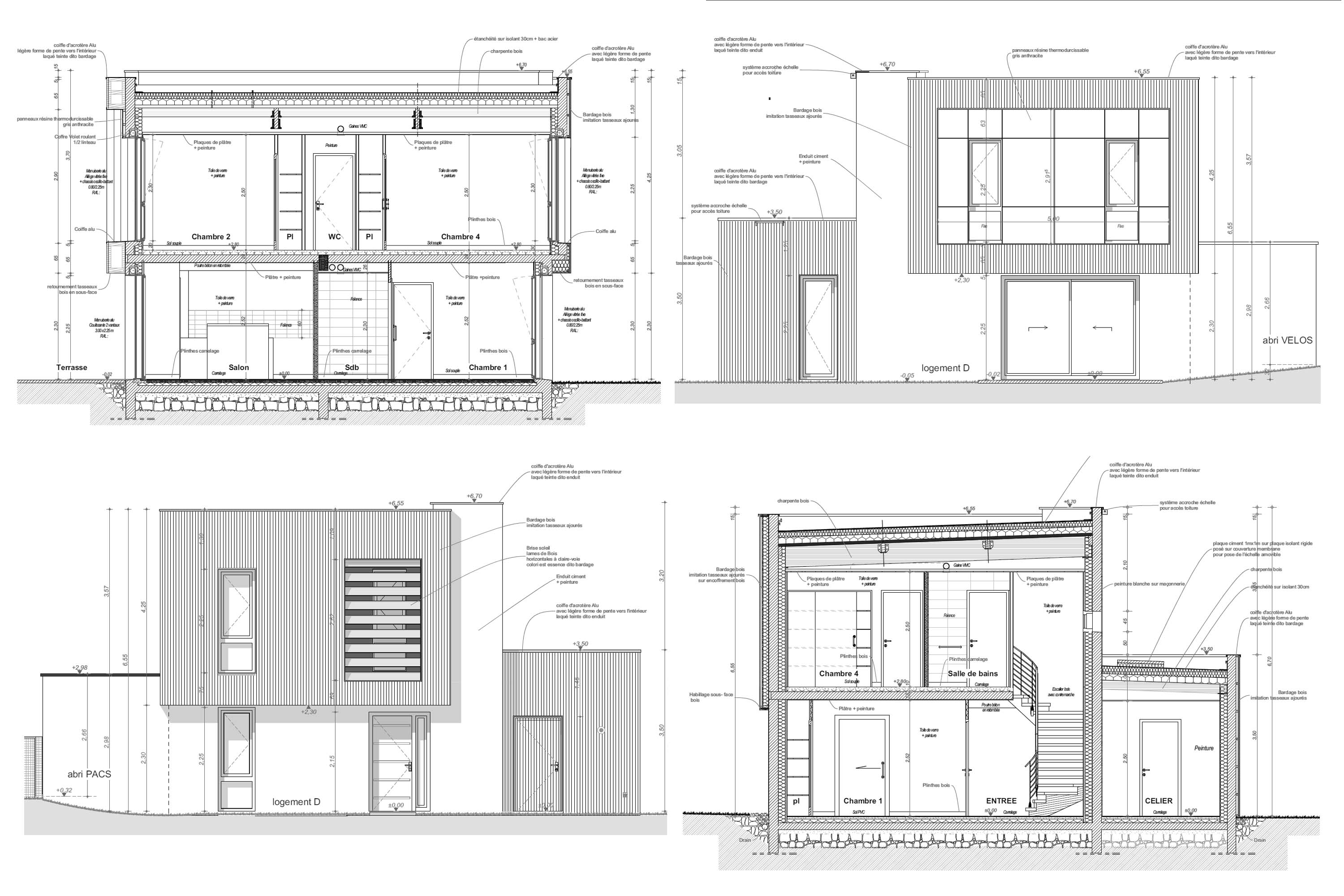
Structure bois du bâtiment

Structure verticale :

ProduitEssenceProvenances (lieu de croissance du bois)Traitements de préservationMarque et certification produit
Panneau ossature bois

Structure horizontale :

ProduitEssenceProvenances (lieu de croissance du bois)Traitements de préservationMarque et certification produit
Plancher béton

Charpente :

ProduitEssenceProvenances (lieu de croissance du bois)Traitements de préservationMarque et certification produit
Charpente bois lamellé-collé

Revêtement bois extérieur

Menuiserie intérieure et extérieure

Isolation des murs

Isolation de la toiture

Chauffage au Bois : non
Données déclaratives

Acteurs du projet

Maître d'ouvrage (1)

Maître d'ouvrage - État ou collectivité (locale et territ)

Conseil Départemental de la Sarthe (72)

Etudes et ingénieries (4)

Maître d'œuvre - Architecte mandataire

Frédéric Fonteneau (85)

Bureau d'études acoustique

ACOUSTIBEL (35)

Bureau d'études structure bois

AREST CHOLET (49)

Economiste

Eco 2A (49)

Entreprises des lots bois (1)

Charpentier

Charpente Cénomane Sarl (72)




* : L'entreprise n'est plus active
Retour à la liste