Réhabiliter un équipement
Réhabiliter un équipement

L'espace Django Reinhardt

67100 Strasbourg - Neuhof - Bas Rhin - Grand Est

BÂTIMENT / LOGEMENT

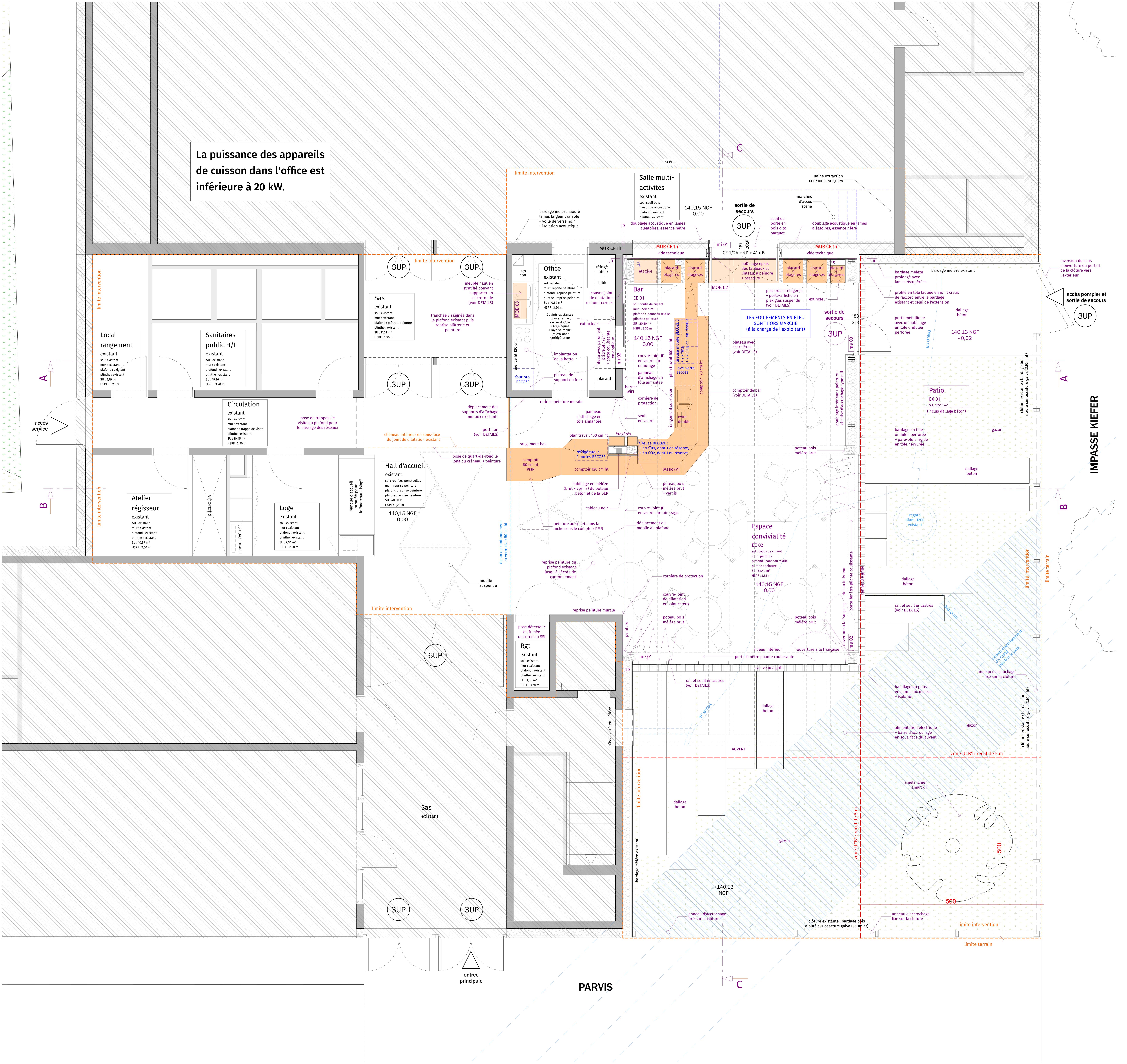
Le projet consiste à la construction d’un espace de convivialité, en extension du hall de l’Espace Culturel Django Reinhardt. Il s’inscrit dans une belle continuité architecturale en réinterprétant la volumétrie et la matérialité du bâtiment existant. La façade métallique perforée change de couleur et d’aspect suivant l’angle. Les châssis vitrés pliants et coulissants ouvrent l’espace sur le patio. La charpente bois reste apparente et participe à l’aménagement intérieur. Un comptoir de bar en bois se positionne en pivot esthétique et fonctionnel entre le hall et l’extension.

Catégorie Bâtiment / logement
Numéro de projet1665
Adresse du projet 4 impasse Kiefer
67100 Strasbourg - Neuhof
Date de candidature25/02/2019

Bâtiment / logement

Détail projet

Typologie de bâtiment : Extension / surélévation
Type de bâtiment : Culture
Année de livraison : 2018
Surface totale du bâtiment en m² : 68
Coût total en € HT (hors foncier, hors VRD, hors honoraires) : 259250
Lot bois n°1 concerné : Charpente bois
Volume lot bois n°1 - m³ : 95
Coût du lot bois n°1 - € HT : 25000
Lot bois n°2 concerné : Menuiserie extérieure bois
Volume lot bois n°2 - m³ : 15
Coût du lot bois n°2 - € HT : 29000
Bois Français : non

Structure bois du bâtiment

Structure verticale :

ProduitEssenceProvenances (lieu de croissance du bois)Traitements de préservationMarque et certification produit
Panneau ossature bois

Structure horizontale :

ProduitEssenceProvenances (lieu de croissance du bois)Traitements de préservationMarque et certification produit
Plancher béton

Charpente :

ProduitEssenceProvenances (lieu de croissance du bois)Traitements de préservationMarque et certification produit
Charpente bois lamellé-collé

Revêtement bois extérieur

Autre revêtement métallique :

Produit
Acier

Menuiserie intérieure et extérieure

Menuiserie extérieure :

ProduitEssenceProvenances (lieu de croissance du bois)Marque et certification produitFinition
Menuiserie bois

Isolation des murs

Isolation intérieure des murs :

Produit
Fibre de bois (Panneaux)
Epaisseur (mm) Isolation entre-montant des murs : 200

Isolation de la toiture

Epaisseur (mm) Isolation entre-montant de la toiture : 200

Approche environnementale : Le projet a été pensé et réalisé en bois afin de favoriser la filière sèche ainsi qu'un chantier propre et de courte durée. La charpente bois,très présente à l'intérieur, se retourne pour venir créer des espaces de rangements intérieurs et pour créer une trame régulière en façade.

Chauffage au Bois : non
Données déclaratives

Acteurs du projet

Maître d'ouvrage (1)

Maître d'ouvrage - État ou collectivité (locale et territ)

Eurometropole de Strasbourg (67)

Etudes et ingénieries (2)

Maître d'œuvre - Architecte mandataire

Lama architectes (67)

Bureau d'études structure bois

INGENIERIE BOIS (67)

Entreprises des lots bois (2)

Charpentier

BOIS2BOO (67)

Menuisier

Menuiserie Ettwiller (57)




* : L'entreprise n'est plus active
Retour à la liste