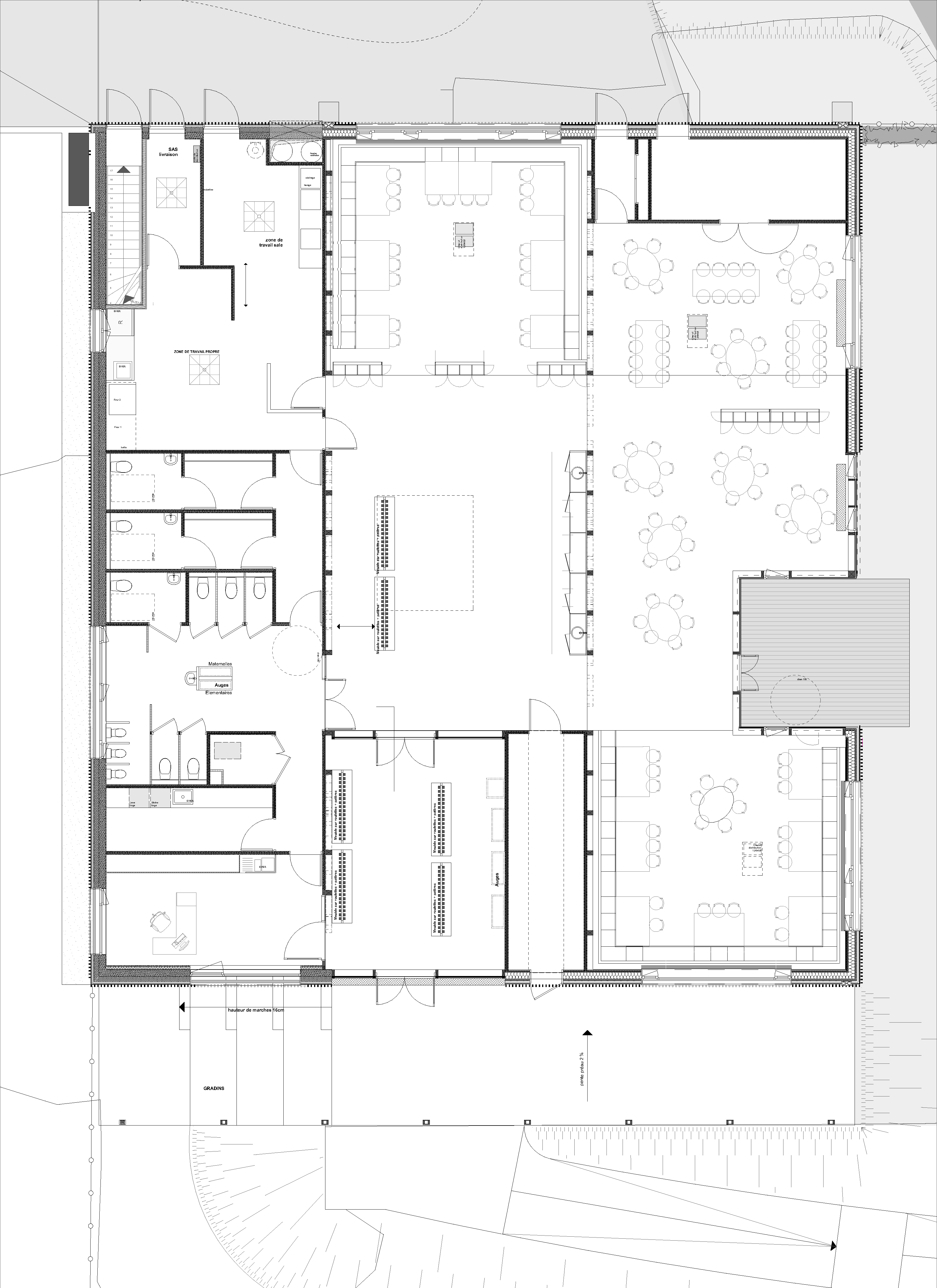
Le bâtiment de forme simple, au plan carré, prend place en contrebas du Granjou. Les fonctions sont spatialement définies dans un plan ouvert par les éléments de mobilier et de structure, venant circonscrire l’espace sans le fermer. La continuité visuelle participe de l’unité et de la cohérence du lieu, libérant des vues en tout point du projet sur le grand paysage. Le grand espace de vie, donnant sur trois façades, est ventilé naturellement. La lumière naturelle éclaire le projet par de larges baies horizontales sur chaque coin repas, un mur rideau en façade Est sur le patio et un édicule lumineux en polycarbonate sur l’espace central. Le bois est utilisé en structure, parements intérieurs, revêtements acoustiques et mobilier.
Catégorie | Bâtiment / logement |
---|---|
Numéro de projet | 1137 |
Adresse du projet |
rue du serpaton 38650 MONESTIER DE CLERMONT |
Date de candidature | 31/01/2019 |
Structure verticale :
Produit | Essence | Provenances (lieu de croissance du bois) | Traitements de préservation | Marque et certification produit | |
---|---|---|---|---|---|
Panneau ossature bois | Douglas | Auvergne-Rhône-Alpes | Aucun traitement |
Structure horizontale :
Produit | Essence | Provenances (lieu de croissance du bois) | Traitements de préservation | Marque et certification produit | |
---|---|---|---|---|---|
Solivage traditionnel | Épicéa commun | Auvergne-Rhône-Alpes | Aucun traitement |
Charpente :
Produit | Essence | Provenances (lieu de croissance du bois) | Traitements de préservation | Marque et certification produit | |
---|---|---|---|---|---|
Charpente traditionnelle | Épicéa commun | Auvergne-Rhône-Alpes | Aucun traitement |
Revêtement bois ou dérivés :
Produit | Essence | Provenances (lieu de croissance du bois) | Marque et certification produit | Finition | Traitements de préservation |
---|---|---|---|---|---|
Lame bois massif | Douglas | Auvergne-Rhône-Alpes | Aucune finition |
Menuiserie extérieure :
Produit | Essence | Provenances (lieu de croissance du bois) | Marque et certification produit | Finition | |
---|---|---|---|---|---|
Menuiserie bois | Pin sylvestre | France | Lasure |
Isolation intérieure des murs :
Produit | |||||
---|---|---|---|---|---|
Laine de roche |
Isolation entre-montant des murs :
Produit | |||||
---|---|---|---|---|---|
Laine de bois souple |
Isolation extérieure des murs :
Produit | |||||
---|---|---|---|---|---|
Fibre de bois (Panneaux) |
Approche environnementale : RT2012 avec Cep = 117.40 kWh/m²(SRT)an Charpente et murs ossature bois : Bois des Alpes - volume labellisé : 77 m3 Charpente et murs ossature bois : PEFC - volume labellisé : 87 m3 Panneaux murs ossature bois : 1575 m2 de panneaux PEFC sur les 1610 utilisés Menuiseries extérieures : Volume labellisé : 1.42m3 - 100% PEFC Bois utilisés en aménagement intérieur : Volume labellisé : 5.53m3 – 100% PEFC La Communauté de Communes du Trièves a souhaité être exemplaire en faisant le choix du bois local dans ce projet. Le bois massif utilisé provient de l'Isère et a été mis en oeuvre par des entreprises du territoire. Plus particulièrement le douglas utilisé en bardage extérieur est issu d'une parcelle forestière située sur la commune de Monestier de Clermont. Grâce à ce projet deux entreprises du territoire (scieur et charpentier) ont intégré la démarche Bois des Alpes.
Descriptif technique : Le bâtiment est assis sur une dalle béton sur terre-plein. Les murs extérieurs recevant les parties semi encastrées sur la bande de services à l’ouest sont en béton. Le reste de la structure verticale et horizontale est en bois,et ferment tous les espaces « nobles » de l’espace de loisir et des salles à manger. Les murs rideaux sont également structurels. Le bâtiment est traversé du nord au sud par deux files structurelles principales, en poteaux-poutres de bois massif, assurant la descente de charges verticales et le contreventement de la structure. Le motif dessiné par les diagonales s’éloigne des traditionnels treillis ou croix de Saint-André pour emprunter davantage à une dynamique végétale arborescente. Ainsi chaque brin diagonal entre poteaux assure-t-il une fonction de contreventement, aucun élément n’est superflu. La toiture est portée par des chevrons reconstitués vissés, visibles en sous-face sur toute leur hauteur, entre lesquels viennent s’intercaler des panneaux acoustiques en fibres de bois. La pente en toiture pour écoulement des eaux pluviales est donnée par les entretoises délignées en pente au-dessus du pare-pluie. PEFC (Gestion forestière durable) Bois des Alpes
Chauffage au Bois : ouiCOMMUNAUTE COM DU TRIEVES (38)
ENTREPRISE MICHELI CHRISTOPHE (38)
ENTREPRISE MICHELI CHRISTOPHE (38)
SCIERIE BARTHALAY TREMINIS (38)