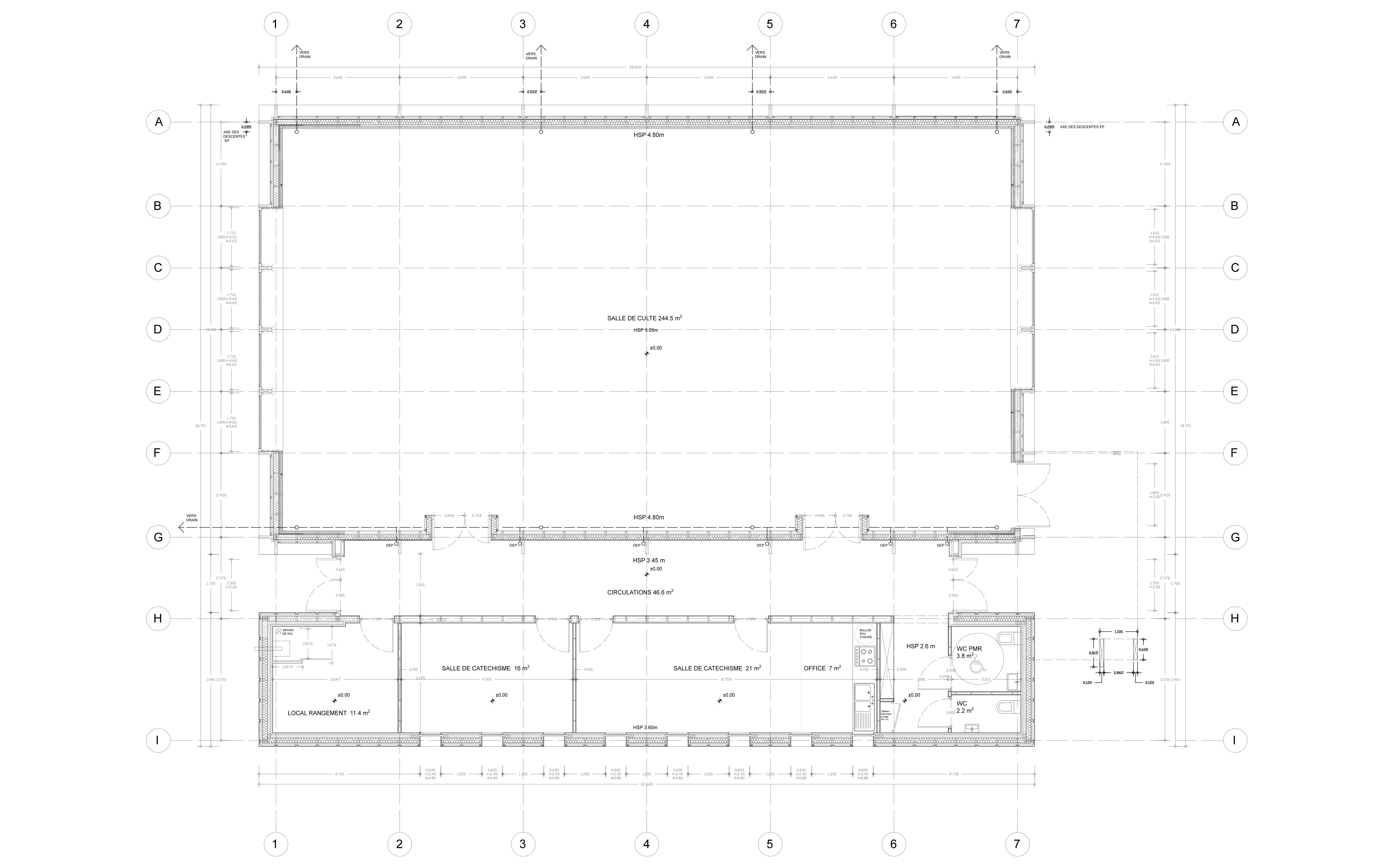
Cette Eglise est vouée à servir pour 10 ans. Après elle deviendra un bâtiment communal ou sera démontée. Le bois s''est imposé comme réponse aux exigences de coût, de temps de mise en oeuvre, et au caractère temporaire du bâtiment. L’église est réalisée en ossature bois avec des éléments préfabriqués en atelier, et assemblés sur place. La volumétrie est simple et pragmatique, les matériaux sont montrés pour ce qu’ils sont et c’est par la délicatesse avec laquelle il se côtoient et s’assemblent que se dégage la dignité qu’un tel lieu sacré requiert.
Catégorie | Bâtiment / logement |
---|---|
Numéro de projet | 976 |
Adresse du projet |
102 rue de Bicêtre 94240 L'Haÿ-les-Roses |
Date de candidature | 09/01/2019 |
Structure verticale :
Produit | Essence | Provenances (lieu de croissance du bois) | Traitements de préservation | Marque et certification produit | |
---|---|---|---|---|---|
Panneau ossature bois |
Structure horizontale :
Produit | Essence | Provenances (lieu de croissance du bois) | Traitements de préservation | Marque et certification produit | |
---|---|---|---|---|---|
Non précisé |
Charpente :
Produit | Essence | Provenances (lieu de croissance du bois) | Traitements de préservation | Marque et certification produit | |
---|---|---|---|---|---|
Charpente bois lamellé-collé | Épicéa commun |
Revêtement bois ou dérivés :
Produit | Essence | Provenances (lieu de croissance du bois) | Marque et certification produit | Finition | Traitements de préservation |
---|---|---|---|---|---|
Panneau bois massif contrecollé | Douglas |
Isolation intérieure des murs :
Produit | |||||
---|---|---|---|---|---|
Laine de verre |
Isolation extérieure des murs :
Produit | |||||
---|---|---|---|---|---|
Fibre de bois (Panneaux) |
Approche environnementale : Le bâtiment a été pensé autour de son impact environnementale et sa durabilité de part l'incertitude sur le devenir du bâtiment après ses 10 premières années. Ainsi le plan dans son organisation reste ouvert pour un changement de programme de l'édifice afin de perdurer au-delà du besoin de la commande. Ensuite la construction en éléments préfabriqués en bois a assuré une construction courte, propre avec un bilan énergétique réduit. Ensuite si le bâtiment devait être supprimé il pourrait être démonté comme il a été monté, la matière bois recyclée, et certains éléments pourront être réemployés.
Descriptif technique : La structure du bâtiment est en Murs à Ossature Bois et éléments en laméllé-collé. Le contreventement vertical est assuré par le voile travaillant en OSB des MOB et par les panneau assurant la sous-face de la toiture et le support de l'isolant font office de contreventement horizontal.
Chauffage au Bois : nonAssociation Diocésaine de Créteil (94)
Théophile Chaudieu (75)
ARCHIDUO (78)