Réhabiliter un logement
Réhabiliter un logement

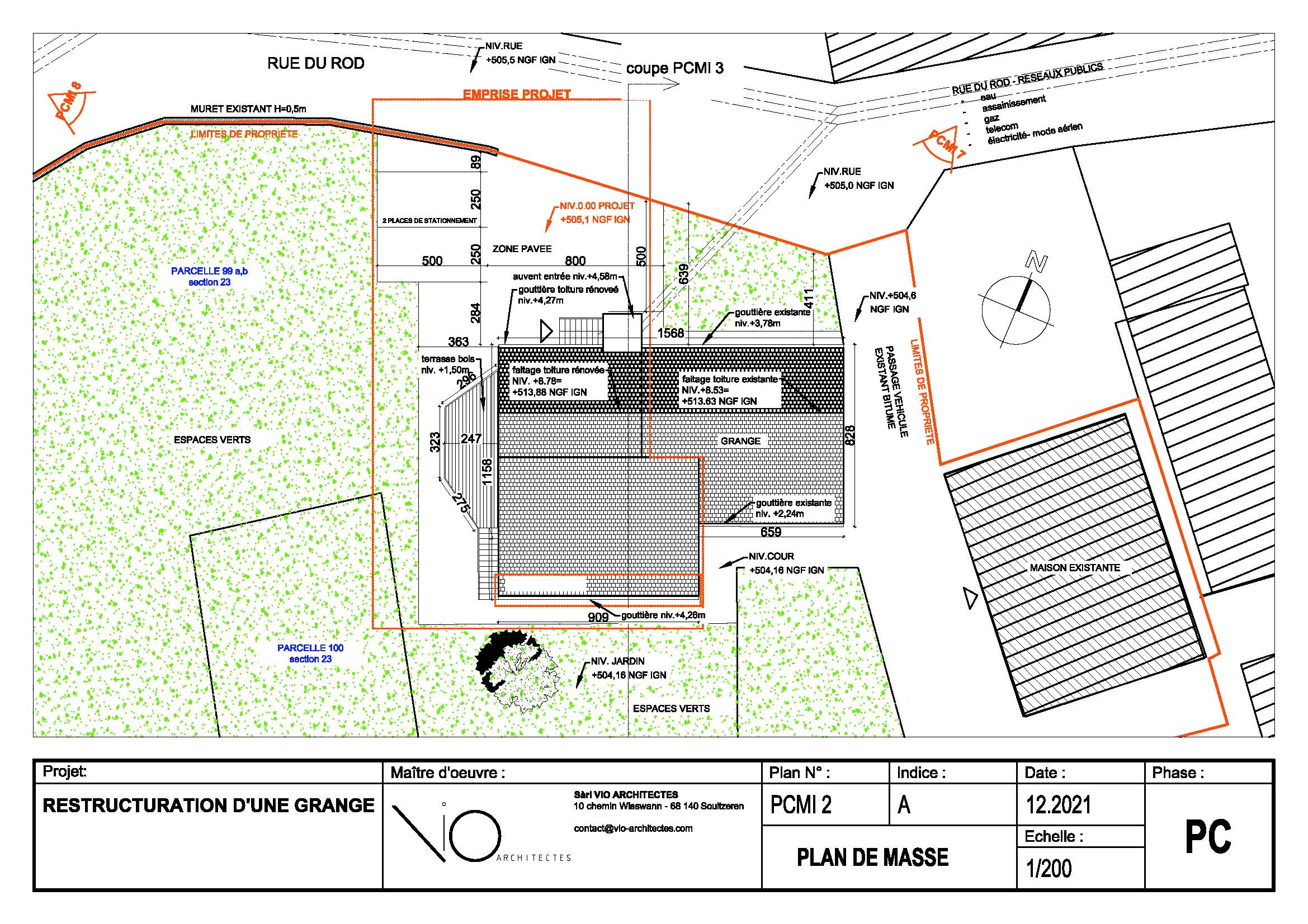
La grange

68140 SOULTZEREN - Haut Rhin - Grand Est

BÂTIMENT / LOGEMENT

Rénovation d'une ancienne grange au cœur du village, transformée en logement, ce projet sublime le patrimoine montagnard de la vallée de Munster. La moitié ouest est rénovée, préservant le reste dans son esprit d'antan. Le pignon ouest s'ouvre sur une vue splendide grâce à une grande baie agrandie. Une élégante extension sud-ouest, baignée de soleil, prolonge le séjour par une terrasse abritée, cœur du projet. Le bois domine : bardage en mélèze pour l'âme traditionnelle, bois brûlé et acier noir pour signer la modernité. Un auvent nord marque l'entrée, liant passé et présent avec harmonie.

Catégorie Bâtiment / logement
Numéro de projet9717
Date de candidature13/03/2025

Bâtiment / logement

Détail projet

Typologie de bâtiment : Extension / surélévation,Rénovation / Réhabilitation
Type de bâtiment : Logement individuel inférieur 120 m²
Année de livraison : 2024
Surface totale du bâtiment en m² : 145
Dont extension / surélévation en m² : 44
Coût total en € HT (hors foncier, hors VRD, hors honoraires) : 380000
Lot bois n°1 concerné : Charpente bois,Bardage bois,Menuiserie intérieure bois,Menuiserie extérieure bois,ossature bois
Coût du lot bois n°1 - € HT : 135000
Bois Français : oui
Matériaux issus du ré-emploi (préciser dans le descriptif technique) : non
Isolations biosourcées (préciser dans le descriptif technique) : oui
Matériaux géosourcés (préciser dans le descriptif technique) : non
Finitions intéreures biosourcées ou géosourcées (préciser dans le descriptif technique) : non

Structure bois du bâtiment

Structure verticale :

ProduitEssenceProvenances (lieu de croissance du bois)Traitements de préservationMarque et certification produit
Panneau ossature bois, Poteau poutreFranceTraitement Classe 2 (trempage)PEFC

Structure horizontale :

ProduitEssenceProvenances (lieu de croissance du bois)Traitements de préservationMarque et certification produit
Solivage traditionnelFranceTraitement Classe 2 (trempage)PEFC

Charpente :

ProduitEssenceProvenances (lieu de croissance du bois)Traitements de préservationMarque et certification produit
Charpente traditionnelleFranceTraitement Classe 2 (trempage)PEFC
Charpente bois lamellé-colléEuropeTraitement Classe 2 (trempage)PEFC

Revêtement bois extérieur

Revêtement bois ou dérivés :

ProduitEssenceProvenances (lieu de croissance du bois)Marque et certification produitFinitionTraitements de préservation
Lame bois massifEuropeBois brulé
Lame bois massifAsieAucune finitionJe n'ai pas l'information

Menuiserie intérieure et extérieure

Menuiserie intérieure :

ProduitEssenceProvenances (lieu de croissance du bois)FinitionMarque et certification produit
Escalier, Lambris, MobilierFranceHuileJe n'ai pas l'information

Menuiserie extérieure :

ProduitEssenceProvenances (lieu de croissance du bois)Marque et certification produitFinition
Menuiserie mixteEurope

Isolation des murs

Epaisseur (mm) Isolation entre-montant des murs : 140
Epaisseur (mm) Isolation extérieure des murs : 80

Isolation de la toiture

Epaisseur (mm) Isolation entre-montant de la toiture : 240
Epaisseur (mm) Isolation extérieure de la toiture : 100

Approche environnementale : Le projet privilégie la transformation de l'existant évitant l'artificialisation des espaces naturels. Malgré un terrain adjacent disponible, le maître d'ouvrage, guidé par des convictions durables, a opté pour une rénovation coûteuse. La sobriété guide la conception : des espaces intérieurs généreux en volume, lumière et vues sont créés sans excès de surfaces habitables, investissant dans la qualité architecturale. La construction repose sur des matériaux renouvelables. L'isolation thermique performante utilise la fibre de bois réduisant l'empreinte carbone tout en valorisant le patrimoine.

Descriptif technique : Le bâtiment existant reposait sur un soubassement de murs en pierre, supportant des colombages à l'étage et une charpente. Le projet visait à préserver les murs en pierre tout en rénovant l'ossature bois et la charpente. Lors du démontage, les murs existants se sont révélés incapables de supporter les nouvelles charges, nécessitant leur remplacement par des voiles en béton. Sur ces derniers repose une nouvelle ossature bois : plancher isolé avec solivage, murs à ossature bois isolés (panneaux OSB côté extérieur), et charpente traditionnelle. L'isolation, en fibre de bois, est placée entre montants et en extérieur des murs, ainsi qu'entre chevrons et en sarking pour la toiture. Le bardage extérieur utilise du mélèze brut pour le corps principal et du douglas brûlé pour les extensions.

Performance du bâtiment (Cep en kWhep/m²/an) : 6300
Chauffage au Bois : non
Certifications, labels et marques bâtiment : Aucun
Données déclaratives

Acteurs du projet

Maître d'ouvrage (1)

Maître d'ouvrage - Particuliers

particulier (x)

Etudes et ingénieries (1)

Maître d'œuvre - Architecte mandataire

ViO architectes (68)

Entreprises des lots bois (3)

Charpentier

CHARPENTES MR (68)

Menuisier

SCHMIDT Rémy (68)
ARMAFEN (68)




* : L'entreprise n'est plus active
Retour à la liste