Habiter une maison
Habiter une maison

AVEC FILTRES

78120 RAMBOUILLET - Yvelines - Ile de France

BÂTIMENT / LOGEMENT

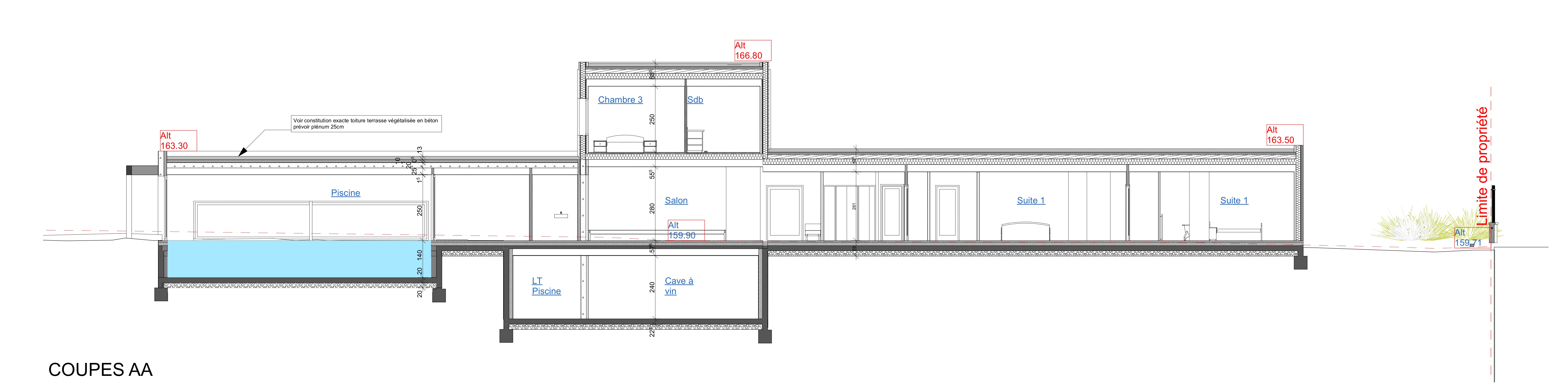
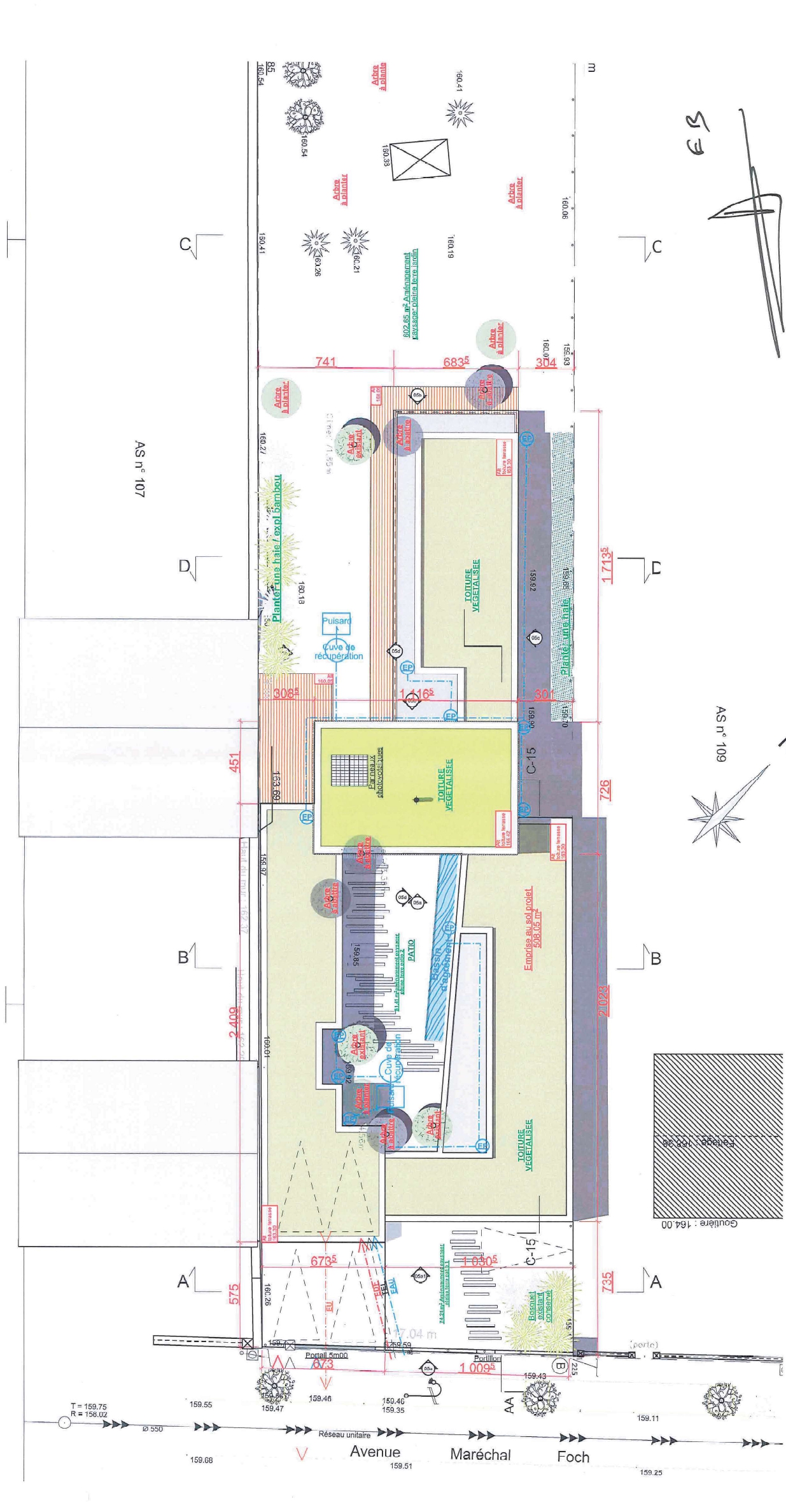
Le projet propose une architecture contemporaine respectueuse du site et à échelle maîtrisée. Une succession d’espaces et de filtres marquent une évolution depuis la rue vers l’intimité de la maison. Le traitement traditionnel de la clôture qui s’intègre à la lecture semi-urbaine de la rue laisse la place à un discret volume à rez de chaussée qui filtre des vues sur un patio ouvert sur le ciel, généreux et intime auquel on accède par un porche. Les volumes habitables occupent les limites séparatives pour laisser place à la végétation et au bassin d’agrément. Le cheminement se poursuit au-delà du patio, grâce aux transparences qu’offre le projet, pour découvrir le jardin au nord en partie bordé par le volume de la piscine qui s’avance dans le terrain et la zone boisée préservée en bout de parcelle L’étage qui abrite deux chambres représente un volume succinct qui profite d’une double orientation. Le bardage bois utilisé en partie sur les façades confère au projet de la légèreté et accentue l’insertion du projet au site. La lecture des volumes de la maison et de la piscine est soulignée par l’alternance des revêtements bois et enduits.

Catégorie Bâtiment / logement
Numéro de projet9716
Date de candidature13/03/2025

Bâtiment / logement

Détail projet

Typologie de bâtiment : Neuf
Type de bâtiment : Logement individuel supérieur à 120 m²
Année de livraison : 2021
Surface totale du bâtiment en m² : 360
Coût total en € HT (hors foncier, hors VRD, hors honoraires) : 1080000
Lot bois n°1 concerné : Bardage bois,ossature bois
Coût du lot bois n°1 - € HT : 335000
Lot bois n°2 concerné : Menuiserie intérieure bois,Menuiserie extérieure bois,Autre lot bois
Coût du lot bois n°2 - € HT : 140000
Bois Français : oui
Matériaux issus du ré-emploi (préciser dans le descriptif technique) : non
Isolations biosourcées (préciser dans le descriptif technique) : non
Matériaux géosourcés (préciser dans le descriptif technique) : non
Finitions intéreures biosourcées ou géosourcées (préciser dans le descriptif technique) : non

Structure bois du bâtiment

Structure verticale :

ProduitEssenceProvenances (lieu de croissance du bois)Traitements de préservationMarque et certification produit
Panneau ossature boisÉpicéa communAuvergne-Rhône-AlpesTraitement Classe 2 (trempage)PEFC

Structure horizontale :

ProduitEssenceProvenances (lieu de croissance du bois)Traitements de préservationMarque et certification produit
Solivage traditionnelÉpicéa communAuvergne-Rhône-AlpesTraitement Classe 2 (trempage)Je n'ai pas l'information

Charpente :

ProduitEssenceProvenances (lieu de croissance du bois)Traitements de préservationMarque et certification produit
Caisson de toitureÉpicéa communAuvergne-Rhône-AlpesTraitement Classe 2 (trempage)PEFC

Revêtement bois extérieur

Revêtement bois ou dérivés :

ProduitEssenceProvenances (lieu de croissance du bois)Marque et certification produitFinitionTraitements de préservation
Lame bois massifWestern red cedar (Thuya géant)AmériqueJe n'ai pas l'informationHuileJe n'ai pas l'information
Lame bois massifDouglasAuvergne-Rhône-Alpespré-grisé
Lame bois massifWestern red cedar (Thuya géant)Amériquepré-grisé

Revêtement minéral :

Produit
Autres

Menuiserie intérieure et extérieure

Menuiserie intérieure :

ProduitEssenceProvenances (lieu de croissance du bois)FinitionMarque et certification produit
Escalier, Parquet, PlinthesChêneFranceVernisPEFC

Menuiserie extérieure :

ProduitEssenceProvenances (lieu de croissance du bois)Marque et certification produitFinition
Menuiserie mixtePin sylvestreFranceJe n'ai pas l'informationLasure

Isolation des murs

Isolation intérieure des murs :

Produit
Fibre de bois (Panneaux)
Epaisseur (mm) Isolation intérieure des murs : 40
Epaisseur (mm) Isolation entre-montant des murs : 220

Isolation de la toiture

Epaisseur (mm) Isolation entre-montant de la toiture : 220
Epaisseur (mm) Isolation extérieure de la toiture : 80

Approche environnementale : Toitures végétalisées - Récupération des EP - Isolation thermique renforcée - Menuiseries extérieures passives - Géothermie par forage vertical - Protections solaires par casquettes, BSO et aménagement paysagé - Ouvertures au nord limitées

Descriptif technique : Le bâtiment est conçu en ossature bois Les façades extérieures seront revêtues (voir dessins des façades) a) Partiellement d’un enduit « ton pierre » des Ets PRB ou similaire b) Partiellement d’un bardage en lames de bois d’essence « red cedar » revêtues d’une lasure de « pré-grisaillement » offrant une homogénéité d’aspect pérenne Les toitures terrasses seront végétalisées et plantées de sédum Les menuiseries extérieures seront en aluminium (ou mixte bois-alu) de teinte Ral 7022 (gris terre d’ombre) ou similaire. Les terrasses du rez-de-chaussée seront constituées de lames de bois naturel VMC double flux Chauffage poêle à bois et gaz géothermie verticale

Performance du bâtiment (Cep en kWhep/m²/an) : 30
Ic construction - Impact Environnemental de la Construction (kg éq CO2/m² de SHAB ou SU) : 1
Chauffage au Bois : non
Certifications, labels et marques bâtiment : PEFC
Données déclaratives

Acteurs du projet

Etudes et ingénieries (1)

Maître d'œuvre - Architecte mandataire

JULIEN-LAFERRIERE & ASSOCIES (69)

Entreprises des lots bois (3)

Charpentier

VIEBOIS (42)

Menuisier

MENUISERIE ANDRE (26)

Autre lot de la construction (en lien avec le bois)

Remy QUEDEVILLE (78)

Autres (1)

Photographe

Bertrand PICHENE (69)




* : L'entreprise n'est plus active
Retour à la liste