Aménager
Aménager

Maison OD

92260 FONTENAY AUX ROSES - Hauts de Seine - Ile de France

AMÉNAGEMENT BOIS

Aménagement intérieur

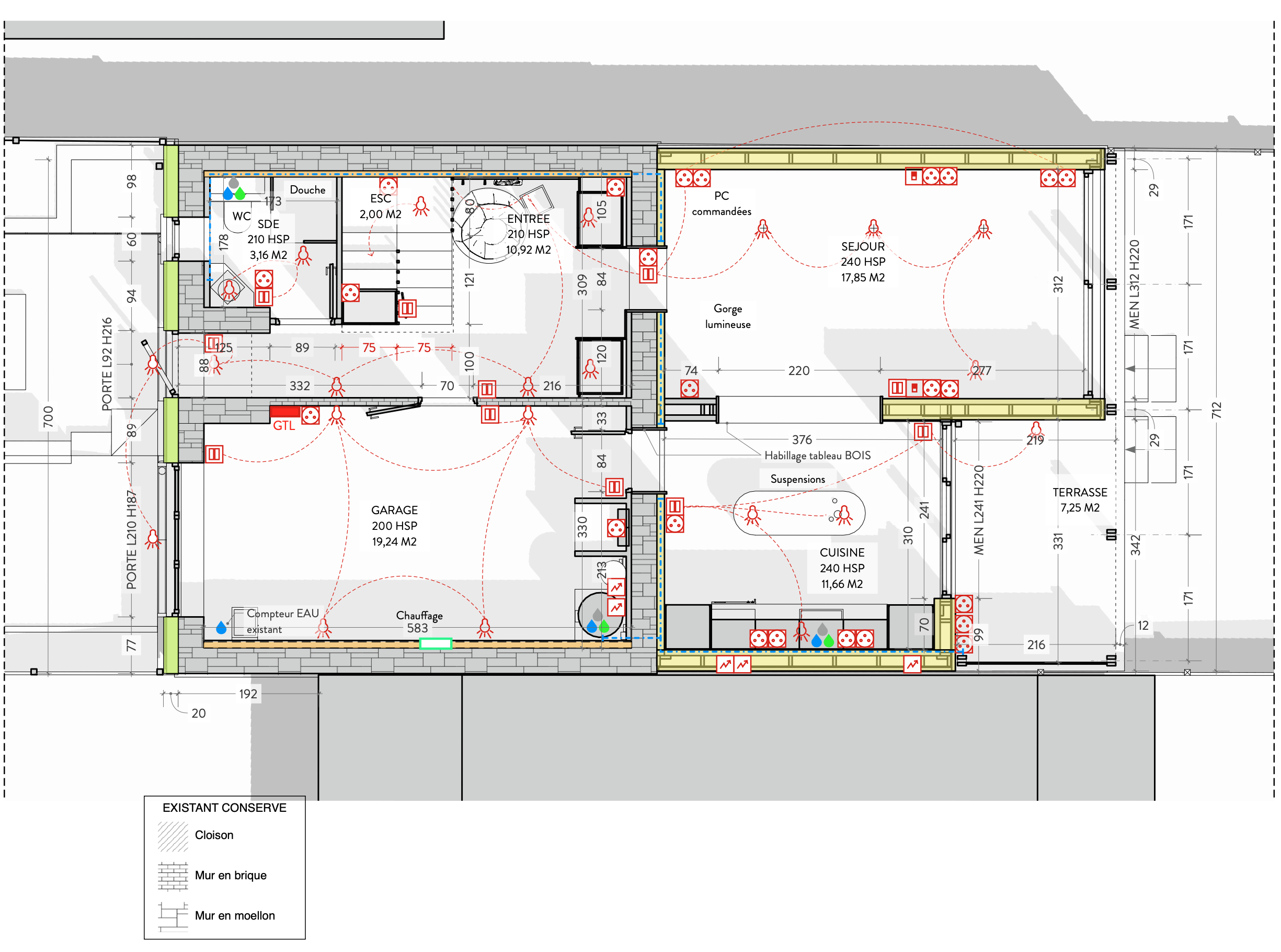
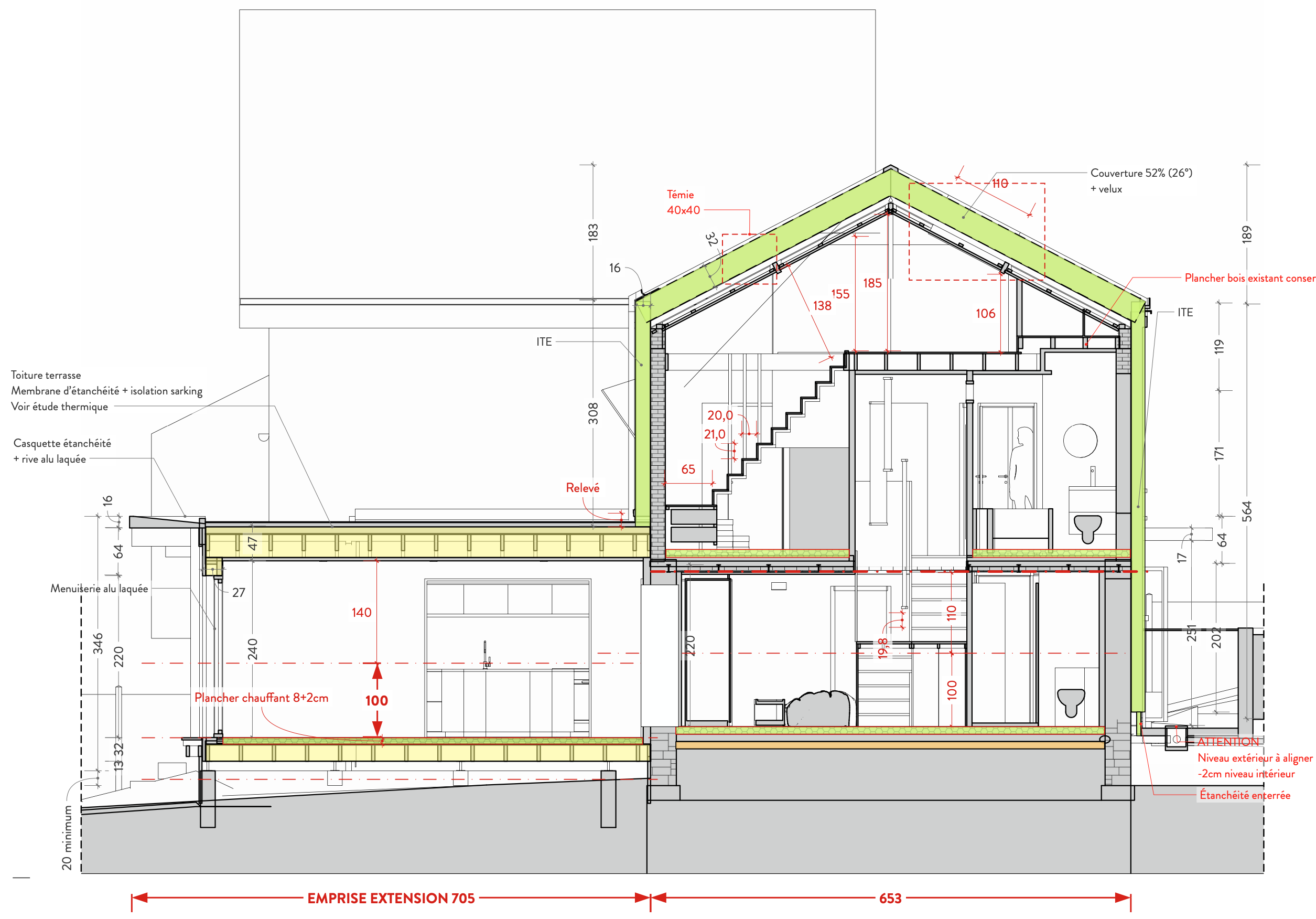
Faire d’une petite construction des années 30 une maison de ville agréable et bien isolée. La maisonnette était habitable sur un seul niveau surélevé (49m2). Le projet créé un escalier intérieur pour relier le niveau cave-garage à l’étage, puis une extension en bois coté jardin (30m2) pour un nouveau séjour-cuisine et enfin un aménagement dans les combles pour deux chambres-duplex.

Catégorie aménagement bois, aménagement intérieur
Numéro de projet9710
Adresse du projet 32 rue des Potiers
92260 FONTENAY AUX ROSES
Date de candidature13/03/2025

aménagement bois

typologie : Logement individuel inférieur 120 m²
Coût total en € HT : 272569.58

aménagement intérieur

Année de réalisation : 2024
Coût total Aménagement Intérieur en € HT : 56430.55
Coût lots bois en € HT : 112516.11
Volume bois m³ : 18
Surface aménagée en m² : 87

Liste des produits :

ProduitEssenceProvenances (lieu de croissance du bois)Marque et certification produitFinition
EscalierChêneÎle-de-FranceJe n'ai pas l'informationLasure
Bois Français : oui

Approche environnementale : Rénovation biosourcée avec passage d'une étiquette énergétique G à B avec ITE+sarking en fibre de bois, tuiles peintes en blanc, débordant de toiture, PAC AIR/EAU + ECS thermodynamique

Descriptif technique de l'aménagement : Aménagement en planche de chêne massif du commerce local

Des matériaux issus du ré-emploi ont été utilisés dans le projet : oui
Données déclaratives

Acteurs du projet

Maître d'ouvrage (1)

Maître d'ouvrage - Particuliers

particulier (x)

Etudes et ingénieries (2)

Maître d'œuvre - Architecte mandataire

TEISSEIRE Ken (92)
Teisseire Hélène architecte (92)

Entreprises des lots bois (2)

Menuisier

HABITAT RENOVATION SERVICE 77 (77)

Constructeur bois

ECOBOIS (95)




* : L'entreprise n'est plus active
Retour à la liste