Réhabiliter un équipement
Réhabiliter un équipement

Lycée international de Montreuil

93100 MONTREUIL - Seine Saint Denis - Ile de France

BÂTIMENT / LOGEMENT

Montreuil-sous-Bois a un passé horticole aves ses parcelles comprenant les célèbres murs à pêches. Le bâtiment existant est classé « bâtiment remarquable » et construit entièrement en bois avec du remplissage en brique. Il a été bâti en 1910 et accueillait le stockage d’une grande parcelle horticole, n’ayant jamais été un bâtiment accueillant du public, il a du faire l’objet d’un diagnostic spécifique pour renforcer les fondations et la structure générale en bois qui est laissée apparente.

Catégorie Bâtiment / logement
Numéro de projet9707
Adresse du projet 38, rue Parmentier
93100 MONTREUIL
Date de candidature13/03/2025

Bâtiment / logement

Détail projet

Typologie de bâtiment : Rénovation / Réhabilitation
Type de bâtiment : Enseignement ou éducation
Année de livraison : 2023
Surface totale du bâtiment en m² : 700
Dont extension / surélévation en m² : 150
Coût total en € HT (hors foncier, hors VRD, hors honoraires) : 2200000
Bois Français : oui
Matériaux issus du ré-emploi (préciser dans le descriptif technique) : oui
Isolations biosourcées (préciser dans le descriptif technique) : oui
Matériaux géosourcés (préciser dans le descriptif technique) : oui
Finitions intéreures biosourcées ou géosourcées (préciser dans le descriptif technique) : oui

Structure bois du bâtiment

Structure verticale :

ProduitEssenceProvenances (lieu de croissance du bois)Traitements de préservationMarque et certification produit
Poteau poutreFSC

Structure horizontale :

ProduitEssenceProvenances (lieu de croissance du bois)Traitements de préservationMarque et certification produit
Dalle boisPEFC

Charpente :

ProduitEssenceProvenances (lieu de croissance du bois)Traitements de préservationMarque et certification produit
Charpente historique

Revêtement bois extérieur

Revêtement bois ou dérivés :

ProduitEssenceProvenances (lieu de croissance du bois)Marque et certification produitFinitionTraitements de préservation
Lame bois massifFSCAucune finition

Menuiserie intérieure et extérieure

Menuiserie intérieure :

ProduitEssenceProvenances (lieu de croissance du bois)FinitionMarque et certification produit
EscalierAucune finitionFSC

Isolation des murs

Isolation intérieure des murs :

Produit
Fibre de bois (Panneaux)
Epaisseur (mm) Isolation intérieure des murs : 145

Isolation entre-montant des murs :

Produit
Fibre de bois (Panneaux)

Isolation de la toiture

Epaisseur (mm) Isolation intérieure de la toiture : 145

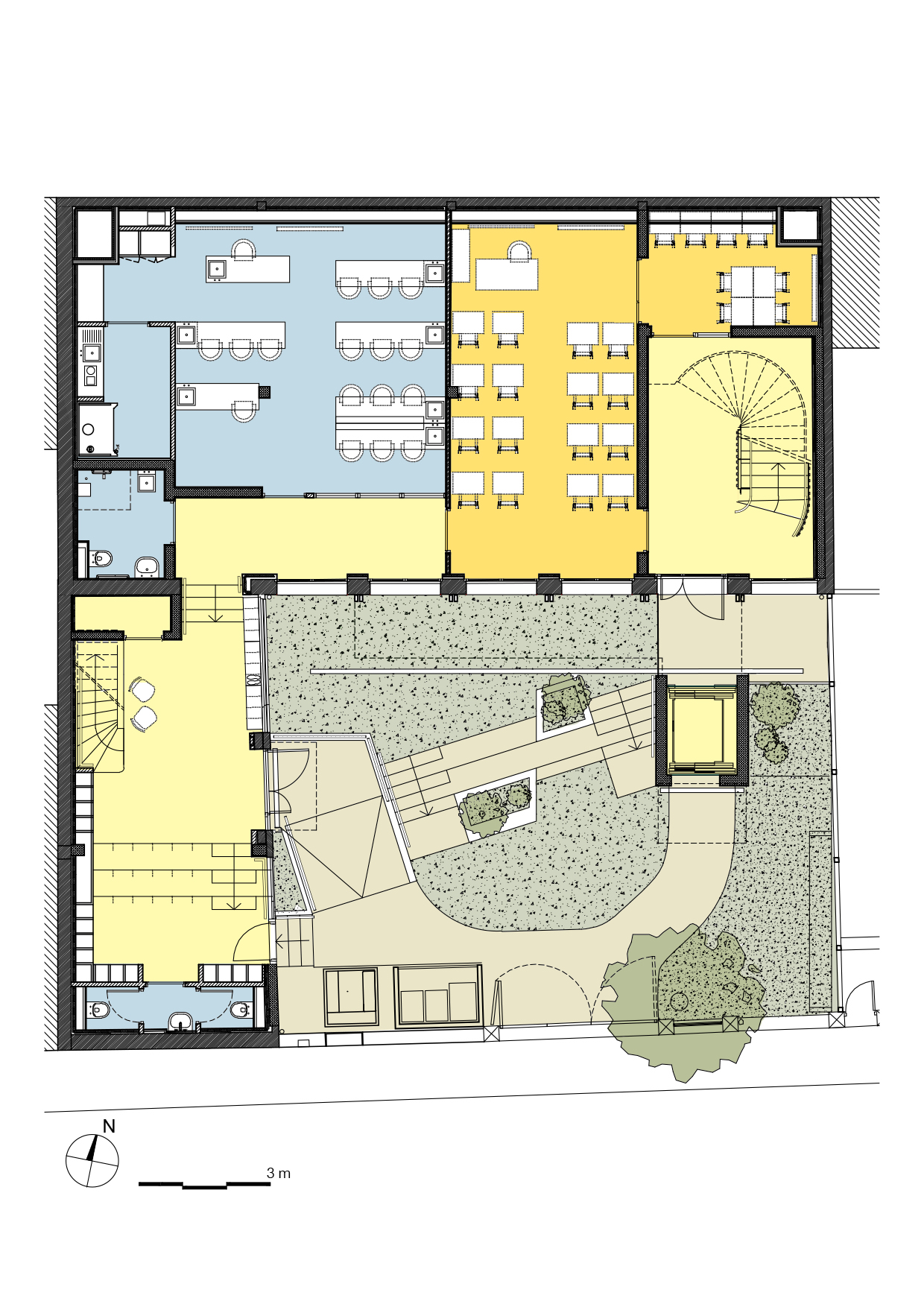
Approche environnementale : Notre intervention vise à valoriser le passé arboricole de la parcelle afin de conserver l’essence de l’ouvrage et rendre accessible l’ensemble des niveaux. La façade largement vitrée au sud permettra de capter les apports solaires et les grands balcons et loggias en bois permettront de protéger les espaces pour apporter un confort d’été. L’accessibilité est au cœur de l’intervention car une multitude de dénivelés est présente. Les circulations verticales sont créées afin d’agrandir les largeurs de circulation et s’harmoniser avec les larges balcons-terrasses en bois.

Descriptif technique : La structure du bâtiment existant étant en poteaux poutres bois, la part du bois dans la restructuration a été un point essentiel. Les isolants et les faux plafonds sont en fibres de bois et le plafond de la grande salle polyvalente est en bois red cedar comme le bardage extérieur. Un travail de captation de lumière en cas d’évacuation et en cas de coupure d’électricité est mis en place par des éléments photoluminescents sur toutes les premières et dernières marches à l’intérieur et à l’extérieur. Des marches photoluminescentes sur cour sont créées pour éviter d’avoir la nécessité de l’éclairage en cas de coupure totale ou en dehors des horaires scolaires. Le béton photoluminescent est fabriqué avec les démolitions des murets.

Performance du bâtiment (Cep en kWhep/m²/an) : 75
Chauffage au Bois : non
Données déclaratives

Acteurs du projet

Maître d'ouvrage (1)

Maître d'ouvrage - Particuliers

particulier (x)

Etudes et ingénieries (4)

Maître d'œuvre - Architecte mandataire

AR+TE ARCHITECTES (75)

Bureau d'études acoustique

VIA SONORA (75)

Bureau d'études structure bois

CAP STRUCTURES (75)

Bureau d'études thermique

ERTEM INTERNATIONAL (93)




* : L'entreprise n'est plus active
Retour à la liste