Aménager
Aménager

Transformation d'une épicerie en tiers-lieu

44240 SUCE SUR ERDRE - Loire Atlantique - Pays de la Loire

AMÉNAGEMENT BOIS

Aménagement intérieur

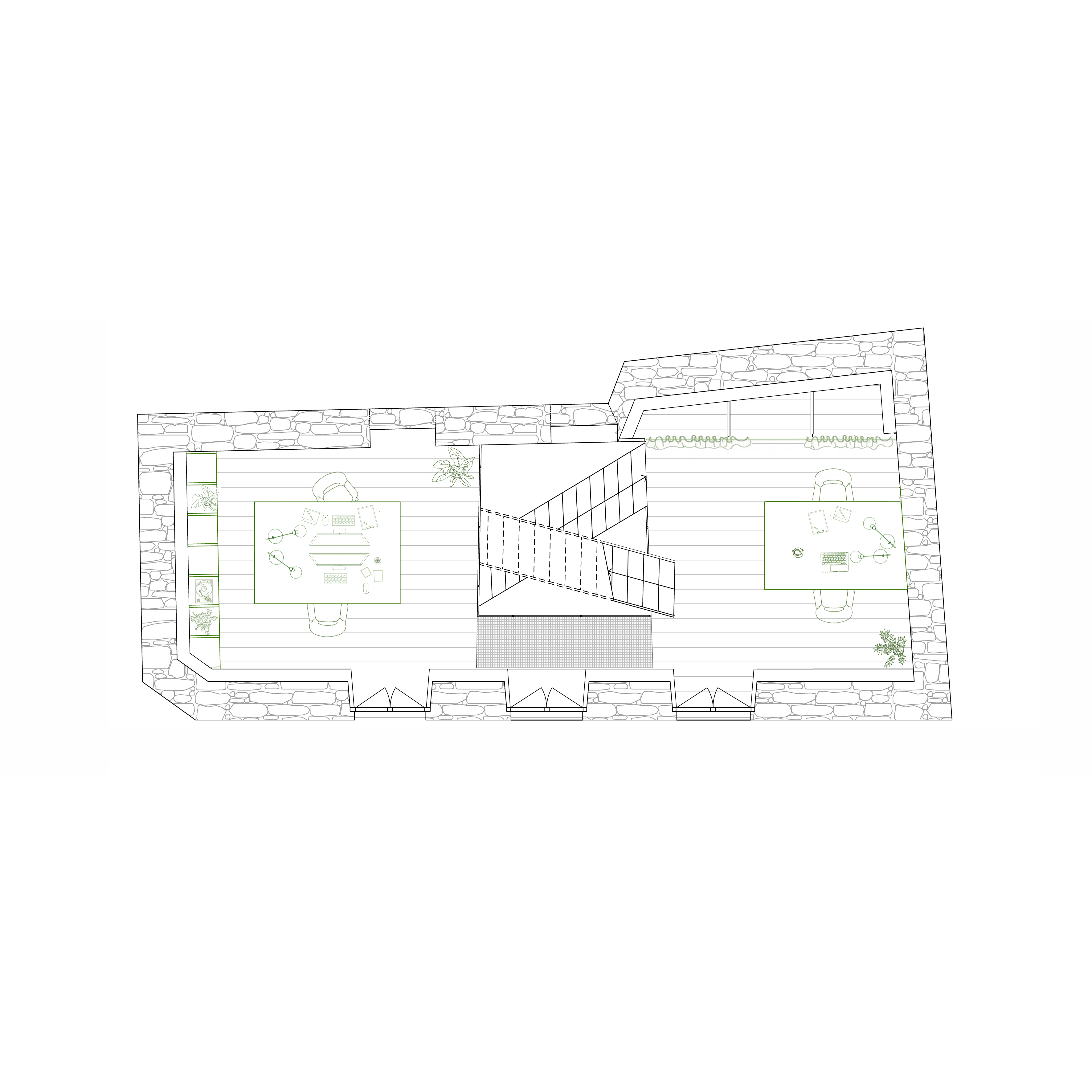
Ce bâtiment du 19e, abritait autrefois une épicerie. Il a été abandonné pendant 25 ans, puis vient d’être réhabilité en tiers-lieu. Les modénatures des façades ont été abimées par l’enduit ciment et les remaniements successifs. Une mise à nue du bâtiment a été réalisée. Les couches successives accumulées à travers les époques ont été ôtées.Le bâtiment étant peu profond, la création d’une trémie centrale vient inonder de lumière chaque niveau et offrir un volume qui s’élance vers le haut. Les étages sont répartis de part et d’autre d’un escalier central charismatique

Catégorie aménagement bois, aménagement intérieur
Numéro de projet9704
Adresse du projet 24 Grande-Rue
44240 SUCE SUR ERDRE
Date de candidature13/03/2025

aménagement bois

typologie : Lieu d'entreprise
Coût total en € HT : 197000

aménagement intérieur

Année de réalisation : 2025
Coût total Aménagement Intérieur en € HT : 102000
Coût lots bois en € HT : 51000
Surface aménagée en m² : 75

Liste des produits :

ProduitEssenceProvenances (lieu de croissance du bois)Marque et certification produitFinition
ParquetChêneJe n'ai pas l'informationVernis
MobilierPin maritimeFranceHuile
ParquetPin maritimeFrancePEFCVernis
Bois Français : oui

Approche environnementale : Le projet se veut le plus sobre possible. Les murs sont parés d’un correcteur thermique en terre/paille, badigeonnés à la chaux, et les rampants de paille hachées compressés enduit de terre. La seule cloison du projet est réalisée en brique de terre crue. Les parquets bois ont été conservés. Ils ont été poncés et vernis. Le bâtiment est chauffé par un poêle à granulés. Les mobiliers (cuisine et bureaux) sont réalisés en bois et le reste sont chinés dans des brocantes.

Descriptif technique de l'aménagement : Le souhait était de conserver les parquets existant, malgré leur mauvais état. Ils ont été délesté de leur sol pvc, poncés, puis vernis. Le parquet du dernier niveau était très abîmé par de nombreux percements. Au lieu de le remplacer, il a été conservé en l'état, mais un contre-plaqué en pin maritime est venu le recouvrir, permettant de toujours le voir depuis l'étage du dessous en sous-face. Les menuiseries sont en pin (peinture claire) et les encadrements de fenêtres en contre-plaqué pin maritime, tout comme l'ensemble du mobilier. Les solives ont été traitées et aérogommées, la charpente réparée. L’intérieur offre donc des matières brutes : bois, pierres, acier, terre. L’extérieur, lui, est réhabilité tout en sobriété:encadrements tuffeau, enduit à la chaux et menuiserie bois.

Des matériaux issus du ré-emploi ont été utilisés dans le projet : oui
Données déclaratives

Acteurs du projet

Maître d'ouvrage (1)

Maître d'ouvrage - Industriels - commerçants - entreprise

particulier (x)

Etudes et ingénieries (1)

Maître d'œuvre - Architecte mandataire

Loom Architecture (44)

Entreprises des lots bois (4)

Charpentier

DURAULT PAGEAUD (44)

Menuisier

Wood as concept (44)

Autre lot de la construction (en lien avec le bois)

SARL MENUISERIES DU DON (44)
KERDANO (44)

Autres (1)

Photographe

BAUDRY FRANCOIS PHOTOGRAPHE (38)




* : L'entreprise n'est plus active
Retour à la liste