Habiter une maison
Habiter une maison

Maison des Mérisiers

92350 LE PLESSIS ROBINSON - Hauts de Seine - Ile de France

BÂTIMENT / LOGEMENT

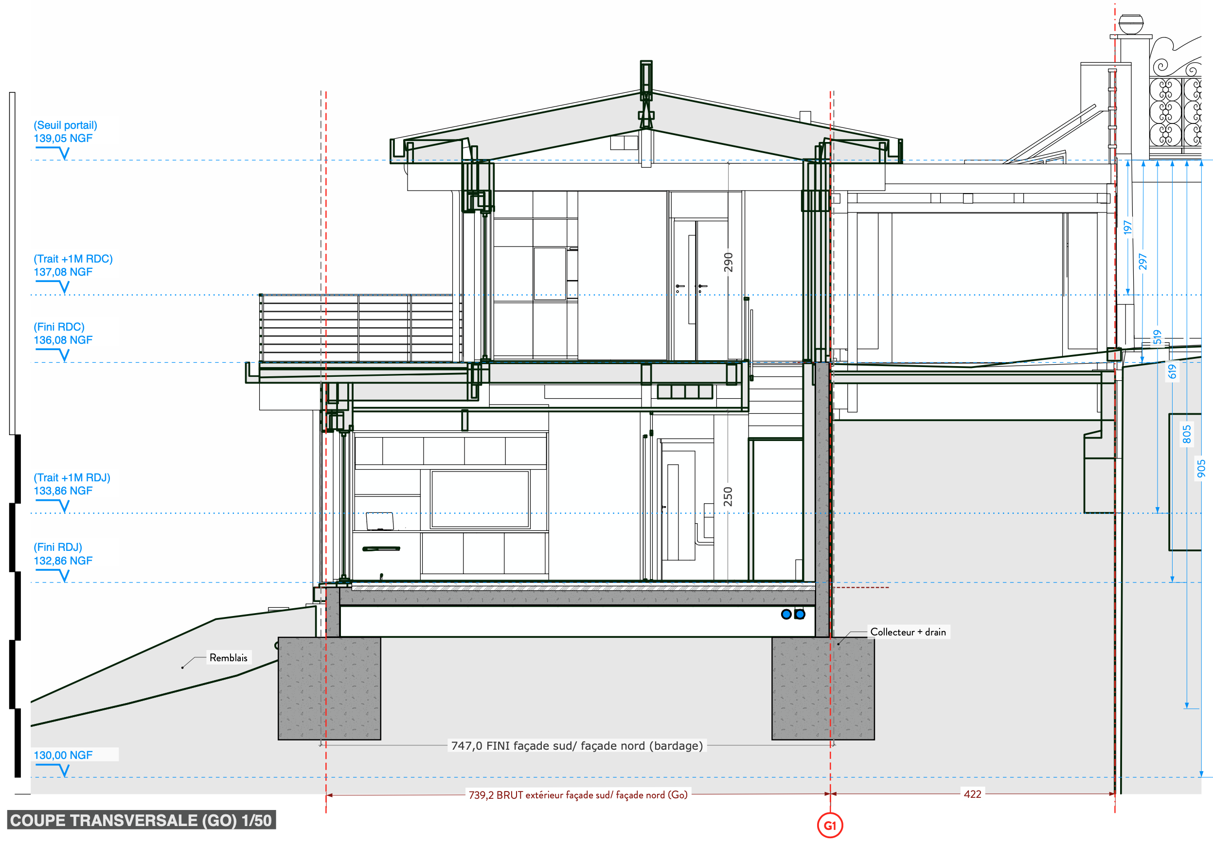
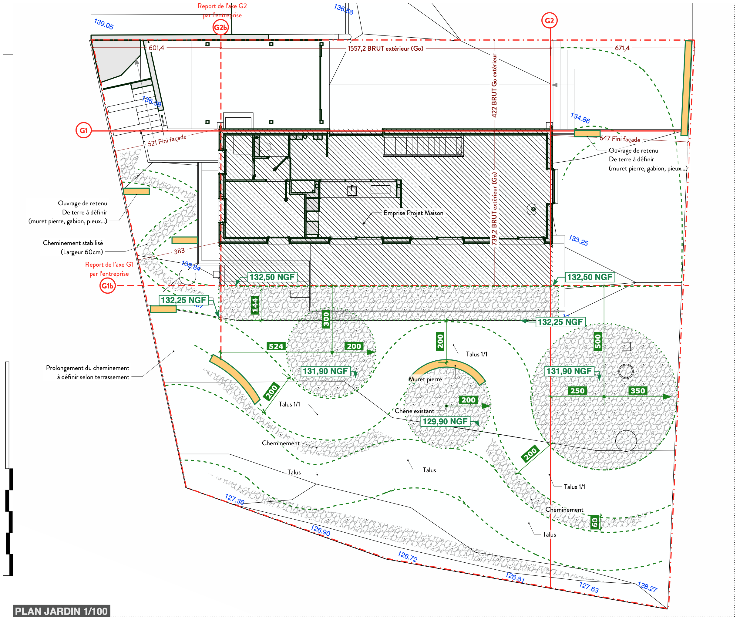
Proposer une hybridation urbaine entre un chalet et un pavillon. Tirer partie de la forte déclivité du terrain (+40%) pour associer des usages extérieures à la maison et créer des séquences d’accès variées. Une rampe dessert la rue, l’entrée principale et les stationnements, tandis qu’un escalier en pierre se prolonge en coursive pour rejoindre des accès secondaires par une grande terrasse en bois. La couverture en zinc protège les façades en bois par ses débords de presqu’un mètre afin de limiter l’exposition aux intempéries et contrôler l’exposition solaire.

Catégorie Bâtiment / logement
Numéro de projet9690
Date de candidature13/03/2025

Bâtiment / logement

Détail projet

Typologie de bâtiment : Neuf
Type de bâtiment : Logement individuel supérieur à 120 m²
Année de livraison : 2024
Surface totale du bâtiment en m² : 139
Coût total en € HT (hors foncier, hors VRD, hors honoraires) : 696940.65
Lot bois n°1 concerné : Charpente bois,Bardage bois,ossature bois
Volume lot bois n°1 - m³ : 20.4
Coût du lot bois n°1 - € HT : 209986.25
Lot bois n°2 concerné : Menuiserie intérieure bois,Menuiserie extérieure bois
Volume lot bois n°2 - m³ : 4.6
Coût du lot bois n°2 - € HT : 79257.26
Bois Français : non
Matériaux issus du ré-emploi (préciser dans le descriptif technique) : non
Isolations biosourcées (préciser dans le descriptif technique) : oui
Matériaux géosourcés (préciser dans le descriptif technique) : non
Finitions intéreures biosourcées ou géosourcées (préciser dans le descriptif technique) : oui

Structure bois du bâtiment

Structure verticale :

ProduitEssenceProvenances (lieu de croissance du bois)Traitements de préservationMarque et certification produit
Panneau ossature bois, Poteau poutreDouglas
Panneau ossature bois, Poteau poutreÉpicéa communEuropeTraitement Classe 2 (trempage)PEFC

Structure horizontale :

ProduitEssenceProvenances (lieu de croissance du bois)Traitements de préservationMarque et certification produit
Solivage traditionnelÉpicéa communEuropeJe n'ai pas l'information

Charpente :

ProduitEssenceProvenances (lieu de croissance du bois)Traitements de préservationMarque et certification produit
Charpente bois lamellé-colléÉpicéa communEuropeJe n'ai pas l'information

Revêtement bois extérieur

Revêtement bois ou dérivés :

ProduitEssenceProvenances (lieu de croissance du bois)Marque et certification produitFinitionTraitements de préservation
Lame bois massifDouglasEuropePEFCSaturateurTraitement Classe 3a (trempage)

Revêtement minéral :

Produit
Pierre collée

Autre revêtement métallique :

Produit
Zinc

Menuiserie intérieure et extérieure

Menuiserie intérieure :

ProduitEssenceProvenances (lieu de croissance du bois)FinitionMarque et certification produit
Escalier, Mobilier, Panneau massif d'agencement, Parquet, PlinthesChêneÎle-de-FranceLasureJe n'ai pas l'information

Isolation des murs

Isolation intérieure des murs :

Produit
Laine de verre
Laine de roche
Epaisseur (mm) Isolation intérieure des murs : 45

Isolation entre-montant des murs :

Produit
Laine de bois souple
Epaisseur (mm) Isolation entre-montant des murs : 140

Isolation de la toiture

Epaisseur (mm) Isolation intérieure de la toiture : 45
Epaisseur (mm) Isolation entre-montant de la toiture : 80
Epaisseur (mm) Isolation extérieure de la toiture : 180

Approche environnementale : Alerte sur les enjeux, les Maître d’ouvrages ont souhaités une construction biosourcée et bioclimatique dès le programme. Également un système de stockage des eaux pluviales enterré (5m3), filtrées pour alimenter les toilettes et l’arrosage extérieur et gestion à la parcelle de l’excédent; PAC air/air DAIKIN gainable avec régulation AIRZONE réversible; ECS ballon thermodynamique Thermor AEROMAX 5 de 270 L; Production solaire de 2,55kWc en auto-consommation et revente du surplus par 6 panneaux Maviwatt Solar 425Wc Mono PERC

Descriptif technique : Fondation sur puits, plancher bas murs de soutènements en béton armé. Système constructif en ossature bois 140mm avec renforts poteaux-poutres LC en épicéa. Revêtements des façades en bardage Douglas lasuré, dessous de toiture en panneaux épicéa. Revêtements des sols intérieurs et agencements en Chêne. Aménagements des clôtures et structures du carport en Douglas. Couvertures et capotages en zinc naturel.

Performance du bâtiment (Cep en kWhep/m²/an) : 12.3
Chauffage au Bois : oui
Appareil de chauffage au bois : Poële/insert
Certifications, labels et marques bâtiment : Aucun
Données déclaratives

Acteurs du projet

Maître d'ouvrage (1)

Maître d'ouvrage - Particuliers

particulier (x)

Etudes et ingénieries (6)

Maître d'œuvre - Architecte mandataire

TEISSEIRE Ken (92)
Teisseire Hélène architecte (92)

Bureau d'études thermique

Keeplanet (67)

Autre intervenant de la construction - bureau de contrôle, AMO, BIM...

Planète Contrôle (94)

Designer / architecte d'intérieur

Teisseire Hélène architecte (92)

Architecte / paysagiste concepteur

Teisseire Hélène architecte (92)

Entreprises des lots bois (2)

Charpentier

ECOBOIS (95)

Menuisier

ELMANSI SASU (93)

Autres (1)

Photographe

Damien PAULUS (94)




* : L'entreprise n'est plus active
Retour à la liste