Aménager
Aménager

Suresnes

92150 SURESNES - Hauts de Seine - Ile de France

AMÉNAGEMENT BOIS

Aménagement intérieur

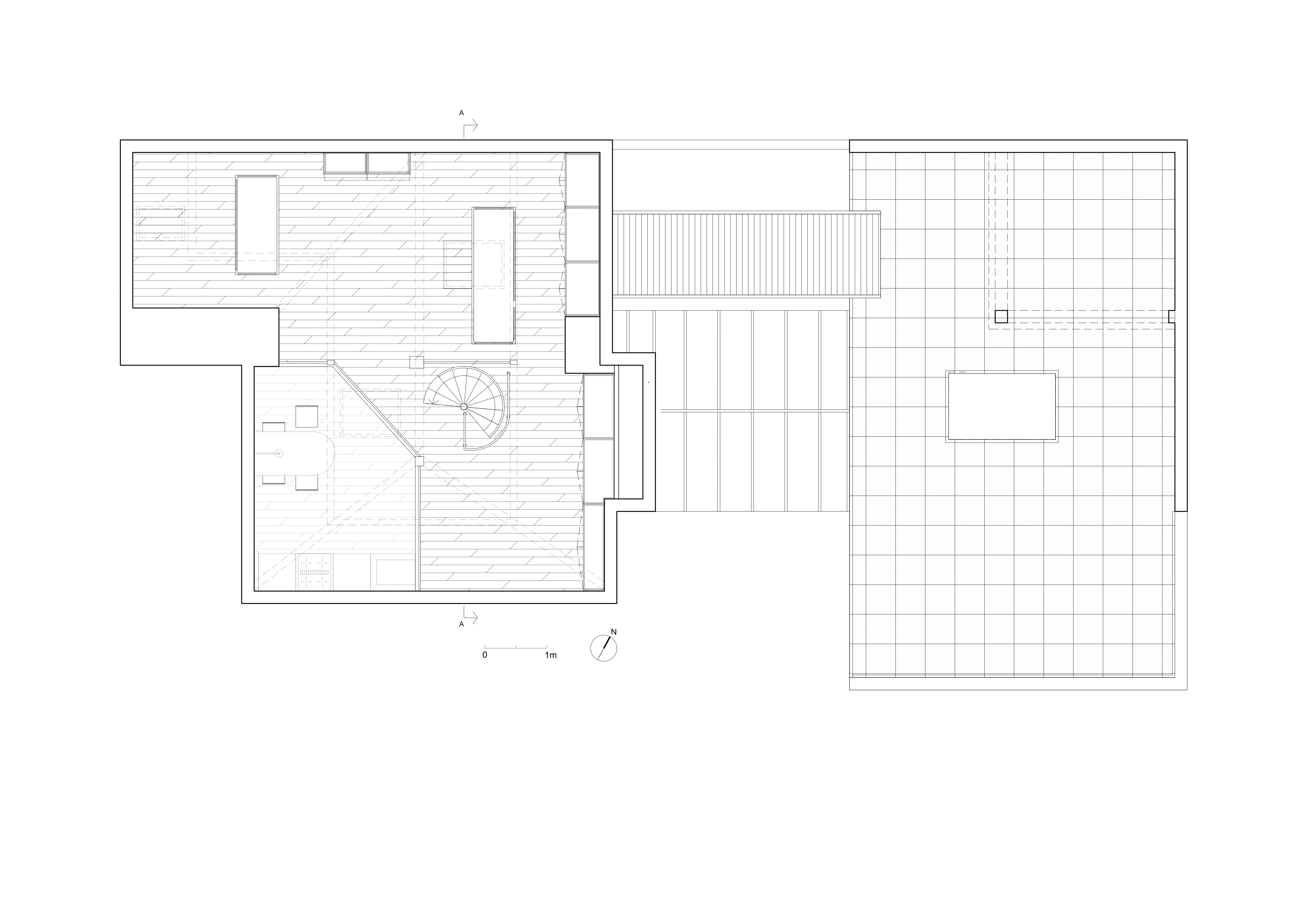
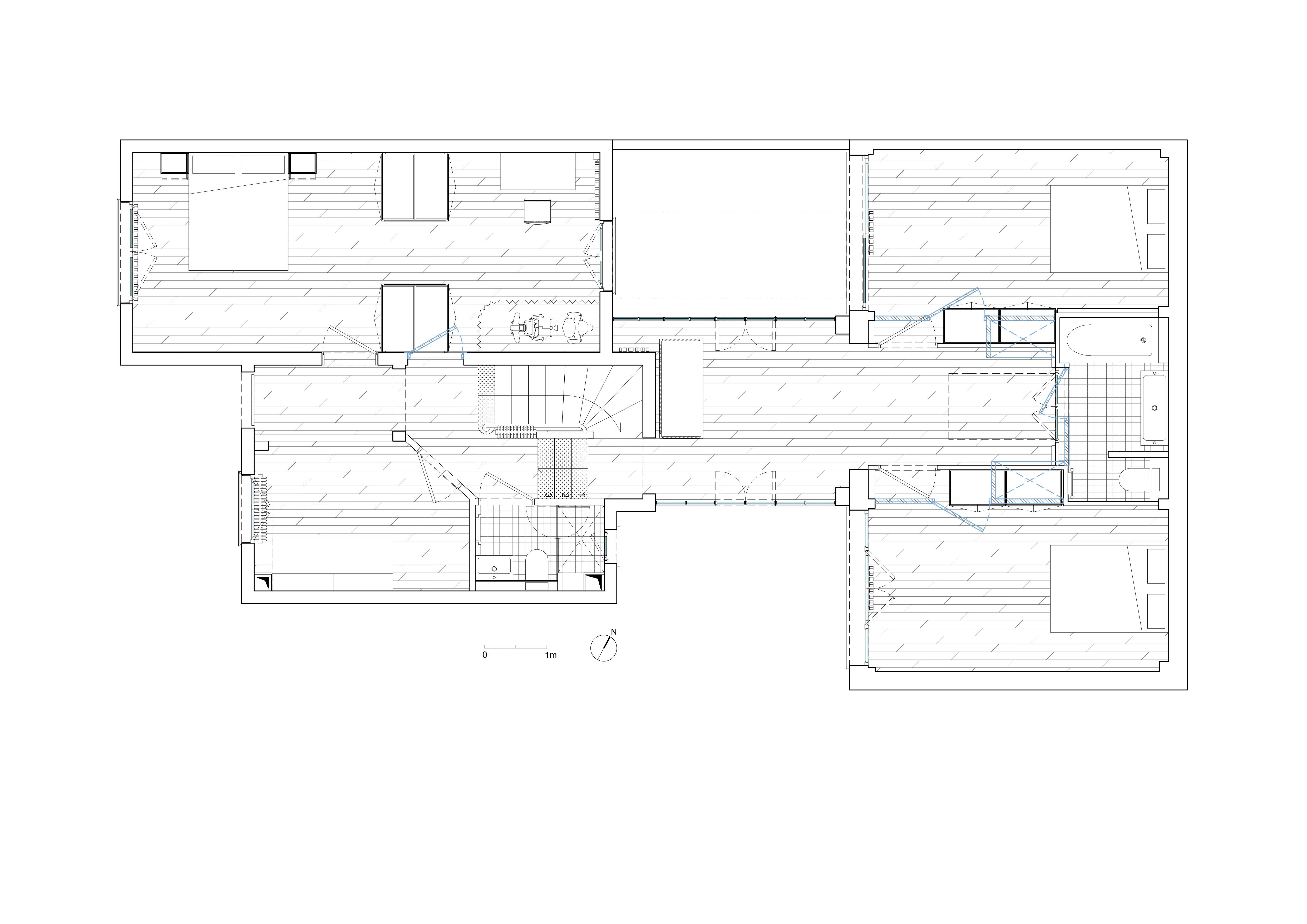
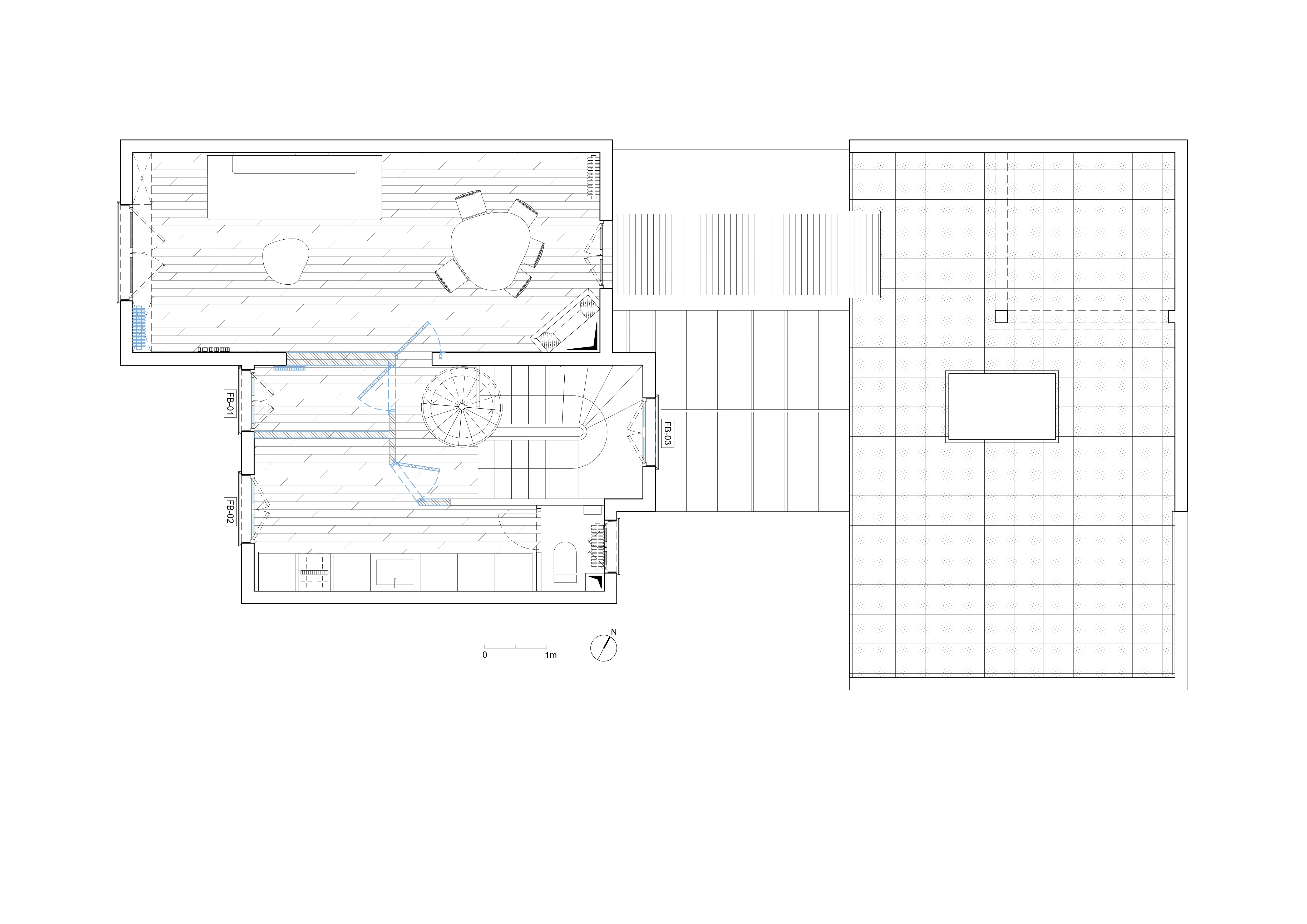
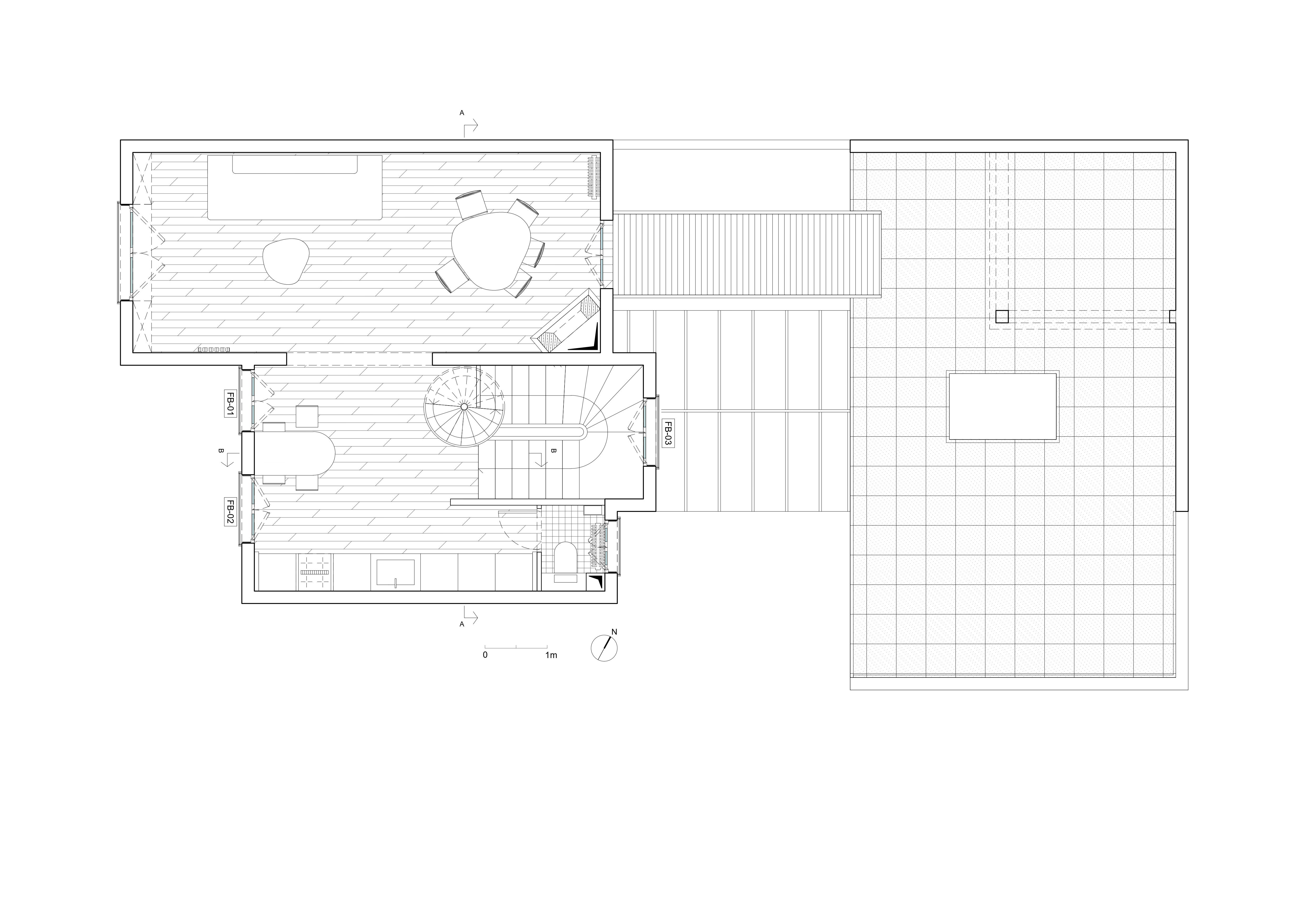
Perchée sur les hauteurs, cette bâtisse des années 1930 et 1950 est rénovée dans un dialogue où tout a été dessiné, de l’architecture au mobilier, jusque dans le détail d’une chaise et de luminaires. L’intervention révèle les qualités spatiales en optimisant circulations et lumière naturelle. À l’étage, la lumière se libère, et le mur porteur partiellement ouvert dévoile les briques d’antan à l’état brut. L’espace s’organise autour d’éléments sur mesure : un escalier en acier laqué structure la verticalité, tandis qu’une mezzanine sous les combles optimise l’espace.

Catégorie aménagement bois, aménagement intérieur
Numéro de projet9633
Adresse du projet 92150 SURESNES
Date de candidature12/03/2025

aménagement bois

typologie : Logement individuel supérieur à 120 m²
Coût total en € HT : 250000

aménagement intérieur

Année de réalisation : 2024
Coût total Aménagement Intérieur en € HT : 130000
Coût lots bois en € HT : 120000
Volume bois m³ : 18
Surface aménagée en m² : 130

Liste des produits :

ProduitEssenceProvenances (lieu de croissance du bois)Marque et certification produitFinition
ParquetChêneEuropeFSCVernis
Panneau massif d'agencementChêneEuropeVernis
Bois Français : non

Approche environnementale : L’intervention mesurée évite une démolition excessive afin de limiter l'impact environnemental. Un soin méticuleux est apporté aux éléments patrimoniaux : portes, murs, briques de verre, meubles et moulures sont soigneusement préservés, revalorisés et réemployés. L’optimisation de l’orientation et la suppression ciblée de cloisons favorisent une ventilation traversante et une diffusion de la lumière naturelle, réduisant les besoins en éclairage et en climatisation. Du parquet en chêne massif, marqué par des piqûres d’insectes, a été traité puis réemployé dans une démarche raisonnée.

Descriptif technique de l'aménagement : Le mobilier exclusif souligne le caractère unique de la demeure. Au rez-de-chaussée, un éclairage zénithal et une verrière sur mesure illuminent le dégagement et la salle de bain. L’inertie et le confort thermique sont renforcés par les briques réemployées, la pierre, le bois et la laine de bois. L’aménagement des combles a permis de dégager 40 m² de surface en mezzanine, portant la surface utile à 164 m². Celle-ci intègre des rangements et une large ouverture dans le plancher, favorisant la diffusion de la lumière naturelle dans les espaces supérieurs. Le médium verni est laissé apparent pour sa texture homogène. Son usage offre une liberté de conception, une précision d’assemblage et facilite l’entretien. Le chêne structure des éléments, tandis que l’acier réemployé en façonne d’autres.

Des matériaux issus du ré-emploi ont été utilisés dans le projet : oui
Données déclaratives

Acteurs du projet

Maître d'ouvrage (1)

Maître d'ouvrage - Particuliers

particulier (x)

Etudes et ingénieries (1)

Maître d'œuvre - Architecte mandataire

Atelier d'Architecture Joanne Riachi - Jori (75)

Entreprises des lots bois (1)

Menuisier

ENAMEL (75)

Autres (1)

Photographe

Monsieur Camille Lemonnier (75)




* : L'entreprise n'est plus active
Retour à la liste