Réhabiliter un logement
Réhabiliter un logement

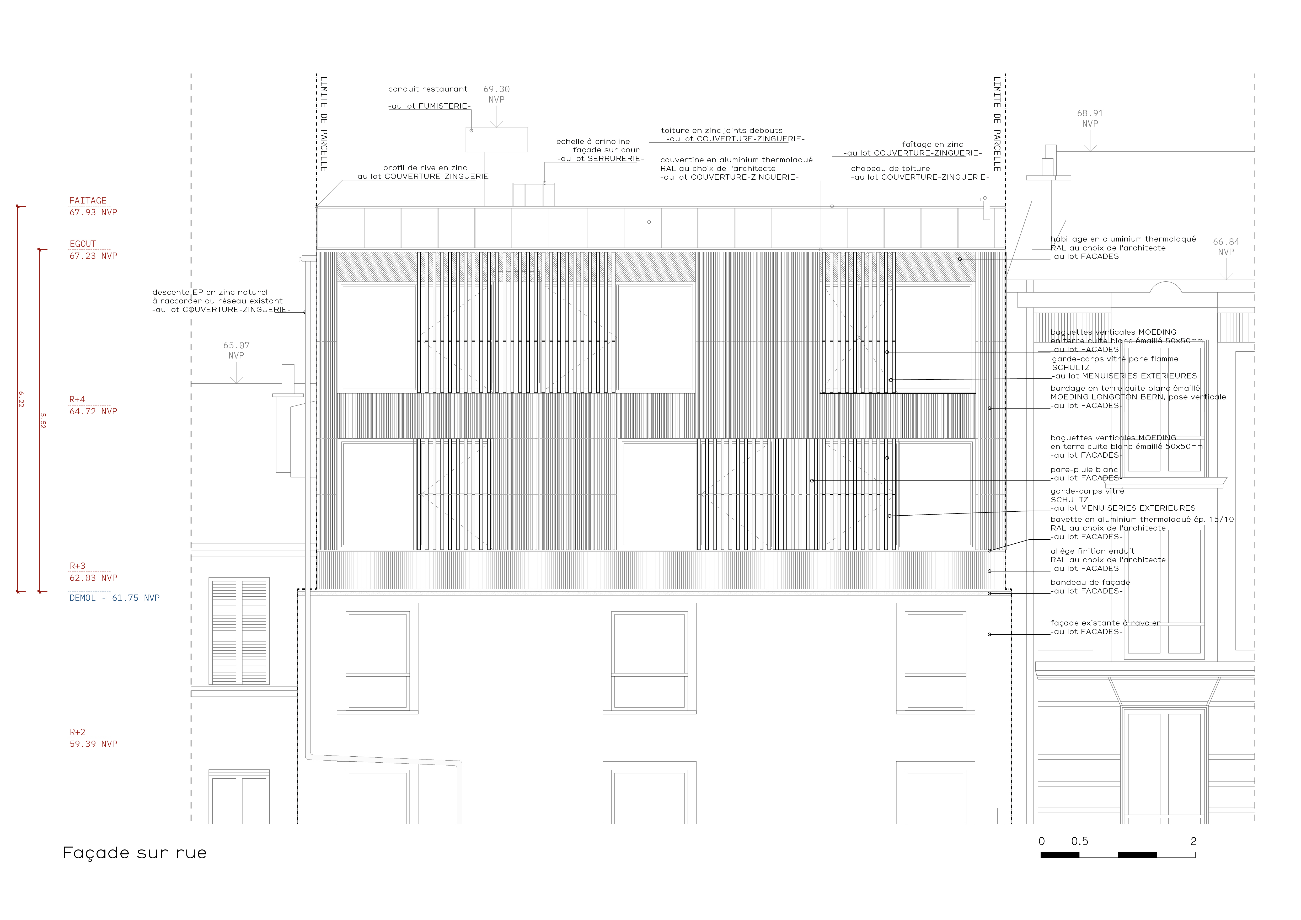
Surélévation Immeuble avenue d'Ivry, Paris (75013)

75013 PARIS 13 - Paris - Ile de France

BÂTIMENT / LOGEMENT

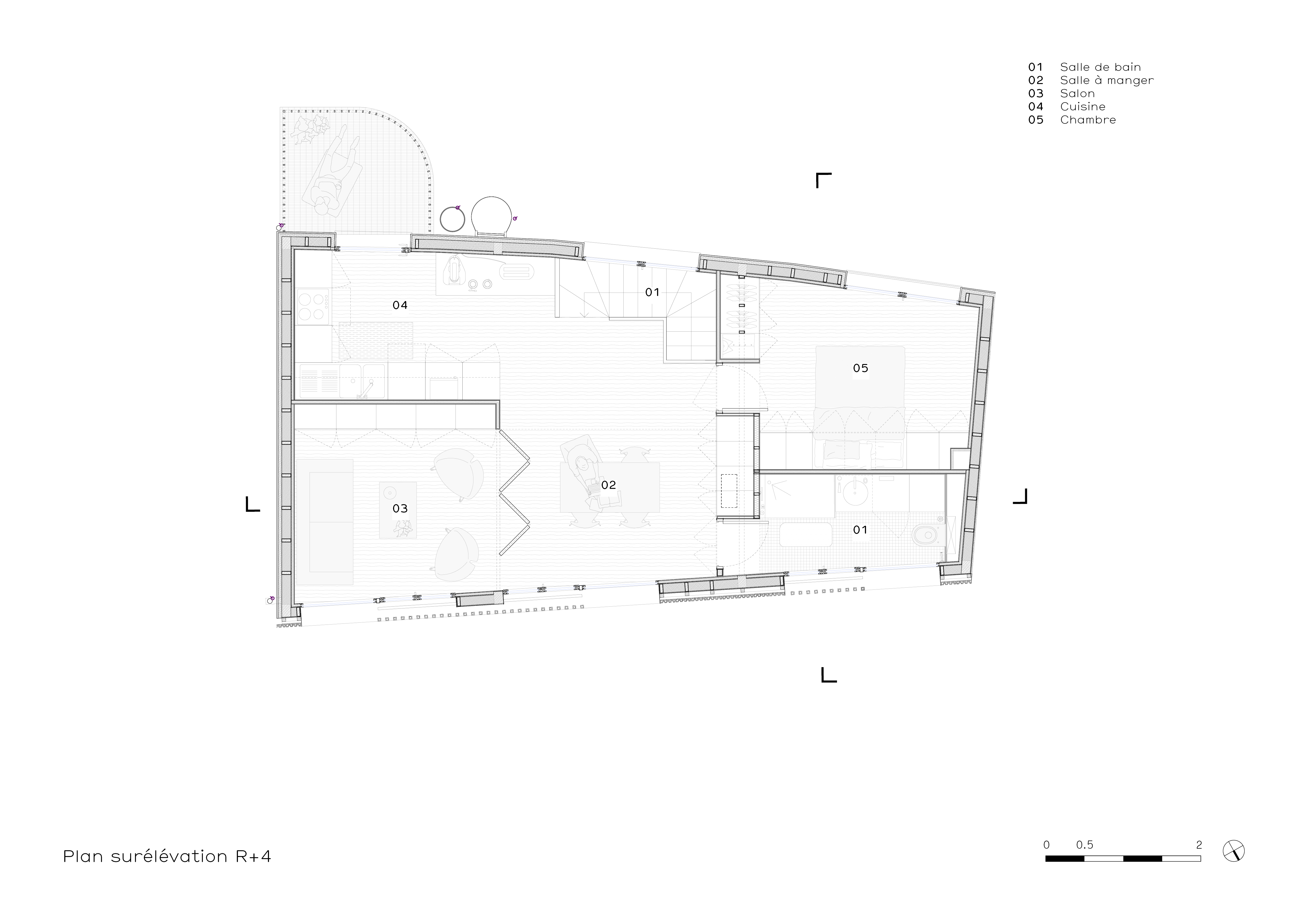
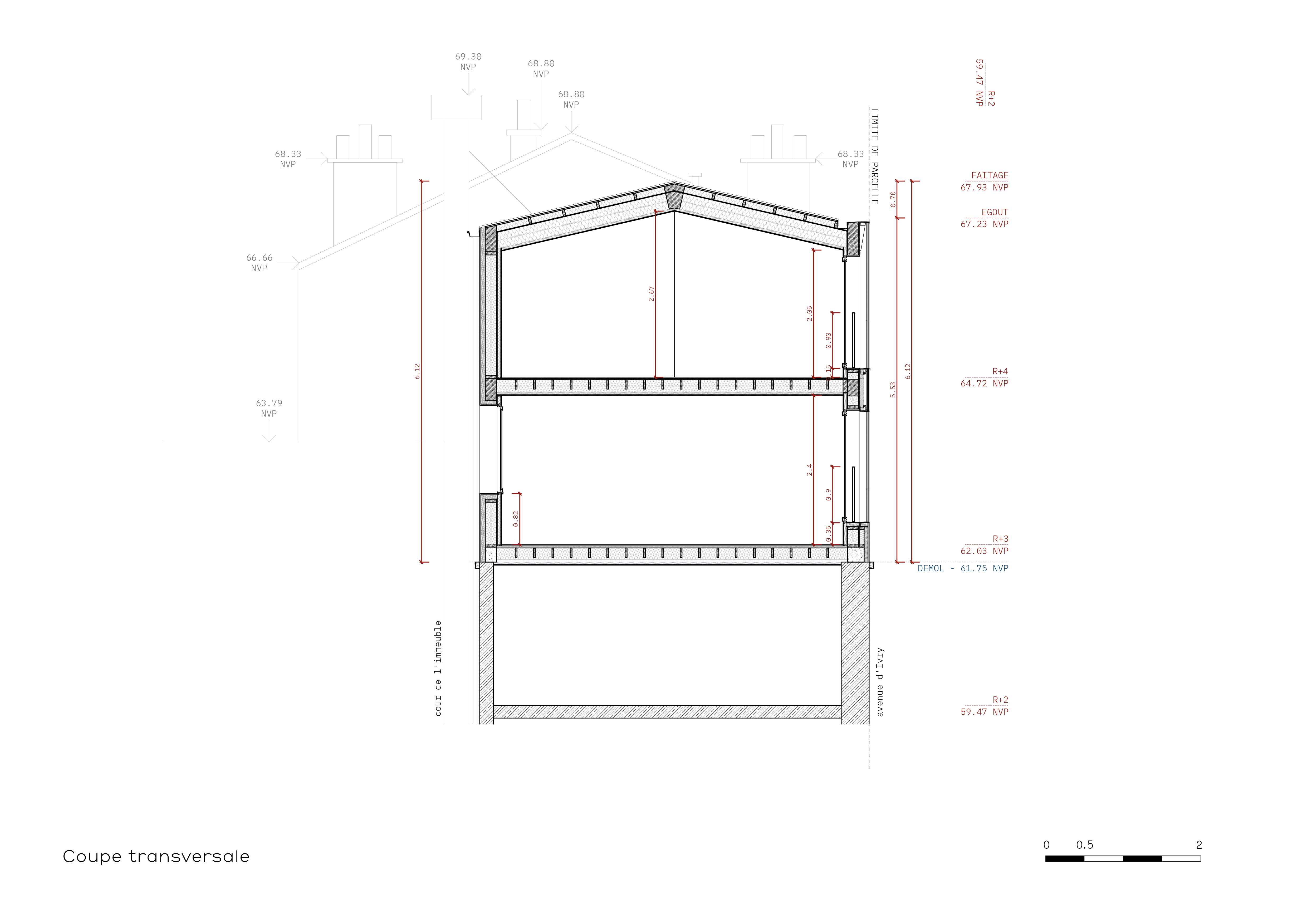
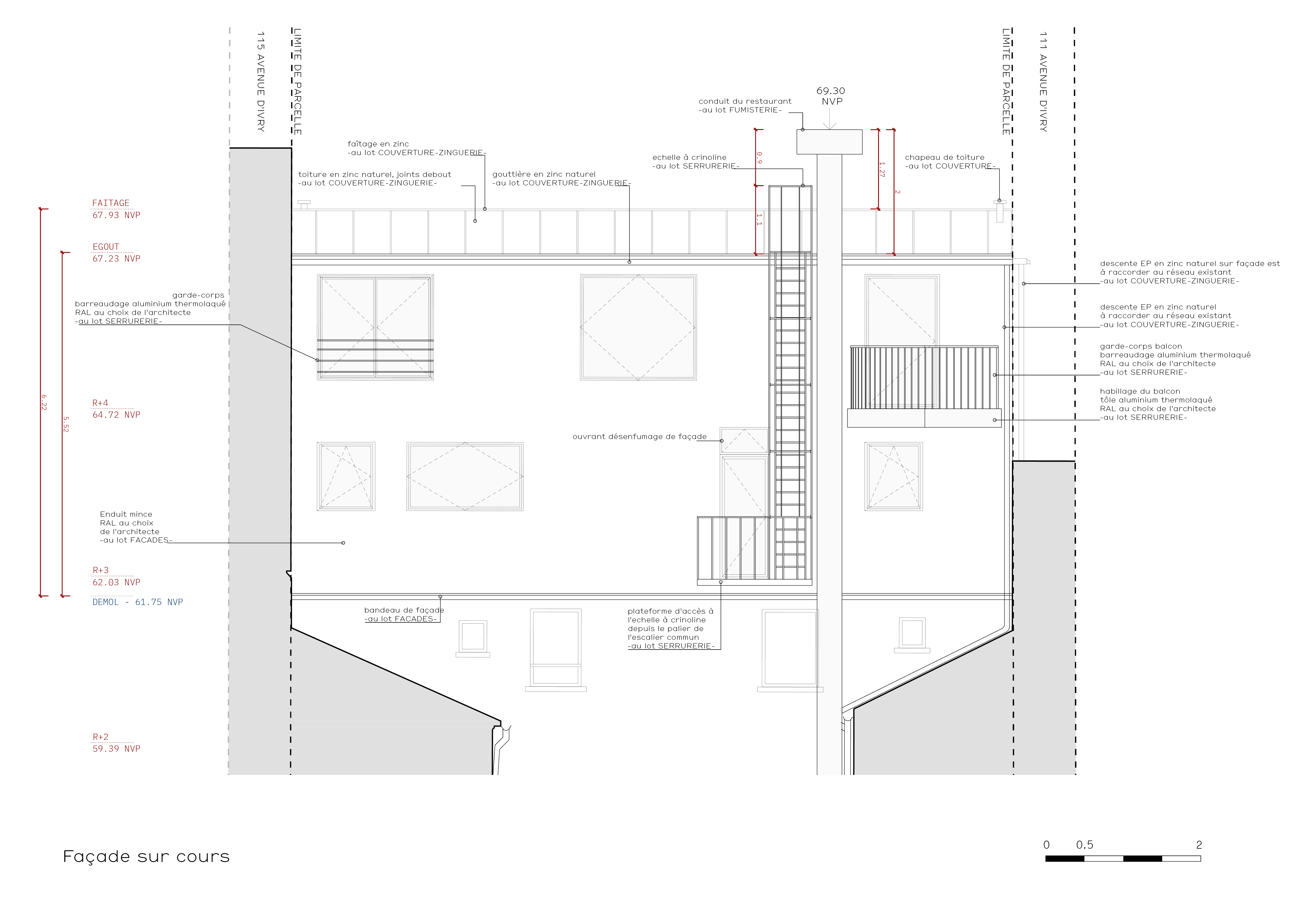
Dans un îlot triangulaire du 13e arrondissement, un petit immeuble faubourien du début du XXe siècle a été surélevé de deux étages pour créer 3 appartements supplémentaires. L’intervention préserve son caractère faubourien en alignant la façade surélevée au mitoyen et en conservant le rythme des baies avec trois travées traditionnelles de l'immeuble existant. De larges ouvertures apportent lumière et confort, tout en restant discrètes grâce à un jeu de cadrage maîtrisé par l’usage d'une double peau en céramique.

Catégorie Bâtiment / logement
Numéro de projet9614
Date de candidature11/03/2025

Bâtiment / logement

Détail projet

Typologie de bâtiment : Extension / surélévation
Type de bâtiment : Logement collectif
Année de livraison : 2024
Surface totale du bâtiment en m² : 350
Dont extension / surélévation en m² : 120
Coût total en € HT (hors foncier, hors VRD, hors honoraires) : 400000
Lot bois n°1 concerné : Charpente bois,ossature bois
Volume lot bois n°1 - m³ : 36
Coût du lot bois n°1 - € HT : 110000
Bois Français : non
Matériaux issus du ré-emploi (préciser dans le descriptif technique) : non
Isolations biosourcées (préciser dans le descriptif technique) : oui
Matériaux géosourcés (préciser dans le descriptif technique) : non
Finitions intéreures biosourcées ou géosourcées (préciser dans le descriptif technique) : oui

Structure bois du bâtiment

Structure verticale :

ProduitEssenceProvenances (lieu de croissance du bois)Traitements de préservationMarque et certification produit
Panneau ossature bois, Poteau poutreDouglasEuropeJe n'ai pas l'informationFSC

Structure horizontale :

ProduitEssenceProvenances (lieu de croissance du bois)Traitements de préservationMarque et certification produit
Solivage traditionnelDouglasEuropeTraitement Classe 2 (trempage)FSC
Solivage traditionnelDouglasEuropeJe n'ai pas l'informationFSC

Charpente :

ProduitEssenceProvenances (lieu de croissance du bois)Traitements de préservationMarque et certification produit
Charpente traditionnelleDouglasEuropeJe n'ai pas l'informationFSC

Revêtement bois extérieur

Revêtement minéral :

Produit
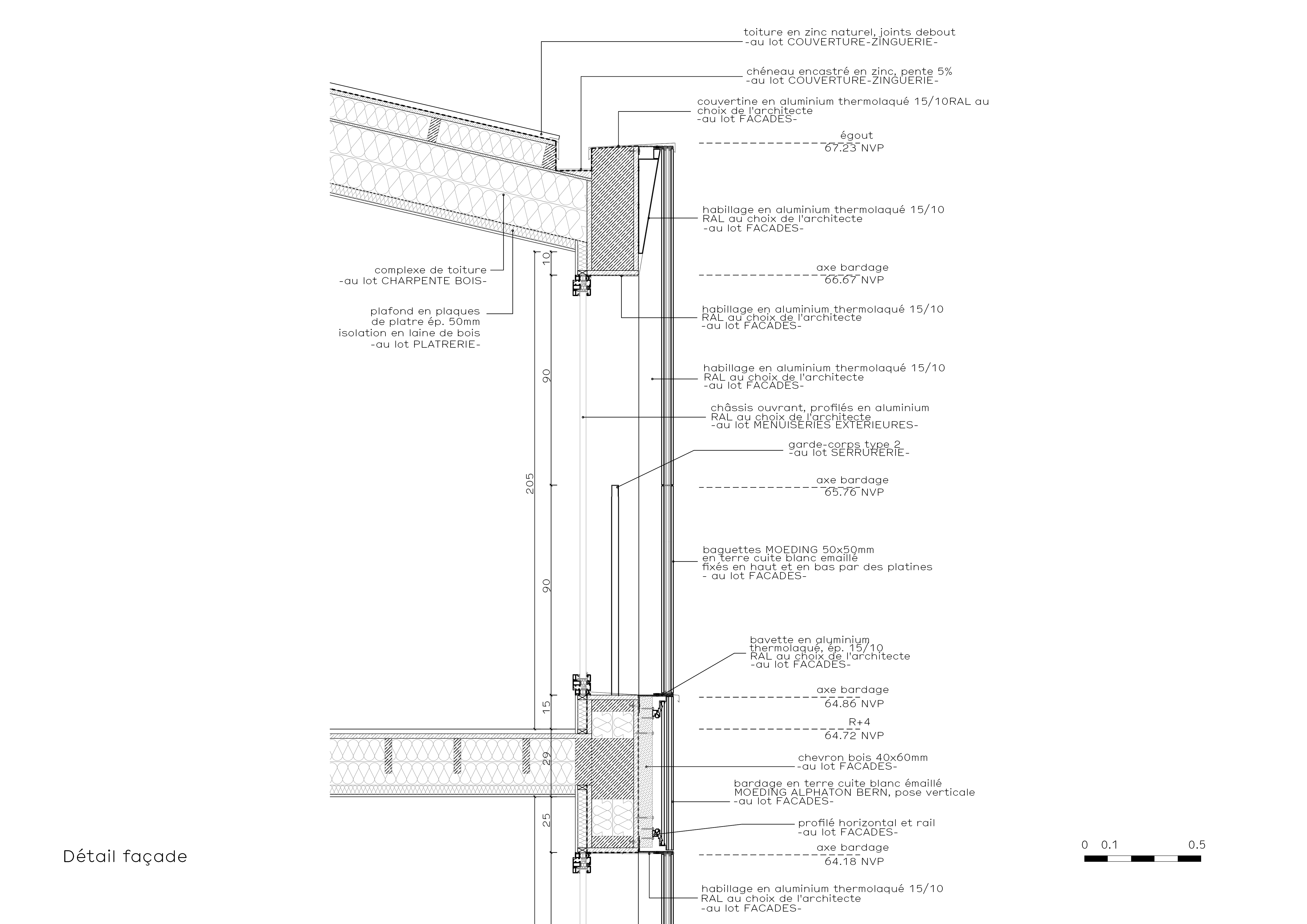
Bardeau terre cuite

Menuiserie intérieure et extérieure

Isolation des murs

Isolation intérieure des murs :

Produit
Fibre de bois (Panneaux)
Epaisseur (mm) Isolation intérieure des murs : 80
Epaisseur (mm) Isolation entre-montant des murs : 120
Epaisseur (mm) Isolation extérieure des murs : 80

Isolation de la toiture

Epaisseur (mm) Isolation entre-montant de la toiture : 220
Epaisseur (mm) Isolation extérieure de la toiture : 80

Approche environnementale : L’immeuble existant, de faible épaisseur, nous a permis d’intégrer 3 appartements traversants de petite taille, 23m², 27m² sur le 3eme niveau et 56m² sur le 4eme niveau, favorisant la ventilation naturelle. Orienté Nord-Sud, les grandes baies permettent une lumière naturelle généreuse. La double peau en céramique protège de la surchauffe en été. Elle génère une intimité aux appartements. Une isolation importante des murs et de la toiture minimise la consommation en chauffage l’hiver. Concernant l’aspect bas carbone, la surélévation est constituée d’une structure en bois.

Descriptif technique : Structure : Il a fallu construire la surélévation en milieu occupé. Nous avons donc dans un premier temps retroussé la couverture au niveau de ses rives pour l’installation d’une assise béton. L’ossature a ensuite été posée avec la couverture en zinc encore présente de l’existant. C’est une fois la couverture du projet réalisée que le zinc existant a été déposé. La structure, fournie par suteki, est un système d’assemblage de poteaux poutres avec des connecteurs en acier. L’assemblage se fait à l’aide d’un simple maillet en suivant le plan. Une équipe de 3 personnes a été suffisante pour monter la surélévation en 10 jours et sans moyen de levage. Ce système fut idéal en site contraint.

Performance du bâtiment (Cep en kWhep/m²/an) : 48
Chauffage au Bois : non
Certifications, labels et marques bâtiment : Aucun
Données déclaratives

Acteurs du projet

Maître d'ouvrage (1)

Maître d'ouvrage - Particuliers

particulier (x)

Etudes et ingénieries (2)

Maître d'œuvre - Architecte mandataire

BULLE POIRIER JUSTMAN (92)

Bureau d'études structure bois

METZ INGENIERIE (75)

Entreprises des lots bois (3)

Charpentier

BIEN SUR ELEVATIONS (91)

Menuisier

BIEN SUR ELEVATIONS (91)

Constructeur bois

KI WOOD (SUTEKIWOOD) (94)

Autres (1)

Photographe

CECILE CHAMPY (75)




* : L'entreprise n'est plus active
Retour à la liste