Aménager
Aménager

Mutation Patrimoniale - réhabilitation de la maison de la gare en tiers-lieu

44240 SUCE SUR ERDRE - Loire Atlantique - Pays de la Loire

AMÉNAGEMENT BOIS

Aménagement intérieur

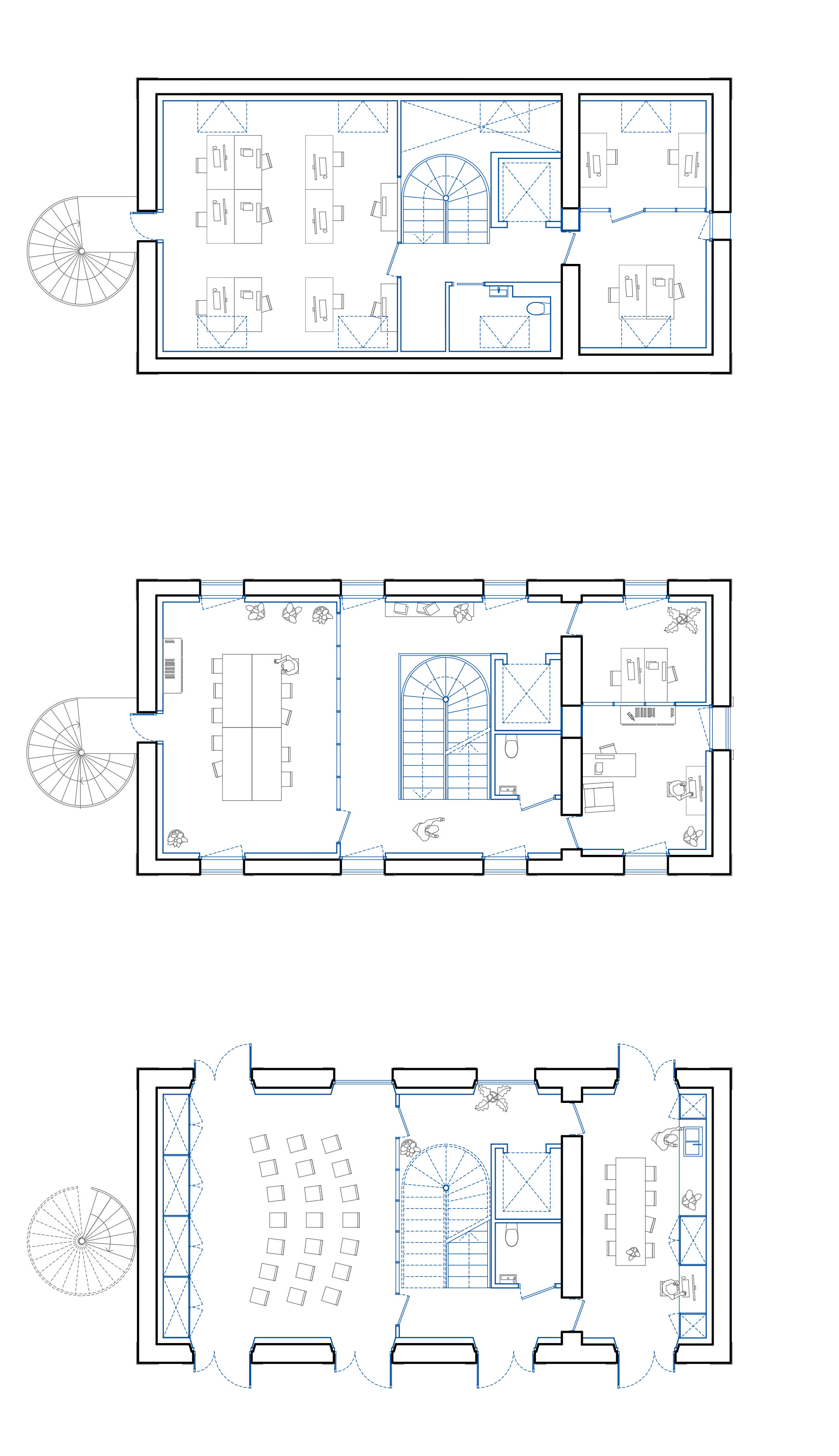
Vidée de ses fonctions ferroviaires, la maison de la gare de Sucé-sur-Erdre fait peau neuve pour devenir un tiers-lieu : espace associatif et coworking. Un noyau de distribution central en bois (hêtre) permet de ré-organiser les espaces intérieurs et de hiérarchiser les degrés d'intimité au sein de l'édifice. La rénovation permet d'isoler l'ensemble du bâtiment à l'aide de matériaux biosourcés (doublage fermacell remplissage laine de chanvre lin et coton), de poser de nouvelles menuiseries extérieures en chêne, d'aménager et d'isoler les combles.

Catégorie aménagement bois, aménagement intérieur
Numéro de projet9466
Adresse du projet Place Jean Monnet
44240 SUCE SUR ERDRE
Date de candidature05/03/2025

aménagement bois

typologie : Loisirs,Culture
Coût total en € HT : 780000

aménagement intérieur

Année de réalisation : livré en 2024
Coût total Aménagement Intérieur en € HT : 210000
Coût lots bois en € HT : 110000
Volume bois m³ : 2.6
Surface aménagée en m² : 225

Liste des produits :

ProduitEssenceProvenances (lieu de croissance du bois)Marque et certification produitFinition
Panneau acoustiqueÉpicéa communAucune
Panneau massif d'agencementChêneFranceJe n'ai pas l'informationLasure
Panneau massif d'agencementHêtreGrand-EstPEFCVernis
Bois Français : oui

Approche environnementale : La majorité des matériaux employés sont d’origine biosourcée, les doublages sont isolés avec un mélange chanvre lin et coton, les plaques de fermacell apporte au passage une bonne inertie intérieure. L’ensemble des menuiseries sont en bois, l’isolation acoustique des salles se fait grâce à des panneaux en fibre de bois. L’ensemble du bâtiment possède des planchers chauffants alimentés par une pompe à chaleur air/eau, adapté à un usage du quotidien. Le renouvellement de l’air est assuré par une ventilation simple flux. Le bâtiment est équipé de panneaux solaires plein sud.

Descriptif technique de l'aménagement : Les menuiseries extérieures en chêne ont été produites et posées par la même entreprise. Réalisés de manière artisanales, les travaux de menuiserie et d’ameublement intérieurs ont été exécutés en hêtre, massif pour les portes et cloisons vitrées, contreplaqué pour l’habillage du noyau central en bois pour les placards et la cuisine. Le détail en creux des grands ensembles vitrés permet de masquer l’assemblage des différents châssis tout en soulignant la verticalité des ensembles bois. En sous-face des planchers modifiés et le long des trémies de l’escalier, la mise en œuvre précise et soignée du béton est laissée apparente. L’escalier en métal au centre du bâtiment a été dessiné sur mesure avec le serrurier en réinterprétant la finesse et la légèreté de l’escalier extérieur existant.

Des matériaux issus du ré-emploi ont été utilisés dans le projet : non
Données déclaratives

Acteurs du projet

Maître d'ouvrage (1)

Maître d'ouvrage - État ou collectivité (locale et territ)

Mairie de Sucé Sur Erdre (44)

Etudes et ingénieries (3)

Maître d'œuvre - Architecte mandataire

LAUS Architectes Urbanistes (Ex Goulet Lambart) (44)

Maître d’œuvre - Architecte associé

Atelier Socle (44)

Economiste

BETEM (31)

Entreprises des lots bois (3)

Menuisier

Menuiserie Bourneuf (72)
Atelier Isac (44)

Autre lot de la construction (en lien avec le bois)

Atelier Isac (44)

Autres (1)

Photographe

SIMON GUESDON (53)




* : L'entreprise n'est plus active
Retour à la liste