Réhabiliter un équipement
Réhabiliter un équipement

Distillerie d'huile essentielle et magasin d'aromathérapie

66500 LOS MASOS - Pyrénées Orientales - Occitanie

BÂTIMENT / LOGEMENT

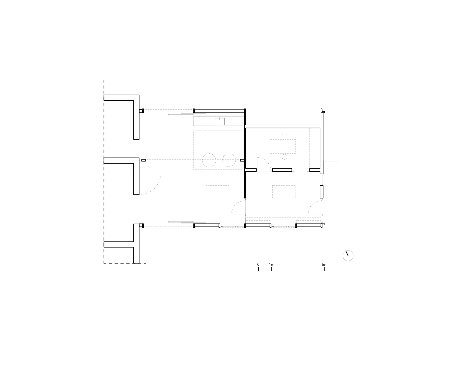
L’entreprise familiale FloraLuna est engagée dans la production d’huiles essentielles biologique depuis 10 ans. L’activité est grandissante et l’entreprise souhaite investir dans un nouvel outil de distillation pour développer sa production. Nous intervenons sur un site existant, construit au fil des ans avec peu de moyens. Dans un contexte contraint par l’outil de production, le projet consiste à clarifier les flux tout en s’adaptant à l’existant. Pour tenir le projet malgré l’inflation et les difficultés d’approvisionnement des dernières années, nous faisons alliance avec un charpentier-compagnon-scieur. Travailler en collaboration étroite avec les artisans nous permet de mettre en oeuvre des détails de construction maitrisés. Le sciage des bois permet aussi l’emploi d’essences de bois locales comme le cèdre, le douglas et l’acacia.

Catégorie Bâtiment / logement
Numéro de projet9450
Adresse du projet 66500 LOS MASOS
Date de candidature04/03/2025

Bâtiment / logement

Détail projet

Typologie de bâtiment : Extension / surélévation,Rénovation / Réhabilitation
Type de bâtiment : Lieu d'entreprise,Industrie et commerce
Année de livraison : 2023
Surface totale du bâtiment en m² : 117
Coût total en € HT (hors foncier, hors VRD, hors honoraires) : 167300
Bois Français : oui
Matériaux issus du ré-emploi (préciser dans le descriptif technique) : oui
Isolations biosourcées (préciser dans le descriptif technique) : oui
Matériaux géosourcés (préciser dans le descriptif technique) : non
Finitions intéreures biosourcées ou géosourcées (préciser dans le descriptif technique) : non

Structure bois du bâtiment

Structure verticale :

ProduitEssenceProvenances (lieu de croissance du bois)Traitements de préservationMarque et certification produit
Poteau poutreDouglasOccitanieAucun traitement

Structure horizontale :

ProduitEssenceProvenances (lieu de croissance du bois)Traitements de préservationMarque et certification produit
Plancher béton
Solivage traditionnelDouglasOccitanieAucun traitement

Charpente :

ProduitEssenceProvenances (lieu de croissance du bois)Traitements de préservationMarque et certification produit
Charpente traditionnelleDouglasOccitanieAucun traitement

Revêtement bois extérieur

Revêtement bois ou dérivés :

ProduitEssenceProvenances (lieu de croissance du bois)Marque et certification produitFinitionTraitements de préservation
Lame bois massifCèdreOccitanieJe n'ai pas l'informationAucune finitionAucun traitement

Menuiserie intérieure et extérieure

Menuiserie extérieure :

ProduitEssenceProvenances (lieu de croissance du bois)Marque et certification produitFinition
Menuiserie bois

Isolation des murs

Isolation de la toiture

Chauffage au Bois : non
Données déclaratives

Acteurs du projet

Maître d'ouvrage (1)

Maître d'ouvrage - Industriels - commerçants - entreprise

particulier (x)

Etudes et ingénieries (2)

Maître d'œuvre - Architecte mandataire

LANDKRAFT (ALDK) (66) *

Economiste

Eco home 66 (66)

Entreprises des lots bois (1)

Charpentier

JENNY CHABERNAUD (CHARPENTE ART TRADITION) (66)

Autres (1)

Photographe

Thomas Bellanger (66)




* : L'entreprise n'est plus active
Retour à la liste