Aménager
Aménager

Belles Feuilles

75016 PARIS 16 - Paris - Ile de France

AMÉNAGEMENT BOIS

Aménagement intérieur

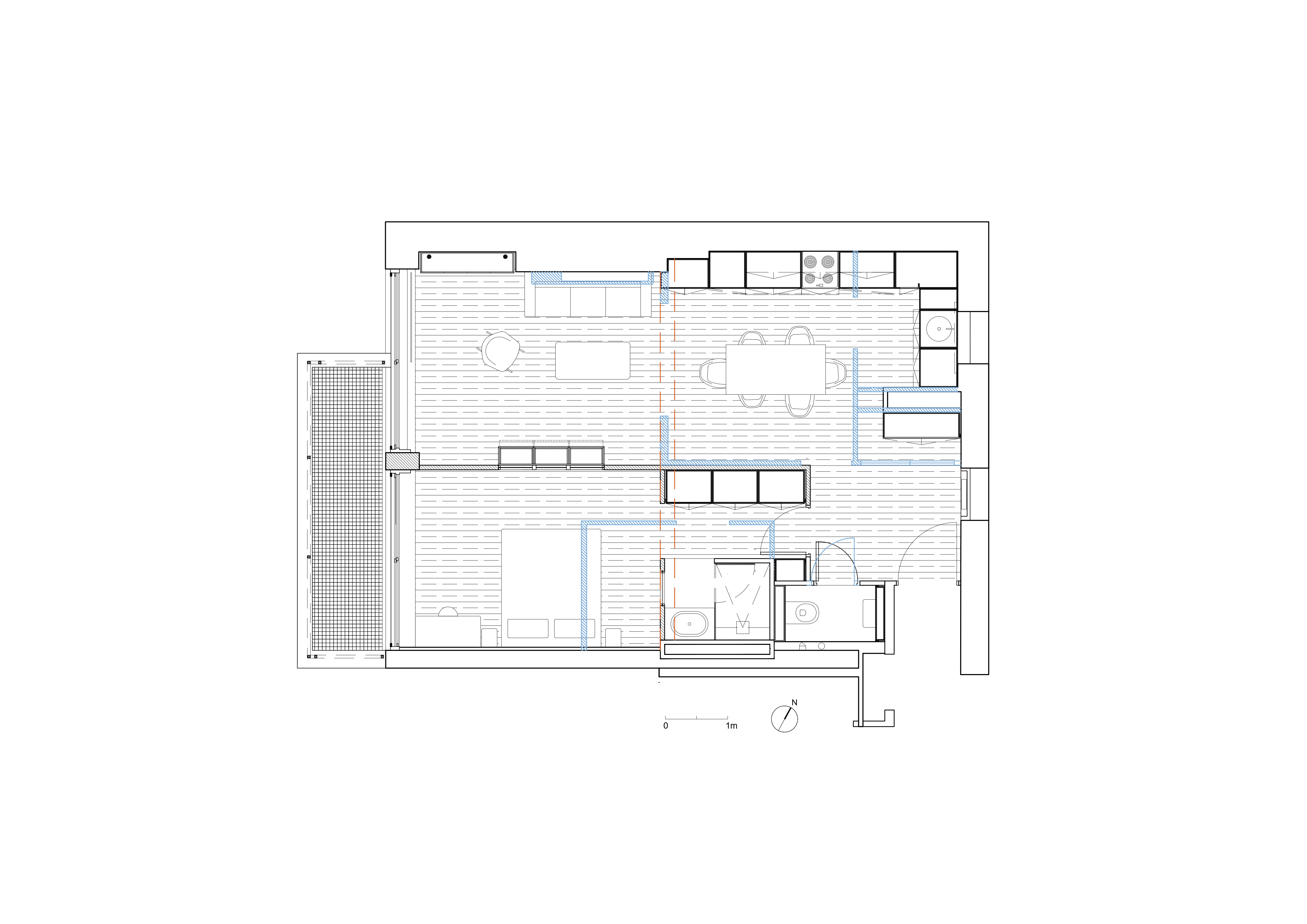
La rénovation de cet appartement des années 1950 établit un dialogue entre sa structure originelle et les interventions contemporaines. L’intervention révèle les matériaux d’origine : béton armé, briques de remplissage et pierre de moellon. Un mur en pierre restauré et une poutre traversante, mis en valeur, structurent l’espace et en définissent les usages. Des aménagements sur mesure en chêne massif rythment les lieux, optimisant la circulation. Une niche en pierre accueille un bar qui épouse ses irrégularités, détaché des parois et reposant sur son socle en marbre d’origine.

Catégorie aménagement bois, aménagement intérieur
Numéro de projet9384
Adresse du projet 75016 PARIS 16
Date de candidature27/02/2025

aménagement bois

Coût total en € HT : 125000

aménagement intérieur

Année de réalisation : 2023
Coût total Aménagement Intérieur en € HT : 80000
Coût lots bois en € HT : 45000
Volume bois m³ : 7
Surface aménagée en m² : 55

Liste des produits :

ProduitEssenceProvenances (lieu de croissance du bois)Marque et certification produitFinition
ParquetChênePEFCVernis
Mobilier, Panneau massif d'agencementChêneVernis
Bois Français : non

Approche environnementale : La conception favorise l’apport de lumière naturelle, une orientation optimisée et une ventilation traversante pour réduire les besoins énergétiques. L’inertie thermique est renforcée par un mur en pierre restauré, situé au sud-ouest de l’appartement, absorbant et restituant la chaleur. L’isolation fait appel à des matériaux aux performances thermiques et acoustiques élevées, combinant laine de bois et sous-couche de plancher issue du recyclage de pneus d’avion. L’éclairage naturel prédomine, complété par des dispositifs à faible consommation. Les matériaux biosourcés sont valorisés.

Descriptif technique de l'aménagement : Le bois de chêne a été choisi pour sa robustesse, ainsi que pour son veinage marqué, qui apportent une richesse visuelle en contraste avec la pierre de moellon et le béton armé. Cette alliance entre textures minérales et ligneuses renforce le dialogue entre patrimoine et intervention contemporaine. Sa solidité permet un travail précis du mobilier, alliant finesse et durabilité. Il ancre l’intervention dans l’histoire du lieu tout en affirmant une lecture contemporaine. Le bar est conçu comme un élément autoportant, détaché des parois irrégulières. Dense et peu poreux, le chêne limite les déformations dues aux variations hygrométriques tout en régulant naturellement l’humidité. Il a aussi été retenu pour sa résistance aux pièces humides, en association avec le médium.

Des matériaux issus du ré-emploi ont été utilisés dans le projet : oui
Données déclaratives

Acteurs du projet

Maître d'ouvrage (1)

Maître d'ouvrage - Particuliers

particulier (x)

Etudes et ingénieries (1)

Maître d'œuvre - Architecte mandataire

Atelier d'Architecture Joanne Riachi - Jori (75)

Entreprises des lots bois (1)

Menuisier

ENAMEL (75)

Autres (1)

Photographe

Monsieur Camille Lemonnier (75)




* : L'entreprise n'est plus active
Retour à la liste