Travailler – accueillir
Travailler – accueillir

AGH

44390 PUCEUL - Loire Atlantique - Pays de la Loire

BÂTIMENT / LOGEMENT

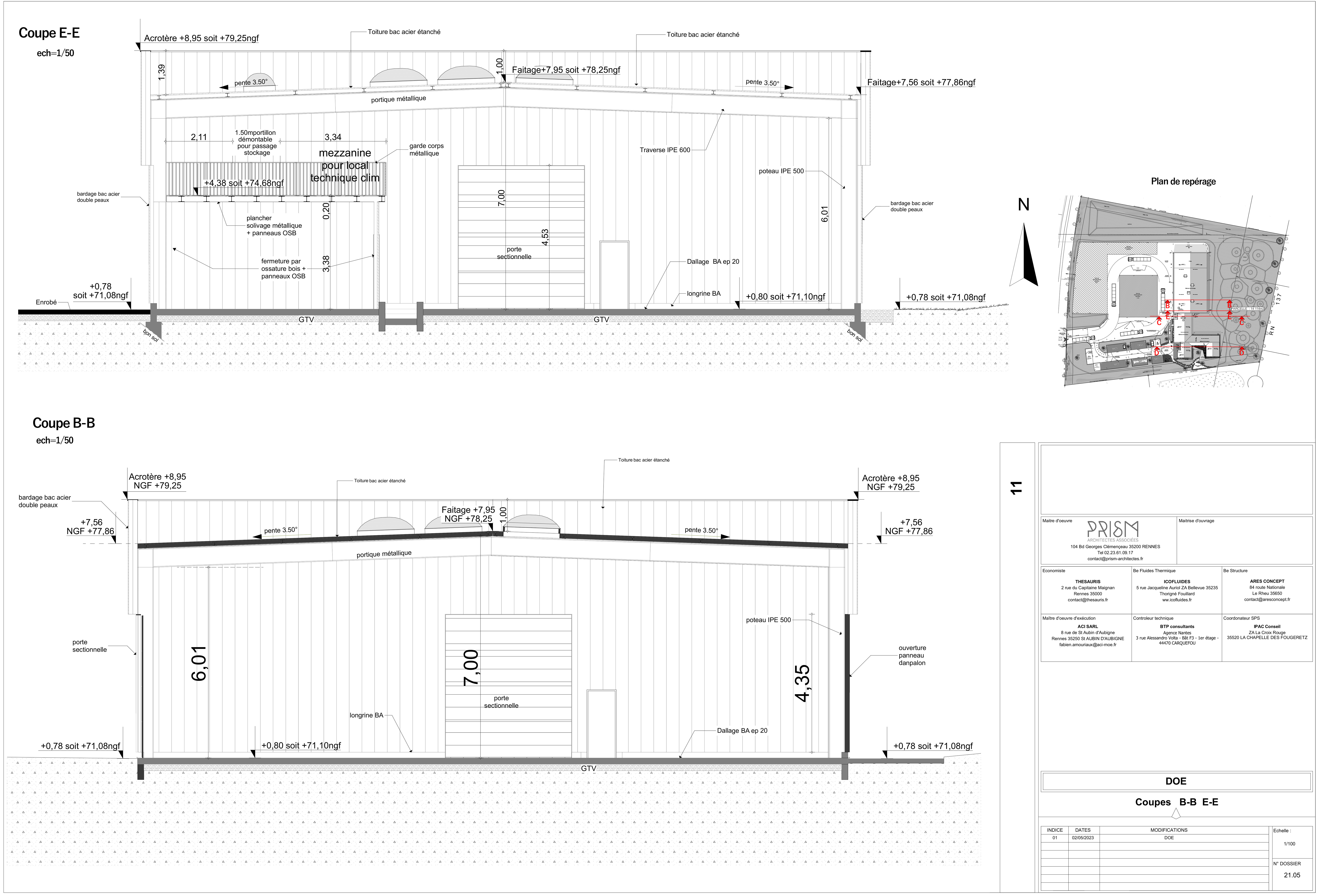
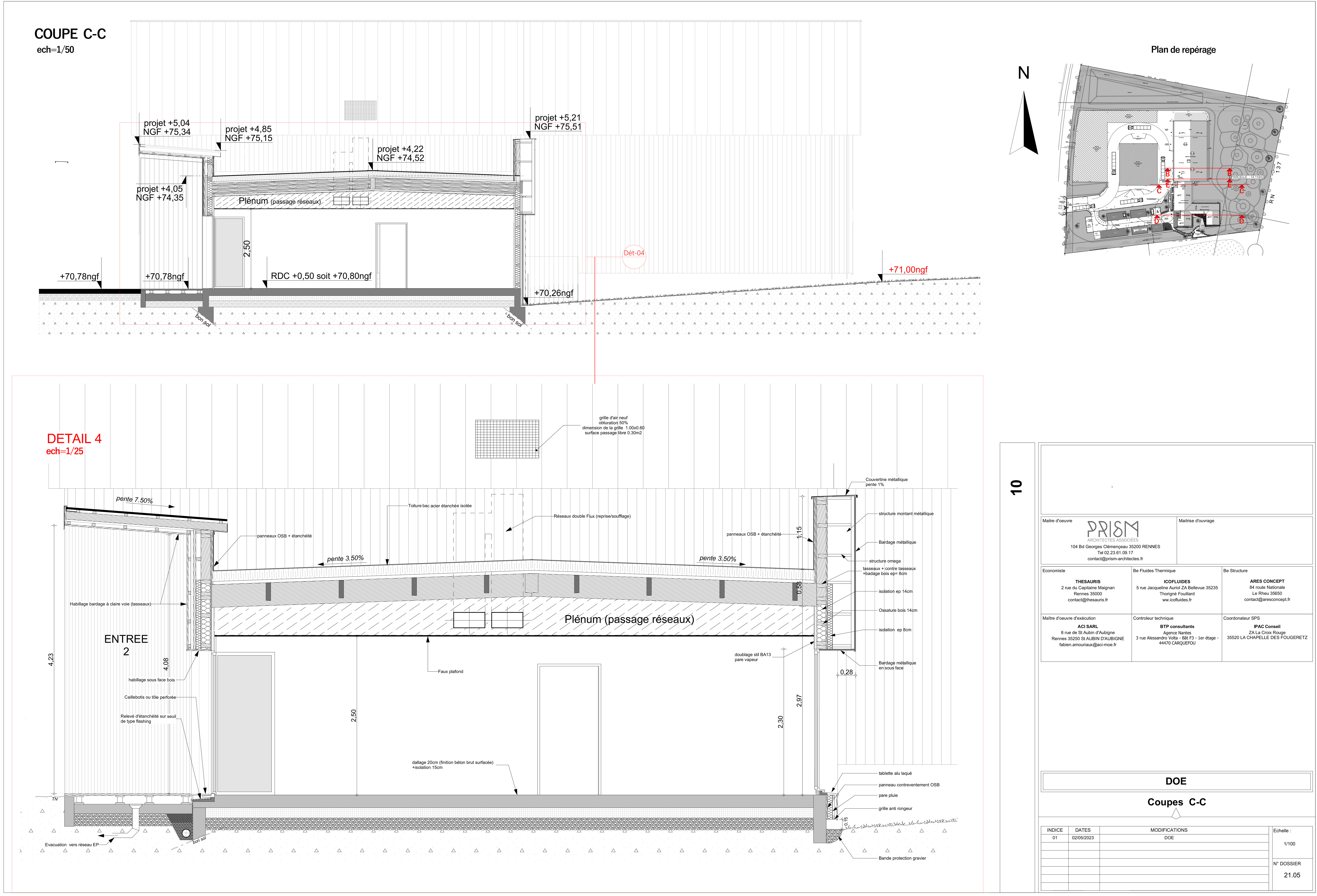
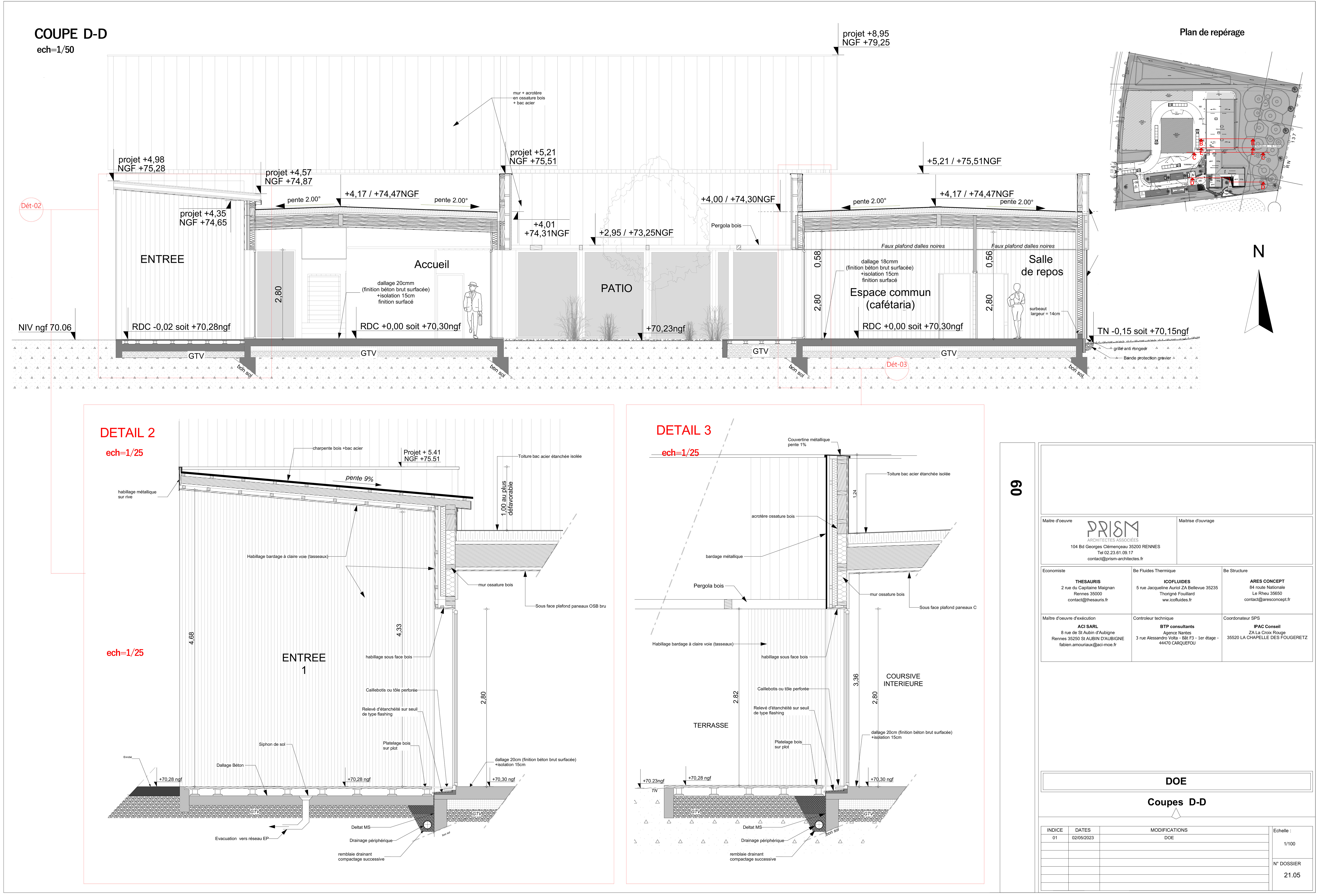
Projet en RDC avec 1 volume bureaux en U + 1 volume stockage fermé + préau ouvert. Façades avec soubassement en béton brut. Le traitement différencié du bardage des façades affirme l'identité des 2 entités ; le volume de stockage est en bardage métallique, le volume de bureaux reçoit un bardage bois ajouré. Suivant la composition des façades, le bardage vient en débord à certains endroits accordant sa structure à l’édifice. Le volume de bureaux en U accueille un « patio » végétal. Une pergola en bois naturel protège une généreuse terrasse extérieure bois ouverte sur un jardin partagé.

Catégorie Bâtiment / logement
Numéro de projet9380
Adresse du projet 3 allée de l'Isac
44390 PUCEUL
Date de candidature27/02/2025

Bâtiment / logement

Détail projet

Typologie de bâtiment : Neuf
Type de bâtiment : Lieu d'entreprise
Année de livraison : 2023
Surface totale du bâtiment en m² : 1126
Coût total en € HT (hors foncier, hors VRD, hors honoraires) : 1638700
Bois Français : oui
Matériaux issus du ré-emploi (préciser dans le descriptif technique) : oui
Isolations biosourcées (préciser dans le descriptif technique) : oui
Matériaux géosourcés (préciser dans le descriptif technique) : non
Finitions intéreures biosourcées ou géosourcées (préciser dans le descriptif technique) : oui

Structure bois du bâtiment

Structure verticale :

ProduitEssenceProvenances (lieu de croissance du bois)Traitements de préservationMarque et certification produit
Poteau poutreDouglasFrancePEFC
Panneau ossature boisDouglasFrancePEFC

Structure horizontale :

ProduitEssenceProvenances (lieu de croissance du bois)Traitements de préservationMarque et certification produit
Plancher béton
Plancher béton

Charpente :

ProduitEssenceProvenances (lieu de croissance du bois)Traitements de préservationMarque et certification produit
Charpente bois lamellé-colléDouglasFranceTraitement Classe 2 (trempage)PEFC
Charpente traditionnelleÉpicéa communFranceTraitement Classe 2 (trempage)PEFC

Revêtement bois extérieur

Revêtement bois ou dérivés :

ProduitEssenceProvenances (lieu de croissance du bois)Marque et certification produitFinitionTraitements de préservation
Lame bois massifDouglasFrancePEFC

Menuiserie intérieure et extérieure

Isolation des murs

Isolation de la toiture

Approche environnementale : Construction en Bois français issus de massifs certifiés PEFC. Pergola et terrasse commune en bois naturel ouverte sur un jardin partagé. Tous les espaces libres sont enherbés. La majeure partie des espaces verts sont en pleine terre avec de nouveaux arbres plantés : 3 platanes, massifs arbustifs à l'entrée, 4 albizias sur les places de stationnement, 2 érables, 1 magnolia, 1 mimosa, haie vive de 1 mètre de haut composée d'essences locales variées en limites Ouest et Nord, bandes fleuries aux pieds des façades Ouest et Sud. Jardin partagé traité comme un îlot de fraîcheur.

Descriptif technique : Volume bureaux en forme de U : structure en bois - Bois lamellé-collé - Mur de soubassement en béton brut - Bardage bois massif ajouré vertical en Douglas - pare-pluie écran respirant - isolation thermo- acoustique chanvre, coton et lin isolation ouate de cellulose - toiture terrasse étanchéité autoprotégée - toiture bac acier Aménagement intérieur en bois naturel : mobilier intégré (banquettes, étagères, pare-vues...) Aménagements extérieurs en bois avec une pergola et une vaste terrasse ouverte sur un patio central végétalisé.

Chauffage au Bois : non
Certifications, labels et marques bâtiment : PEFC
Données déclaratives

Acteurs du projet

Maître d'ouvrage (2)

Maître d'ouvrage - Industriels - commerçants - entreprise

SCI DEPOT DE L'ISAC (44)

Autres

ARCH CONSEIL INGENIERIE (ACI) (35)

Etudes et ingénieries (4)

Maître d'œuvre - Architecte mandataire

PRISM ARCHITECTES ASSOCIEES (35)

Bureau d'études structure bois

ARES CONCEPT (35)

Bureau d'études thermique

ICOFLUIDES Ingénierie (35)

Economiste

THESAURIS (35)

Entreprises des lots bois (2)

Charpentier

Atelier Isac (44)

Menuisier

Atelier Isac (44)

Fournisseurs du bois (1)

Scierie

Piveteau Bois (85)

Autres (1)

Photographe

Eric Sueur (35)




* : L'entreprise n'est plus active
Retour à la liste