Travailler – accueillir
Travailler – accueillir

Centre Technique Municipal de Châteauneuf (85)

85710 - Vendée - Pays de la Loire

BÂTIMENT / LOGEMENT

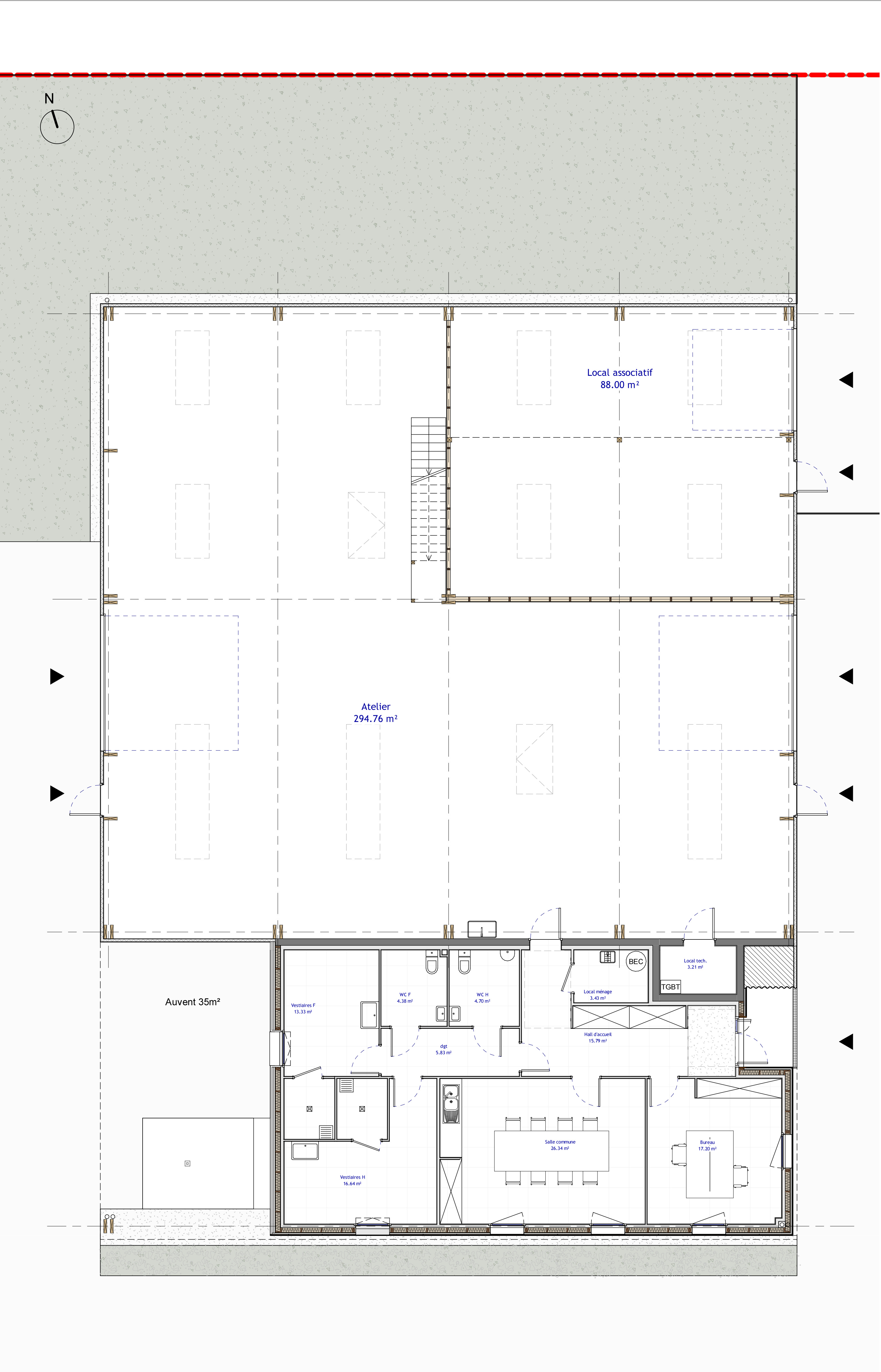
Le Centre Technique Municipal présente une volumétrie sobre et compacte, caractérisée par une toiture à deux pentes asymétriques. Son volume en acier laqué blanc accueille, en son cœur, un grand atelier ainsi qu’un espace de stockage destiné aux associations. L’atelier est équipé de deux grande portes sectionnelles situées de part et d’autre, facilitant une circulation intérieure des véhicules à sens unique. La partie regroupant les bureaux et les vestiaires se distingue quant à elle par ses façades en bois et semble s’insérer sous la grande toiture de l’atelier.

Catégorie Bâtiment / logement
Numéro de projet9341
Adresse du projet 85710
Date de candidature24/02/2025

Bâtiment / logement

Détail projet

Typologie de bâtiment : Neuf
Type de bâtiment : Service institutionnel et public
Année de livraison : 2024
Surface totale du bâtiment en m² : 555
Coût total en € HT (hors foncier, hors VRD, hors honoraires) : 555000
Lot bois n°1 concerné : Charpente bois,Bardage bois,ossature bois
Coût du lot bois n°1 - € HT : 125000
Bois Français : non
Matériaux issus du ré-emploi (préciser dans le descriptif technique) : non
Isolations biosourcées (préciser dans le descriptif technique) : non
Matériaux géosourcés (préciser dans le descriptif technique) : non
Finitions intéreures biosourcées ou géosourcées (préciser dans le descriptif technique) : non

Structure bois du bâtiment

Structure verticale :

ProduitEssenceProvenances (lieu de croissance du bois)Traitements de préservationMarque et certification produit
Panneau ossature bois, Poteau poutre

Structure horizontale :

ProduitEssenceProvenances (lieu de croissance du bois)Traitements de préservationMarque et certification produit
Dalle bois, Solivage traditionnel

Charpente :

ProduitEssenceProvenances (lieu de croissance du bois)Traitements de préservationMarque et certification produit
Charpente bois lamellé-collé

Revêtement bois extérieur

Revêtement bois ou dérivés :

ProduitEssenceProvenances (lieu de croissance du bois)Marque et certification produitFinitionTraitements de préservation
Lame bois massifDouglas

Autre revêtement métallique :

Produit
Acier

Menuiserie intérieure et extérieure

Isolation des murs

Isolation de la toiture

Approche environnementale : Le projet adopte une conception compacte, limitant l’imperméabilisation du site. La toiture est spécifiquement conçue pour accueillir des panneaux photovoltaïques, avec une orientation et une inclinaison idéale pour maximiser la captation de l’énergie solaire. L’utilisation combinée de matériaux tels que le bois pour la structure et l’acier pour l’enveloppe vise une approche durable et esthétique : Le bardage en bois horizontal, prolongé devant les fenêtres, joue un rôle de brise-soleil diminuant les apports de chaleur tout en offrant une sécurité renforcée des locaux.

Descriptif technique : Charpente lamellé-collé pour l’atelier et l’espace de stockage associatif ; Murs Ossature bois pour la partie bureaux et vestiaires. Bardage bois Douglas Isolation : laine minérale ECS : Ballon thermodynamique VMC : simple flux Chauffage et Rafraichissement : PAC Air-Air /

Chauffage au Bois : non
Données déclaratives

Acteurs du projet

Maître d'ouvrage (1)

Maître d'ouvrage - État ou collectivité (locale et territ)

Commune de Châteauneuf (85)

Etudes et ingénieries (3)

Maître d'œuvre - Architecte mandataire

Eric Piton Architecte (44)

Bureau d'études structure bois

Ascia Ingénierie (44)

Economiste

Ascia Ingénierie (44)

Entreprises des lots bois (1)

Charpentier

CONSTRUCTION MILLET BOIS (CMB CHARPENTE) (79)




* : L'entreprise n'est plus active
Retour à la liste