Apprendre – se divertir
Apprendre – se divertir

Construction du pôle touristique et de loisirs les Cimes de Courcy à Brain-sur-Allonnes

49650 BRAIN SUR ALLONNES - Maine et Loire - Pays de la Loire
Lauréat régional
Finaliste national

BÂTIMENT / LOGEMENT

Le projet vise à créer un équipement de loisirs dans un site patrimonial et naturel à valoriser : la forêt et le site historique de Sacé. Le bâtiment est modulable selon les événements et temporalités (cloisons mobiles). Il se développe simplement en s’implantant au croisement des sentiers historiques du site. Inscrit comme une frontière entre l’accès libre et le site payant, il se prolonge de part et d’autre de cette limite en fonction des besoins du programme Le projet se fond avec humilité dans le site, dans l’affirmation d’une relation architecturale, paysagère et environnementale.

Catégorie Bâtiment / logement
Numéro de projet9271
Adresse du projet 678 La cave peinte
49650 BRAIN SUR ALLONNES
Date de candidature18/02/2025

Bâtiment / logement

Détail projet

Typologie de bâtiment : Neuf
Type de bâtiment : Loisirs,Culture
Année de livraison : 2024
Surface totale du bâtiment en m² : 360
Coût total en € HT (hors foncier, hors VRD, hors honoraires) : 1365475.35
Lot bois n°1 concerné : Charpente bois,Bardage bois,ossature bois
Volume lot bois n°1 - m³ : 126
Coût du lot bois n°1 - € HT : 449237.72
Coût du lot bois n°2 - € HT : 139721.82
Bois Français : non
Matériaux issus du ré-emploi (préciser dans le descriptif technique) : non
Isolations biosourcées (préciser dans le descriptif technique) : oui
Matériaux géosourcés (préciser dans le descriptif technique) : oui
Finitions intéreures biosourcées ou géosourcées (préciser dans le descriptif technique) : oui

Structure bois du bâtiment

Structure verticale :

ProduitEssenceProvenances (lieu de croissance du bois)Traitements de préservationMarque et certification produit
Panneau ossature boisFranceJe n'ai pas l'informationJe n'ai pas l'information

Structure horizontale :

ProduitEssenceProvenances (lieu de croissance du bois)Traitements de préservationMarque et certification produit
Plancher béton
Panneau de bois massif (CLT collé ou CLT cloué)Épicéa communEuropeJe n'ai pas l'informationJe n'ai pas l'information

Charpente :

ProduitEssenceProvenances (lieu de croissance du bois)Traitements de préservationMarque et certification produit
Charpente bois lamellé-colléÉpicéa communEuropeJe n'ai pas l'informationJe n'ai pas l'information

Revêtement bois extérieur

Revêtement bois ou dérivés :

ProduitEssenceProvenances (lieu de croissance du bois)Marque et certification produitFinitionTraitements de préservation
Bardeau boisChâtaignierPays-de-la-LoireJe n'ai pas l'informationSaturateurTraitement Classe 4 (autoclave)

Menuiserie intérieure et extérieure

Menuiserie intérieure :

ProduitEssenceProvenances (lieu de croissance du bois)FinitionMarque et certification produit
LambrisChâtaignierPays-de-la-LoireSaturateurJe n'ai pas l'information
Panneau massif d'agencementÉpicéa communFranceHuileJe n'ai pas l'information

Isolation des murs

Isolation intérieure des murs :

Produit
Autres
Epaisseur (mm) Isolation intérieure des murs : 60

Isolation entre-montant des murs :

Produit
Fibre de bois (Panneaux)
Epaisseur (mm) Isolation entre-montant des murs : 200

Isolation de la toiture

Epaisseur (mm) Isolation intérieure de la toiture : 100
Epaisseur (mm) Isolation extérieure de la toiture : 200

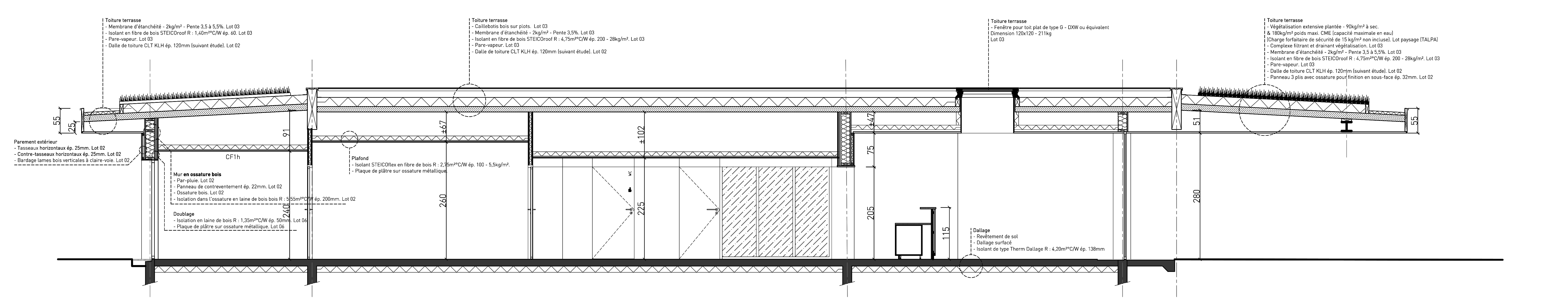
Approche environnementale : Le bois de châtaignier du bardage et des terrasses a été prélevé et débardé sur site et à cheval, puis séché et travaillé dans une scierie locale, de même que les lames des terrasses. La végétalisation de la toiture contribue non seulement au confort d’été du bâti mais assure aussi la préservation de la biodiversité. Elle s’inscrit dans la continuité du traitement paysagé depuis la perception des visiteurs depuis le parc à bout. De généreux débords de toiture protègent les parties vitrées et permettent aussi de filtrer l’apport lumineux et solaire en façade Sud-Ouest.

Descriptif technique : Le bâtiment est réalisé en façades et murs à ossature bois avec isolation laine de bois. La toiture est en panneaux CLT porteurs et poutres lamellé collé. Les sous-faces des débords de toiture en extérieur, de même que les faux-plafonds intérieurs, sont en panneaux 3 plis épicéa, acoustiques pour l’intérieur. Le bardage en lames bois châtaignier verticales ton brun-noir habille l’extérieur mais aussi l’intérieur du bâtiment. Un bandeau périphérique en bois massif saturé blanc ceinture la dalle formant toiture et coiffe les élévations en bardage ton sombre. Le mobilier en contreplaqué d’épicéa. Les 2/3 de l’isolation sont en laine de bois. Système de chauffage : pompe à chaleur / climatisation réversible. Ventilation double-flux. Revêtement de sol en caoutchouc naturel de marque Nora.

Chauffage au Bois : non
Données déclaratives

Acteurs du projet

Maître d'ouvrage (1)

Maître d'ouvrage - État ou collectivité (locale et territ)

Mairie de Brain Sur Allonnes (49)

Etudes et ingénieries (4)

Maître d'œuvre - Architecte mandataire

ATOME SARL (49)

Bureau d'études structure bois

Even Structures (49)

Bureau d'études thermique

AB Ingénierie (49)

Paysagiste

Agence Talpa / Alatacc (49)

Entreprises des lots bois (3)

Charpentier

ACB (Société Angevine Construction Bois) (49)

Menuisier

ACB (Société Angevine Construction Bois) (49)

Autre lot de la construction (en lien avec le bois)

REMI ANTOINE (72)




* : L'entreprise n'est plus active
Retour à la liste