Apprendre – se divertir, Travailler – accueillirApprendre – se divertir, Travailler – accueillir
Apprendre – se divertir, Travailler – accueillir

Halle Municipale

33450 SAINT SULPICE ET CAMEYRAC - Gironde - Nouvelle-Aquitaine
Lauréat régional
Finaliste national

BÂTIMENT / LOGEMENT

La Halle de Saint-Sulpice-et-Cameyrac, d'une architecture sobre et contemporaine, s'intègre harmonieusement au cœur d'une commune au riche patrimoine architectural et viticole. Implantée en centre-bourg, cette halle de 600 m² dynamise la vie locale en offrant un espace polyvalent pour les événements communaux. Sa conception soignée inclut une façade filtrante, préservant les usagers des flux routiers tout en assurant une connexion fluide avec les équipements voisins et en favorisant les rencontres et échanges.

Catégorie Bâtiment / logement
Numéro de projet9080
Adresse du projet 17 avenue de Maucaillou
33450 SAINT SULPICE ET CAMEYRAC
Date de candidature21/01/2025

Bâtiment / logement

Détail projet

Typologie de bâtiment : Neuf
Type de bâtiment : Loisirs,Service institutionnel et public
Année de livraison : 2024
Surface totale du bâtiment en m² : 520
Coût total en € HT (hors foncier, hors VRD, hors honoraires) : 1020851.93
Volume lot bois n°1 - m³ : 101
Coût du lot bois n°1 - € HT : 398000
Bois Français : oui
Matériaux issus du ré-emploi (préciser dans le descriptif technique) : non
Isolations biosourcées (préciser dans le descriptif technique) : non
Matériaux géosourcés (préciser dans le descriptif technique) : non
Finitions intéreures biosourcées ou géosourcées (préciser dans le descriptif technique) : non

Structure bois du bâtiment

Structure verticale :

ProduitEssenceProvenances (lieu de croissance du bois)Traitements de préservationMarque et certification produit
Poteau poutrePin maritimeNouvelle-AquitaineTraitement Classe 3a (trempage)Bois de France

Structure horizontale :

ProduitEssenceProvenances (lieu de croissance du bois)Traitements de préservationMarque et certification produit
Panneau de bois massif (CLT collé ou CLT cloué)Pin maritimeNouvelle-AquitaineJe n'ai pas l'informationJe n'ai pas l'information

Charpente :

ProduitEssenceProvenances (lieu de croissance du bois)Traitements de préservationMarque et certification produit
Charpente bois lamellé-colléPin maritimeNouvelle-AquitaineTraitement Classe 3a (trempage)Bois de France

Revêtement bois extérieur

Revêtement bois ou dérivés :

ProduitEssenceProvenances (lieu de croissance du bois)Marque et certification produitFinitionTraitements de préservation
Panneau contreplaquéPin maritimeNouvelle-AquitaineBois de FranceJe n'ai pas l'informationJe n'ai pas l'information

Menuiserie intérieure et extérieure

Isolation des murs

Isolation de la toiture

Approche environnementale : La Halle de Saint-Sulpice adopte une approche environnementale ambitieuse pour minimiser son empreinte carbone et intégrer le végétal dans l'espace public. Dès la conception, des solutions ont été mises en place pour limiter l'impact écologique du bâtiment. Des matériaux biosourcés et locaux, comme du bois des Landes et un béton décarboné à base de ciment sans clinker, ont été privilégiés. L'aménagement paysager contribue à la réduction des îlots de chaleur et favorise la biodiversité.

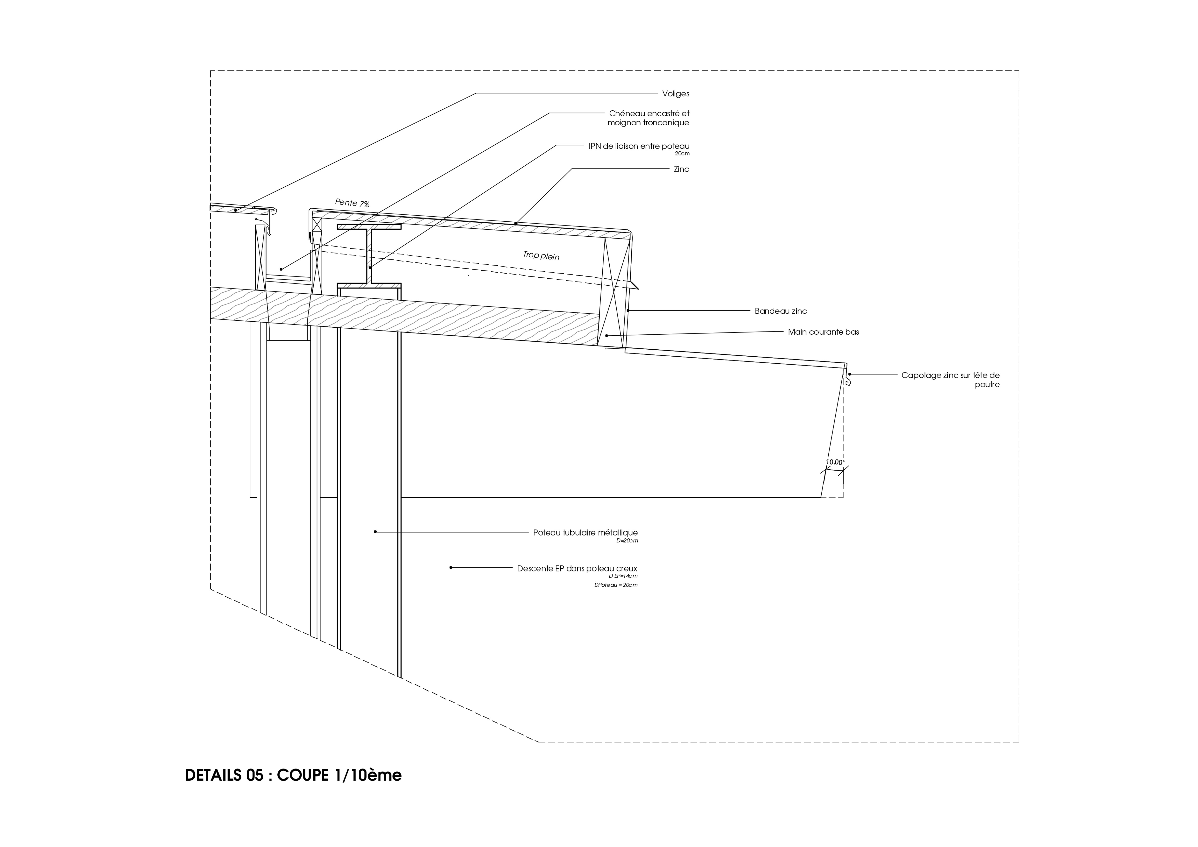
Descriptif technique : L'aménagement de la Halle repose sur des techniques innovantes, valorisant le bois lamellé-collé et les panneaux CLT, issus d'une filière locale et certifiés Bois de France. La charpente en Pin Maritime hors aubier, rare à cette échelle, intègre 70 m³ de bois lamellé-collé des Landes de Gascogne et 31 m³ de panneaux CLT, garantissant stabilité, rapidité de mise en œuvre et performance thermique et acoustique. Un suivi rigoureux du bois dès sa récolte et une structure provisoire complexe ont représenté un défi technique majeur, illustrant un savoir-faire unique. Ce projet allie innovation, durabilité et exemplarité environnementale.

Chauffage au Bois : non
Données déclaratives

Acteurs du projet

Maître d'ouvrage (1)

Maître d'ouvrage - État ou collectivité (locale et territ)

Commune de Saint Sulpice et Cameyrac (33)

Etudes et ingénieries (6)

Maître d'œuvre - Architecte mandataire

Bulle Architectes (33)

Bureau d'études structure bois

CESMA bureau d'études bois mixte acier (33)

Bureau d'études thermique

ODETEC (33)

Autre intervenant de la construction - bureau de contrôle, AMO, BIM...

ASSISTANCE MEDIATION (33)
Qualiconsult (33)

Architecte / paysagiste concepteur

ILO (33)

Entreprises des lots bois (1)

Charpentier

LAMECOL (33)

Fournisseurs du bois (2)

Scierie

Piveteau Bois (85)
GASCOGNE BOIS (33)

Autres (1)

Photographe

ROMAIN FARGE (33)




* : L'entreprise n'est plus active
Retour à la liste