Habiter une maison
Habiter une maison

Maison LPC

34270 VALFLAUNES - Hérault - Occitanie

BÂTIMENT / LOGEMENT

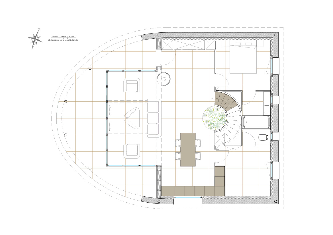
La maison LPC est une villa individuelle biosourcée et géosourcée. Son orientation s'ouvre vers la vue magistrale donnant sur le Pic Saint Loup et l’Hortus. Les espaces intérieurs optimisés s’articulent autour d’un escalier en spirale de Théodore végétalisé. Sculpté dans la masse, cet escalier dissocie les espaces nuits pleins des espaces jours vides. Ce petit Object dynamique simple et parfaitement adapté à son environnement, émerge d’une clairière Héraultaise.

Catégorie Bâtiment / logement
Numéro de projet9014
Date de candidature08/01/2025

Bâtiment / logement

Détail projet

Typologie de bâtiment : Neuf
Type de bâtiment : Logement individuel supérieur à 120 m²
Année de livraison : 2024
Surface totale du bâtiment en m² : 130
Coût total en € HT (hors foncier, hors VRD, hors honoraires) : 330000
Coût du lot bois n°1 - € HT : 155985
Bois Français : oui
Matériaux issus du ré-emploi (préciser dans le descriptif technique) : non
Isolations biosourcées (préciser dans le descriptif technique) : oui
Matériaux géosourcés (préciser dans le descriptif technique) : oui
Finitions intéreures biosourcées ou géosourcées (préciser dans le descriptif technique) : oui

Structure bois du bâtiment

Structure verticale :

ProduitEssenceProvenances (lieu de croissance du bois)Traitements de préservationMarque et certification produit
Panneau ossature bois, Poteau poutreOccitanieTraitement Classe 4 (autoclave)Origine France Garantie

Structure horizontale :

ProduitEssenceProvenances (lieu de croissance du bois)Traitements de préservationMarque et certification produit
Solivage traditionnelOccitanieAucun traitementPEFC

Charpente :

ProduitEssenceProvenances (lieu de croissance du bois)Traitements de préservationMarque et certification produit
Charpente traditionnelleOccitanieTraitement Classe 3b (autoclave)PEFC

Revêtement bois extérieur

Revêtement bois ou dérivés :

ProduitEssenceProvenances (lieu de croissance du bois)Marque et certification produitFinitionTraitements de préservation
Lame bois massifOccitaniePEFCpré-griséTraitement Classe 4 (autoclave)

Revêtement minéral :

Produit
Autres

Autre revêtement métallique :

Produit
Acier

Menuiserie intérieure et extérieure

Menuiserie intérieure :

ProduitEssenceProvenances (lieu de croissance du bois)FinitionMarque et certification produit
Escalier, Mobilier, Parquet, PlinthesOccitanieSaturateurPEFC

Isolation des murs

Epaisseur (mm) Isolation intérieure des murs : 140
Epaisseur (mm) Isolation entre-montant des murs : 140
Epaisseur (mm) Isolation extérieure des murs : 140

Isolation de la toiture

Epaisseur (mm) Isolation intérieure de la toiture : 290
Epaisseur (mm) Isolation entre-montant de la toiture : 290

Approche environnementale : Aboutissement de connaissances et de recherches sur la matière présente dans le Languedoc. cette villa répond aux besoins d’une capitaine de navire à la retraite. L’emprise au sol devait être maîtrisée sans aucune suppression d’arbre. La matière optimisée, appliquée en fonction de ses caractéristiques propres. - la coque en pierre calcaire de Beaulieu, calepinée à l’échelle d’une habitation, enveloppe et protège les espaces intérieurs. - Le squelette en bois Douglas de Florensac structure les usages et oriente les ouvertures.

Descriptif technique : La maison offre une architecture contemporaine organique souhaitée par ses futurs propriétaires proposant un confort optimal (plancher chauffant, toiture végétalisée, récupération d’eau de pluie). - L'inertie et la structure verticale est assurée par la pierre calcaire massives de 32cm d'épaisseur ainsi que son plancher bas sur hourdis. - L'isolation et la structure horizontale est concentrée sur l'utilisation du bois sous différentes formes dans un soucis de préservation de la matière.

Performance du bâtiment (Cep en kWhep/m²/an) : 30.300
Ic construction - Impact Environnemental de la Construction (kg éq CO2/m² de SHAB ou SU) : 1
Chauffage au Bois : oui
Appareil de chauffage au bois : Poële/insert
Certifications, labels et marques bâtiment : Bâtiment Bas Carbone (BBCA),Bâtiment Biosourcé,FSC,HQE,Origine France Garantie (OFG)
Données déclaratives

Acteurs du projet

Maître d'ouvrage (1)

Maître d'ouvrage - Particuliers

particulier (x)

Etudes et ingénieries (1)

Maître d'œuvre - Architecte mandataire

MA Architectes (34)

Entreprises des lots bois (2)

Charpentier

TRADITION BOIS 34 (34) *

Menuisier

TRADITION BOIS 34 (34) *

Autres (1)

Photographe

particulier (x)




* : L'entreprise n'est plus active
Retour à la liste