Aménager
Aménager

Hab.005

93100 - Seine Saint Denis - Ile de France

AMÉNAGEMENT BOIS

Aménagement intérieur

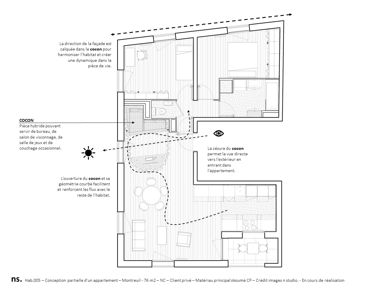
La problématique majeure pour la famille était de pouvoir ajouter à ce T3, une pièce modulable servant à la fois de bureau, couchage occasionnel, salon de visionnage et rangements. Nous avons alors pensé un espace hybride inspiré de l'idée-même du cocon. Enveloppé de voilages, le cocon permet de s'isoler de la pièce de vie via ce filtre visuel apportant douceur et intimité. Sa géométrie composée d'une courbe permet des déplacements fluides avec le reste de l’habitat. Par ailleurs, dès l'entrée du logement, la césure créée par l'agencement offre une vue directe vers l’extérieur.

Catégorie aménagement bois, aménagement intérieur
Numéro de projet9013
Adresse du projet rue Etienne marcel
93100
Date de candidature07/01/2025

aménagement bois

typologie : Logement individuel inférieur 120 m²
Coût total en € HT : 39000

aménagement intérieur

Année de réalisation : 2024
Coût total Aménagement Intérieur en € HT : 39000
Coût lots bois en € HT : 25000
Surface aménagée en m² : 76

Liste des produits :

ProduitEssenceProvenances (lieu de croissance du bois)Marque et certification produitFinition
Mobilier, Panneau acoustique, Panneau massif d'agencement, Parquet, PlinthesOKOUMEJe n'ai pas l'informationHuile
Bois Français : non

Approche environnementale : La matérialité globale de l'appartement se situe dans des nuances terracotta tirant vers le rose apportant une ambiance chaleureuse et naturelle. Les meubles du cocon et de la cuisine sont en bois d'okoumé contre-plaqué. Tous les sols de l'appartement sont en parquet chêne ou, béton ciré pour les pièces d'eau. Dans la cuisine, on trouve une faïence murale faite de sédiments marins venant contraster avec les plans de travail en pierre recyclée. Enfin tous les tissus d'ameublement, rideaux et voilage de séparation sont dans des teintes de roses.

Descriptif technique de l'aménagement : L'aménagement de la pièce comporte un bureau avec une paroi à mi hauteur, suffisamment élevée pour dissimuler tout le matériel informatique. La banquette compte 3 places assises et intègre de grands caissons sur roulettes en-dessous. Ses dimensions permettent également le couchage d'une personne. La cuisine sur-mesure quant à elle ouverte sur le séjour mais toutefois placée dans un volume dissocié du reste de la pièce, est aménagée de façon ergonomique. Tous les rangements sont des tiroirs à poignées intégrées et elle offre deux grands linéaires de plans de travail. Chaque chambre dispose de grands rangements ouverts et adaptés aux occupants: dressings pour les parents et étagères à profondeur réduite pour la chambre enfant.

Des matériaux issus du ré-emploi ont été utilisés dans le projet : oui
Données déclaratives

Acteurs du projet

Maître d'ouvrage (1)

Maître d'ouvrage - Particuliers

particulier (x)

Etudes et ingénieries (1)

Designer / architecte d'intérieur

n studio. (93)

Entreprises des lots bois (1)

Menuisier

particulier (x)

Autres (1)

Photographe

Bénédicte Karyotis (75)




* : L'entreprise n'est plus active
Retour à la liste