Apprendre – se divertir
Apprendre – se divertir

Pole culturel et sportif d'Alby sur Cheran

74540 Alby-sur-Chéran - Haute Savoie - Auvergne-Rhône-Alpes
Lauréat national

BÂTIMENT / LOGEMENT

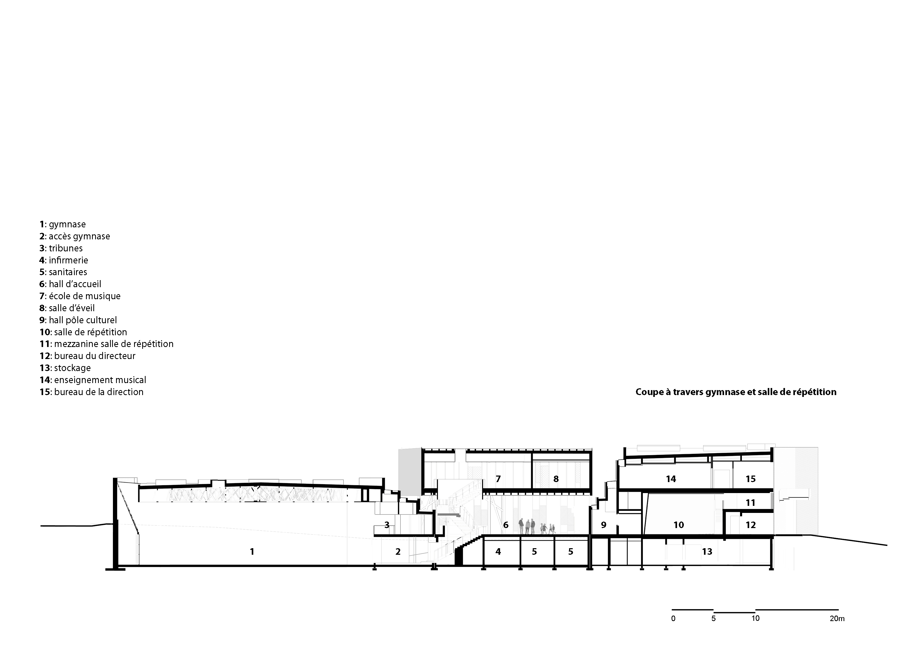
Le projet réunit trois fonctions publiques - pôle culturel, gymnase et école de musique - ainsi que deux logements de fonction. Sur les hauteurs de la commune d'Alby, le site bénéficie d'une vue imprenable sur les Bauges, massif montagneux proche. La vue doit être mise en valeur a travers le bâtiment. C'est un axe constitutif du projet. Le pôle culturel et le pôle sportif sont liés par un accueil traversant vitré sur le massif des Bauges. Cet espace de liaison multidirectionnel est en relation étroite avec le grand paysage, révélant le génie du lieu. Le projet est encastré dans le sol sur une hauteur de 3m, et les grands volumes sont traités en gradins; ainsi l'impact visuel du gymnase et de l’auditorium sont minimisés,et le projet reste à échelle humaine. "On peut toucher le bord du toit", comme dans les maisons traditionnelles des alpages. En coupe, le projet articule deux strates matérielles. La matière y est travaillée brute afin d’exprimer au maximum la vérité constructive. Le béton traité brut aux murs et poli en sol, constitue les parties encastrées. Le bois constitue la majorité de la structure émergée, ainsi que l’enveloppe extérieure des pôles sportif et culturel. La structure primaire de l’école de musique est confortée de structure acier pour absorber les efforts sismiques en finesse malgré les généreuses surfaces vitrées. Un escalier monumental relie ces deux strates entre elles et ce faisant propose un voyage à 360° à travers le projet. Le projet constitue un parcours à travers des espaces contrastés. Si les matériaux sont à l’état brut dans le gymnase ou l’auditorium, l'école de musique, elle, est mise en tension au cœur du projet par l’utilisation de revêtements aux teintes vives. Le soin porté au détail ornemental fait en outre honneur à la tradition dans laquelle s’inscrit l’architecture vernaculaire savoyarde. Le projet joue avec une lumière naturelle protéiforme. Filtrée à travers la charpente du gymnase, elle se répand sur la la totalité de l'espace sportif. Les écailles en pans coupés sur les rangements sportifs, les languettes horizontales au-dessus des gradins, les murs rideaux courant sur les potelets bois, sont autant de petites touches qui font vivre le projet, sa structure, ses revêtements. Le hall central baigné de lumière est traversé par un patio vertical illuminant 3 niveaux. Le volume du pôle culturel, d’apparence opaque en façade, travaille en subtilité la lumière : - derrière d’épais carrelets de bois se niche un patio pour les logements. - derrière la façade technique la lumière filtrée par le métal déployé.

Catégorie Bâtiment / logement
Numéro de projet88
Adresse du projet Allée du collège
74540 Alby-sur-Chéran
Date de candidature16/02/2018
Récompense1er prix

Bâtiment / logement

Détail projet

Typologie de bâtiment : Neuf
Type de bâtiment : Enseignement ou éducation,Culture,Sport
Année de livraison : 2017
Surface totale du bâtiment en m² : 4398
Coût total en € HT (hors foncier, hors VRD, hors honoraires) : 9960000
Lot bois n°1 concerné : Charpente bois
Volume lot bois n°1 - m³ : 630
Coût du lot bois n°1 - € HT : 1750000
Lot bois n°2 concerné : Aucun
Bois Français : non
Isolations biosourcées (préciser dans le descriptif technique) : non
Finitions intéreures biosourcées ou géosourcées (préciser dans le descriptif technique) : non

Structure bois du bâtiment

Structure verticale :

ProduitEssenceProvenances (lieu de croissance du bois)Traitements de préservationMarque et certification produit
Panneau ossature boisEuropeTraitement Classe 2 (trempage)
Poteau poutreEuropeTraitement Classe 2 (trempage)

Structure horizontale :

ProduitEssenceProvenances (lieu de croissance du bois)Traitements de préservationMarque et certification produit
Plancher mixte bois-bétonÉpicéa communEuropeTraitement Classe 2 (trempage)
Solivage traditionnelÉpicéa communEuropeTraitement Classe 2 (trempage)

Charpente :

ProduitEssenceProvenances (lieu de croissance du bois)Traitements de préservationMarque et certification produit
Charpente bois lamellé-colléÉpicéa communEuropeTraitement Classe 2 (trempage)

Revêtement bois extérieur

Revêtement bois ou dérivés :

ProduitEssenceProvenances (lieu de croissance du bois)Marque et certification produitFinitionTraitements de préservation
Lame bois massifDouglasBourgogne-Franche-ComtéAucune finitionTraitement Classe 4 (autoclave)
Lame bois massifÉpicéa communBourgogne-Franche-ComtéLasureTraitement Classe 2 (trempage)

Autre revêtement métallique :

Produit
Acier

Menuiserie intérieure et extérieure

Menuiserie extérieure :

ProduitEssenceProvenances (lieu de croissance du bois)Marque et certification produitFinition
Menuiserie boisPin sylvestreFranceLasure
Mur rideau boisPin sylvestreFranceLasure

Isolation des murs

Isolation entre-montant des murs :

Produit
Paille
Epaisseur (mm) Isolation entre-montant des murs : 360

Isolation de la toiture

Epaisseur (mm) Isolation extérieure de la toiture : 300

Approche environnementale : Le projet signe un engagement fort sur le plan environnemental. L'utilisation prépondérante du matériau bois - 630m3 - et de la paille comme isolant permet aujourd’hui de livrer un bâtiment biosourcé à faible énergie grise. L'enveloppe performante, l'éclairage naturel de qualité, le labyrinthe thermique sous l'auditorium, la ventilation naturelle optimisée, les occultations végétales ou amovibles sont autant de stratégies passives qui font l'intégrité écologique du projet, et nous permettent aujourd'hui d'atteindre un coefficient d'énergie primaire de 97 kWep/m²/an ( pour un Cep de référence de 183,88 kWep/m²).

Descriptif technique : Le projet jouit d'une situation exceptionnelle mais doit faire face à de fortes contraintes, puisqu'il est situé en zone sismique 4, dans un climat montagnard - fortes chaleurs l'été, neige en hiver. STRUCTURE Deux volumes et une "boîte rose" : la concrétisation d'un concept simple se révèle être un véritable challenge structurel. Les trois entités sont structurellement autonomes, séparées pas des joints de dilatation. La mixité de la structure et l’irrégularité du projet en plan et en coupe impose de prendre des coefficients de comportement s’élevant à 1.5 sur l’école de musique et le pôle culturel et à 2 sur le gymnase. Dans le gymnase, la structure est une partie de l'espace. Pour franchir les 27m de portée, la charpente consiste en de longues poutres en I d’1.80m de hauteur. Ce sont des poutres treillis qui ont été évidées, dans un souci d’esthétique et d’économie de matière.Toute cette structure repose sur deux gros portiques déportés. Au-dessus des gradins, le portique prend appui sur d’impressionnantes consoles. La charpente semble en équilibre ; depuis les tribunes rien ne vient perturber la lecture de l’espace. La vue peut passer librement. L'école de musique explore le principe de la mixité métal et bois. pour réduire l’emprise de la structure et optimiser la lumière dans la « boîte rose ». Trois files porteuses en métal reposent en RDC sur trois ou cinq poteaux chacune. Le plancher bas de l’école de musique fait travailler ensemble le métal, le bois et le béton pour franchir les 10m de portée entre chaque file, en apportant de l’inertie au complexe. Le pôle culturel est la seule entité du projet dont le béton constitue une partie de la structure émergée. Le béton stabilise la zone des salles de répétition. Le voile qui sépare celles-ci de l'auditorium est stabilisé par la structure bois de la charpente. Les logements sont constitués d’une ossature bois. A l’intérieur, le bois de structure est apparent. Les poteaux en bois tournés sont mis en valeur dans la cellule, légèrement déportés à l’intérieur de l’enveloppe. STRATÉGIES PASSIVES Matériaux biosourcés : bois et paille. - L’enveloppe extérieure est majoritairement constituée d’une ossature bois remplissage paille. L’utilisation de la paille comme isolant extérieur constitue une enveloppe très performante sur le plan thermique. Up: 0.149W/m²K - Un éclairage naturel de qualité en quantité participe de la diminution de la consommation énergétique du bâtiment - Un labyrinthe thermique construit sous l’auditorium permet de mettre à profit l’inertie du sol pour rafraîchir l’air neuf soufflé, et limiter ainsi les besoins en climatisation. - Le renouvellement thermique et hygiénique de l’air est assuré, autant que possible, par des procédés passifs : ventilation naturelle en occupation et hors occupation, raccordement au labyrinthe thermique. STRATÉGIES ACTIVES ADAPTÉES ET ÉCONOMES - Un mode de production de chaleur basé sur l’utilisation d’énergies renouvelables – chaudière granulés bois – et un mode de diffusion de chaleur par le sol, à basse température. - Un groupe eau glacée électrique permet également d’évacuer la chaleur sur l’air extérieur. Le rafraichissement des locaux est assuré par des cassettes rafraichissantes. - L’ensemble des salles est ventilé via des centrales de traitement d’air double flux avec récupération de chaleur sur l’air extrait. - Des sondes CO2 évaluent la qualité de l’air dans les locaux, en fonction de quoi le débit varie pour être au plus près des besoins réels et limiter la sur ventilation - un éclairage LED équipe la plupart des locaux – la technologie LED est plus pérenne et plus économe en énergie. - Bâtiment éligible aux labels THPE (très haute performance énergétique) et BBC Effinergie aussi bien pour la partie tertiaire que pour les logements ACOUSTIQUE Pour l'auditorium, le défi consiste à assurer un fonctionnement polyvalent. C’est-à-dire maintenir une acoustique adéquate à la fois pour le la musique amplifiée et pour une écoute directe. La stratégie adoptée avec AcousTB pour satisfaire à cette exigence tout en respectant l’esthétique de la salle consiste à concevoir des parois diffusantes, avec les modulations permises par l’utilisation du bardage à lames bois texturées. Là où des lames sont retirées, l’absorption est plus forte. Les parois sont particulièrement diffusantes autour de la scène, pour porter le message sonore, et absorbantes en fond de salle. Les fauteuils de l’auditorium participent de l’absorption des bruits parasites dans la salle. L'école de musique : assurer une acoustique qualitative dans une structure légère, vitrée, qui plus est en position centrale dans le projet, constitue un véritable défi technique. Les parois sont travaillées de manière à n’être pas parallèles, pour s’affranchir d’un problème d’écho flottant et limiter la surface absorbante aux murs. Les revêtements sont désolidarisés. Mesures du BE acoustique – résultats obtenus Isolement entre deux salles : entre 59 et 60 dB (objectif 53 dB) Isolement de façade : 40 dB (objectif 30 dB)

Chauffage au Bois : oui
Appareil de chauffage au bois : Chaudière
Données déclaratives

Acteurs du projet

Maître d'ouvrage (1)

Maître d'ouvrage - État ou collectivité (locale et territ)

SYNDICAT INTERCOMMUNAL DU PAYS D'ALBY (74)

Etudes et ingénieries (6)

Maître d'œuvre - Architecte mandataire

R2K ARCHITECTE (38)

Bureau d'études acoustique

ACOUSTB (38)

Bureau d'études structure bois

ARBORESCENCE (69)

Bureau d'études environnement

INDDIGO (73)

Bureau d'études thermique

B.E.T. NICOLAS (69)

Economiste

BMF BUREAU MICHEL FORGUE (38)

Entreprises des lots bois (2)

Menuisier

MENUISERIE MARC BLANC (42)

Constructeur bois

RUBNER CONSTRUCTION BOIS (69)




* : L'entreprise n'est plus active
Retour à la liste