Travailler – accueillir

L'origami

47260 LAPARADE - Lot et Garonne - Nouvelle-Aquitaine

BÂTIMENT / LOGEMENT

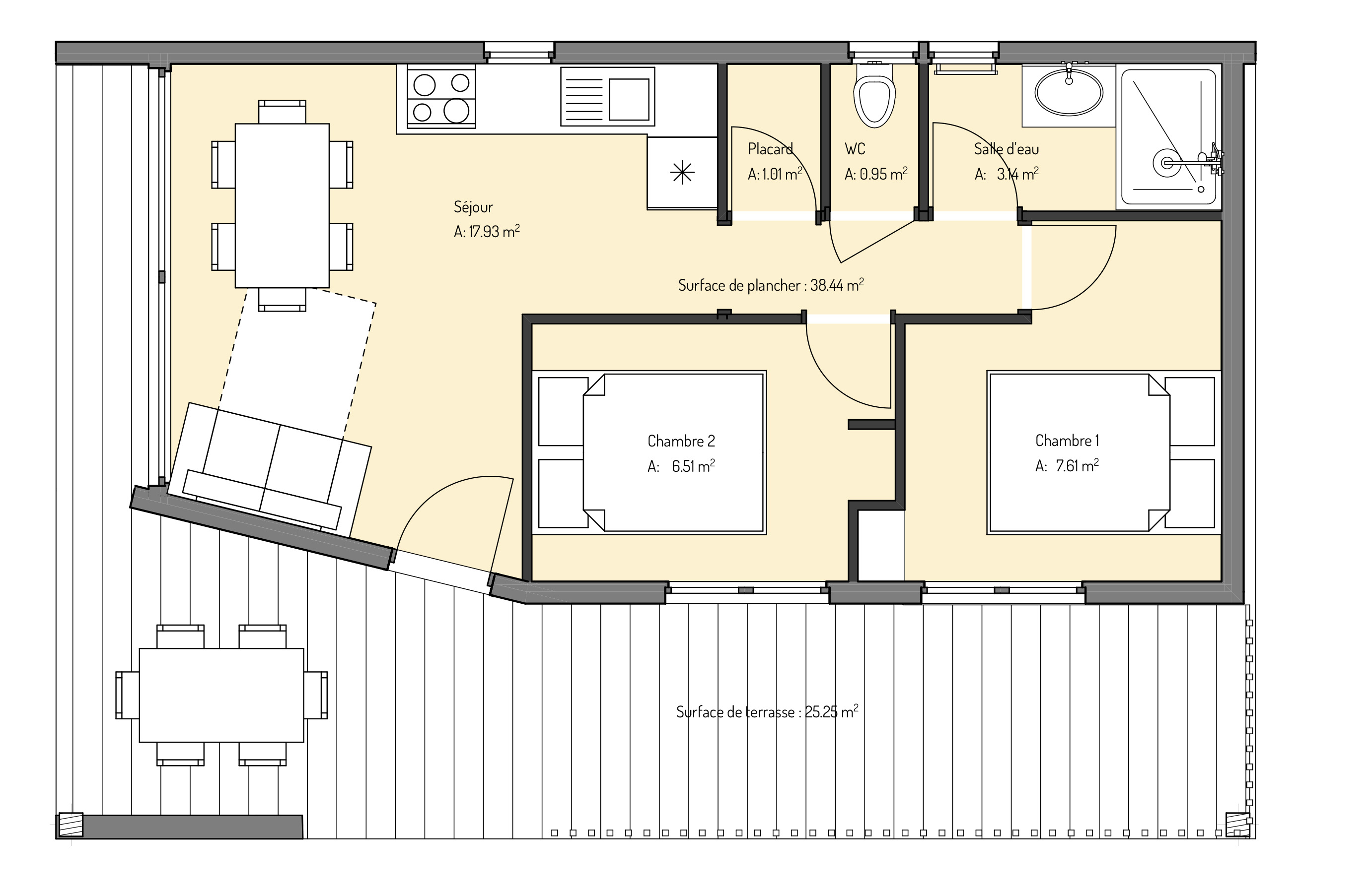
Situé dans la basse vallée du Lot, le parc du château de Peyreguilhot accueille des hébergements touristiques, dans un cadre boisé surplombant un paysage vallonné. Les propriétaires souhaitaient implanter de petits habitats de loisir, proposant une esthétique originale et marquante. Tout en s’inspirant de l’origami japonais dans la forme, l’architecture proposée mise sur les savoir-faire et les matériaux locaux (Nouvelle Aquitaine principalement) et bio-sourcés. Les propriétaires souhaitent implanter une douzaine d'"origamis" sur le site, autour de clairières, afin de créer une forêt habitée.

Catégorie Bâtiment / logement
Numéro de projet8827
Adresse du projet 2350 Route de Grateloup Peyreguilhot Nord
47260 LAPARADE
Date de candidature12/03/2024

Bâtiment / logement

Détail projet

Typologie de bâtiment : Neuf
Type de bâtiment : Logements de vacances ou de loisirs
Année de livraison : 2023
Surface totale du bâtiment en m² : 50
Coût total en € HT (hors foncier, hors VRD, hors honoraires) : 70000
Lot bois n°1 concerné : Charpente bois,Bardage bois,Menuiserie intérieure bois,ossature bois
Volume lot bois n°1 - m³ : 13
Coût du lot bois n°1 - € HT : 30000
Lot bois n°2 concerné : Menuiserie extérieure bois
Volume lot bois n°2 - m³ : 0.2
Coût du lot bois n°2 - € HT : 8500
Bois Français : oui
Matériaux issus du ré-emploi (préciser dans le descriptif technique) : non
Isolations biosourcées (préciser dans le descriptif technique) : oui
Matériaux géosourcés (préciser dans le descriptif technique) : non
Finitions intéreures biosourcées ou géosourcées (préciser dans le descriptif technique) : non

Structure bois du bâtiment

Structure verticale :

ProduitEssenceProvenances (lieu de croissance du bois)Traitements de préservationMarque et certification produit
Panneau ossature boisÉpicéa communGrand-EstTraitement Classe 2 (trempage)Bois de France

Structure horizontale :

ProduitEssenceProvenances (lieu de croissance du bois)Traitements de préservationMarque et certification produit
Dalle boisÉpicéa communGrand-EstTraitement Classe 2 (trempage)Bois de France

Charpente :

ProduitEssenceProvenances (lieu de croissance du bois)Traitements de préservationMarque et certification produit
Caisson de toitureÉpicéa communGrand-EstTraitement Classe 2 (trempage)Bois de France
Charpente traditionnelleDouglasOccitanieAucun traitementBois de France

Revêtement bois extérieur

Revêtement bois ou dérivés :

ProduitEssenceProvenances (lieu de croissance du bois)Marque et certification produitFinitionTraitements de préservation
Lame bois massifBois blanc résineuxEuropePEFCPeintureJe n'ai pas l'information
Lame bois massifDouglasOccitanieBois de FrancePeintureAucun traitement

Autre revêtement métallique :

Produit
Acier

Menuiserie intérieure et extérieure

Menuiserie intérieure :

ProduitEssenceProvenances (lieu de croissance du bois)FinitionMarque et certification produit
LambrisDouglasOccitanieAucune finitionBois de France
Mobilier, Panneau massif d'agencementPin maritimeNouvelle-AquitaineAucune finitionBois de France

Menuiserie extérieure :

ProduitEssenceProvenances (lieu de croissance du bois)Marque et certification produitFinition
Menuiserie boisPin maritimeNouvelle-AquitaineFSCLasure

Isolation des murs

Isolation entre-montant des murs :

Produit
Laine de bois souple
Epaisseur (mm) Isolation entre-montant des murs : 145

Isolation de la toiture

Epaisseur (mm) Isolation entre-montant de la toiture : 180

Approche environnementale : La structure bois a été mise à l'honneur. Ce dernier est d'origine France, venant au maximum des régions NA ou Occitanie, en massif et lamellé-collé ou contre collé (directement façonné dans les ateliers de l'entreprise SIGA à Villeneuve sur Lot-47) Au-delà, la réflexion menée est globale et circulaire : le chauffage de la construction et de l'ensemble du site est assurée par un réseau de chaleur (en cours de construction) et une chaufferie centrale à plaquettes bois (fonctionnant avec les résidus de l'entreprise de charpente qui a construit le bâtiment, située à quelques km)

Descriptif technique : STRUCTURE ET ISOLATION : ° plancher bas et murs ossature bois : - Ossature bois français (scieur Piveteau - Vendée 85) - isolation laine de bois (Steico - Lot et Garonne 47), ° charpente et couverture - Volige apparente et chevrons en pin Douglas naturel (région Occitanie - scierie gras 47 ) - Ossature bois français (scieur Piveteau - Vendée 85) - isolation laine de bois (Steico - Lot et Garonne 47), - couverture : bac acier joint debout Styl inov, qui permettra la récupération des eaux pluviales et la pose de panneaux photovoltaïques. MENUISERIE INTÉRIEURE ET EXTÉRIEURE - ensemble des finition murs et cloisons en contreplaqué de pin des Landes (40), - isolation cloisons en laine de bois (Steico - Lot et Garonne 47), - Menuiseries en bois de pin Français (Fabrication 47)

Chauffage au Bois : oui
Appareil de chauffage au bois : Chaudière
Données déclaratives

Acteurs du projet

Maître d'ouvrage (1)

Maître d'ouvrage - Particuliers

particulier (x)

Etudes et ingénieries (1)

Maître d'œuvre - Architecte mandataire

Alter Studio (47)

Entreprises des lots bois (3)

Menuisier

STÉ SIBA MENUISERIE (47)

Constructeur bois

SIGA SA (47)

Autre lot de la construction (en lien avec le bois)

Maisons SIC (47)

Fournisseurs du bois (5)

Scierie

Piveteau Bois (85)
Scierie Gras (82)

Industriel

STEICO CASTELJALOUX (47)
THEBAULT-PLY-LAND SAS (79)
GASCOGNE BOIS (47)




* : L'entreprise n'est plus active
Retour à la liste