Travailler – accueillir
Travailler – accueillir

Chalet Cazauland

40170 MEZOS - Landes - Nouvelle-Aquitaine

BÂTIMENT / LOGEMENT

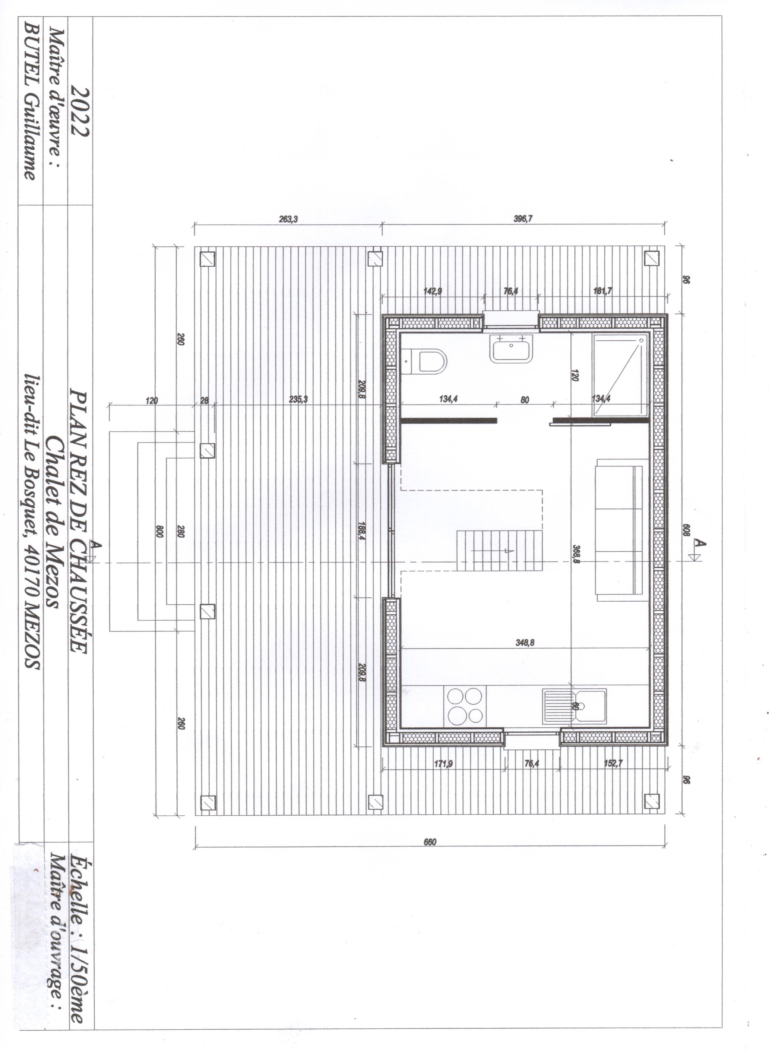
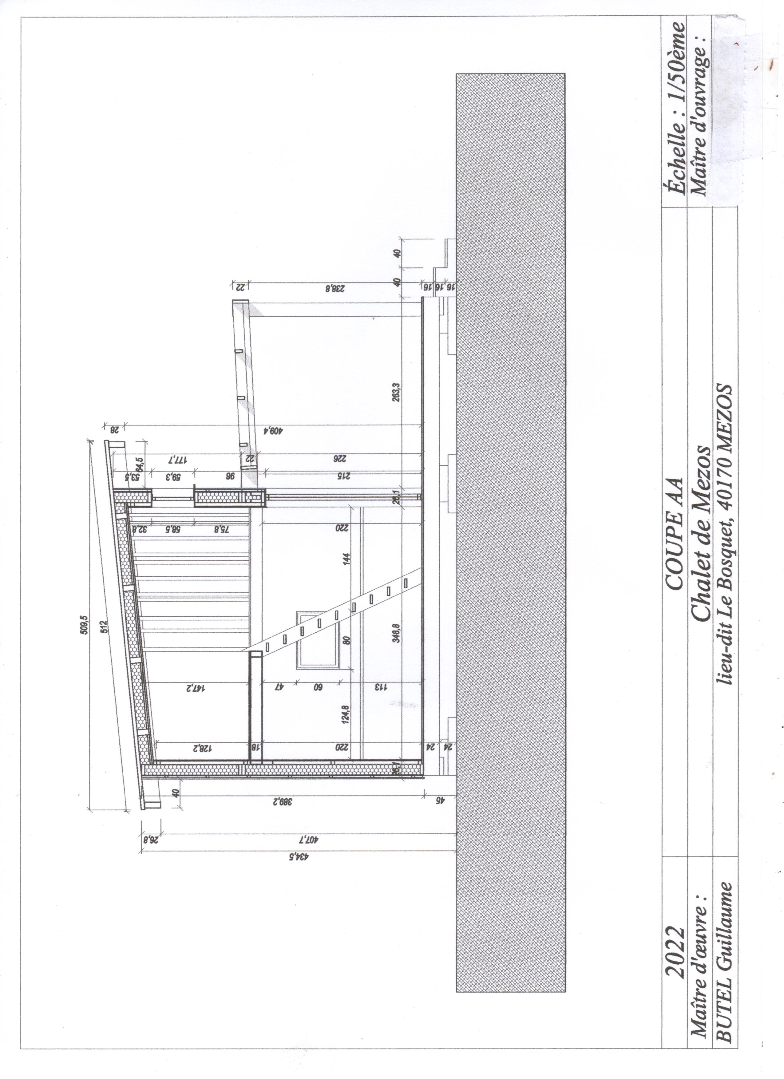
Le chalet, niché en lisière de la forêt, et posé sur une terrasse sur vide sanitaire, invite au repos un couple, ou une petite famille, le temps d'un week-end. Les ouvertures orientées plein sud reçoivent les rayons de soleil filtrés par le feuillage des chênes d'alentour. Il est équipé de deux petites chambres en mezzanine.

Catégorie Bâtiment / logement
Numéro de projet8753
Adresse du projet Lieu dit Bosquet
40170 MEZOS
Date de candidature11/03/2024

Bâtiment / logement

Détail projet

Typologie de bâtiment : Neuf
Type de bâtiment : Logements de vacances ou de loisirs
Année de livraison : 2023
Surface totale du bâtiment en m² : 48.00
Dont extension / surélévation en m² : 28.00
Coût total en € HT (hors foncier, hors VRD, hors honoraires) : 46077.67
Lot bois n°1 concerné : Charpente bois,ossature bois
Volume lot bois n°1 - m³ : 10.655
Coût du lot bois n°1 - € HT : 24640.34
Lot bois n°2 concerné : Bardage bois,Autre lot bois
Volume lot bois n°2 - m³ : 4.120
Coût du lot bois n°2 - € HT : 21437.33
Bois Français : oui
Matériaux issus du ré-emploi (préciser dans le descriptif technique) : oui
Isolations biosourcées (préciser dans le descriptif technique) : oui
Matériaux géosourcés (préciser dans le descriptif technique) : non
Finitions intéreures biosourcées ou géosourcées (préciser dans le descriptif technique) : non

Structure bois du bâtiment

Structure verticale :

ProduitEssenceProvenances (lieu de croissance du bois)Traitements de préservationMarque et certification produit
Panneau ossature boisNouvelle-AquitaineTraitement Classe 2 (trempage)Je n'ai pas l'information

Structure horizontale :

ProduitEssenceProvenances (lieu de croissance du bois)Traitements de préservationMarque et certification produit
Solivage traditionnelNouvelle-AquitaineTraitement Classe 2 (trempage)Je n'ai pas l'information

Charpente :

ProduitEssenceProvenances (lieu de croissance du bois)Traitements de préservationMarque et certification produit
Charpente traditionnelleNouvelle-AquitaineTraitement Classe 2 (trempage)Je n'ai pas l'information

Revêtement bois extérieur

Revêtement bois ou dérivés :

ProduitEssenceProvenances (lieu de croissance du bois)Marque et certification produitFinitionTraitements de préservation
Lame bois massifNouvelle-AquitaineJe n'ai pas l'informationAucune finitionTraitement Classe 2 (trempage)

Menuiserie intérieure et extérieure

Menuiserie intérieure :

ProduitEssenceProvenances (lieu de croissance du bois)FinitionMarque et certification produit
Lambris, ParquetNouvelle-AquitaineAucune finitionJe n'ai pas l'information

Menuiserie extérieure :

ProduitEssenceProvenances (lieu de croissance du bois)Marque et certification produitFinition
Brise soleil boisNouvelle-AquitaineJe n'ai pas l'informationAucune finition

Isolation des murs

Isolation intérieure des murs :

Produit
Laine de bois souple
Epaisseur (mm) Isolation intérieure des murs : 140
Epaisseur (mm) Isolation entre-montant des murs : 140

Isolation de la toiture

Epaisseur (mm) Isolation intérieure de la toiture : 140
Epaisseur (mm) Isolation entre-montant de la toiture : 140

Approche environnementale : Par sa petite taille, le logement fonctionnel se veut discret d'aspect, entouré d'arbres. avec traitement par phyto-épuration pour eaux grises. Les eaux noires sont absentes, le choix s'étant porté sur des toilettes sèches. Le plancher du rez de chaussé (intérieur et terrasse ext.) constitué de lames de bois exotique de récupération (ancien tour de piscine). l'isolation est en laine de bois souple.

Descriptif technique : Structure posée sur terrasse bois, ossature bois, parements des sols et murs en bois, sauf rez-de-chaussée en dalles de plâtre.

Chauffage au Bois : non
Données déclaratives

Acteurs du projet

Maître d'ouvrage (1)

Maître d'ouvrage - Particuliers

particulier (x)

Etudes et ingénieries (1)

Maître d'œuvre - Architecte mandataire

Butel-Cazaurang Guillaume (64)

Entreprises des lots bois (3)

Charpentier

Butel-Cazaurang Guillaume (64)

Menuisier

Butel-Cazaurang Guillaume (64)

Constructeur bois

Butel-Cazaurang Guillaume (64)




* : L'entreprise n'est plus active
Retour à la liste