Aménager
Aménager

Maison du Recueillement du Cimetière de Dinan

22100 Dinan - Côtes d'Armor - Bretagne
Lauréat régional

AMÉNAGEMENT BOIS

Aménagement intérieur

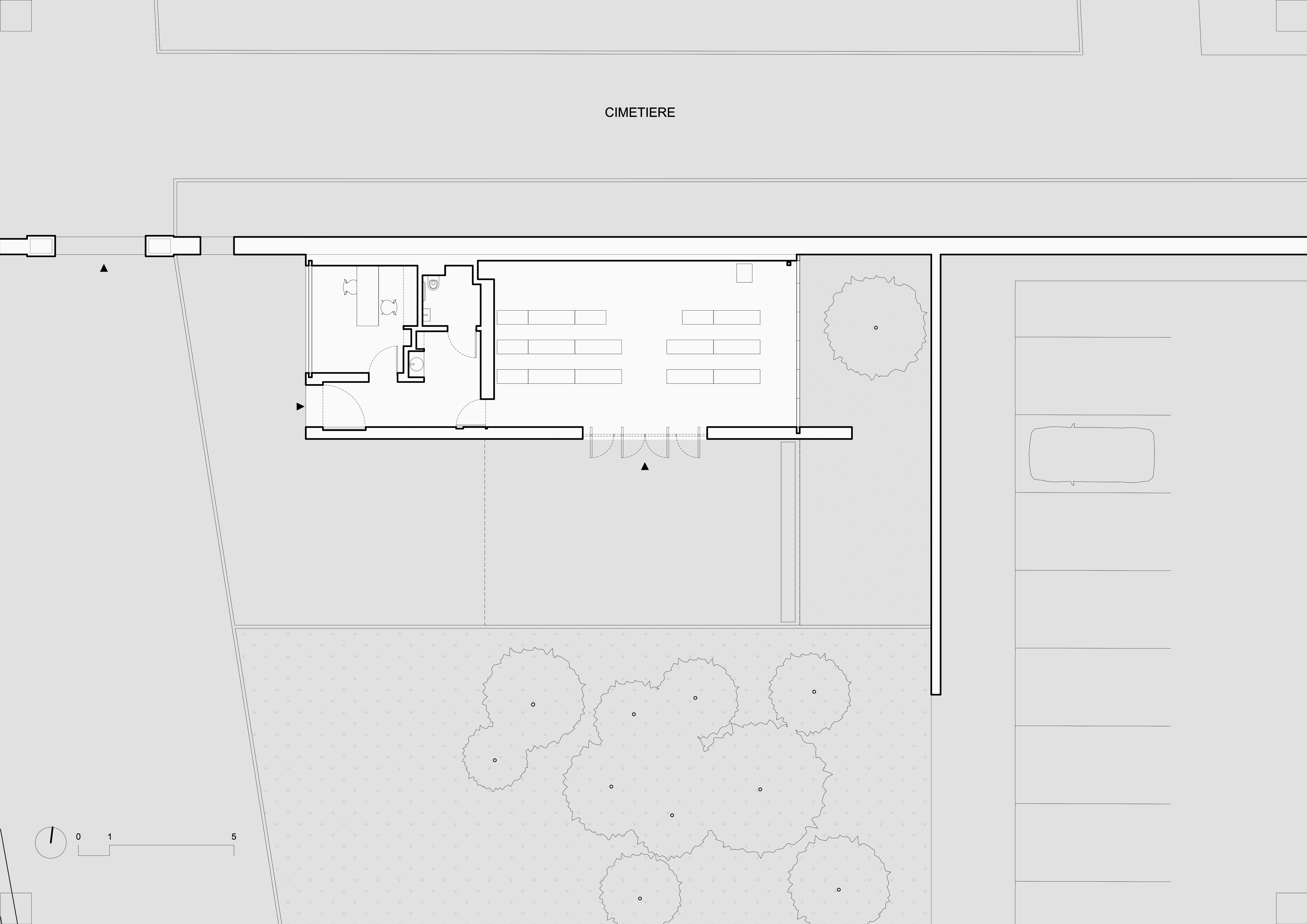
Bancs, bureau, étagères et meuble sonorisation sont en hêtre massif verni. Les bancs sont détachables et modulables à l'aide d'un assemblage en queue d'aronde n'ayant pas occasionné de déchets ni d'apport, la défonce d'un élément étant collé sur le banc adjacent afin de permettre de les réunir.

Bâtiment / logement

Un ensemble à la fois architectural et paysager, préservant l'intimité des cérémonies laïques, en bordure du cimetière de la Ville de Dinan. Le jardinet a été agrandi, la placette pavée de granit s'abrite sous le long auvent de bois et de zinc. On voit le cimetière, les maisons, le ciel : l'existant est accepté, disponible. C'est un parcours public - depuis le parking et la voirie - vers l'intime de la salle de recueillement, un intérieur / extérieur, dedans et dehors suspendu entre la vie et la mort. Pour une confiance en la transmission et en la vie. Pour éventuellement, une consolation

Catégorie aménagement bois, aménagement intérieur, Bâtiment / logement
Numéro de projet84
Adresse du projet 8 Rue du Champ Coquède
22100 Dinan
Date de candidature22/03/2018

aménagement bois

typologie : Culte
Coût total en € HT : 220000

aménagement intérieur

Année de réalisation : 2017
Coût total Aménagement Intérieur en € HT : 220000
Coût lots bois en € HT : 11000
Surface aménagée en m² : 85

Liste des produits :

ProduitEssenceProvenances (lieu de croissance du bois)Marque et certification produitFinition
MobilierFrêneFranceAutres

Bâtiment / logement

Détail projet

Typologie de bâtiment : Neuf
Type de bâtiment : Culte,Service institutionnel et public
Année de livraison : 2017
Surface totale du bâtiment en m² : 85
Coût total en € HT (hors foncier, hors VRD, hors honoraires) : 34000
Lot bois n°1 concerné : Charpente bois
Lot bois n°2 concerné : Menuiserie intérieure bois
Coût du lot bois n°2 - € HT : 11000
Bois Français : oui

Structure bois du bâtiment

Structure verticale :

ProduitEssenceProvenances (lieu de croissance du bois)Traitements de préservationMarque et certification produit
Poteau poutreAucun traitement

Structure horizontale :

ProduitEssenceProvenances (lieu de croissance du bois)Traitements de préservationMarque et certification produit
Solivage traditionnelDouglasFranceTraitement Classe 2 (trempage)

Charpente :

ProduitEssenceProvenances (lieu de croissance du bois)Traitements de préservationMarque et certification produit
Panneau massifSapin pectinéEuropeTraitement Classe 2 (trempage)
Charpente bois lamellé-colléDouglasFranceTraitement Classe 2 (trempage)

Revêtement bois extérieur

Revêtement bois ou dérivés :

ProduitEssenceProvenances (lieu de croissance du bois)Marque et certification produitFinitionTraitements de préservation
Panneau bois massif contrecolléChêneFranceHuileAucun traitement

Autre revêtement métallique :

Produit
Zinc

Menuiserie intérieure et extérieure

Menuiserie extérieure :

ProduitEssenceProvenances (lieu de croissance du bois)Marque et certification produitFinition
Menuiserie boisChêne

Isolation des murs

Isolation de la toiture

Approche environnementale : Comme la règlementation l'autorise dans ce lieu de culte, l'approche a été de ne pas isoler ni de chauffer la salle de cérémonies pour une utilisation très ponctuelle et brève, plutôt que d'apporter une isolation gourmande en énergie grise et une machinerie sophistiquée type VMC double flux. La ventilation est naturelle, par les interstices du bâtiment. Les matériaux sont laissés bruts (brut le béton des murs, brutes les poutres, poteau et planches) Le jardinet existant a été agrandi, protégé du parking par un mur végétalisé.

Descriptif technique : Le mur du cimetière est conservé, et devient intérieur. Les menuiseries s'y appuient légèrement. La structure qui les soutient - ainsi que le porte-à faux - est tenue sur un poteau en métal galvanisé 15x15 cm reprenant les charges des deux poutres en lamellé collé de 1 mètre de hauteur. A l'angle, derrière le pupitre, il rappelle la solidité et la ténuité de la vie. Les matériaux sont calmes, bruts, vivants. Chêne des portes, hêtre du mobilier, pierre du pays du mur extérieur, granit des pavés, béton planches, aluminium, zinc, verre.

Chauffage au Bois : non
Données déclaratives

Acteurs du projet

Maître d'ouvrage (1)

Maître d'ouvrage - État ou collectivité (locale et territ)

Commune de Dinan (22)

Etudes et ingénieries (3)

Maître d'œuvre - Architecte mandataire

ONZIEME ETAGE (35)

Bureau d'études structure bois

FORCES & APPUIS (35)

Architecte / paysagiste concepteur

ONZIEME ETAGE (35)

Entreprises des lots bois (3)

Charpentier

SARL LOMINE (SLB) (22)

Menuisier

Silice et Cambium (35)
SARL LOMINE (SLB) (22)




* : L'entreprise n'est plus active
Retour à la liste