Travailler – accueillir
Travailler – accueillir

Les Cabanes Pastorales d'altitude - Aulus-les-bains

09140 AULUS LES BAINS - Ariège - Occitanie

BÂTIMENT / LOGEMENT

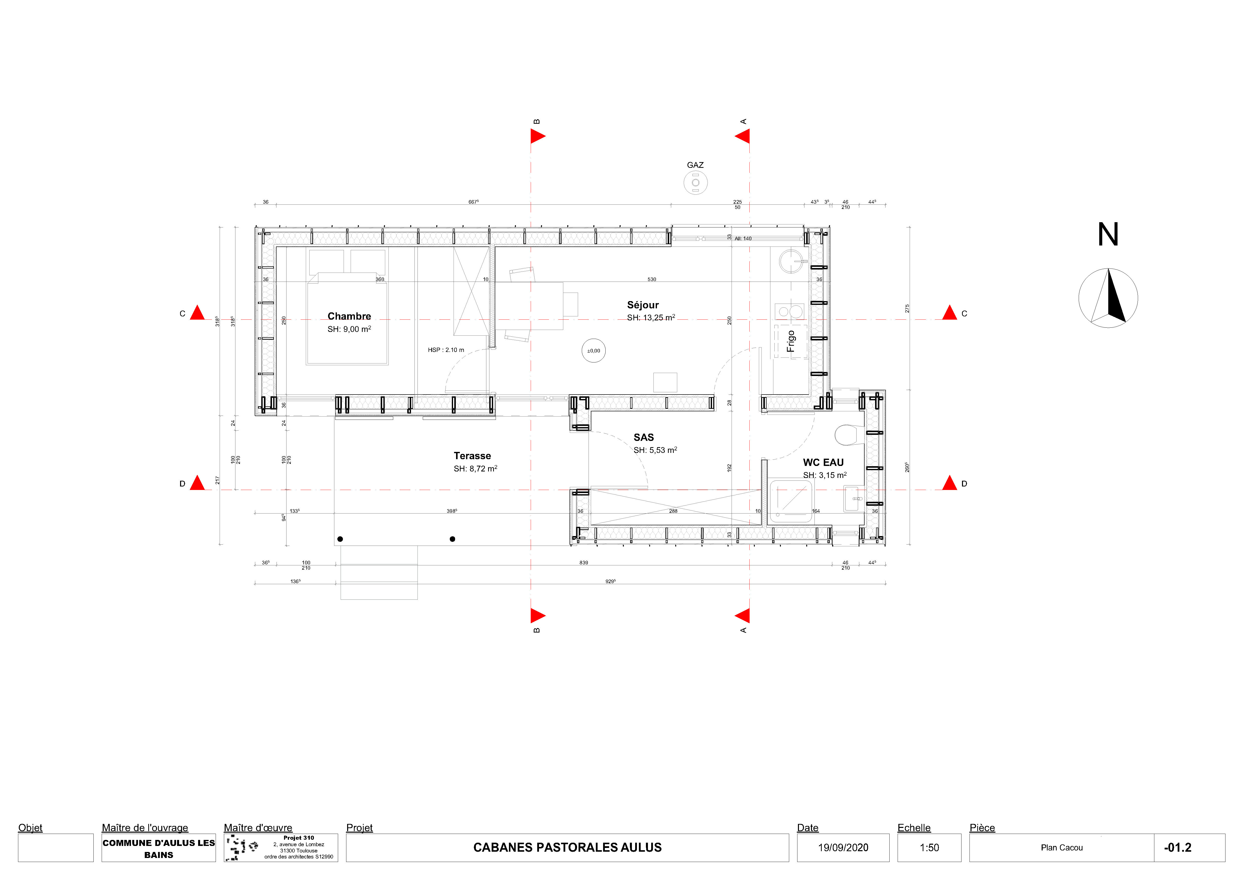
Dans un site exceptionnel et peu accessible (6h de marche), naturel et protégé (Parc National). Le projet vise à maintenir l’équilibre de l’élevage pastoral, avec une présence renforcée des bergers sur les estives, en lien avec la réintroduction de l’Ours sur le massif Pyrénéen. Le projet concerne deux cabanes d’altitude, à 2500m, et une cabane principale à 1900 m. Il vise à offrir aux bergers des conditions de vie dignes sur les sites d’estives. Conçu en étroite collaboration avec les bergers et éleveurs, la Fédération Pastorale de l’Ariège, sous la conduite de la Mairie d’Aulus-les-Bains.

Catégorie Bâtiment / logement
Numéro de projet8406
Adresse du projet Combe de Cacou,
Crète de Puntussant
Eperon de Ramounat
09140 AULUS LES BAINS
Date de candidature16/02/2024

Bâtiment / logement

Détail projet

Typologie de bâtiment : Neuf
Type de bâtiment : Agriculture,Hébergement
Année de livraison : 2023
Surface totale du bâtiment en m² : 62
Coût total en € HT (hors foncier, hors VRD, hors honoraires) : 380829
Lot bois n°1 concerné : Charpente bois,ossature bois
Volume lot bois n°1 - m³ : 19
Coût du lot bois n°1 - € HT : 290858
Bois Français : oui
Matériaux issus du ré-emploi (préciser dans le descriptif technique) : non
Isolations biosourcées (préciser dans le descriptif technique) : oui
Matériaux géosourcés (préciser dans le descriptif technique) : oui
Finitions intéreures biosourcées ou géosourcées (préciser dans le descriptif technique) : oui

Structure bois du bâtiment

Structure verticale :

ProduitEssenceProvenances (lieu de croissance du bois)Traitements de préservationMarque et certification produit
Panneau de bois massif (CLT collé ou CLT cloué), Panneau ossature boisTraitement Classe 2 (trempage)Bois de France
Panneau ossature boisDouglasOccitanieAucun traitementPEFC

Structure horizontale :

ProduitEssenceProvenances (lieu de croissance du bois)Traitements de préservationMarque et certification produit
Panneau de bois massif (CLT collé ou CLT cloué), Solivage traditionnel
Dalle boisDouglasOccitanieAucun traitementPEFC

Charpente :

ProduitEssenceProvenances (lieu de croissance du bois)Traitements de préservationMarque et certification produit
Caisson de toiture

Revêtement bois extérieur

Revêtement bois ou dérivés :

ProduitEssenceProvenances (lieu de croissance du bois)Marque et certification produitFinitionTraitements de préservation
Lame bois massif
Lame bois massifMélèzeFranceOrigine France GarantieAucune finitionAucun traitement

Menuiserie intérieure et extérieure

Menuiserie intérieure :

ProduitEssenceProvenances (lieu de croissance du bois)FinitionMarque et certification produit
Lambris, Mobilier, Panneau massif d'agencementÉpicéa communEuropeAucune finitionPEFC

Menuiserie extérieure :

ProduitEssenceProvenances (lieu de croissance du bois)Marque et certification produitFinition
Volet bois

Isolation des murs

Isolation intérieure des murs :

Produit
Laine de bois souple
Epaisseur (mm) Isolation entre-montant des murs : 200

Isolation de la toiture

Epaisseur (mm) Isolation entre-montant de la toiture : 200

Approche environnementale : Construire sur ces crêtes culminant à 2500m d’altitude au cœur de la haute montagne ariégeoise, c’est penser réversible, se confronter aux éléments, à la nature splendide mais intrépide. Fondations par pieux vissés dans la roche sans béton, construction intégrale en ossature bois, isolation laine de bois, parements intérieur et mobilier CLT, bardage extérieur bois et Zinc

Descriptif technique : Dans ces contraintes d’accessibilité très réduite en haute montagne, le projet adopte un principe constructif préfabriqué en ossature bois, compatible avec un héliportage d'éléments de moins de 700 kg (planchers, murs, couverture, …) assemblés sur site. Les cabanes sont posées sur un système de pieux métalliques ancrés dans la roche, et assemblées par hélicoptère assurant un grutage complexe. Les éléments une fois assemblés reçoivent une vêture de zinc et de bois préparée en atelier lors d’un montage à blanc dans la vallée.. Les conditions d'accès et de météo imprévisibles imposent une préparation pointue, pour un chantier autonome, limitant les approvisionnements, les rotations de personnels, d’outillage, la gestion des déchets …

Chauffage au Bois : oui
Appareil de chauffage au bois : Poële/insert
Données déclaratives

Acteurs du projet

Maître d'ouvrage (2)

Maître d'ouvrage - État ou collectivité (locale et territ)

Commune de AULUS-LES-BAINS (09)

Autres

FEDERATION PASTORALE DE L'ARIEGE (09)

Etudes et ingénieries (3)

Maître d'œuvre - Architecte mandataire

PROJET 310 (31)

Bureau d'études structure bois

GUSTAVE - INGENIEUR BOIS (74)

Autre intervenant de la construction - bureau de contrôle, AMO, BIM...

ETIC BOIS (09)

Entreprises des lots bois (1)

Charpentier

SOREBA CHARPENTES (31)

Autres (1)

Photographe

PROJET 310 (31)




* : L'entreprise n'est plus active
Retour à la liste