Réhabiliter un logement
Réhabiliter un logement

Maison alsacienne en centre historique - Boersch

67530 BOERSCH - Bas Rhin - Grand Est

BÂTIMENT / LOGEMENT

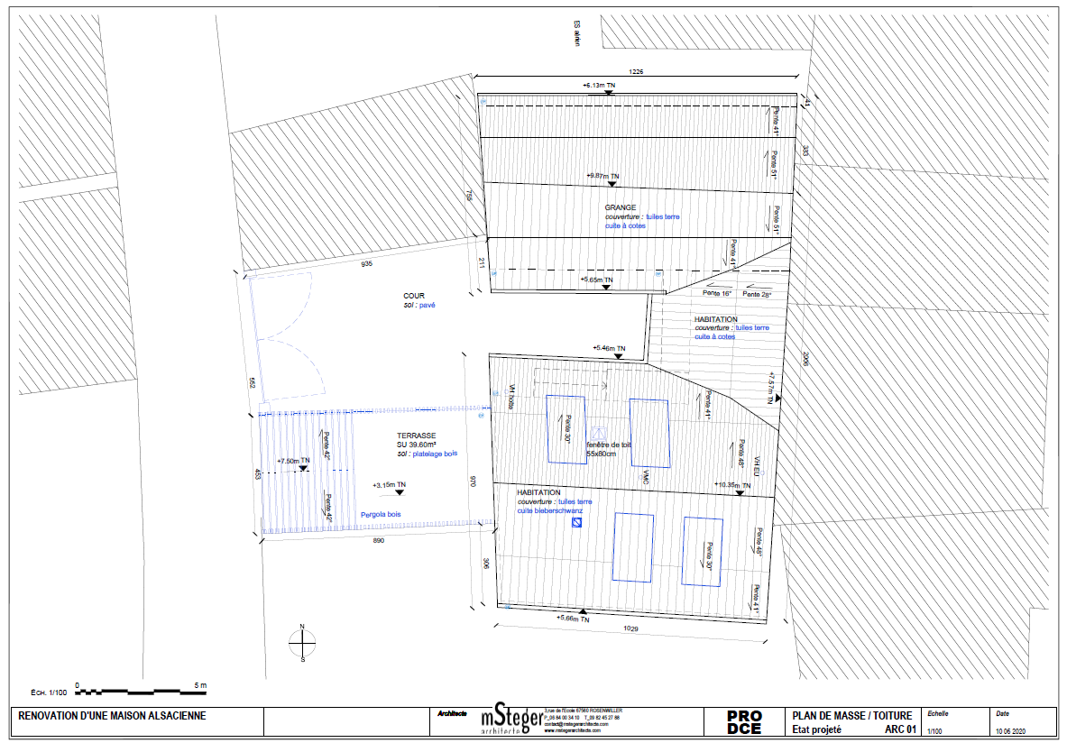
Ce petit corps de ferme en U, traditionnel dans les villages alsaciens, garde sa fonction d'habitation et de grange. Les différents niveaux et bâtiments sont connectés pour une circulation fluide intérieure et extérieure. La terrasse existante sur rue est surmontée d'une pergola afin de retrouver le gabarit d'une petite grange, qu'on suppose avoir existé, qui amenuise l'effet de toit terrasse non adapté en secteur historique et garde l'attrait de la terrasse plein sud avec vue cadrée vers l'église.

Catégorie Bâtiment / logement
Numéro de projet8103
Date de candidature10/03/2023

Bâtiment / logement

Détail projet

Typologie de bâtiment : Rénovation / Réhabilitation
Type de bâtiment : Logement individuel supérieur à 120 m²
Année de livraison : 2022
Surface totale du bâtiment en m² : 190
Coût total en € HT (hors foncier, hors VRD, hors honoraires) : 500000
Bois Français : oui
Matériaux issus du ré-emploi (préciser dans le descriptif technique) : oui
Isolations biosourcées (préciser dans le descriptif technique) : oui
Matériaux géosourcés (préciser dans le descriptif technique) : oui
Finitions intéreures biosourcées ou géosourcées (préciser dans le descriptif technique) : oui

Structure bois du bâtiment

Structure verticale :

ProduitEssenceProvenances (lieu de croissance du bois)Traitements de préservationMarque et certification produit
Colombage, Poteau poutreGrand-EstAucun traitement

Structure horizontale :

ProduitEssenceProvenances (lieu de croissance du bois)Traitements de préservationMarque et certification produit
Solivage traditionnelTempéréGrand-EstAucun traitement

Charpente :

ProduitEssenceProvenances (lieu de croissance du bois)Traitements de préservationMarque et certification produit
Charpente historique, Charpente traditionnelleTempéréGrand-EstTraitement Classe 2 (trempage)

Revêtement bois extérieur

Revêtement bois ou dérivés :

ProduitEssenceProvenances (lieu de croissance du bois)Marque et certification produitFinitionTraitements de préservation
Lame bois massifGrand-EstAutres

Revêtement minéral :

Produit
Enduit chaux

Menuiserie intérieure et extérieure

Menuiserie intérieure :

ProduitEssenceProvenances (lieu de croissance du bois)FinitionMarque et certification produit
Escalier, Mobilier, ParquetTempéréHuile

Menuiserie extérieure :

ProduitEssenceProvenances (lieu de croissance du bois)Marque et certification produitFinition
Menuiserie bois, Volet boisTempéréGrand-EstPeinture

Isolation des murs

Isolation intérieure des murs :

Produit
Laine de bois souple
Epaisseur (mm) Isolation intérieure des murs : 140

Isolation entre-montant des murs :

Produit
Béton de chanvre
Epaisseur (mm) Isolation entre-montant des murs : 220

Isolation de la toiture

Epaisseur (mm) Isolation intérieure de la toiture : 150
Epaisseur (mm) Isolation entre-montant de la toiture : 140

Approche environnementale : La réhabilitation s'est faite dans le respect des principes constructifs traditionnels, par essence respectueux de l'environnement. Tous les matériaux récupérables sur site (pierre en grès, planches de bois, poteaux et poutres bois) ont été réemployés. Des pièces de bois d'autres bâtis anciens démolis ont été récupérées. Les isolants des murs et toiture sont biosourcés (béton de chanvre, fibre de bois, ouate de cellulose). Les fenêtres et occultation sont en bois (pin laqué).

Descriptif technique : Façades : - murs RDC en moellons apparents ou enduit à la chaux - murs étages en pan de bois conservés ou remplacés - bardage bois sur la façade de l'entre-deux - prolongation de la coursive par coursive en structure bois et platelage bois Toitures : - couverture tuiles terre cuite rouge bieberschwanz ou à double cotes Menuiseries extérieures : - menuiseries en bois avec petits-bois - porte d'entrée RDC en remplacement de la porte bois de la cave, aluminium laqué noir type porte d'atelier - encadrements et volets en bois - escalier bois extérieur conservé Terrasse sur rue : - platelage bois - pergola bois en mélèze : structure verticale en claire-voie - bardage bois en planches larges sur rue formant garde-corps Espaces extérieurs : - pavés en grès et pavés drainants enherbés

Chauffage au Bois : oui
Appareil de chauffage au bois : Poële/insert
Données déclaratives

Acteurs du projet

Maître d'ouvrage (1)

Maître d'ouvrage - Particuliers

particulier (x)

Etudes et ingénieries (2)

Maître d'œuvre - Architecte mandataire

MSTEGER ARCHITECTE (MELANIE STEGER) (67)

Maître d’œuvre - Architecte associé

Céline Guillemin architecte du patrimoine (67)

Entreprises des lots bois (2)

Charpentier

KS Couverture (67)

Menuisier

Au Fil Du Bois (67)




* : L'entreprise n'est plus active
Retour à la liste